Размещено на портале Архи.ру (www.archi.ru)

25.12.2018

«Кристалл» для шахтерского города

Нина Фролова
Объект:
«Кристалл» – Ратуша Кируны
Адрес:
Швеция, None, Кируна.
План «Кируна навсегда»
Адрес:
Швеция, None, Кируна.
Мастерская:
Henning Larsen Architects
Авторский коллектив:
White Arkitekter
Ghilardi+Hellsten Arkitekter

Город Кируна на севере Швеции, вынужденный переместиться на восток – от расширяющейся шахты – получил новую ратушу по проекту бюро Henning Larsen, которую открыл сам король Карл XVI Густав.

Ратуша Кируны. Фото © Hufton + Crow
Ратуша Кируны. Фото © Hufton + Crow

Реализуемый с 2014 план White Arkitekter и Ghilardi+Hellsten Arkitekter «Кируна навсегда» предполагает постепенное перемещение самого северного города Швеции на три километра на восток, чтобы не провалиться в огромную шахту, разрабатываемую рядом с этим городом – и под ним. Это заполярный моногород, основанный горнодобывающей компанией KLAB в начале XX века; сейчас там – крупнейшее в мире и самое современное по технологиям место добычи железной руды подземным способом, причем за 100 лет активной разработки извлечена едва ли треть всех запасов – необычайно высокого качества. Однако шахта, углубившаяся на 1,3 км под землю, постепенно расширяется под город, поэтому KLAB (ныне принадлежащая государству) выделила на переезд Кируны 1,3 млрд долларов, причем сам процесс продлится до 2100 года. Но, несмотря на консультации с жителями, щедрую компенсацию и перевоз на новое место 21 знаковых сооружений, для горожан эти перемены означают потерю сложившейся жилой среды и общественных связей.
 
Ратуша Кируны. Фото © Peter Rosén/LapplandMedia
Ратуша Кируны. Фото © Peter Rosén/LapplandMedia
Панорама Кируны. Фото © Peter Rosén/LapplandMedia
Панорама Кируны. Фото © Peter Rosén/LapplandMedia
Ратуша Кируны. Фото © Peter Rosén/LapplandMedia
Ратуша Кируны. Фото © Peter Rosén/LapplandMedia

Поэтому особую роль должен сыграть новый городской центр, первая очередь плана «Кируна навседа»: он должен быть полностью готов в начале 2020-х, а пока его самое важное здание, ратушу, торжественно открыл в конце ноября король Швеции Карл XVI Густав. Постройка архитекторов Henning Larsen призвана вместить муниципальных чиновников и необходимые горожанам службы, также она служит местом встречи и общения жителей.
 
Ратуша Кируны. Фото © Hufton + Crow
Ратуша Кируны. Фото © Hufton + Crow
Ратуша Кируны. Фото © Hufton + Crow
Ратуша Кируны. Фото © Hufton + Crow
Ратуша Кируны. Фото © Hufton + Crow
Ратуша Кируны. Фото © Hufton + Crow






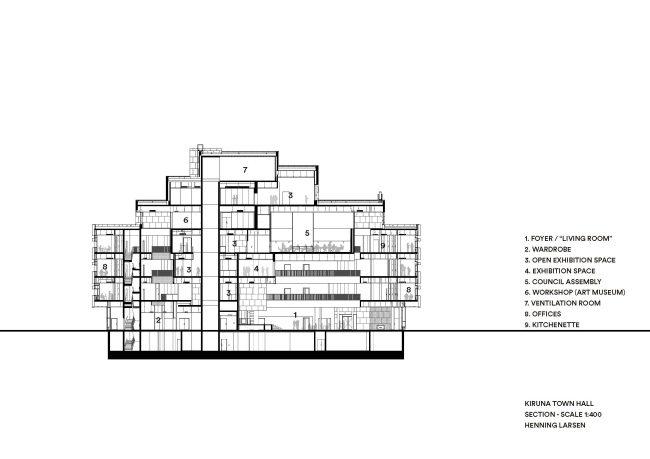
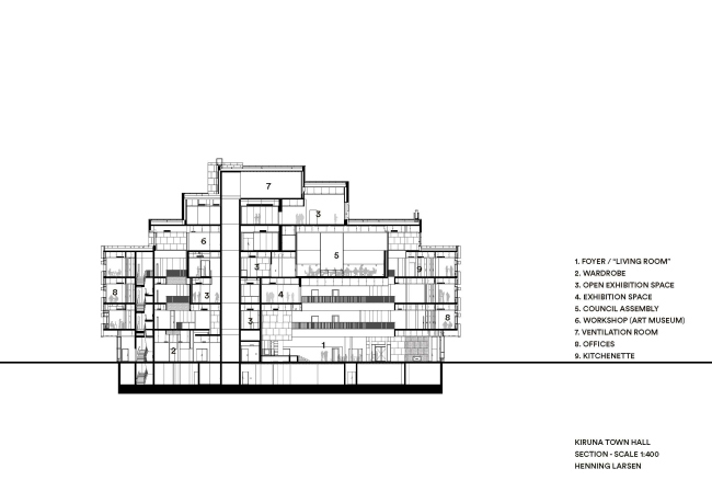
Внутренняя часть постройки, золотые блоки, оправдывающие название здания («Кристалл»), содержат выставочные залы, мастерские, общественные зоны, которые позволят ратуше стать центром сообщества. Внешнее кольцо занято административными помещениями. Круглый план – не только символ единства, но и способ избежать снежных заносов: ветер обдувает обтекаемые фасады из стекла и камня. Светлый цвет позволит «Кристаллу» быть заметным и в полярную ночь (в Кируне солнце не восходит две недели в году, во вторую половину декабря).
 
Ратуша Кируны. Фото © Hufton + Crow
Ратуша Кируны. Фото © Hufton + Crow
Ратуша Кируны. Фото © Hufton + Crow
Ратуша Кируны. Фото © Hufton + Crow
Ратуша Кируны. Фото © Hufton + Crow
Ратуша Кируны. Фото © Hufton + Crow

Рядом установлена колокольня старой ратуши, 1958 года: она физически выражает продолжение истории Кируны. Преемственность можно увидеть и в «устойчивом» решении: на строительство «Кристалла» пошли, помимо прочего, материалы, полученные при демонтаже прежнего муниципалитета.
Ратуша Кируны. Фото © Peter Rosén/LapplandMedia
Ратуша Кируны. Фото © Peter Rosén/LapplandMedia
Ратуша Кируны. Фото © Hufton + Crow
Ратуша Кируны. Фото © Hufton + Crow
Ратуша Кируны. Фото © Hufton + Crow
Ратуша Кируны. Фото © Hufton + Crow
Ратуша Кируны. Фото © Hufton + Crow
Ратуша Кируны. Фото © Hufton + Crow
Ратуша Кируны. Фото © Hufton + Crow
Ратуша Кируны. Фото © Hufton + Crow
Ратуша Кируны. Фото © Hufton + Crow
Ратуша Кируны. Фото © Hufton + Crow
Ратуша Кируны. Фото © Hufton + Crow
Ратуша Кируны. Фото © Hufton + Crow
Ратуша Кируны. Фото © Hufton + Crow
Ратуша Кируны. Фото © Hufton + Crow
Ратуша Кируны. Фото © Hufton + Crow
Ратуша Кируны. Фото © Hufton + Crow
Ратуша Кируны. Фото © Hufton + Crow
Ратуша Кируны. Фото © Hufton + Crow
Ратуша Кируны. Фото © Hufton + Crow
Ратуша Кируны. Фото © Hufton + Crow
Ратуша Кируны. Фото © Hufton + Crow
Ратуша Кируны. Фото © Hufton + Crow
Ратуша Кируны. Фото © Hufton + Crow
Ратуша Кируны. Фото © Hufton + Crow
Ратуша Кируны. Фото © Hufton + Crow
Ратуша Кируны. Фото © Hufton + Crow
Ратуша Кируны. Фото © Hufton + Crow
Ратуша Кируны. Фото © Hufton + Crow
Ратуша Кируны. Фото © Hufton + Crow
Ратуша Кируны. Фото © Hufton + Crow
Ратуша Кируны. Фото © Hufton + Crow
Ратуша Кируны. Фото © Hufton + Crow
Ратуша Кируны. Фото © Hufton + Crow
Ратуша Кируны. Фото © Hufton + Crow
Ратуша Кируны. Фото © Hufton + Crow
Ратуша Кируны. Фото © Hufton + Crow
Ратуша Кируны. Фото © Hufton + Crow
Ратуша Кируны. Фото © Hufton + Crow
Ратуша Кируны. Фото © Hufton + Crow
Ратуша Кируны. Фото © Hufton + Crow
Панорама Кируны. Фото © Peter Rosén/LapplandMedia
Панорама Кируны. Фото © Peter Rosén/LapplandMedia
Ратуша Кируны. Фото © Peter Rosén/LapplandMedia
Ратуша Кируны. Фото © Peter Rosén/LapplandMedia
Ратуша Кируны. Фото © Peter Rosén/LapplandMedia
Ратуша Кируны. Фото © Peter Rosén/LapplandMedia
Ратуша Кируны. Фото © Peter Rosén/LapplandMedia
Ратуша Кируны. Фото © Peter Rosén/LapplandMedia
Ратуша Кируны. Фото © Peter Rosén/LapplandMedia
Ратуша Кируны. Фото © Peter Rosén/LapplandMedia
Ратуша Кируны © Henning Larsen
Ратуша Кируны © Henning Larsen
Ратуша Кируны © Henning Larsen
Ратуша Кируны © Henning Larsen
Ратуша Кируны © Henning Larsen
Ратуша Кируны © Henning Larsen