Размещено на портале Архи.ру (www.archi.ru)

21.12.2018

Здание и его ответственность

Нина Фролова
Объект:
Галерея Джеймса Симона
Адрес:
Германия, None, Берлин.

На Музейном острове в Берлине завершено строительство по проекту бюро Дэвида Чипперфильда галереи Джеймса Симона – нового главного входа в этот комплекс.

Галерея Джеймса Симона
Галерея Джеймса Симона
Фото © Ute Zscharnt for David Chipperfield Architects

Галерея Джеймса Симона названа в честь предпринимателя и мецената рубежа веков, благодаря которому Государственные музеи Берлина получили многие свои шедевры, включая знаменитый бюст Нефертити и другие находки из Амарны. Роль Симона в формировании их коллекций соответствует положению «его» здания: галерея оформляет юго-западный фронт Музейного острова, но главное – служит его главным вестибюлем. Это сооружение было задумано еще в конце 1990-х, на этапе конкурса на мастерплан реконструкции ансамбля музеев, который выиграл Дэвид Чипперфильд.
 
Галерея Джеймса Симона
Галерея Джеймса Симона
Фото © Ute Zscharnt for David Chipperfield Architects
Галерея Джеймса Симона
Галерея Джеймса Симона
Фото © Ute Zscharnt for David Chipperfield Architects
Галерея Джеймса Симона
Галерея Джеймса Симона
Фото © Ute Zscharnt for David Chipperfield Architects

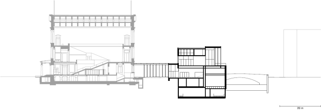
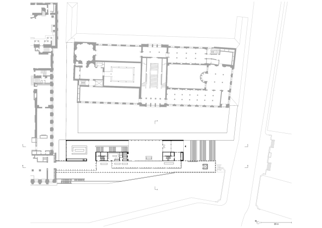
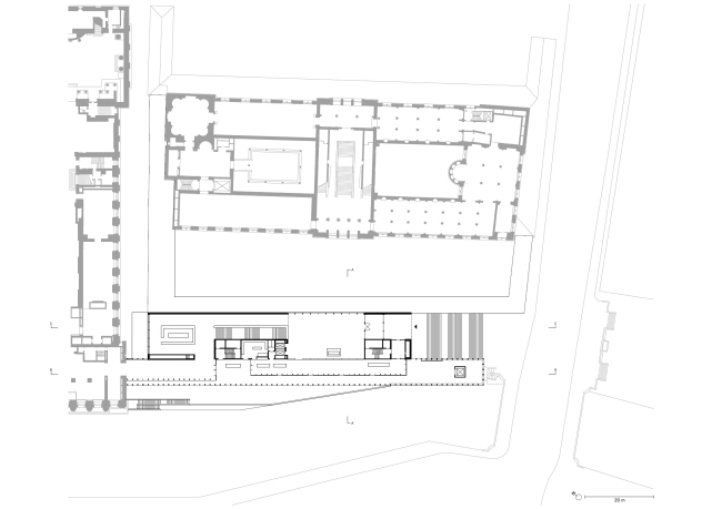
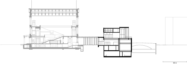
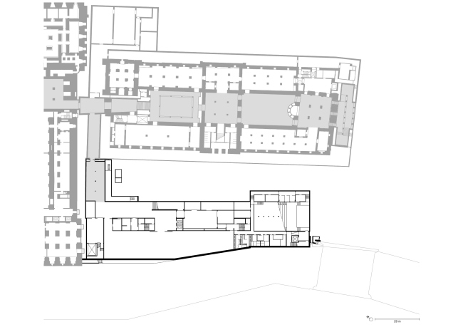
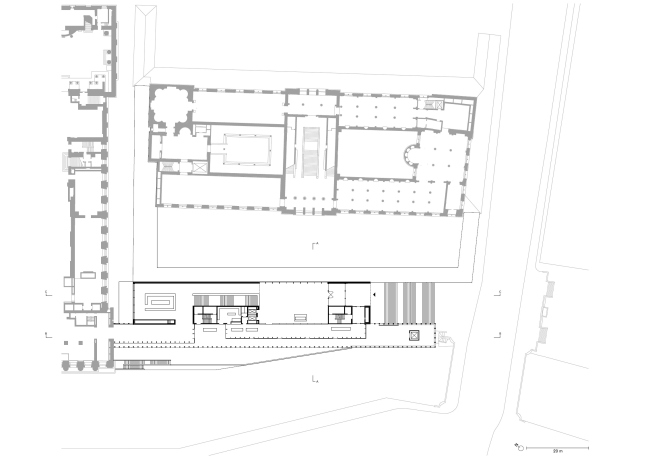
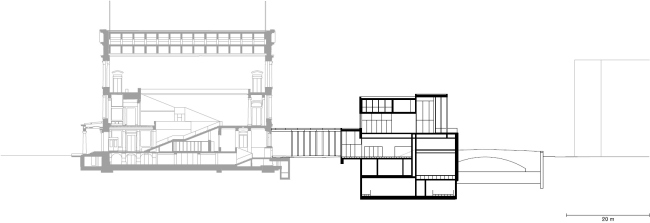
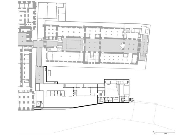
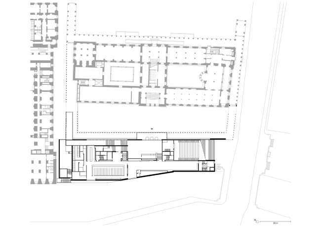
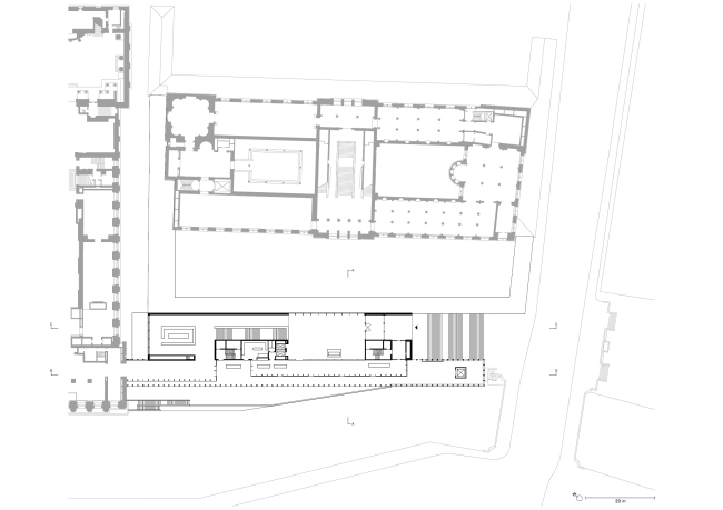
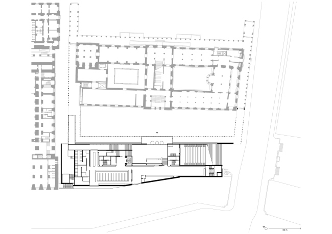
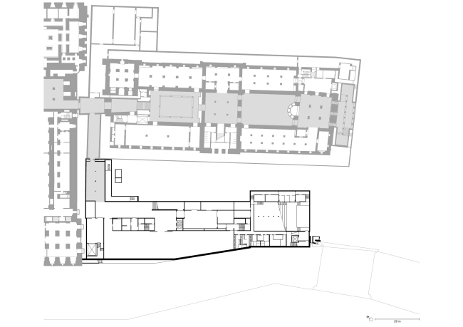
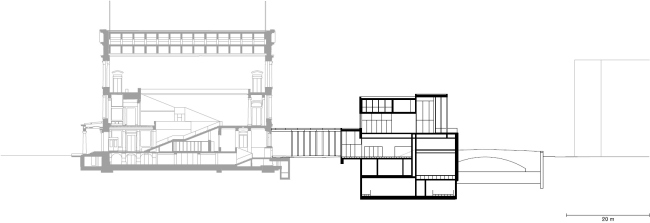
Наряду с Археологическим променадом, связывающим четыре из пяти музейных зданий острова под землей, галерея Симона служит каркасом для этого мастерплана. Она соединена с Пергамским музеем над землей, а с променадом – на уровне «минус один». В галерее содержатся масштабный вестибюль с кафе и большой открытой террасой, ниже, на антресольном этаже, помещены музейный магазин, гардероб, камера хранения и туалеты, под землей – пространство для временных выставок и аудитория на 300 зрителей.
 
Галерея Джеймса Симона
Галерея Джеймса Симона
Фото © Simon Menges
Галерея Джеймса Симона
Галерея Джеймса Симона
Фото © Simon Menges
Галерея Джеймса Симона
Галерея Джеймса Симона
Фото © Ute Zscharnt for David Chipperfield Architects

Все это рассчитано на большой поток посетителей, однако не менее важна и иная функция постройки, которую Чипперфильд назвал «ответственностью общественного здания в сердце большого города». Галерея обращена к каналу Купферграбен, парку Лустгартен и Дворцовому мосту высоким цоколем и колоннадой над ним. Искусственный и натуральный камень облицовки отсылает к историческим постройкам центра Берлина, а язык архитектуры – к окружающим ее сооружениям Шинкеля и Штюлера. Она физически продолжает колоннаду Штюлера, которую тот довел до Нового музея, а по смыслу – развивает заложенную тогда, в XIX веке, тему классического общественного пространства, открытого для граждан прусского Акрополя. Основной уровень галереи будет доступен всем в любое время суток, что подчеркивает роль Музейного острова не как туристического аттракциона со статусом объекта ЮНЕСКО, а как полноценной части одной из самых живых столиц Европы.

Галерея Джеймса Симона официально передана берлинским властям; сейчас в ее интерьерах идут отделочные работы, которые закончатся летом 2019-го – когда ее откроют для публики.
Галерея Джеймса Симона
Галерея Джеймса Симона
Фото © Ute Zscharnt for David Chipperfield Architects
Галерея Джеймса Симона
Галерея Джеймса Симона
Фото © Ute Zscharnt for David Chipperfield Architects
Галерея Джеймса Симона
Галерея Джеймса Симона
Фото © Simon Menges
Галерея Джеймса Симона
Галерея Джеймса Симона
Фото © Ute Zscharnt for David Chipperfield Architects
Галерея Джеймса Симона
Галерея Джеймса Симона
Фото © Ute Zscharnt for David Chipperfield Architects
Галерея Джеймса Симона © David Chipperfield Architects
Галерея Джеймса Симона © David Chipperfield Architects
Галерея Джеймса Симона © David Chipperfield Architects
Галерея Джеймса Симона © David Chipperfield Architects
Галерея Джеймса Симона © David Chipperfield Architects
Галерея Джеймса Симона © David Chipperfield Architects
Галерея Джеймса Симона © David Chipperfield Architects
Галерея Джеймса Симона © David Chipperfield Architects
Галерея Джеймса Симона © David Chipperfield Architects
Галерея Джеймса Симона © David Chipperfield Architects
Галерея Джеймса Симона © David Chipperfield Architects
Галерея Джеймса Симона © David Chipperfield Architects
Галерея Джеймса Симона © David Chipperfield Architects
Галерея Джеймса Симона © David Chipperfield Architects
Галерея Джеймса Симона © David Chipperfield Architects
Галерея Джеймса Симона © David Chipperfield Architects
Галерея Джеймса Симона © David Chipperfield Architects
Галерея Джеймса Симона © David Chipperfield Architects
Галерея Джеймса Симона © David Chipperfield Architects
Галерея Джеймса Симона © David Chipperfield Architects