Размещено на портале Архи.ру (www.archi.ru)

19.12.2018

Белый фасад, черная лестница

Нина Фролова
Объект:
Музей современного искусства MO
Адрес:
Литва, None, Вильнюс.

В центре Вильнюса построен музей современного искусства MO по проекту бюро Даниэля Либескинда.

Музей современного искусства MO. Фото © Norbert Tukaj
Музей современного искусства MO. Фото © Norbert Tukaj

Заказчиками выступила чета предпринимателей и коллекционеров – Викторас и Дангуоле Буткус. Их собрание составляют работы 226 литовских художников начиная с 1950-х до наших дней – порядка 5000 произведений живописи, графики, скульптуры, фотоискусства и видео-арта. Музей MO был спроектирован мастерской Даниэля Либескинда совместно с вильнюсскими бюро Do architects и Baltic Engineers.
 
Музей современного искусства MO. Фото © Norbert Tukaj
Музей современного искусства MO. Фото © Norbert Tukaj

Здание расположено на границе Старого города, на линии исчезнувших крепостных стен, там, где нерегулярная средневековая планировка переходит в сетку кварталов XVIII века. На месте музея раньше стоял модернистский кинотеатр Lietuva (1965), который был приобретен инициаторами проекта MO под снос.
 
Музей современного искусства MO. Фото © Hufton + Crow
Музей современного искусства MO. Фото © Hufton + Crow

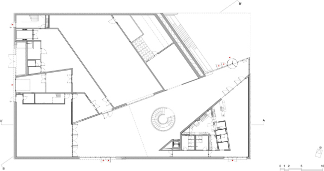
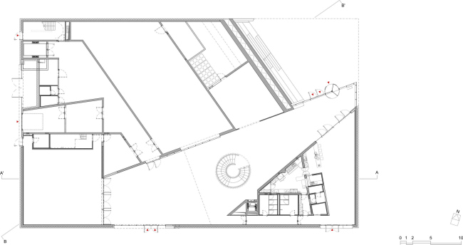
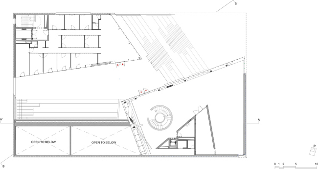
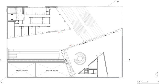
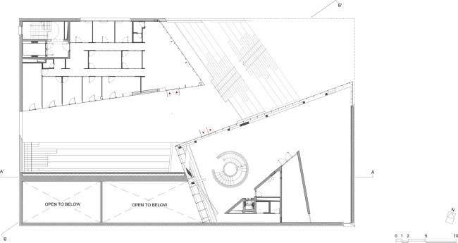
Окружение из исторической застройки определило облик музея: это блок с ярко-белыми оштукатуренными фасадами. Его прорезает открытая лестница, ведущая на террасу, которая может служить в теплое время года для публичных дискуссий или представлений. Остекленная стена связывает ее с выставочными залами. Еще одним важным общественным пространством стал сад скульптур на уровне улицы.
 
Музей современного искусства MO. Фото © Hufton + Crow
Музей современного искусства MO. Фото © Hufton + Crow

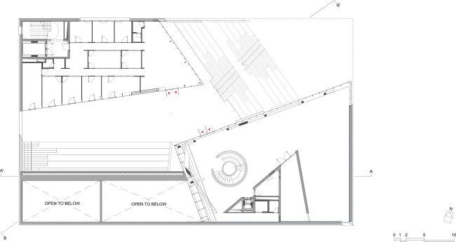
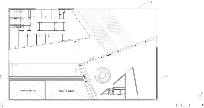
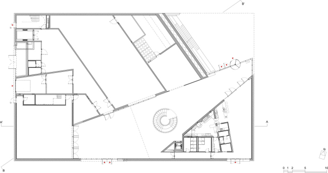
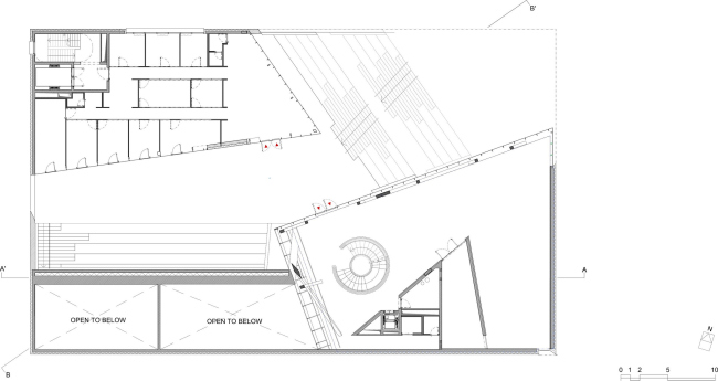
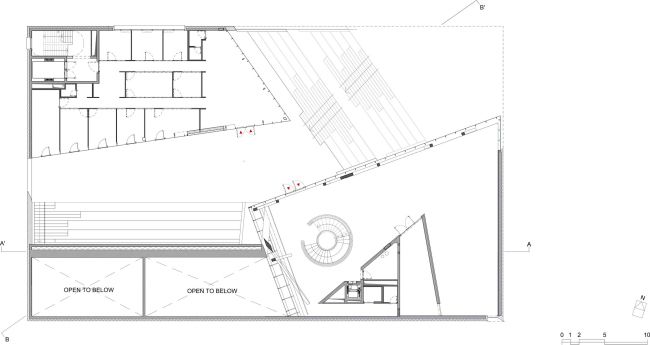
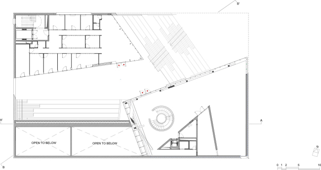
Вход в здание устроен с севера, в стеклянной стене, за которой расположен двухсветный вестибюль. Остекленные проемы в интерьере позволяют заглянуть на верхние и нижние уровни, а также в запасник; черная лестница-спираль соединяет нижний ярус вестибюля и главный выставочный зал. Общая площадь музея – 3100 м2, постоянной и временной экспозиции – 1300 м2. Также в MO есть кафе, книжный магазин, образовательный центр, аудитория, уже упомянутый запасник и административные помещения.
Музей современного искусства MO. Фото © Norbert Tukaj
Музей современного искусства MO. Фото © Norbert Tukaj
Музей современного искусства MO. Фото © Norbert Tukaj
Музей современного искусства MO. Фото © Norbert Tukaj
Музей современного искусства MO. Фото © Norbert Tukaj
Музей современного искусства MO. Фото © Norbert Tukaj
Музей современного искусства MO. Фото © Norbert Tukaj
Музей современного искусства MO. Фото © Norbert Tukaj
Музей современного искусства MO. Фото © Hufton + Crow
Музей современного искусства MO. Фото © Hufton + Crow
Музей современного искусства MO. Фото © Hufton + Crow
Музей современного искусства MO. Фото © Hufton + Crow
Музей современного искусства MO. Фото © Hufton + Crow
Музей современного искусства MO. Фото © Hufton + Crow
Музей современного искусства MO. Фото © Hufton + Crow
Музей современного искусства MO. Фото © Hufton + Crow
Музей современного искусства MO. Фото © Hufton + Crow
Музей современного искусства MO. Фото © Hufton + Crow
Музей современного искусства MO. Фото © Norbert Tukaj
Музей современного искусства MO. Фото © Norbert Tukaj
Музей современного искусства MO. Фото © Hufton + Crow
Музей современного искусства MO. Фото © Hufton + Crow
Музей современного искусства MO. Фото © Hufton + Crow
Музей современного искусства MO. Фото © Hufton + Crow
Музей современного искусства MO. Фото © Hufton + Crow
Музей современного искусства MO. Фото © Hufton + Crow
Музей современного искусства MO. Фото © Hufton + Crow
Музей современного искусства MO. Фото © Hufton + Crow
Музей современного искусства MO. Фото © Hufton + Crow
Музей современного искусства MO. Фото © Hufton + Crow
Музей современного искусства MO © Studio Libeskind
Музей современного искусства MO © Studio Libeskind
Музей современного искусства MO © Studio Libeskind
Музей современного искусства MO © Studio Libeskind
Музей современного искусства MO © Studio Libeskind
Музей современного искусства MO © Studio Libeskind
Музей современного искусства MO © Studio Libeskind
Музей современного искусства MO © Studio Libeskind
Музей современного искусства MO © Studio Libeskind
Музей современного искусства MO © Studio Libeskind
Музей современного искусства MO © Studio Libeskind
Музей современного искусства MO © Studio Libeskind
Музей современного искусства MO © Studio Libeskind
Музей современного искусства MO © Studio Libeskind
Музей современного искусства MO © Studio Libeskind
Музей современного искусства MO © Studio Libeskind