Размещено на портале Архи.ру (www.archi.ru)

14.12.2018

Живая лаборатория

Алина Измайлова
Мастерская:
Snøhetta

Snøhetta и Гарвардский университет превратили довоенный дом в Кембридже в энергоэффективный офис, способный адаптироваться к погодным условиям и смене времен года.

В то время как в развитых странах Европы время от времени появляется очередное новое энергоэффективное здание, в США решили поэкспериментировать с имеющимся жилым фондом и доказать, что современным экологическим требованиям могут соответствовать не только новые, но и старые постройки – если их «правильно» отремонтировать. Центр зеленых зданий и городов (CGBC) при Гарвардском университете инициировал проект HouseZero и в качестве опытного экземпляра взял дом, возведённый ещё до 1940-х в Кембридже, штат Массачусетс, в городе, где находится и сам вуз. CGBC превратил его в собственную штаб-квартиру с практически нулевым энергопотреблением. Более того: в течение всего срока службы здание выработает больше энергии, чем было потрачено на его создание и эксплуатацию. За архитектурную составляющую, ландшафт и интерьер отвечало бюро Snøhetta, техническую часть обеспечила норвежская компания Skanska Teknikk.

HouseZero. Фотография © Harvard Center for Green Buildings and Cities / Michael Grimm
HouseZero. Фотография © Harvard Center for Green Buildings and Cities / Michael Grimm

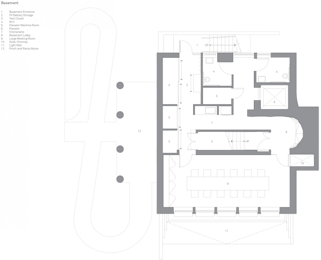
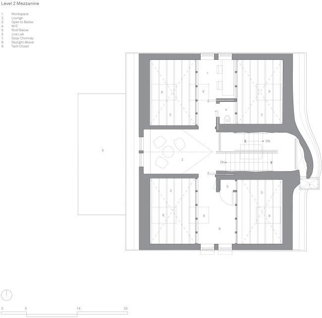
Сверхэффективность складывается из четырех компонентов и лежит на стыке передовых технологий и архитектурных решений: это на 100% естественная вентиляция, полная независимость от искусственного освещения в дневное время, нулевой выброс диоксида углерода (с учётом производства и доставки стройматериалов), а также то, что дом практически не требует дополнительных энергозатрат на отопление и охлаждение.
HouseZero. Фотография © Harvard Center for Green Buildings and Cities / Michael Grimm
HouseZero. Фотография © Harvard Center for Green Buildings and Cities / Michael Grimm

Естественная вентиляция контролируется системой привода с «умным» ПО, которая анализирует микроклимат в помещении и автоматически закрывает или открывает окна (но никто не запрещает делать это и вручную). Крыша и окна, в свою очередь, сконструированы таким образом, чтобы летом обеспечивать защиту от прямых солнечных лучей, а зимой – с их помощью прогревать помещения.
HouseZero. Фотография © Harvard Center for Green Buildings and Cities / Michael Grimm
HouseZero. Фотография © Harvard Center for Green Buildings and Cities / Michael Grimm
HouseZero. Фотография © Harvard Center for Green Buildings and Cities / Michael Grimm
HouseZero. Фотография © Harvard Center for Green Buildings and Cities / Michael Grimm

Отопление и охлаждение дома осуществляется через геотермальные скважины. Солнечные термальные панели на крыше дают офису горячую воду и при необходимости могут переключаться в режим обогрева определённых зон. Фотоэлектрическая черепица на крыше обеспечивает необходимый минимум электроэнергии, избыток которой хранится в батареях, установленных в туалете. На заднем дворе на месте бывшей парковки – «дождевой сад», там собираются ливневые воды.
HouseZero. Фотография © Harvard Center for Green Buildings and Cities / Michael Grimm
HouseZero. Фотография © Harvard Center for Green Buildings and Cities / Michael Grimm

Все используемые материалы – доступные, с высокой производительностью, благотворно влияющие на качество воздуха. Для отделки экспериментального дома использовались местные сорта древесины, штукатурка из натуральной глины, кирпич и гранит (то и другое – вторсырьё); всё – с минимальной обработкой.
HouseZero. Фотография © Harvard Center for Green Buildings and Cities / Michael Grimm
HouseZero. Фотография © Harvard Center for Green Buildings and Cities / Michael Grimm
HouseZero. Фотография © Harvard Center for Green Buildings and Cities / Michael Grimm
HouseZero. Фотография © Harvard Center for Green Buildings and Cities / Michael Grimm

HouseZero выступает одновременно и как реально действующий офис, и как инструмент для исследования, своего рода живая лаборатория: в здание встроено 285 датчиков, которые ежедневно делают почти 17 миллионов замеров. Авторы проекта считают, что анализ этих данных поможет усовершенствовать инфраструктуру прототипа, а в долгосрочной перспективе – более эффективно проектировать и эксплуатировать дома.
HouseZero. Фотография © Harvard Center for Green Buildings and Cities / Michael Grimm
HouseZero. Фотография © Harvard Center for Green Buildings and Cities / Michael Grimm

Ещё до Парижского соглашения 2015 года было понятно, что строительная отрасль колоссально влияет на глобальное изменение климата. В США, в частности, этот сектор потребляет примерно 40% всего объема энергоресурсов, причём около четверти приходится на жилые здания. При этом собственники ежегодно тратят более 230 млрд долларов на обогрев, охлаждение, снабжение энергией своих жилищ. «HouseZero демонстрирует, как решить эту проблему путем оптимизации существующих технологий и достичь беспрецедентной производительности здания», – объясняет директор CGBC Али Малкави (Ali Malkawi). Со временем, можно надеяться, исследование может значительно уменьшить воздействие строительной индустрии на окружающую среду.
HouseZero. Фотография © Harvard Center for Green Buildings and Cities / Michael Grimm
HouseZero. Фотография © Harvard Center for Green Buildings and Cities / Michael Grimm
HouseZero. Фотография © Harvard Center for Green Buildings and Cities / Michael Grimm
HouseZero. Фотография © Harvard Center for Green Buildings and Cities / Michael Grimm
HouseZero. Фотография © Harvard Center for Green Buildings and Cities / Michael Grimm
HouseZero. Фотография © Harvard Center for Green Buildings and Cities / Michael Grimm
HouseZero. Фотография © Harvard Center for Green Buildings and Cities / Michael Grimm
HouseZero. Фотография © Harvard Center for Green Buildings and Cities / Michael Grimm
HouseZero. Фотография © Harvard Center for Green Buildings and Cities / Michael Grimm
HouseZero. Фотография © Harvard Center for Green Buildings and Cities / Michael Grimm
HouseZero. Фотография © Harvard Center for Green Buildings and Cities / Michael Grimm
HouseZero. Фотография © Harvard Center for Green Buildings and Cities / Michael Grimm
HouseZero. Фотография © Harvard Center for Green Buildings and Cities / Michael Grimm
HouseZero. Фотография © Harvard Center for Green Buildings and Cities / Michael Grimm
HouseZero. Фотография © Harvard Center for Green Buildings and Cities / Michael Grimm
HouseZero. Фотография © Harvard Center for Green Buildings and Cities / Michael Grimm
HouseZero. Фотография © Harvard Center for Green Buildings and Cities / Michael Grimm
HouseZero. Фотография © Harvard Center for Green Buildings and Cities / Michael Grimm
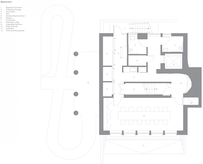
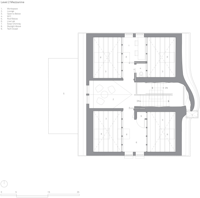
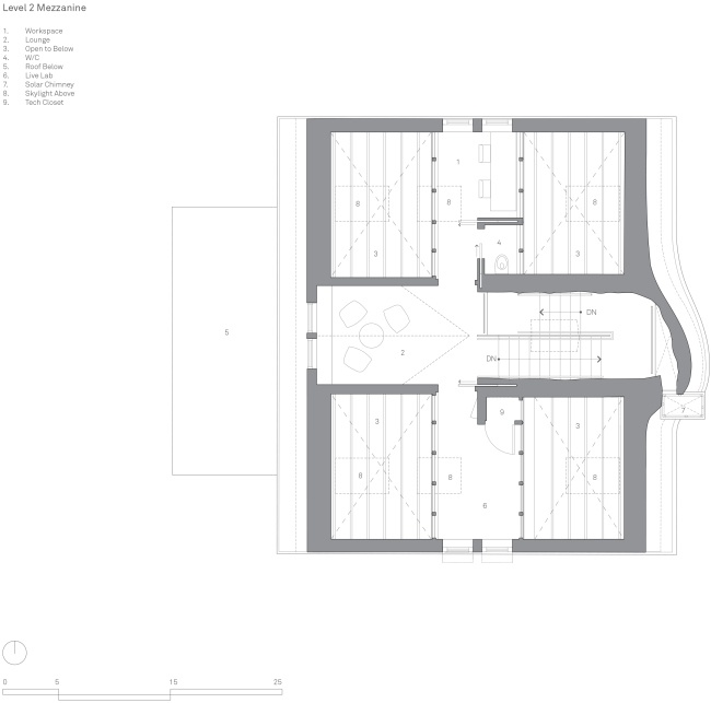
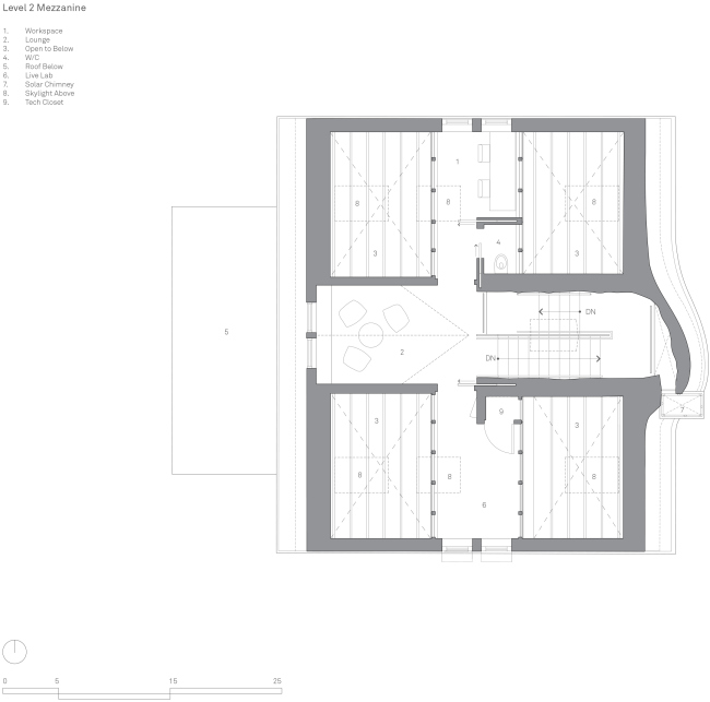
HouseZero. Изображение © Snøhetta
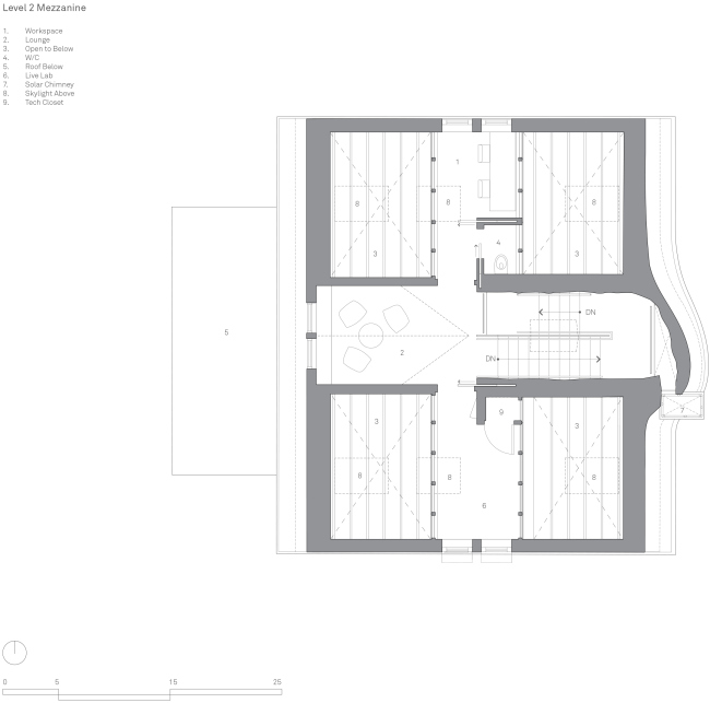
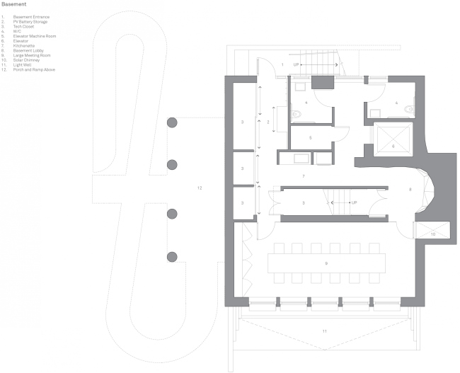
HouseZero. Изображение © Snøhetta
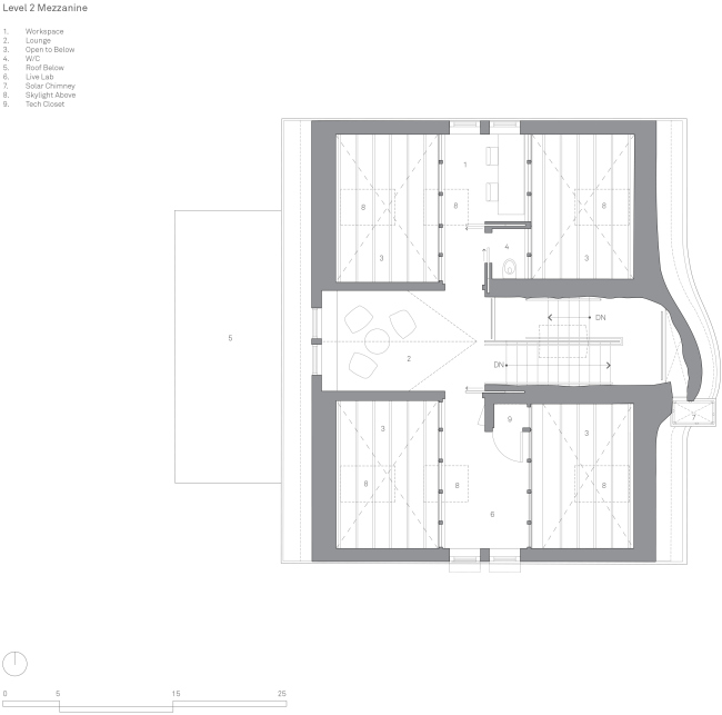
HouseZero. Изображение © Snøhetta
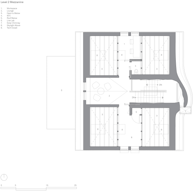
HouseZero. Изображение © Snøhetta
HouseZero. Изображение © Snøhetta
HouseZero. Изображение © Snøhetta
HouseZero. Изображение © Snøhetta
HouseZero. Изображение © Snøhetta
HouseZero. Изображение © Snøhetta
HouseZero. Изображение © Snøhetta
HouseZero. Изображение © Snøhetta
HouseZero. Изображение © Snøhetta
HouseZero. Изображение © Snøhetta
HouseZero. Изображение © Snøhetta
HouseZero. Изображение © Snøhetta
HouseZero. Изображение © Snøhetta
HouseZero. Изображение © Snøhetta
HouseZero. Изображение © Snøhetta
HouseZero. Изображение © Snøhetta
HouseZero. Изображение © Snøhetta