Размещено на портале Архи.ру (www.archi.ru)

19.12.2018

Дворянское гнездо XXI века

Юлия Шишалова
Объект:
ЖК «Воробьев дом»
Адрес:
Россия, Москва. Воробьевское шоссе, 4, 4а
Архитектор:
Андрей Романов
Екатерина Кузнецова
Мастерская:
ADM
Larta Glass Ramenskoe

Построенный бюро ADM жилой комплекс на Воробьевых горах, будучи абсолютно современным по духу, дышит благородством в каждой детали, наследуя истории заповедного московского района.

ЖК «Воробьев дом». Фотография © ADM
ЖК «Воробьев дом». Фотография © ADM

Воробьевское шоссе, протекая между двух рек и двух улиц – Косыгина и Бережковской набережной, – продолжает традиции этих мест: некогда здесь стояли княжеские усадьбы, после – дома академиков и ученых. А сегодня селятся те, кто ищет уютного убежища респектабельной «дачной» жизни фактически в центре мегаполиса. С одной стороны, у тебя кругом зелень и вода, а с другой – главные открыточные виды на Москву, которыми в свое время любовались Наполеон и булгаковский Воланд.

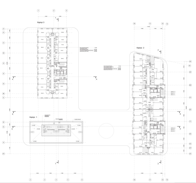
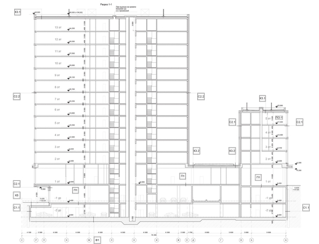
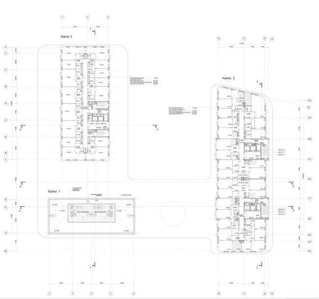
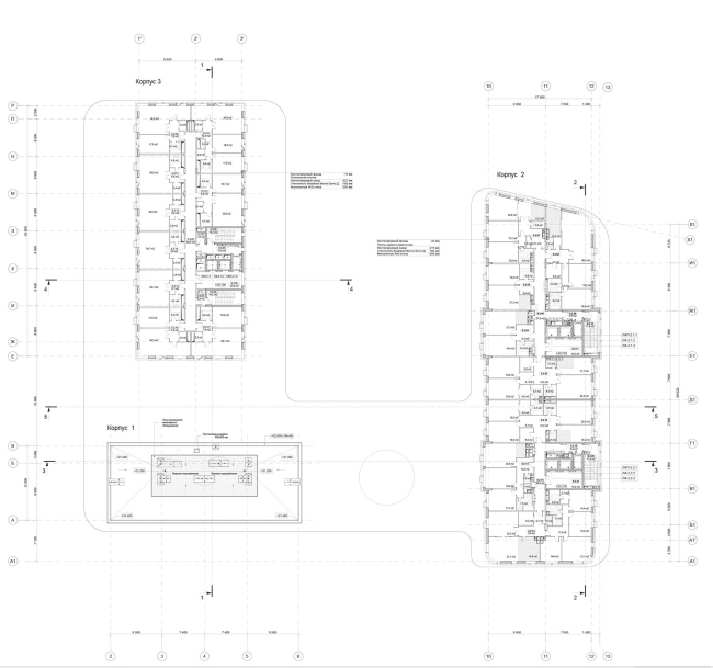
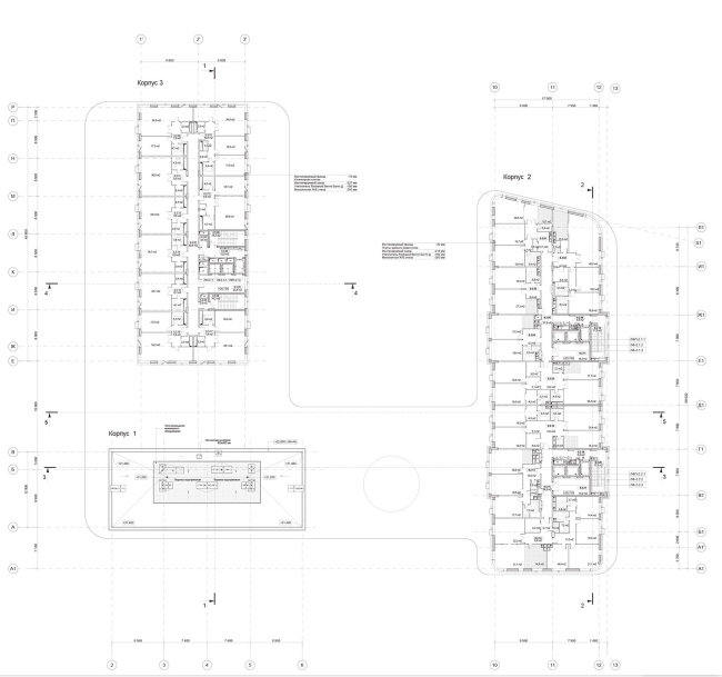
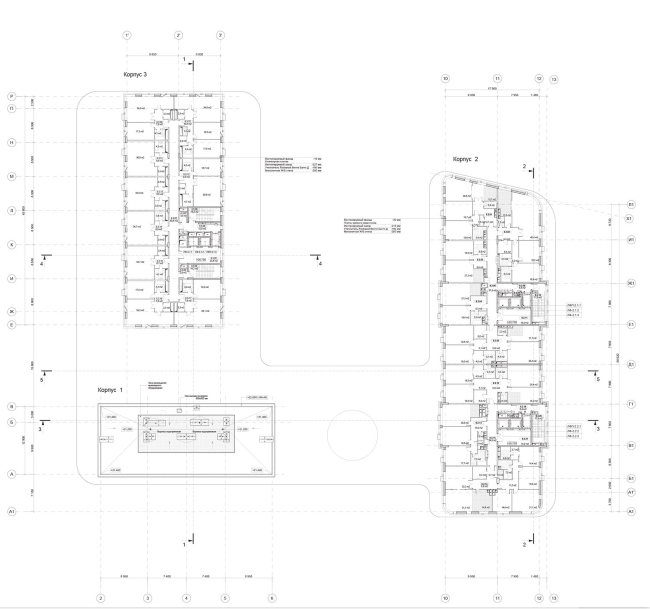
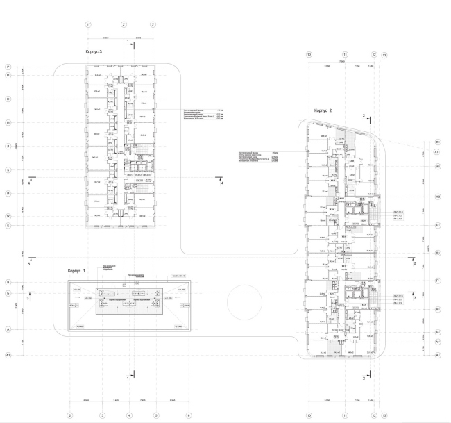
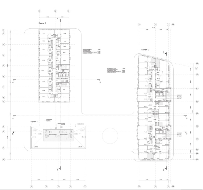
Особенность участка, где построили жилой комплекс «Воробьев дом», помимо расположения на самой границе с природным заказником и спуском к реке Сетунь, – в том, что юридически участка было два, и их объединение заставило бы отложить проект на долгое время. Это частично определило компоновку комплекса: на участке меньшей площади 0,06 га появился самый компактный из трех, пятиэтажный корпус, а на участке около 0,8 га – еще два жилых здания, одно с квартирами, другое с апартаментами, высотой 13 и 16 этажей. Объединение этих трех корпусов проницаемым козырьком-стилобатом очертило плато двора и раскрыло его на зеленый массив и реку, развернув к ним лицом весь комплекс.
ЖК «Воробьев дом». Фотография © ADM
ЖК «Воробьев дом». Фотография © ADM
ЖК «Воробьев дом». Фотография © ADM
ЖК «Воробьев дом». Фотография © ADM

Впрочем, идея взять сомасштабный человеку уровень комплекса под козырек позволила архитекторам совершить гораздо более впечатляющий разворот проекта – от уровня рядовой многоэтажной застройки к жилью, отмеченному упомянутым благородством и аристократическим изяществом. Они заложены и в пропорциях и рисунке расположения опор-пропилей; и в деревянной обшивке с внутренней стороны – там, где ее фактура лучше всего воспринимается глазом и в буквальном смысле укрывает теплом; и в прорезающих эту обшивку идеально круглых «окнах», которые оказываются то эффектными светильниками, то обрамлениями для деревьев; и в самой конфигурации козырька и организации подъезда к домам: навес повторяет контуры разворотного круга, на который выходят подъезды всех трех корпусов, и вместе они образуют парадный въезд, как в дорогих отелях. Водитель подъезжает, высаживает пассажира и уезжает – либо прочь, либо в зону двухуровневой подземной стоянки. Наземная парковка тоже есть, но очень компактная и платная, рассчитанная лишь на кратковременное ожидание – как возле тех же отелей или вокзалов.
ЖК «Воробьев дом». Фотография © ADM
ЖК «Воробьев дом». Фотография © ADM
ЖК «Воробьев дом». Фотография © ADM
ЖК «Воробьев дом». Фотография © ADM
ЖК «Воробьев дом». Фотография © ADM
ЖК «Воробьев дом». Фотография © ADM
ЖК «Воробьев дом». Фотография © ADM
ЖК «Воробьев дом». Фотография © ADM
ЖК «Воробьев дом». Фотография © ADM
ЖК «Воробьев дом». Фотография © ADM

Таким образом, двор полностью освобожден от машин, – небольшой по площади, он удивительным образом насыщен и разнообразен. Архитекторы намеренно воссоздали характерные для местного рельефа перепады и высадили в холмах деревья, а в нишах, сверху похожих на гигантские валуны (авторы в шутку называют их «яйцами Фаберже») и вымощенных кропотливо подобранной по цветам гранитной мозаикой (еще одна мелкоформатная, но без промаха срабатывающая благородная деталь), устроили зоны спокойного и активного отдыха, включая круговые деревянные скамьи – кадки для деревьев и газона, и детскую площадку такой же обтекаемой формы, что и остальные ниши, с ярким практичным резиновым покрытием.
ЖК «Воробьев дом». Фотография © ADM
ЖК «Воробьев дом». Фотография © ADM
ЖК «Воробьев дом». Фотография © ADM
ЖК «Воробьев дом». Фотография © ADM
ЖК «Воробьев дом». Фотография © ADM
ЖК «Воробьев дом». Фотография © ADM
ЖК «Воробьев дом». Фотография © ADM
ЖК «Воробьев дом». Фотография © ADM
ЖК «Воробьев дом». Фотография © ADM
ЖК «Воробьев дом». Фотография © ADM
ЖК «Воробьев дом». Фотография © ADM
ЖК «Воробьев дом». Фотография © ADM
ЖК «Воробьев дом». Фотография © ADM
ЖК «Воробьев дом». Фотография © ADM
ЖК «Воробьев дом». Фотография © ADM
ЖК «Воробьев дом». Фотография © ADM
ЖК «Воробьев дом». Фотография © ADM
ЖК «Воробьев дом». Фотография © ADM

Сюда же, во двор, выходит приподнятая на основании площадка с балюстрадой и еще одним козырьком, придавшая четырем квартирам на первом этаже 16-тиэтажного корпуса совершенно новое качество: у их жильцов есть собственные террасы – можно устраивать «дачные» чаепития. Остальные же первые этажи нежилые: здесь располагаются вестибюли, административные помещения, в одном из корпусов – детский центр. А если смотреть на комплекс со стороны лесного массива и реки Сетунь, то виден ряд будто вросших в холм помещений для магазинов – и вряд ли кто-то догадается, что таким образом архитекторы оформили фасад подземного паркинга.
ЖК «Воробьев дом». Фотография © ADM
ЖК «Воробьев дом». Фотография © ADM

Вообще, в зависимости от угла зрения, вскрываются все новые слои. При том же взгляде сверху, естественном для большинства обитателей комплекса, хорошо видно, что крыша стилобата – хотя ее и не удалось сделать зеленой, как предполагалось сначала, – стала органичной частью ландшафтного решения и отмечена характерными мозаичными «поясами».
ЖК «Воробьев дом». Фотография © ADM
ЖК «Воробьев дом». Фотография © ADM

Разворачиваемся на 90 градусов и устремляем взор на фасады: если с таким тщанием подбирались оттенки гранита для ландшафта, то что уж говорить о них. Материалы – как положено, исключительно благородные и в некотором роде «исконно московские»: белый камень, красный кирпич, дерево (точнее, тонкие керамические панели, его имитирующие). Впрочем, в список пристрастно выбранных материалов было бы справедливо включить и стекло. Например, на углах 16-тиэтажного корпуса, откуда открываются самые роскошные виды, стекла – гнутые моллированные, дабы получились полноценные панорамные окна. И их обрамляют сверху и снизу опять-таки каменные пояса: чтобы этого добиться, камень выпиливали по кругу. В сочетании с карнизом, фигурно завершающим жилые этажи, появляется в облике этого дома что-то неуловимо роднящее его с монументальной архитектурой домов академиков на Косыгина.
ЖК «Воробьев дом». Фотография © ADM
ЖК «Воробьев дом». Фотография © ADM
ЖК «Воробьев дом». Фотография © ADM
ЖК «Воробьев дом». Фотография © ADM
ЖК «Воробьев дом». Фотография © ADM
ЖК «Воробьев дом». Фотография © ADM
ЖК «Воробьев дом». Фотография © ADM
ЖК «Воробьев дом». Фотография © ADM
ЖК «Воробьев дом». Фотография © ADM
ЖК «Воробьев дом». Фотография © ADM

В корпусе пониже, где камень щедро разбавлен кирпичом, угловые стекла тоже непростые – не гнутые, но без перемычки, чтобы ничто не мешало обзору.

Но соль – в том, как элементы из всех этих материалов сочетаются между собой. ADM можно без преувеличения назвать гениями фасадной пластики: они умудряются сделать поверхность такой же насыщенной и разнообразной, пластичной и динамичной, каким может быть, кажется, только ландшафт какого-нибудь суперсовременного парка (хотя ADM, как мы видим, удается сделать его мини-модель и в пространстве обычного двора). Сбитый ритм сплошных и остекленных поверхностей, неожиданные вставки из альтернативных материалов, ниши и экраны-решетки для кондиционеров, рифленая поверхность камня – эта сложносочиненная, но кажущаяся естественной многослойность снова наводит на мысли о, с одной стороны, с любовью и заботой свитом «гнезде», а с другой – о чем-то, что формировалось годами, впитывая в себя черты и приметы предыдущих поколений.
ЖК «Воробьев дом». Фотография © ADM
ЖК «Воробьев дом». Фотография © ADM
ЖК «Воробьев дом». Фотография © ADM
ЖК «Воробьев дом». Фотография © ADM
ЖК «Воробьев дом». Фотография © ADM
ЖК «Воробьев дом». Фотография © ADM
ЖК «Воробьев дом». Фотография © ADM
ЖК «Воробьев дом». Фотография © ADM
ЖК «Воробьев дом». Фотография © ADM
ЖК «Воробьев дом». Фотография © ADM
ЖК «Воробьев дом». Фотография © ADM
ЖК «Воробьев дом». Фотография © ADM

Так что рекламный слоган комплекса «Видно лучшее» – он и про архитектуру тоже. Потому как это настоящий аттракцион для глаза – вполне сопоставимый по зрелищности, если приглядеться, с каноническими панорамами Москвы из окон.
ЖК «Воробьев дом» © ADM
ЖК «Воробьев дом» © ADM
ЖК «Воробьев дом» © ADM
ЖК «Воробьев дом» © ADM
ЖК «Воробьев дом» © ADM
ЖК «Воробьев дом» © ADM
ЖК «Воробьев дом» © ADM
ЖК «Воробьев дом» © ADM