Размещено на портале Архи.ру (www.archi.ru)

06.12.2018

Смена функции: из «работы» в «жилье»

Нина Фролова
Объект:
Многоквартирный дом Paxton House
Адрес:
Великобритания, None, Лондон.
Мастерская:
alma-nac

Офисный корпус 1960-х в лондонском районе Кройдон архитекторы alma-nac превратили в дом на 43 квартиры.

Многоквартирный дом Paxton House. Фото © Jack Hobhouse
Многоквартирный дом Paxton House. Фото © Jack Hobhouse

Перестройка и расширение заброшенного офисного здания 1960-х с железобетонным каркасом в многоквартирный дом – очень актуальный проект в свете острого жилищного кризиса в Лондоне; не всегда востребованные нежилые помещения в ходе подобных трансформаций можно превращать в сравнительно доступное жилье.
 
Вверху – исходное офисное здание. Внизу – многоквартирный дом Paxton House. Фото © Jack Hobhouse
Вверху – исходное офисное здание. Внизу – многоквартирный дом Paxton House. Фото © Jack Hobhouse

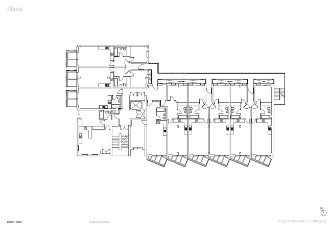
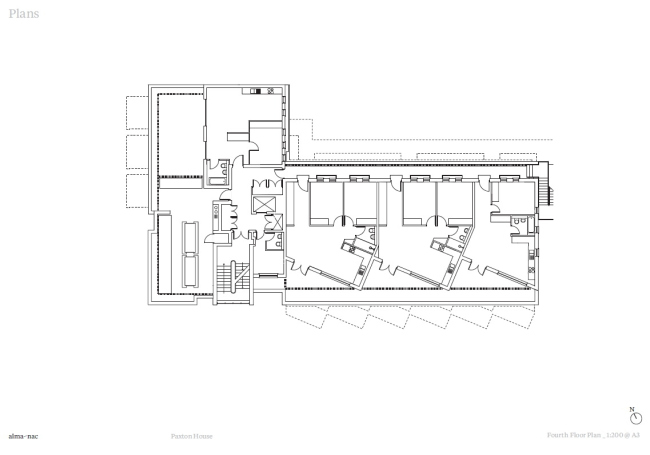
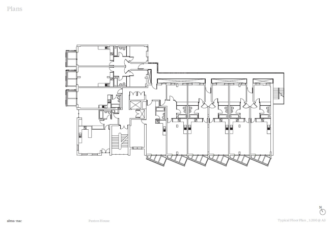
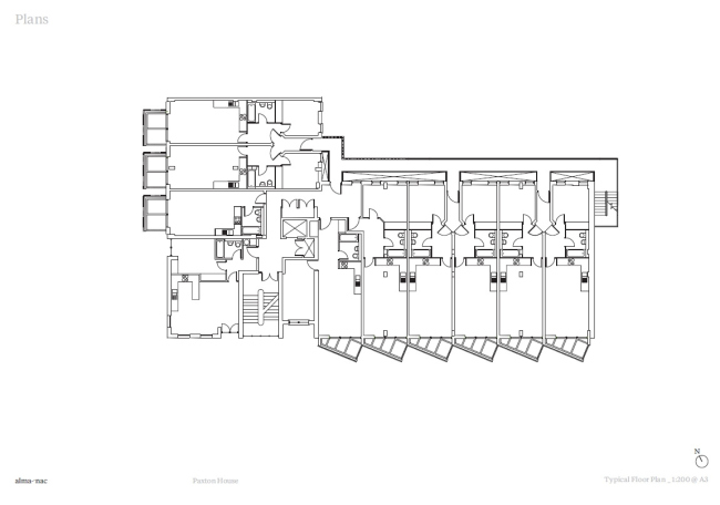
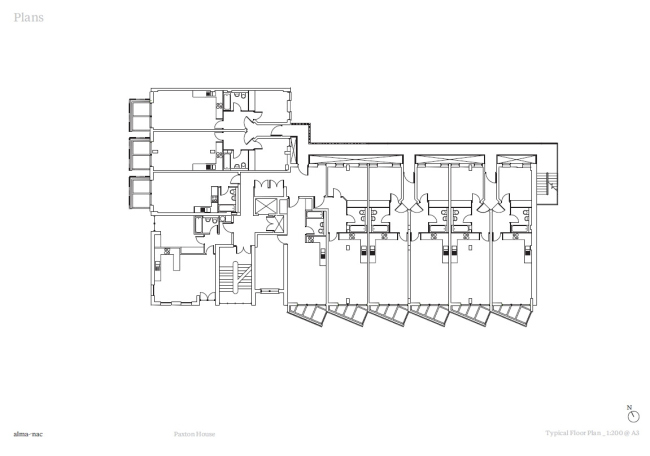
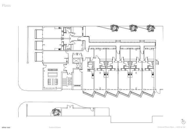
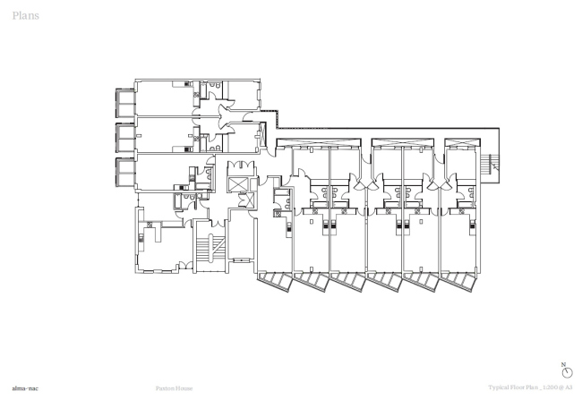
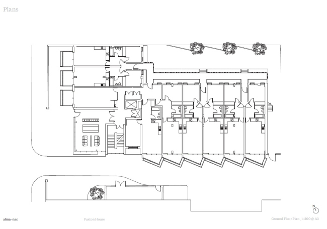
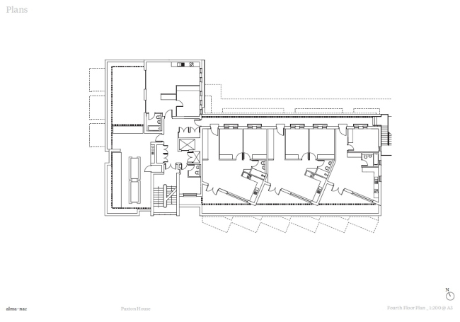
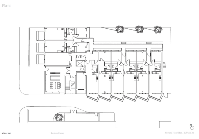
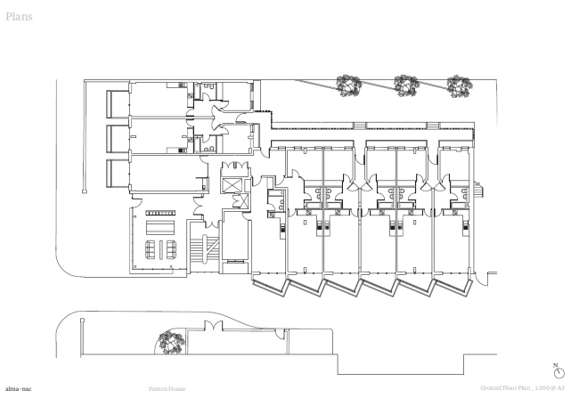
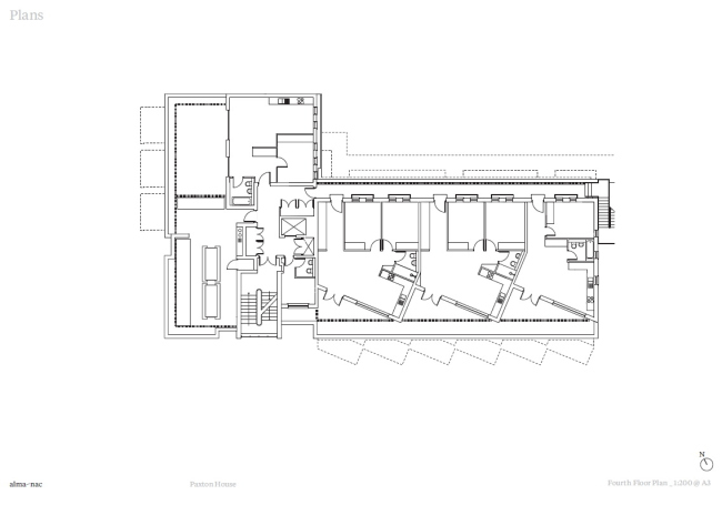
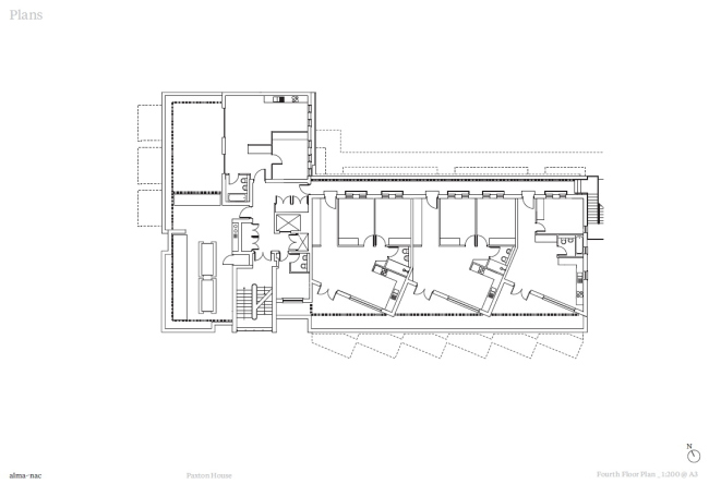
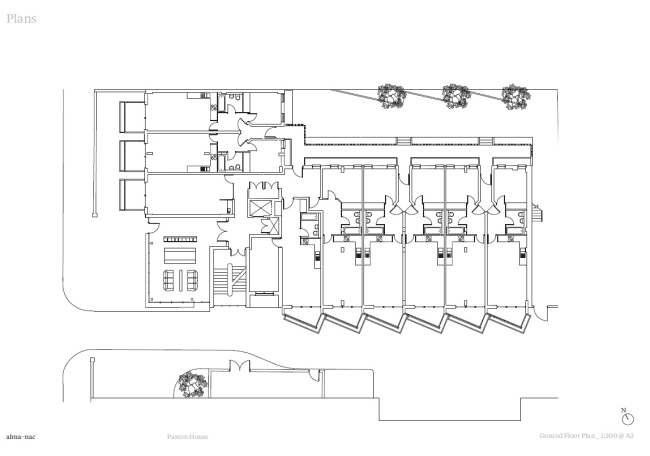
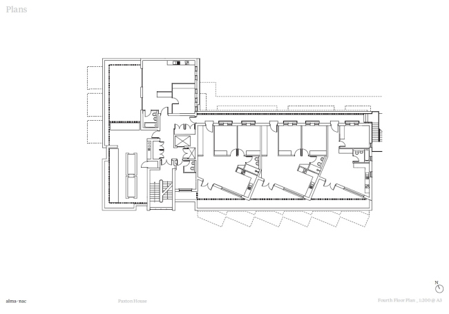
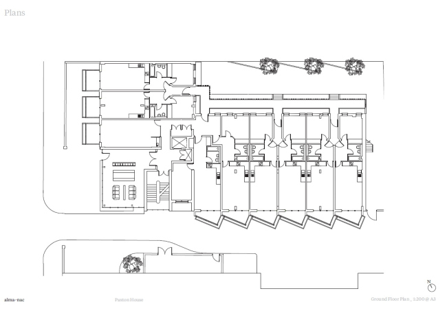
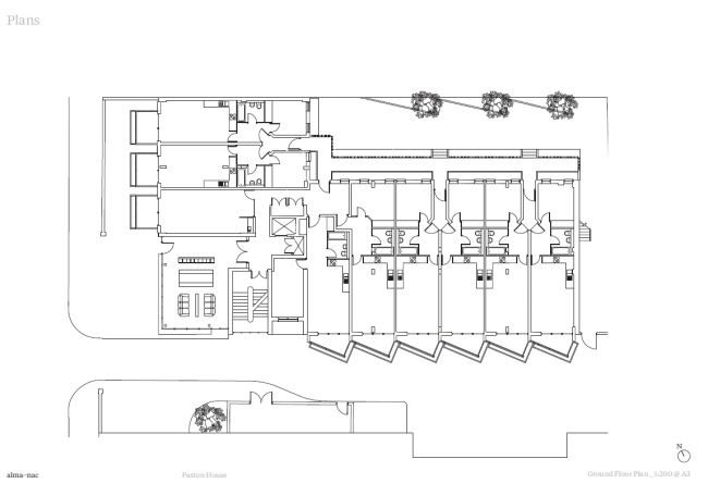
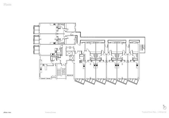
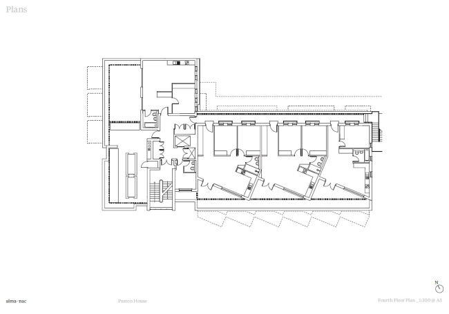
Особенность проекта в том, что его авторы, бюро alma-nac, отказались от коридорной системы: вместо нее они использовали галереи по северному фасаду. Там же проложили коммуникации, в результате увеличив высоту потолков в квартирах (техническое пространство там было уже излишним). Чтобы заглушить шаги на галереях, архитекторы придумали покрыть их полы резиновой крошкой, как на детской площадке. При движении там и в других общественных пространствах в темное время суток включаются светодиоды, однако при этом они никак не освещают квартиры: об этом специально позаботились.




Видео © Peter Landers

Многоквартирный дом Paxton House. Фото © Jack Hobhouse
Многоквартирный дом Paxton House. Фото © Jack Hobhouse

Благодаря планировке без внутреннего коридора все квартиры открыты на оба фасада, там обеспечено сквозное проветривание. Жилые комнаты и балконы обращены на юг и юго-запад. Балконы помещены под углом, что защищает их от взглядов соседей и прохожих. Галереи и балконы получили ограждение из ацетилированной древесины, фасады покрыты панелями из стеклофибробетона, использована также нержавеющая сталь.
 
Многоквартирный дом Paxton House. Фото © Jack Hobhouse
Многоквартирный дом Paxton House. Фото © Jack Hobhouse

Квартиры размещены парами, у них общий холл, что делает планировку более эффективной, а также способствует общению жильцов. Той же цели служат «коммунальные» помещения: гостиная на первом этаже, отделенная от вестибюля блоком почтовых ящиков из кирпича и фанеры (архитекторы уделили немало внимания деталям интерьера) и озелененная терраса для отдыха и барбекю. Еще один общий для всех ресурс – «запасная» спальня/рабочий кабинет. Этот блок архитекторы превратили в упражнение на тему микро-жилья: на 11,75 м2 есть двуспальная кровать, кухонный уголок, жилое пространство, кладовка и ванная.
 
Многоквартирный дом Paxton House. Фото © Jack Hobhouse
Многоквартирный дом Paxton House. Фото © Jack Hobhouse

В доме преобладают квартиры с одной спальней, но есть также три студии и три квартиры с двумя спальнями. Бюджет составил 5,1 млн фунтов, общая площадь здания после реконструкции – 2495 м2.
Многоквартирный дом Paxton House. Вестибюль и общая гостиная. Фото © Jack Hobhouse
Многоквартирный дом Paxton House. Вестибюль и общая гостиная. Фото © Jack Hobhouse
Многоквартирный дом Paxton House. Фото © Jack Hobhouse
Многоквартирный дом Paxton House. Фото © Jack Hobhouse
Многоквартирный дом Paxton House. Фото © Jack Hobhouse
Многоквартирный дом Paxton House. Фото © Jack Hobhouse
Многоквартирный дом Paxton House. Фото © Jack Hobhouse
Многоквартирный дом Paxton House. Фото © Jack Hobhouse
Многоквартирный дом Paxton House © alma-nac
Многоквартирный дом Paxton House © alma-nac
Многоквартирный дом Paxton House © alma-nac
Многоквартирный дом Paxton House © alma-nac
Многоквартирный дом Paxton House © alma-nac
Многоквартирный дом Paxton House © alma-nac
Многоквартирный дом Paxton House © alma-nac
Многоквартирный дом Paxton House © alma-nac
Многоквартирный дом Paxton House © alma-nac
Многоквартирный дом Paxton House © alma-nac
Многоквартирный дом Paxton House © alma-nac
Многоквартирный дом Paxton House © alma-nac
Многоквартирный дом Paxton House © alma-nac
Многоквартирный дом Paxton House © alma-nac
Многоквартирный дом Paxton House © alma-nac
Многоквартирный дом Paxton House © alma-nac
Многоквартирный дом Paxton House © alma-nac
Многоквартирный дом Paxton House © alma-nac
Многоквартирный дом Paxton House © alma-nac
Многоквартирный дом Paxton House © alma-nac
Многоквартирный дом Paxton House © alma-nac
Многоквартирный дом Paxton House © alma-nac