Размещено на портале Архи.ру (www.archi.ru)

05.12.2018

Парчовый узор

Нина Фролова
Объект:
Нанкинский международный юношеский культурный центр
Адрес:
Китай, None, Нанкин.
Мастерская:
Zaha Hadid Architects

Конференц-центр с двумя башнями на 1300 гостиничных номеров в Нанкине по проекту Zaha Hadid Architects.

Нанкинский международный юношеский культурный центр. Фото © Hufton+Crow
Нанкинский международный юношеский культурный центр. Фото © Hufton+Crow

Международный юношеский культурный центр был изначально построен к летним Юношеским Олимпийским играм, которые в 2014 прошли в Нанкине. В 2018 он полностью перешел в режим «наследия», то есть в схему пост-спортивного использования: в нем открылась 5-звездочная гостиница сети Jumeirah Hotels на 300 номеров. Гостиница заняла верхнюю часть (с 41-го по 68-й этаж) 315-метровой башни, которая при этом – самый высокий небоскреб, построенный на сегодняшний день Zaha Hadid Architects. Ниже там расположены офисы, а соседнее, 255-метровое, здание вмещает 1000 номеров отеля «4 звезды», рассчитанного на гостей конференц-центра. Размер участка – 5,2 га, общая площадь комплекса – 465 тыс. м2, из них 100 000 м2 – подземные помещения.
 
Нанкинский международный юношеский культурный центр. Фото © Hufton+Crow
Нанкинский международный юношеский культурный центр. Фото © Hufton+Crow

Конференц-центр сглаживает, по замыслу авторов, переход от горизонтального ландшафта – парка на берегу Янцзы – к высотным зданиям. В нем размещены конференц-зал (2100 мест), концертный зал (500 зрителей) и многофункциональный зал, переговорные и другие меньшие залы, ресторан, магазины. Назначение постройки – служить, помимо прочего, местом проведения ежегодных партийных съездов провинции Цзянсу. Четыре ключевые части центра на уровне земли разделены, позволяя проходить под ним; выше они сливаются в сложную форму, которую архитекторы сравнивают с узором парчи юньцзинь, которую уже много веков ткут в Нанкине, а также с каллиграфией. Стальной несущий каркас дополнен железобетоном, в интерьере использованы армированные стекловолокном гипсокартонные панели.
 
Нанкинский международный юношеский культурный центр. Фото © Hufton+Crow
Нанкинский международный юношеский культурный центр. Фото © Hufton+Crow

Zaha Hadid Architects участвовали в закрытом конкурсе на проект комплекса в 2011, когда до Юношеской Олимпиады оставалось совсем немного времени. Ситуацию усугубляло строительство рядом с участком двух тоннелей и пешеходного моста через Янцзы, ведущего на остров Цзянсиньчжоу – важную рекреационную зону. В тот момент вокруг создавались олимпийские объекты, но вообще эта территория – так называемый Новый город Хэси – включает и Центральный деловой район, и парки, и жилую застройку, что должно обеспечить ей развитие и после Игр.
 
Нанкинский международный юношеский культурный центр. Фото © Hufton+Crow
Нанкинский международный юношеский культурный центр. Фото © Hufton+Crow

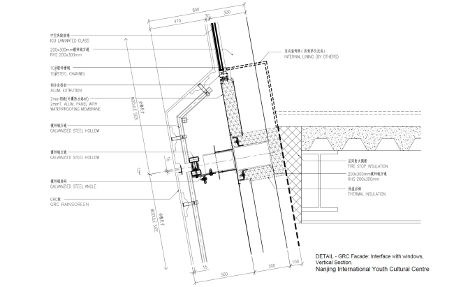
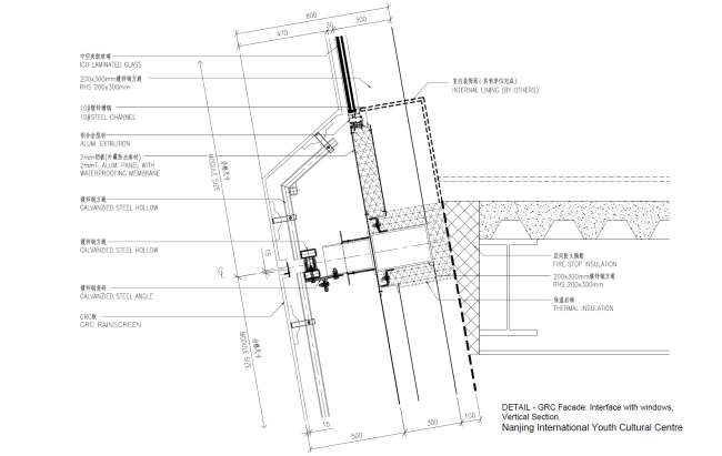
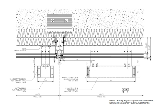
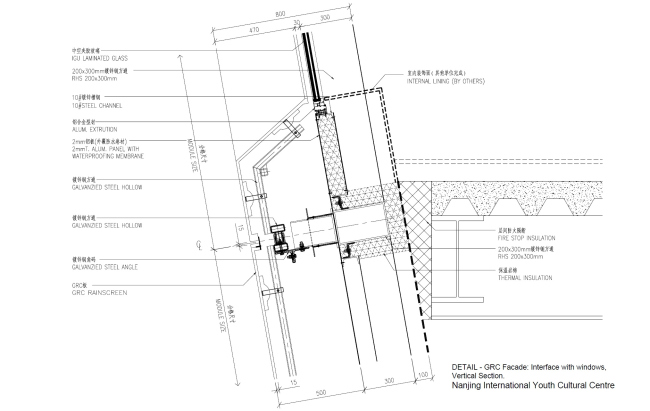
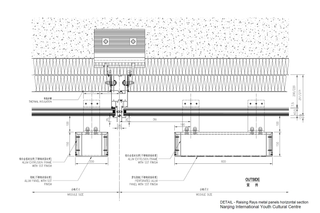
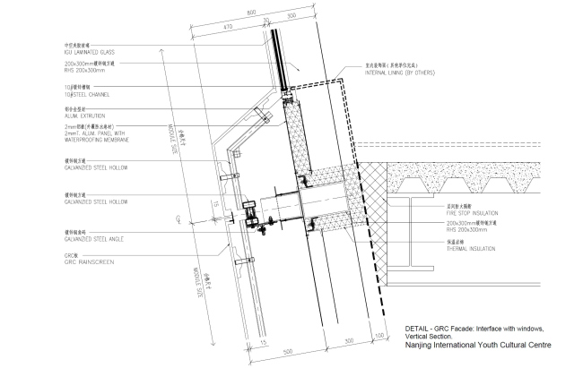
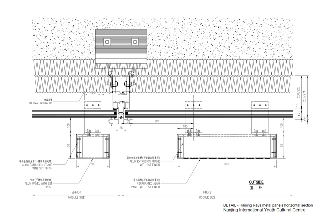
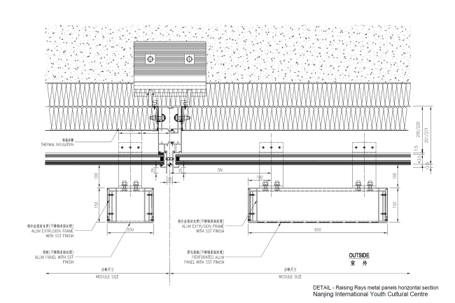
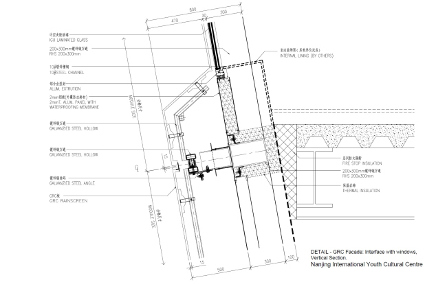
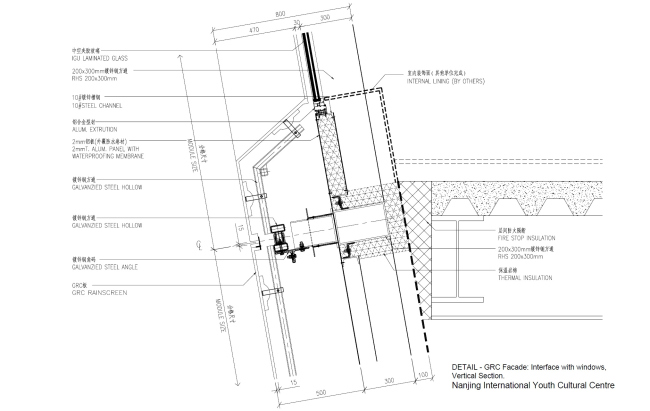
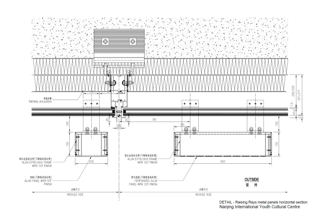
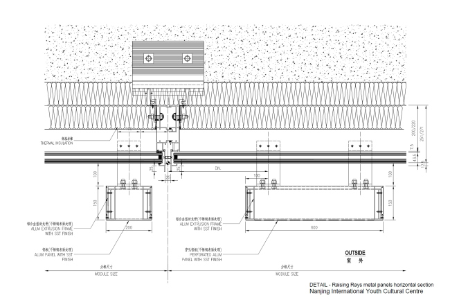
Нехватка времени и активное строительство вокруг заставило одновременно проектировать и строить Международный юношеский центр: от момента получения ZHA заказа до его открытия в «спортивном» качестве прошло 34 месяца, собственно работы на площадке заняли полтора года. Сооружение строилось одновременно сверху вниз и снизу вверх, потому что его подземная часть достигает значительных размеров. За полгода понадобилось вбить 717 буронабивных свай, всего свай было 6235, из них более половины – стальные. Фасады выполнены из более чем 12 тысяч панелей стеклофибробетона (2 х 3 метра). Несмотря на их «параметрический» профиль, строительство удалось вести быстро благодаря использованию архитекторами и подрядчиками одних и тех же программ, позволявших сразу же по получении очередной порции чертежей изготовлять опалубку необходимой формы цифровым методом. Время также экономила BIM-модель.
Нанкинский международный юношеский культурный центр. Фото © Hufton+Crow
Нанкинский международный юношеский культурный центр. Фото © Hufton+Crow
Нанкинский международный юношеский культурный центр. Фото © Hufton+Crow
Нанкинский международный юношеский культурный центр. Фото © Hufton+Crow
Нанкинский международный юношеский культурный центр. Фото © Hufton+Crow
Нанкинский международный юношеский культурный центр. Фото © Hufton+Crow
Нанкинский международный юношеский культурный центр. Фото © Zaha Hadid Architects
Нанкинский международный юношеский культурный центр. Фото © Zaha Hadid Architects
Нанкинский международный юношеский культурный центр. Фото © Hufton+Crow
Нанкинский международный юношеский культурный центр. Фото © Hufton+Crow
Нанкинский международный юношеский культурный центр. Фото © Hufton+Crow
Нанкинский международный юношеский культурный центр. Фото © Hufton+Crow
Нанкинский международный юношеский культурный центр. Фото © Hufton+Crow
Нанкинский международный юношеский культурный центр. Фото © Hufton+Crow
Нанкинский международный юношеский культурный центр. Фото © Hufton+Crow
Нанкинский международный юношеский культурный центр. Фото © Hufton+Crow
Нанкинский международный юношеский культурный центр. Фото © Hufton+Crow
Нанкинский международный юношеский культурный центр. Фото © Hufton+Crow
Нанкинский международный юношеский культурный центр. Фото © Hufton+Crow
Нанкинский международный юношеский культурный центр. Фото © Hufton+Crow
Нанкинский международный юношеский культурный центр. Фото © Hufton+Crow
Нанкинский международный юношеский культурный центр. Фото © Hufton+Crow
Нанкинский международный юношеский культурный центр. Фото © Hufton+Crow
Нанкинский международный юношеский культурный центр. Фото © Hufton+Crow
Нанкинский международный юношеский культурный центр. Фото © Hufton+Crow
Нанкинский международный юношеский культурный центр. Фото © Hufton+Crow
Нанкинский международный юношеский культурный центр. Фото © Jumeirah Hotels
Нанкинский международный юношеский культурный центр. Фото © Jumeirah Hotels
Нанкинский международный юношеский культурный центр. Фото © Jumeirah Hotels
Нанкинский международный юношеский культурный центр. Фото © Jumeirah Hotels
Нанкинский международный юношеский культурный центр © Zaha Hadid Architects
Нанкинский международный юношеский культурный центр © Zaha Hadid Architects
Нанкинский международный юношеский культурный центр © Zaha Hadid Architects
Нанкинский международный юношеский культурный центр © Zaha Hadid Architects
Нанкинский международный юношеский культурный центр © Zaha Hadid Architects
Нанкинский международный юношеский культурный центр © Zaha Hadid Architects
Нанкинский международный юношеский культурный центр © Zaha Hadid Architects
Нанкинский международный юношеский культурный центр © Zaha Hadid Architects
Нанкинский международный юношеский культурный центр © Zaha Hadid Architects
Нанкинский международный юношеский культурный центр © Zaha Hadid Architects
Нанкинский международный юношеский культурный центр © Zaha Hadid Architects
Нанкинский международный юношеский культурный центр © Zaha Hadid Architects
Нанкинский международный юношеский культурный центр © Zaha Hadid Architects
Нанкинский международный юношеский культурный центр © Zaha Hadid Architects
Нанкинский международный юношеский культурный центр © Zaha Hadid Architects
Нанкинский международный юношеский культурный центр © Zaha Hadid Architects
Нанкинский международный юношеский культурный центр © Zaha Hadid Architects
Нанкинский международный юношеский культурный центр © Zaha Hadid Architects
Нанкинский международный юношеский культурный центр © Zaha Hadid Architects
Нанкинский международный юношеский культурный центр © Zaha Hadid Architects
Нанкинский международный юношеский культурный центр © Zaha Hadid Architects
Нанкинский международный юношеский культурный центр © Zaha Hadid Architects
Нанкинский международный юношеский культурный центр © Zaha Hadid Architects
Нанкинский международный юношеский культурный центр © Zaha Hadid Architects
Нанкинский международный юношеский культурный центр © Zaha Hadid Architects
Нанкинский международный юношеский культурный центр © Zaha Hadid Architects
Нанкинский международный юношеский культурный центр © Zaha Hadid Architects
Нанкинский международный юношеский культурный центр © Zaha Hadid Architects
Нанкинский международный юношеский культурный центр © Zaha Hadid Architects
Нанкинский международный юношеский культурный центр © Zaha Hadid Architects
Нанкинский международный юношеский культурный центр © Zaha Hadid Architects
Нанкинский международный юношеский культурный центр © Zaha Hadid Architects
Нанкинский международный юношеский культурный центр © Zaha Hadid Architects
Нанкинский международный юношеский культурный центр © Zaha Hadid Architects
Нанкинский международный юношеский культурный центр © Zaha Hadid Architects
Нанкинский международный юношеский культурный центр © Zaha Hadid Architects
Нанкинский международный юношеский культурный центр © Zaha Hadid Architects
Нанкинский международный юношеский культурный центр © Zaha Hadid Architects
Нанкинский международный юношеский культурный центр © Zaha Hadid Architects
Нанкинский международный юношеский культурный центр © Zaha Hadid Architects
Нанкинский международный юношеский культурный центр © Zaha Hadid Architects
Нанкинский международный юношеский культурный центр © Zaha Hadid Architects