Размещено на портале Архи.ру (www.archi.ru)

04.12.2018

Демократизация культурных ценностей

Нина Фролова
Объект:
Общественный центр SESC 24 de Maio
Адрес:
Бразилия, None, Сан-Паулу.
Мастерская:
MMBB Arquitetos

Общественный центр SESC 24 de Maio по проекту Паулу Мендеса да Роша и бюро MMBB Arquitetos – бывшая офисная башня в исторической части Сан-Паулу.

Общественный центр SESC 24 de Maio. Фото © Nelson Kon
Общественный центр SESC 24 de Maio. Фото © Nelson Kon

SESC, некоммерческое объединение торговых, туристических и «сервисных» компаний, с 1940-х создает в Бразилии центры с образовательной, спортивной, культурной, развлекательной и здравоохранительной функциями. Они рассчитаны на сотрудников таких фирм, но, как правило, открыты и для всех местных жителей. Самый известный пример – SESC Pompéia архитектора Лины Бо Барди на месте фабрики в Сан-Паулу (1980-е), однако таких общественных центров с середины прошлого века открылось десятки, причем они продолжают создаваться и сейчас.
 
Общественный центр SESC 24 de Maio. Фото © Nelson Kon
Общественный центр SESC 24 de Maio. Фото © Nelson Kon

SESC также занимается проектами в сфере различных искусств, от балета до литературы, – совместно с бразильскими и зарубежными партнерами. Цель работы этой негосударственной организации – это просвещение и социальное благополучие, причем термин «культура» понимается в самом широком смысле; открытость как пространств, так и программ центров SESC всем желающим углубляет демократизацию культурных ценностей как формы независимости личности и «практической» гражданской позиции.
 
Общественный центр SESC 24 de Maio. Фото © Nelson Kon
Общественный центр SESC 24 de Maio. Фото © Nelson Kon

SESC 24 de Maio в историческом центре Сан-Паулу назван по проходящей рядом улице – 24-го мая. Его проект – реконструкция офисной башни – был разработан лауреатом Притцкеровской премии Паулу Мендесом да Роша и бюро MMBB Arquitetos еще в 2000-е, а реализован – в 2012–2017. Открытие состоялось 19 августа 2017, а уже к 31 января 2018 центр посетило почти 1,3 млн человек. Архитекторы считают, что трансформация и развитие таких крупных городов, как Сан-Паулу (это самый большой город как Западного, так и Южного полушария нашей планеты) идут в первую очередь через социальные перемены.
 
Общественный центр SESC 24 de Maio. Фото © Nelson Kon
Общественный центр SESC 24 de Maio. Фото © Nelson Kon

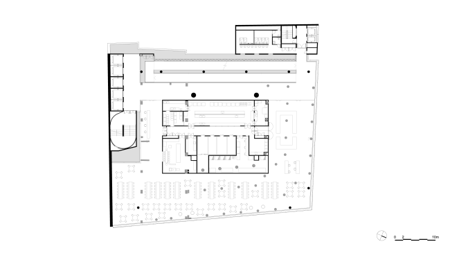
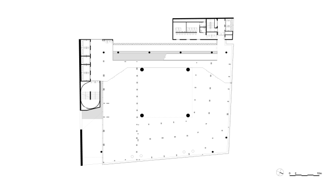
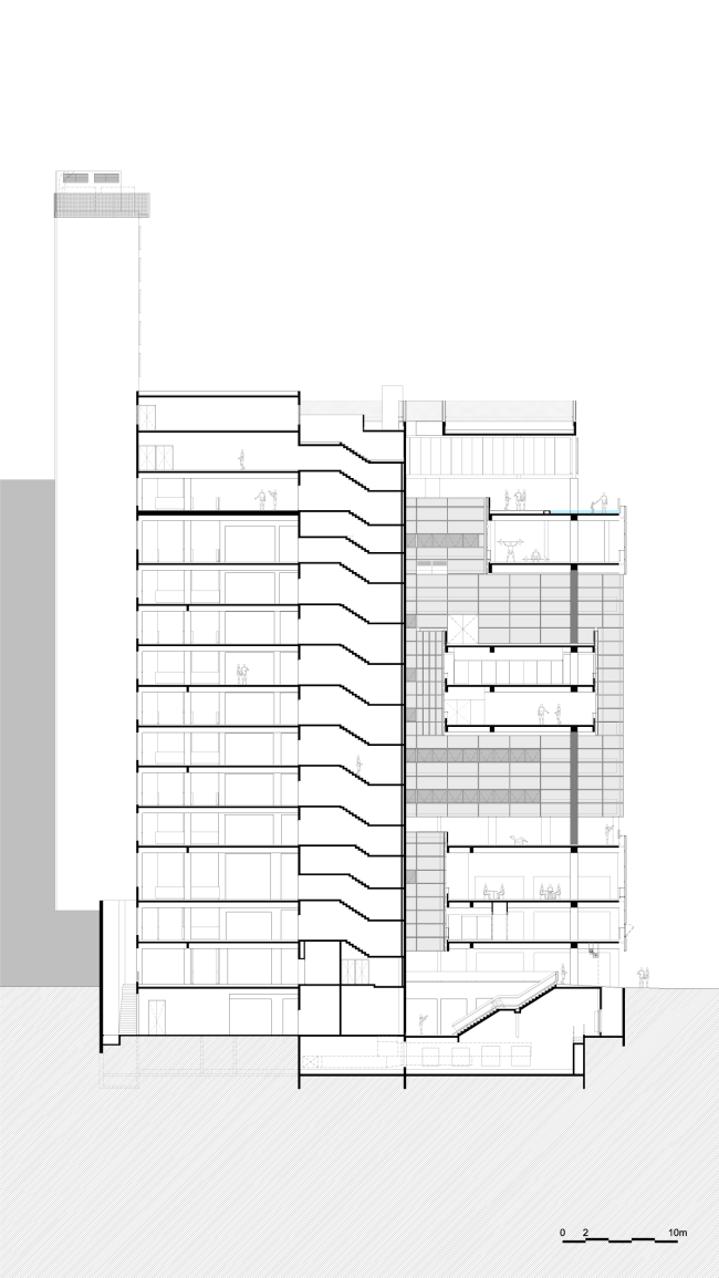
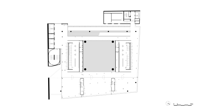
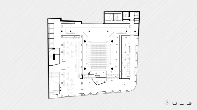
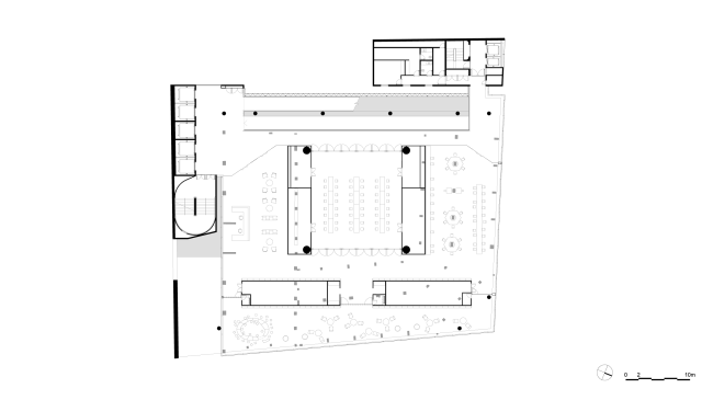
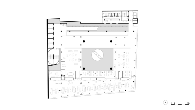
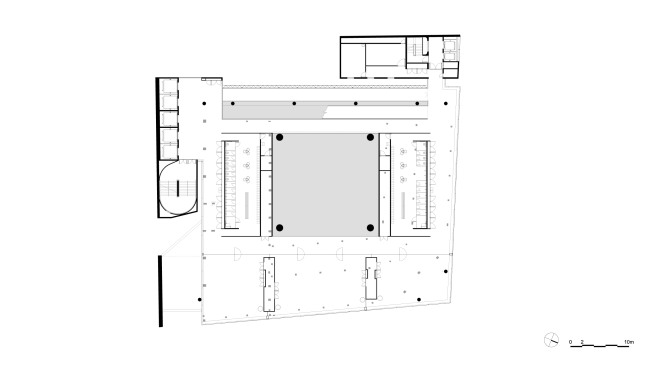
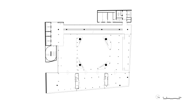
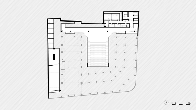
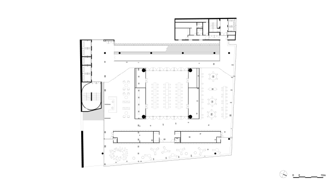
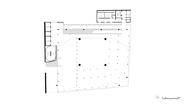
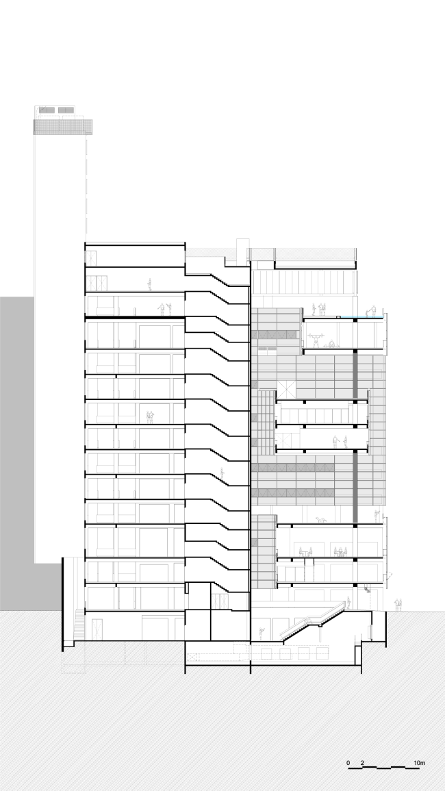
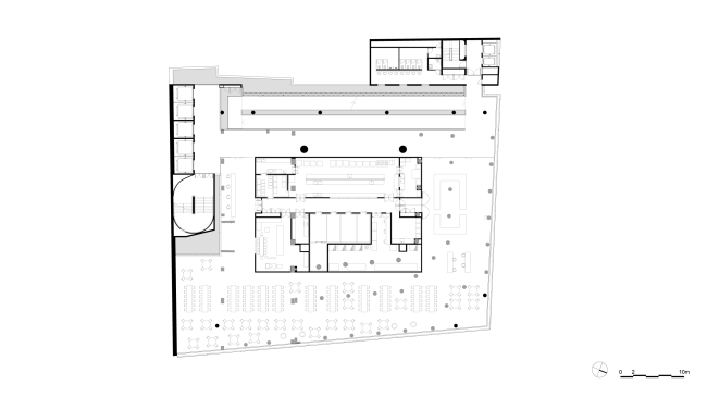
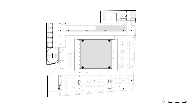
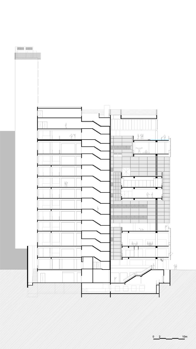
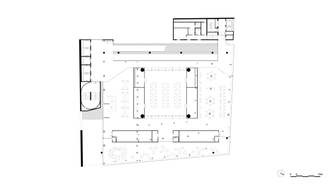
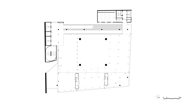
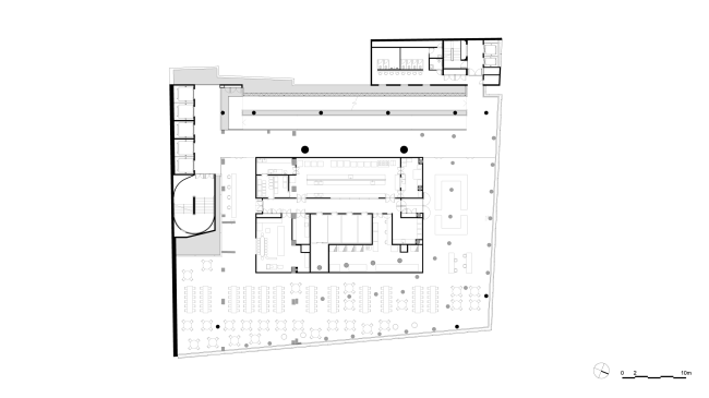
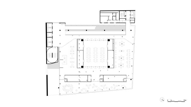
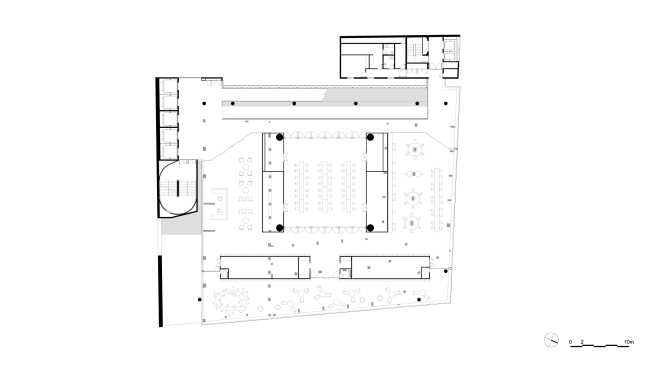
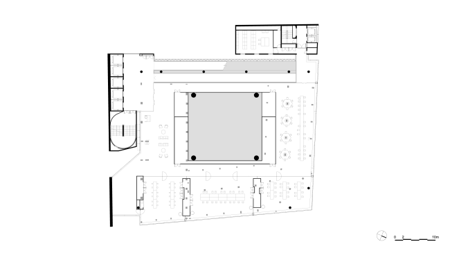
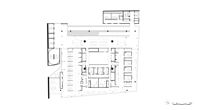
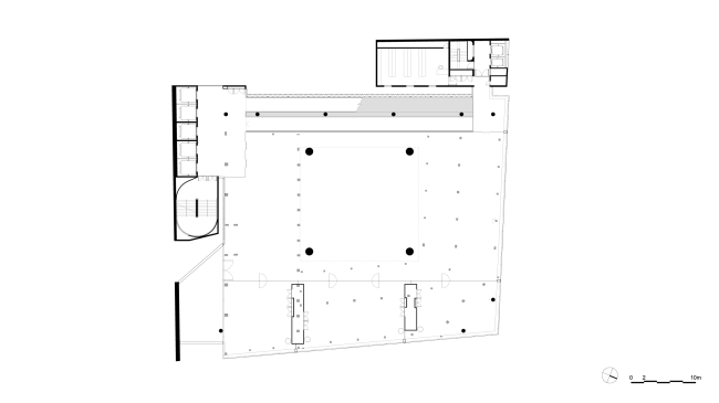
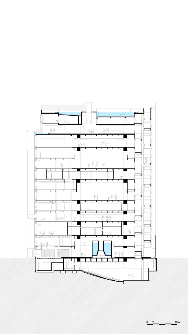
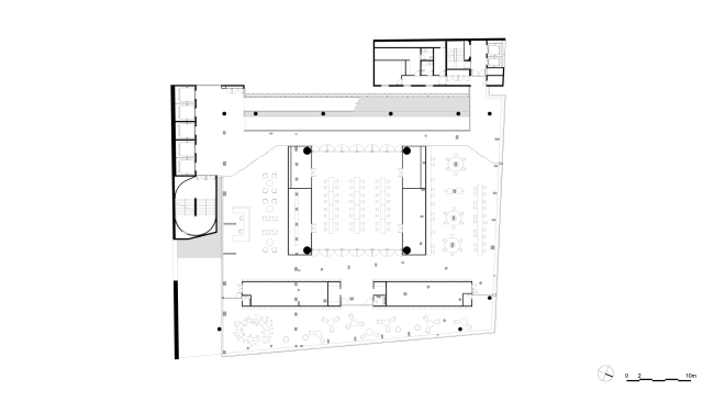
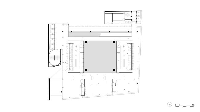
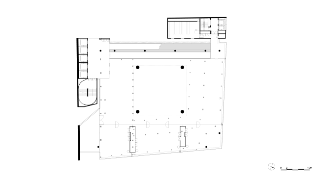
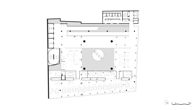
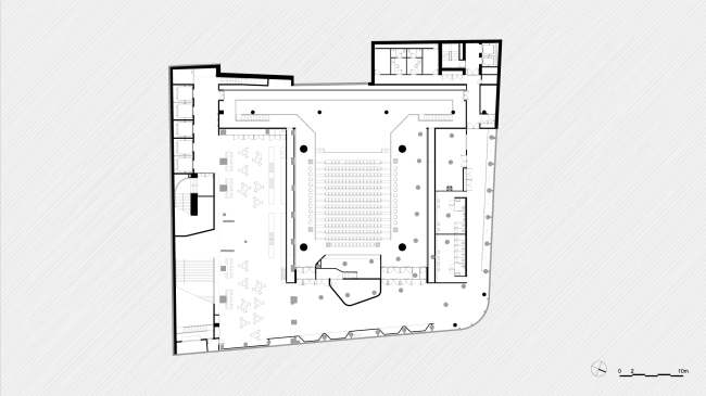
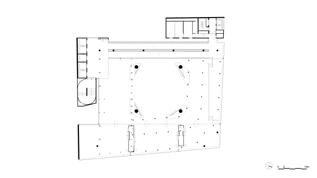
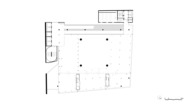
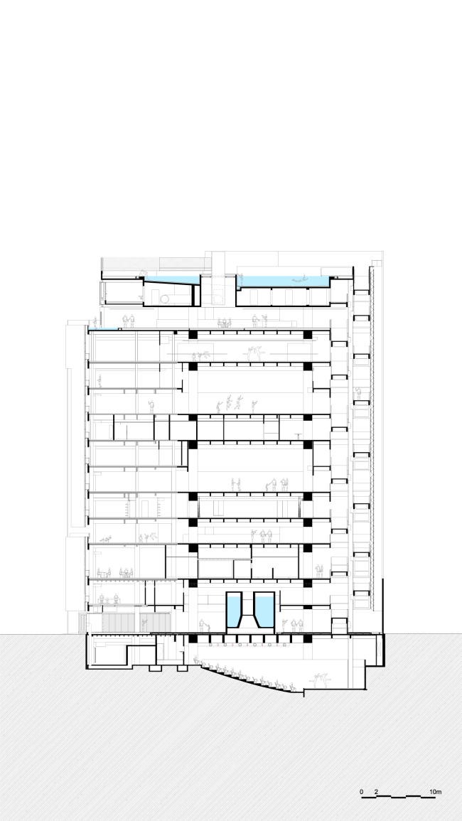
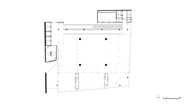
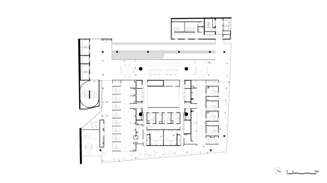
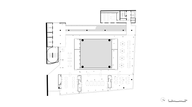
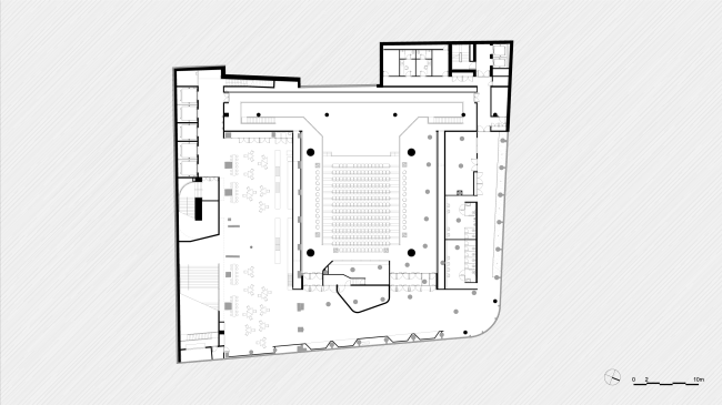
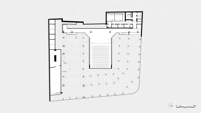
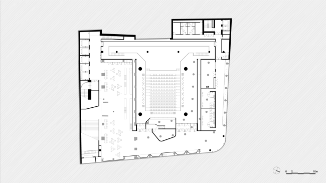
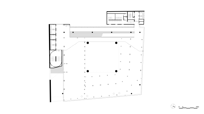
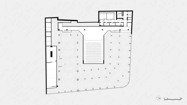
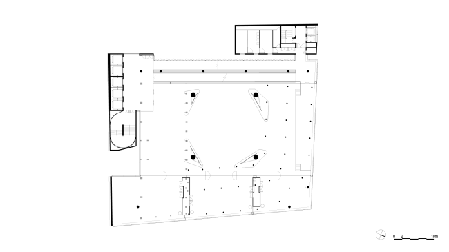
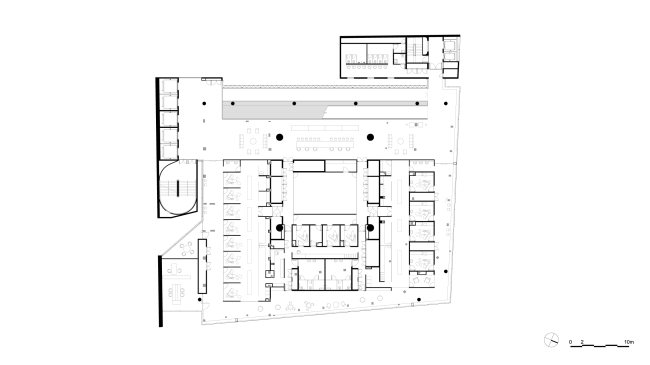
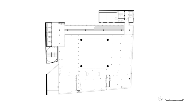
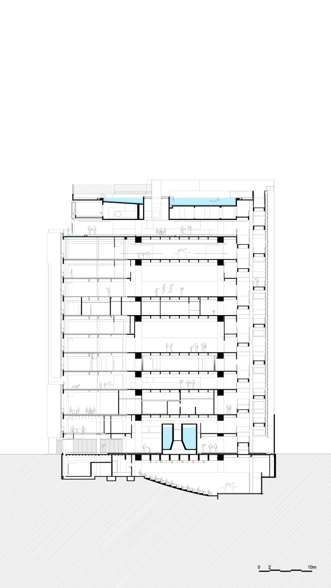
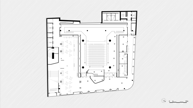
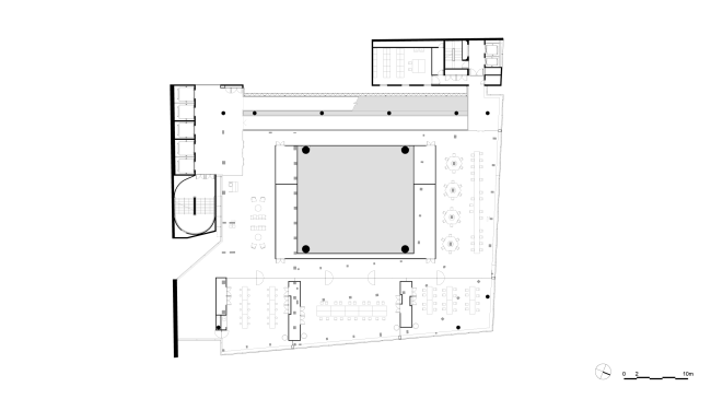
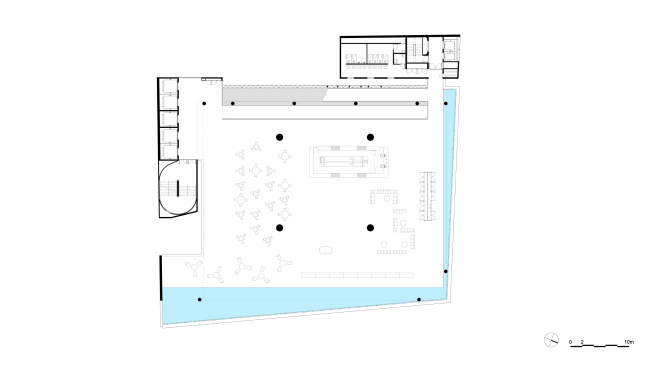
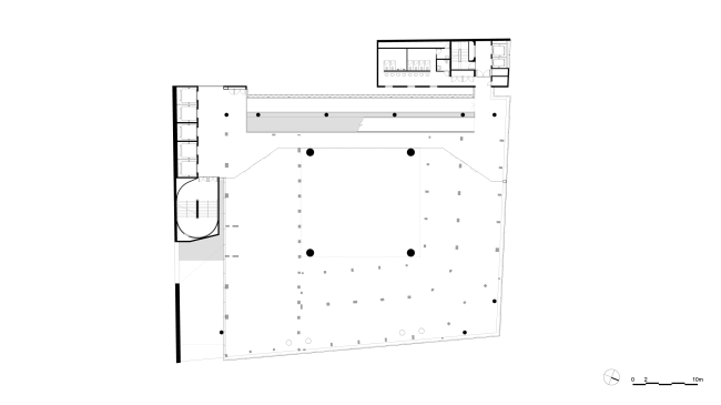
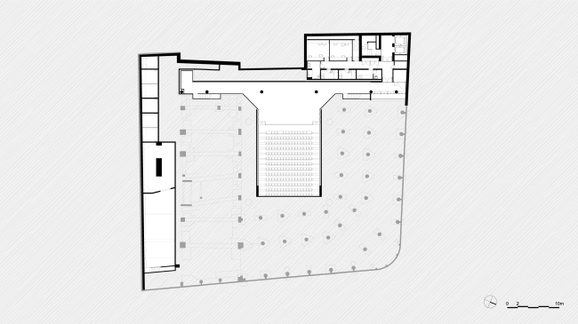
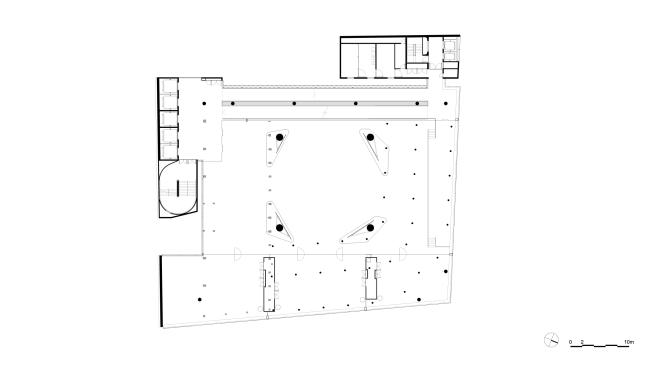
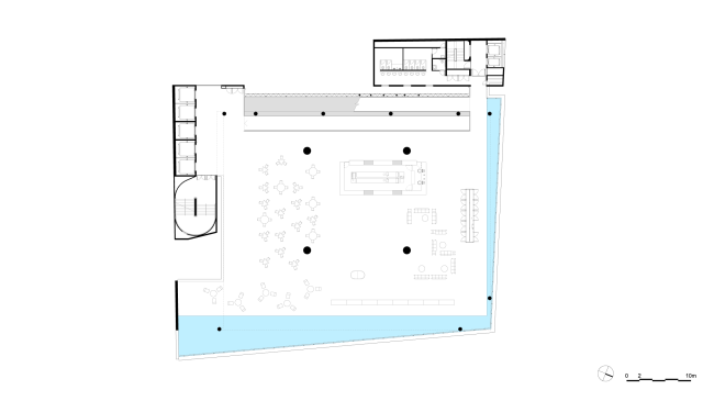
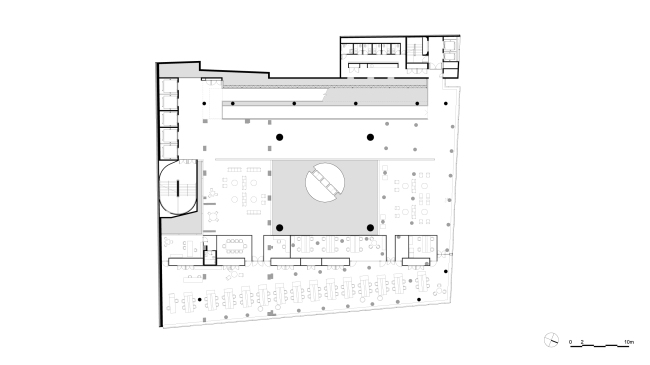
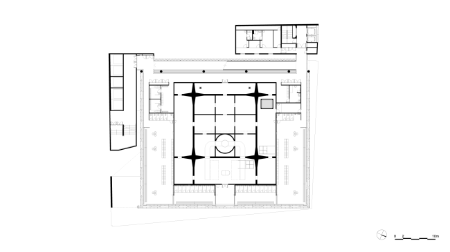
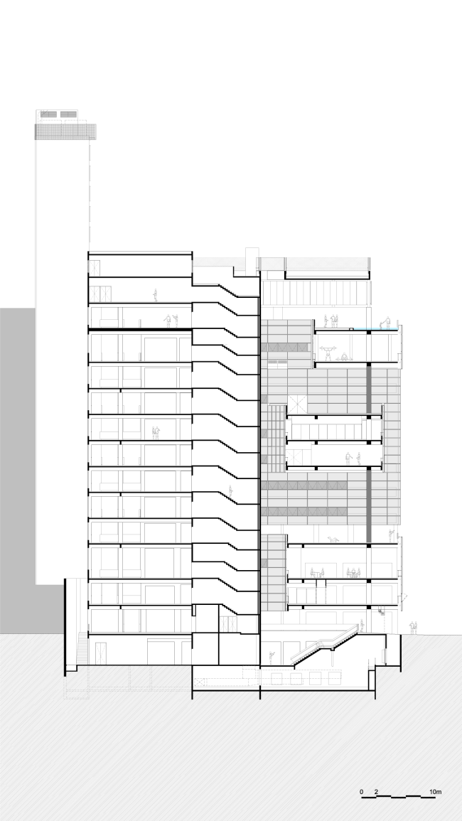
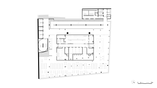
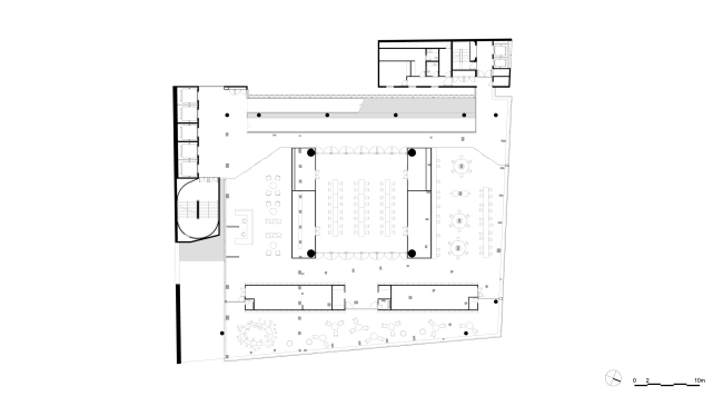
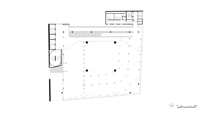
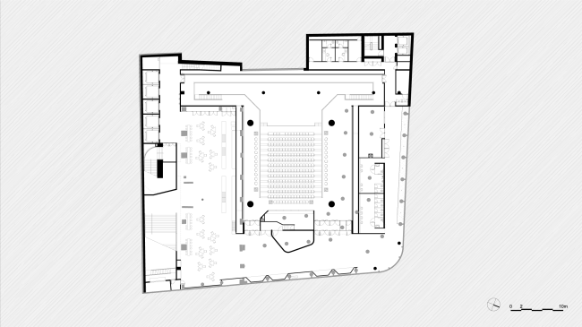
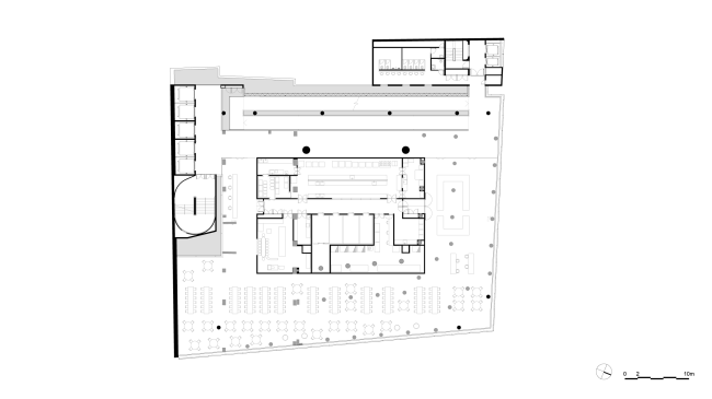
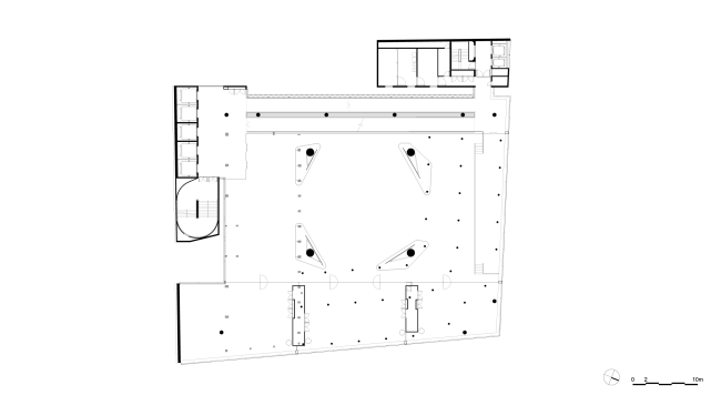
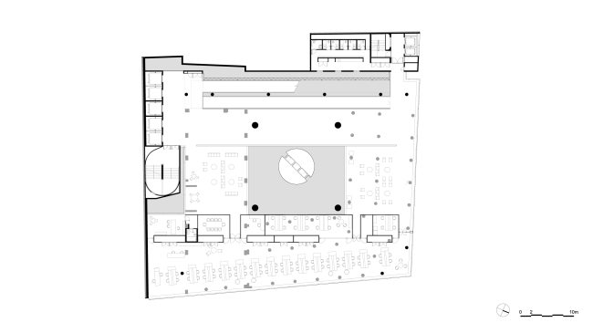
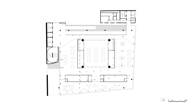
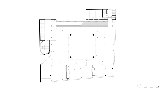
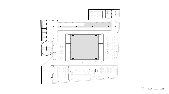
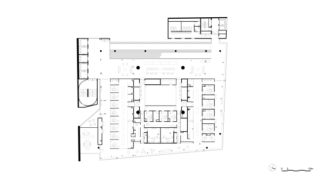
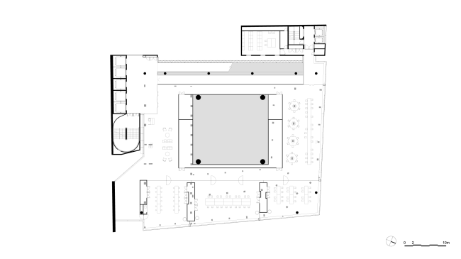
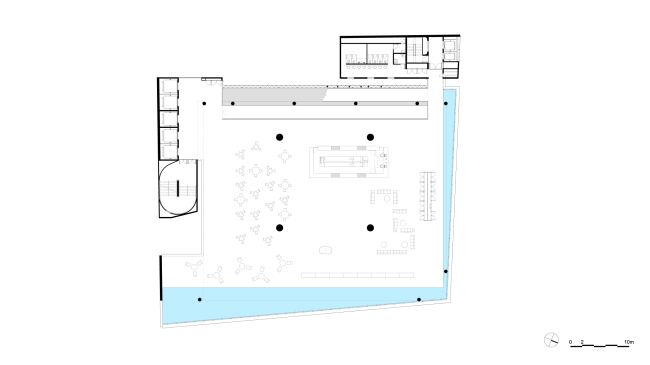
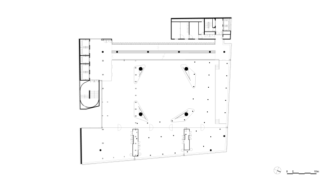
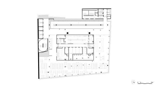
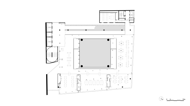
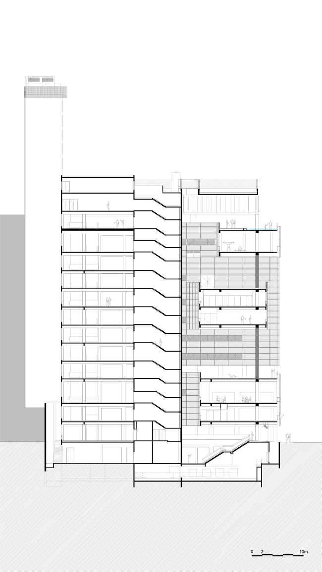
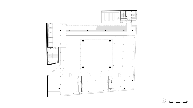
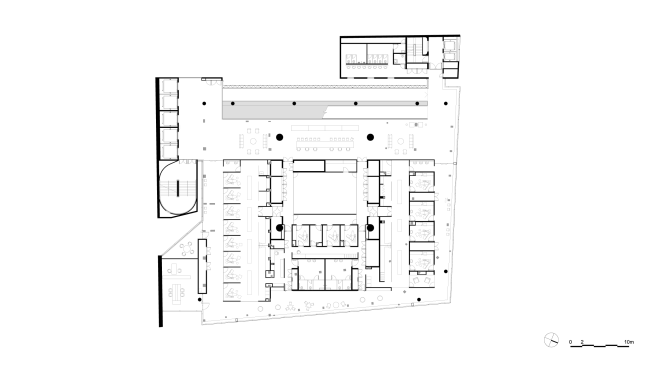
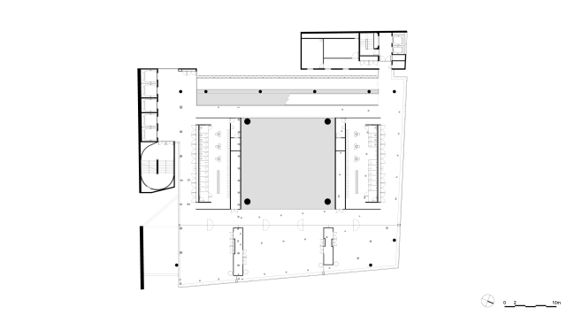
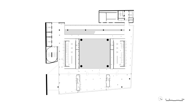
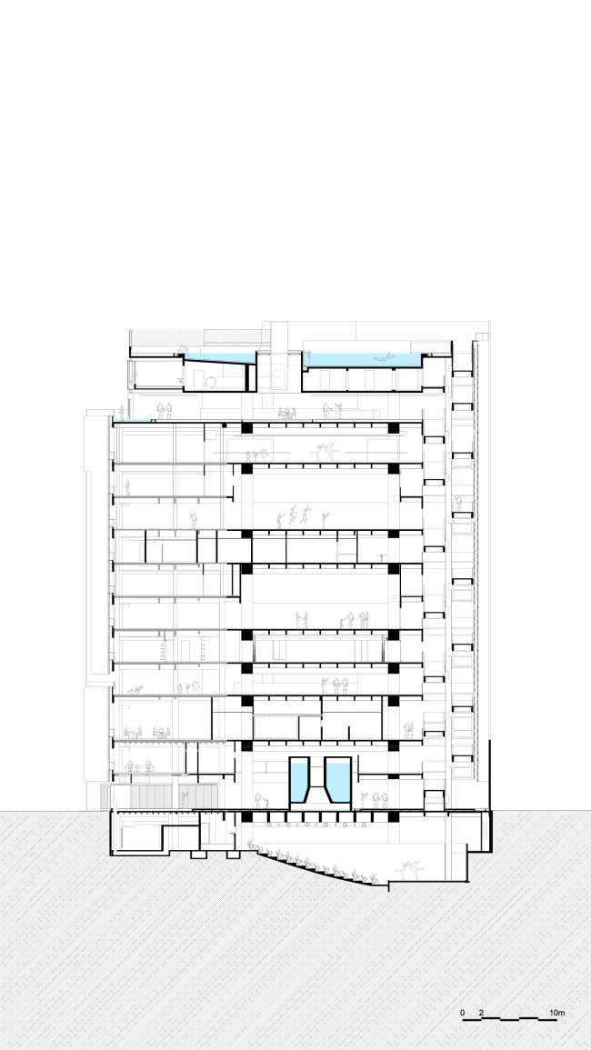
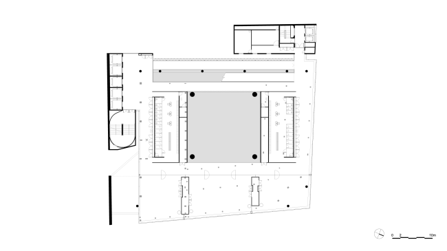
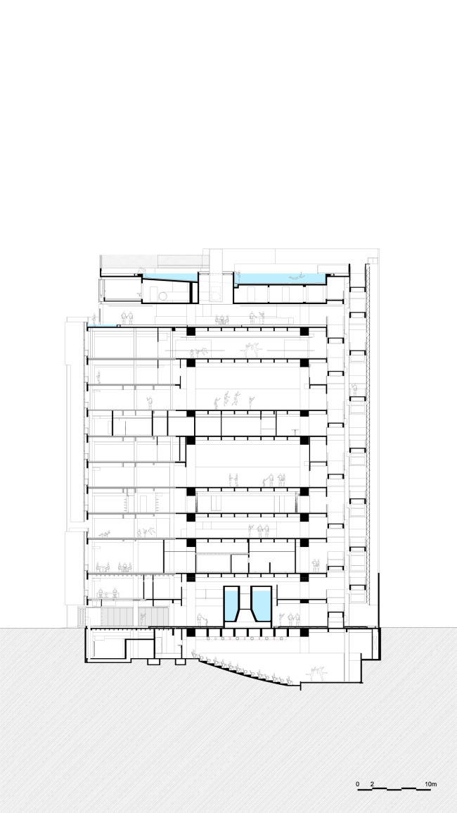
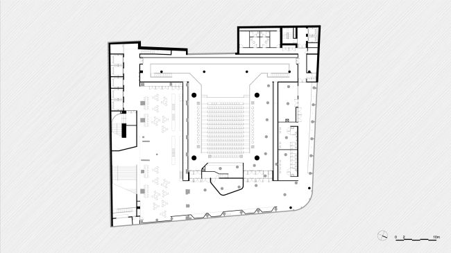
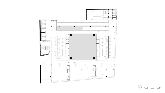
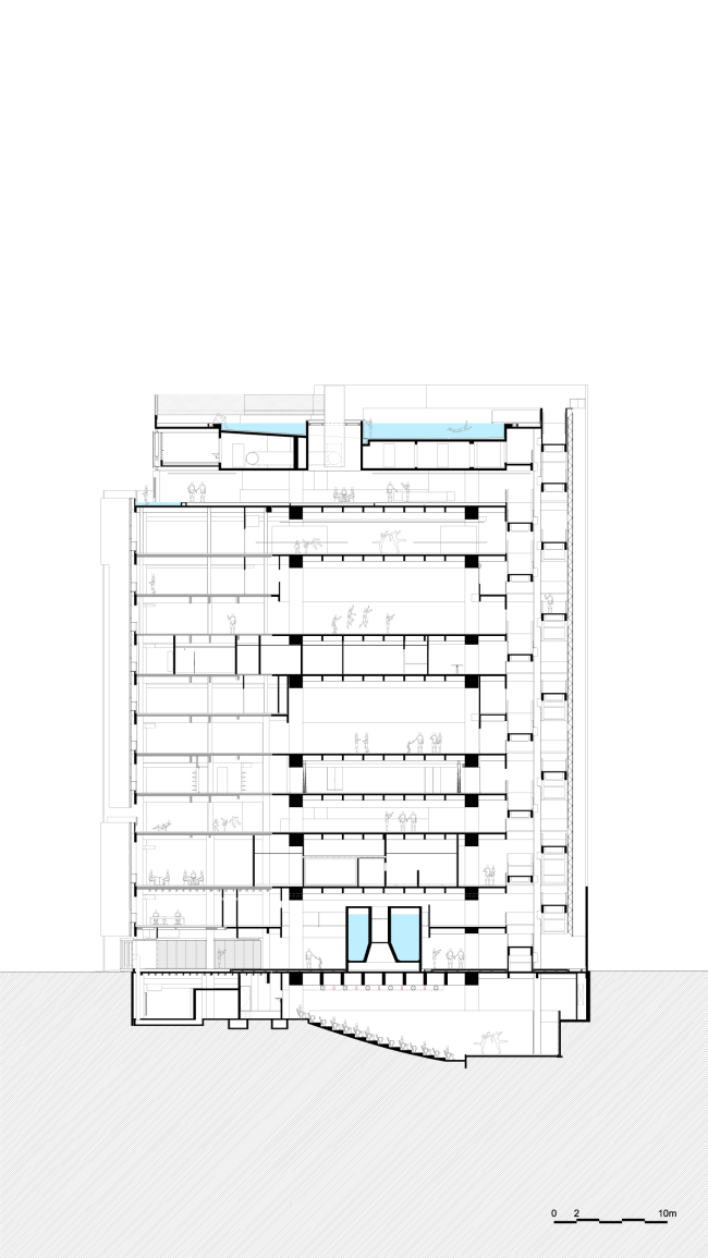
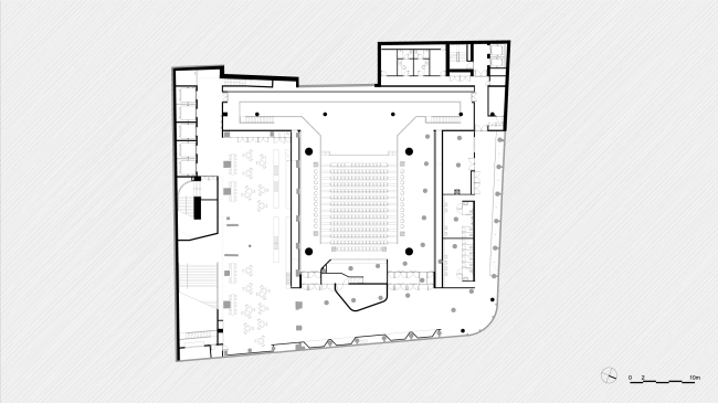
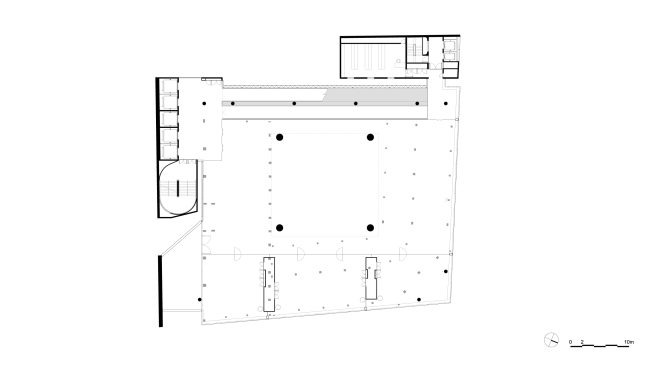
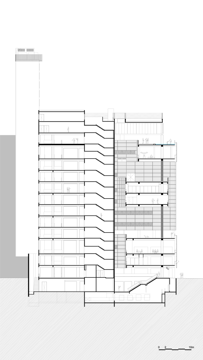
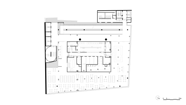
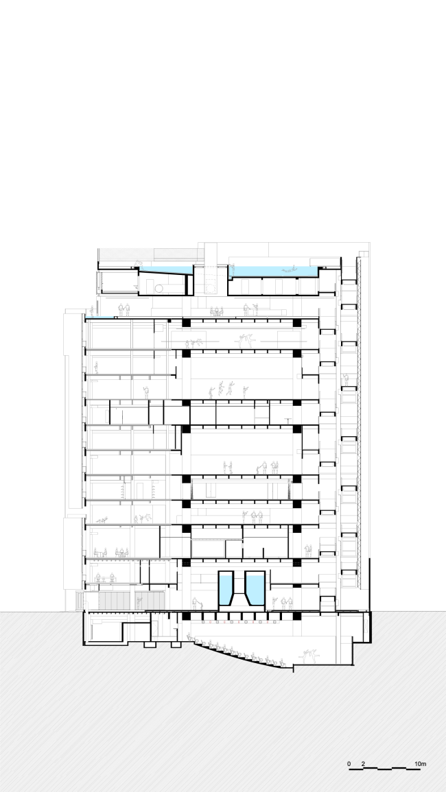
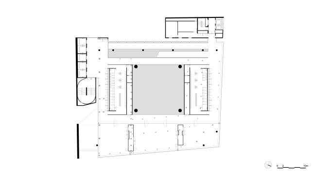
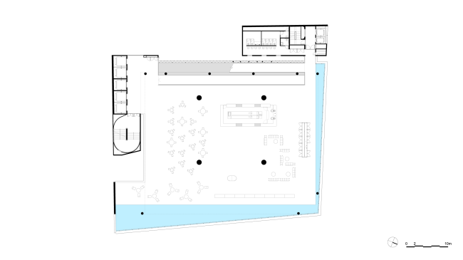
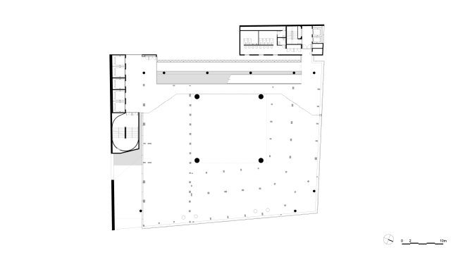
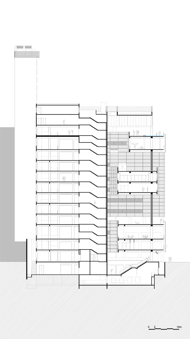
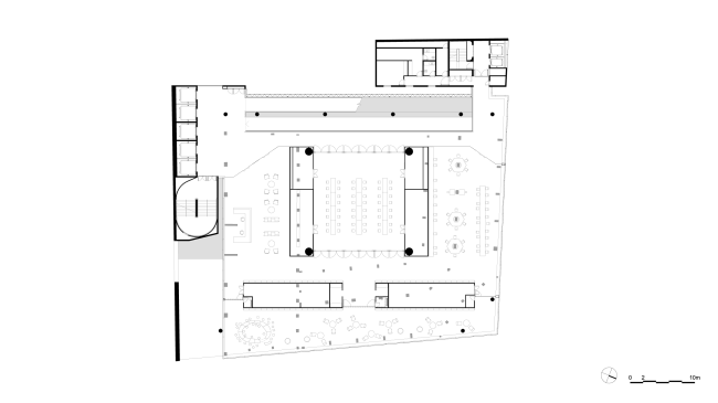
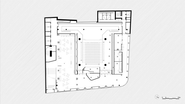
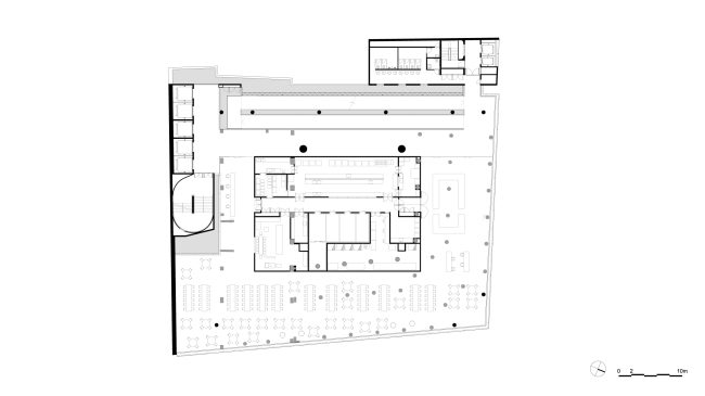
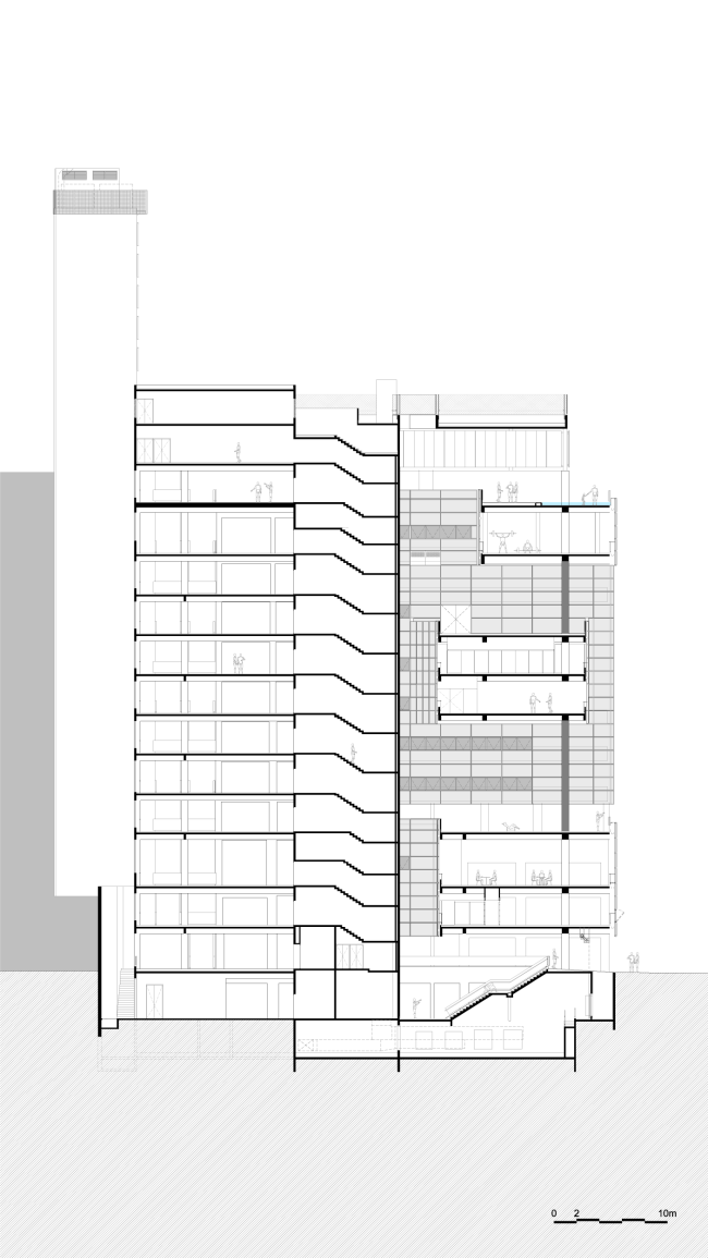
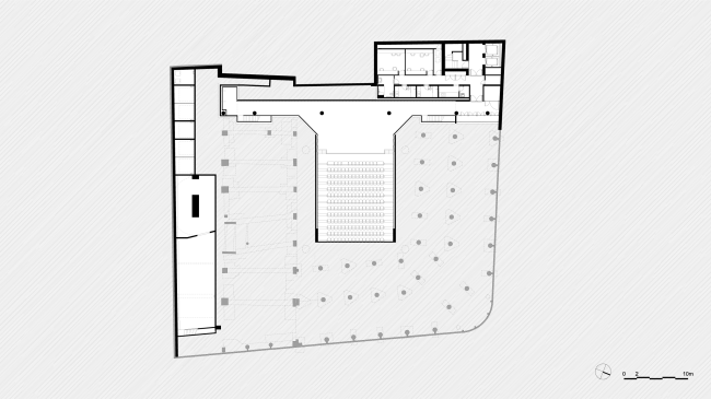
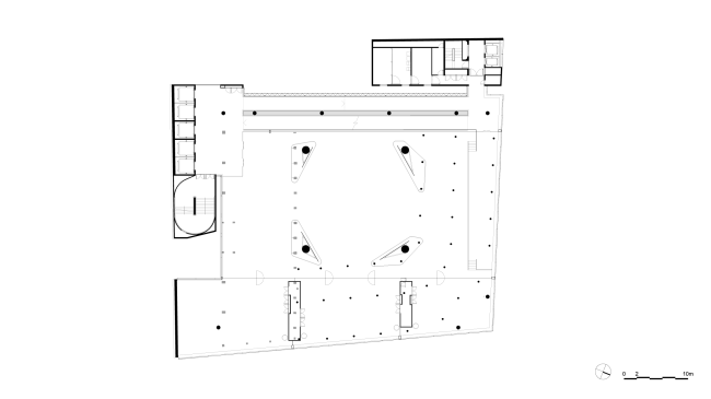
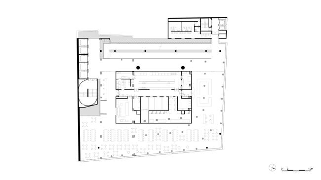
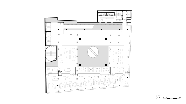
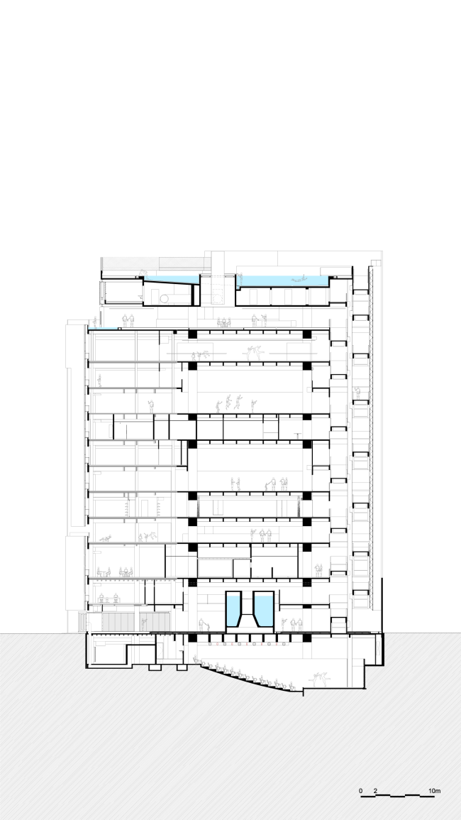
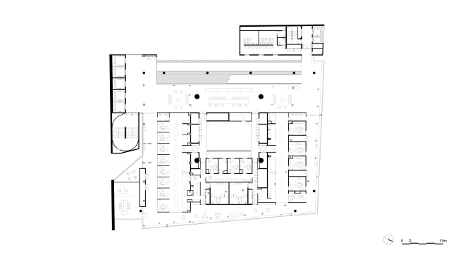
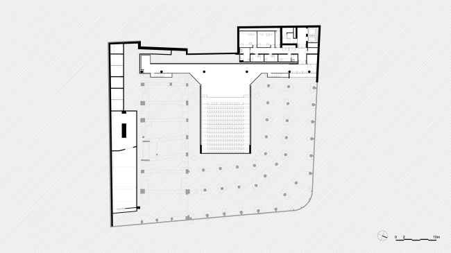
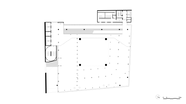
Проект реконструкции бывшей штаб-квартиры сети универмагов Mesbla одновременно дополняет историческое окружение и приспосабливает структуру многоэтажного здания под совершенно другой тип использования. От постройки были сохранены каркас и свободное пространство по центру каждого этажа, ключевое для планировки SESC 24 de Maio (его укрепили четырьмя дополнительными опорами). Подземный гараж был немного углублен и превращен в театральный зал с кафе в фойе. На кровле устроили солярий с открытым бассейном.
 
Общественный центр SESC 24 de Maio. Фото © Nelson Kon
Общественный центр SESC 24 de Maio. Фото © Nelson Kon

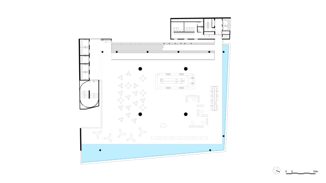
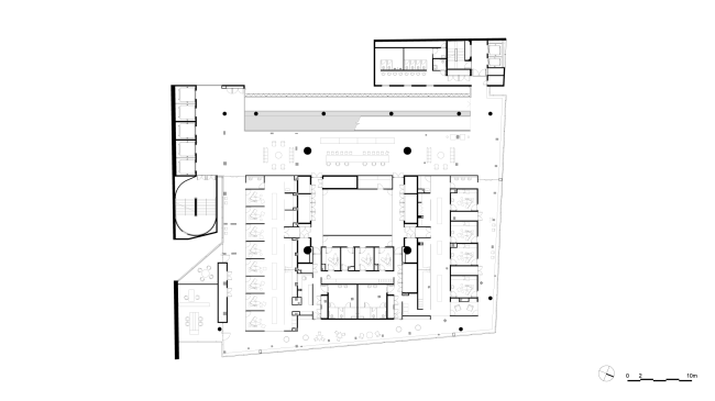
Среди других функций – открытая «гостиная» на четвертом уровне, столовая на третьем и кафе – на двенадцатом этажах, библиотека, выставочные пространства, студии, стоматологическая клиника, спортивные залы, включая скалодром, ярус для занятий танцами, административные помещения. На самом верху, под бассейном, помещена раздевалка.
 
Общественный центр SESC 24 de Maio. Фото © Nelson Kon
Общественный центр SESC 24 de Maio. Фото © Nelson Kon

Общественный центр откликается на живую и насыщенную среду вокруг открытым первым этажом как свободным продолжением улицы. Выше ведут также открытые пологие пандусы, соединяющие как ярусы между собой, так и интерьер с городским окружением. Архитекторы чередовали закрытые и открытые пространства (практически висячие сады), одинарные и двойные этажи (в том числе с антресольным ярусом). Техническое оборудование собрано в новой башне-пристройке во всю высоту здания: она заняла пустырь рядом. Особое внимание было уделено сложной механической системе пожарной вентиляции: из-за жестких требований СНиП только благодаря ей стало возможным устройство открытого узла циркуляции и двусветных помещений.
 
Общественный центр SESC 24 de Maio. Фото © Nelson Kon
Общественный центр SESC 24 de Maio. Фото © Nelson Kon

Для создания цельного образа здания и учреждения архитекторы специально разработали для SESC 24 de Maio дизайн мебели: цветные наборы стульев, обеденных и рабочих столов, диванов, стоек, а также модульную систему из «штабелируемых» элементов.
Общественный центр SESC 24 de Maio. Фото © Nelson Kon
Общественный центр SESC 24 de Maio. Фото © Nelson Kon
Общественный центр SESC 24 de Maio. Фото © Nelson Kon
Общественный центр SESC 24 de Maio. Фото © Nelson Kon
Общественный центр SESC 24 de Maio. Фото © Nelson Kon
Общественный центр SESC 24 de Maio. Фото © Nelson Kon
Общественный центр SESC 24 de Maio. Фото © Nelson Kon
Общественный центр SESC 24 de Maio. Фото © Nelson Kon
Общественный центр SESC 24 de Maio. Фото © Nelson Kon
Общественный центр SESC 24 de Maio. Фото © Nelson Kon
Общественный центр SESC 24 de Maio. Фото © Nelson Kon
Общественный центр SESC 24 de Maio. Фото © Nelson Kon
Общественный центр SESC 24 de Maio. Фото © Nelson Kon
Общественный центр SESC 24 de Maio. Фото © Nelson Kon
Общественный центр SESC 24 de Maio. Фото © Nelson Kon
Общественный центр SESC 24 de Maio. Фото © Nelson Kon
Общественный центр SESC 24 de Maio. Фото © Nelson Kon
Общественный центр SESC 24 de Maio. Фото © Nelson Kon
Общественный центр SESC 24 de Maio. Фото © Nelson Kon
Общественный центр SESC 24 de Maio. Фото © Nelson Kon
Общественный центр SESC 24 de Maio. Фото © Nelson Kon
Общественный центр SESC 24 de Maio. Фото © Nelson Kon
Общественный центр SESC 24 de Maio. Фото © Nelson Kon
Общественный центр SESC 24 de Maio. Фото © Nelson Kon
Общественный центр SESC 24 de Maio. Фото © Nelson Kon
Общественный центр SESC 24 de Maio. Фото © Nelson Kon
Общественный центр SESC 24 de Maio © Paulo Mendes da Rocha + MMBB Arquitetos
Общественный центр SESC 24 de Maio © Paulo Mendes da Rocha + MMBB Arquitetos
Общественный центр SESC 24 de Maio © Paulo Mendes da Rocha + MMBB Arquitetos
Общественный центр SESC 24 de Maio © Paulo Mendes da Rocha + MMBB Arquitetos
Общественный центр SESC 24 de Maio © Paulo Mendes da Rocha + MMBB Arquitetos
Общественный центр SESC 24 de Maio © Paulo Mendes da Rocha + MMBB Arquitetos
Общественный центр SESC 24 de Maio © Paulo Mendes da Rocha + MMBB Arquitetos
Общественный центр SESC 24 de Maio © Paulo Mendes da Rocha + MMBB Arquitetos
Общественный центр SESC 24 de Maio © Paulo Mendes da Rocha + MMBB Arquitetos
Общественный центр SESC 24 de Maio © Paulo Mendes da Rocha + MMBB Arquitetos
Общественный центр SESC 24 de Maio © Paulo Mendes da Rocha + MMBB Arquitetos
Общественный центр SESC 24 de Maio © Paulo Mendes da Rocha + MMBB Arquitetos
Общественный центр SESC 24 de Maio © Paulo Mendes da Rocha + MMBB Arquitetos
Общественный центр SESC 24 de Maio © Paulo Mendes da Rocha + MMBB Arquitetos
Общественный центр SESC 24 de Maio © Paulo Mendes da Rocha + MMBB Arquitetos
Общественный центр SESC 24 de Maio © Paulo Mendes da Rocha + MMBB Arquitetos
Общественный центр SESC 24 de Maio © Paulo Mendes da Rocha + MMBB Arquitetos
Общественный центр SESC 24 de Maio © Paulo Mendes da Rocha + MMBB Arquitetos
Общественный центр SESC 24 de Maio © Paulo Mendes da Rocha + MMBB Arquitetos
Общественный центр SESC 24 de Maio © Paulo Mendes da Rocha + MMBB Arquitetos
Общественный центр SESC 24 de Maio © Paulo Mendes da Rocha + MMBB Arquitetos
Общественный центр SESC 24 de Maio © Paulo Mendes da Rocha + MMBB Arquitetos
Общественный центр SESC 24 de Maio © Paulo Mendes da Rocha + MMBB Arquitetos
Общественный центр SESC 24 de Maio © Paulo Mendes da Rocha + MMBB Arquitetos
Общественный центр SESC 24 de Maio © Paulo Mendes da Rocha + MMBB Arquitetos
Общественный центр SESC 24 de Maio © Paulo Mendes da Rocha + MMBB Arquitetos
Общественный центр SESC 24 de Maio © Paulo Mendes da Rocha + MMBB Arquitetos
Общественный центр SESC 24 de Maio © Paulo Mendes da Rocha + MMBB Arquitetos
Общественный центр SESC 24 de Maio © Paulo Mendes da Rocha + MMBB Arquitetos
Общественный центр SESC 24 de Maio © Paulo Mendes da Rocha + MMBB Arquitetos
Общественный центр SESC 24 de Maio © Paulo Mendes da Rocha + MMBB Arquitetos
Общественный центр SESC 24 de Maio © Paulo Mendes da Rocha + MMBB Arquitetos
Общественный центр SESC 24 de Maio © Paulo Mendes da Rocha + MMBB Arquitetos
Общественный центр SESC 24 de Maio © Paulo Mendes da Rocha + MMBB Arquitetos
Общественный центр SESC 24 de Maio © Paulo Mendes da Rocha + MMBB Arquitetos
Общественный центр SESC 24 de Maio © Paulo Mendes da Rocha + MMBB Arquitetos
Общественный центр SESC 24 de Maio © Paulo Mendes da Rocha + MMBB Arquitetos
Общественный центр SESC 24 de Maio © Paulo Mendes da Rocha + MMBB Arquitetos
Общественный центр SESC 24 de Maio © Paulo Mendes da Rocha + MMBB Arquitetos
Общественный центр SESC 24 de Maio © Paulo Mendes da Rocha + MMBB Arquitetos
Общественный центр SESC 24 de Maio © Paulo Mendes da Rocha + MMBB Arquitetos
Общественный центр SESC 24 de Maio © Paulo Mendes da Rocha + MMBB Arquitetos
Общественный центр SESC 24 de Maio © Paulo Mendes da Rocha + MMBB Arquitetos
Общественный центр SESC 24 de Maio © Paulo Mendes da Rocha + MMBB Arquitetos
Общественный центр SESC 24 de Maio © Paulo Mendes da Rocha + MMBB Arquitetos
Общественный центр SESC 24 de Maio © Paulo Mendes da Rocha + MMBB Arquitetos
Общественный центр SESC 24 de Maio © Paulo Mendes da Rocha + MMBB Arquitetos
Общественный центр SESC 24 de Maio © Paulo Mendes da Rocha + MMBB Arquitetos
Общественный центр SESC 24 de Maio © Paulo Mendes da Rocha + MMBB Arquitetos
Общественный центр SESC 24 de Maio © Paulo Mendes da Rocha + MMBB Arquitetos