Размещено на портале Архи.ру (www.archi.ru)

03.12.2018

Чем хочет стать библиотека?

Нина Фролова
Объект:
Центральная библиотека Хельсинки «Ооди»
Адрес:
Финляндия, None, Хельсинки.
Мастерская:
ALA

В Хельсинки открывается новая центральная библиотека по проекту бюро ALA: она получила, кроме привычных, новые функции, например, мастерскую с 3D-принтерами и станками лазерной резки.

Центральная библиотека Хельсинки «Ооди». Фото © Tuomas Uusheimo
Центральная библиотека Хельсинки «Ооди». Фото © Tuomas Uusheimo

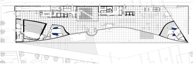
Центральная библиотека заняла один из последних незастроенных участков в сердце Хельсинки – пустырь рядом с Центром музыки, музеем «Киасма» и редакцией главной финской газеты, Helsingin Sanomat, визави здания Парламента. На открытый и анонимный архитектурный конкурс в 2012–2013 было подано 544 проекта, вариант ALA понравился жюри благодаря одновременно запоминающемуся и свободному образу.
 
Центральная библиотека Хельсинки «Ооди». Фото © Tuomas Uusheimo
Центральная библиотека Хельсинки «Ооди». Фото © Tuomas Uusheimo

Библиотека еще до выбора проекта была задумана как продолжение общественного пространства: право на читательский билет имеет по принятому еще в 1928 закону каждый гражданин Финляндии, и здание вполне отразило даже новейшую версию этого акта, 2017 года: он теперь вменяет библиотеке в обязанность поддержку непрерывного образования, активной гражданской позиции, демократии и свободы выражения. Кроме того, само появление «Ооди» приурочено к 100-летию независимости Финляндии. Она откроется 5 декабря, а 101-летие страны будут отмечать 6-го. Большое общественное значение новой библиотеки отразилось и на процессе выбора ее названия: граждане предлагали свои варианты, окончательный список из 1600 пунктов рассмотрело жюри из библиотекарей, литераторов, официальных лиц и специалистов по маркетингу. «Ооди», то есть «ода», отражает юбилейный характер здания и его связь с литературой, лишено связи с конкретным человеком (в ущерб всем остальным достойным кандидатам), к тому же – красиво звучит.
 
Центральная библиотека Хельсинки «Ооди». Проект бюро ALA. Фотография © Tuomas Uusheimo
Центральная библиотека Хельсинки «Ооди». Проект бюро ALA. Фотография © Tuomas Uusheimo

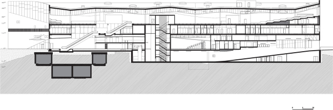
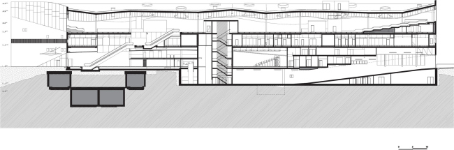
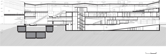
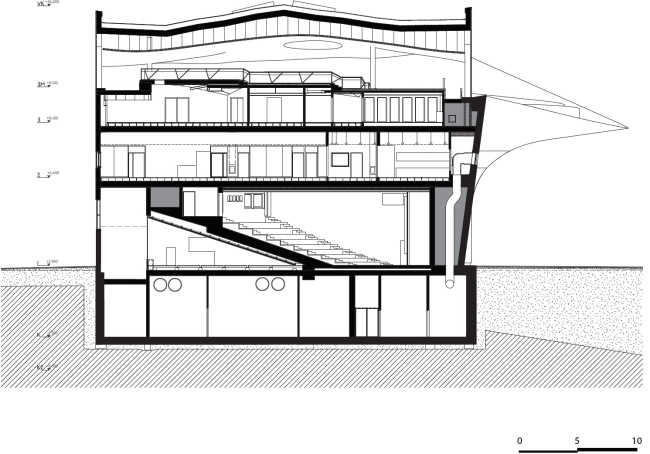
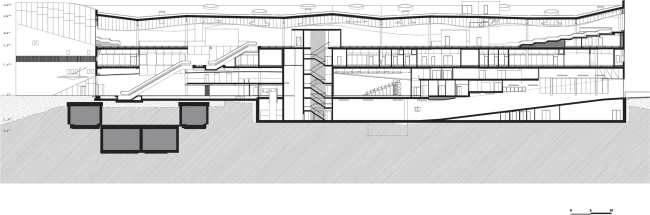
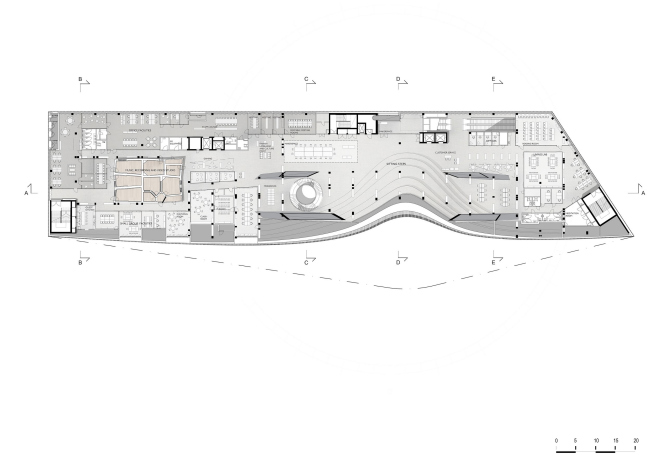
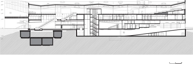
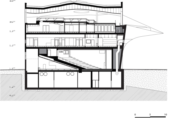
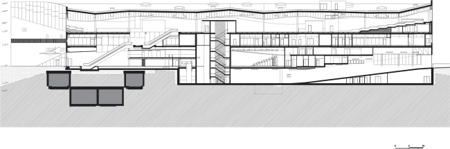
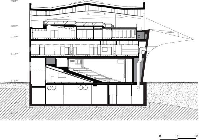
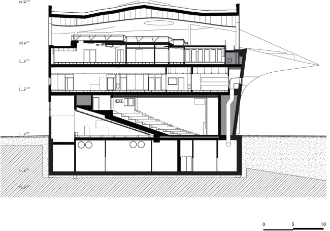
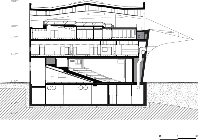
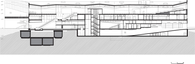
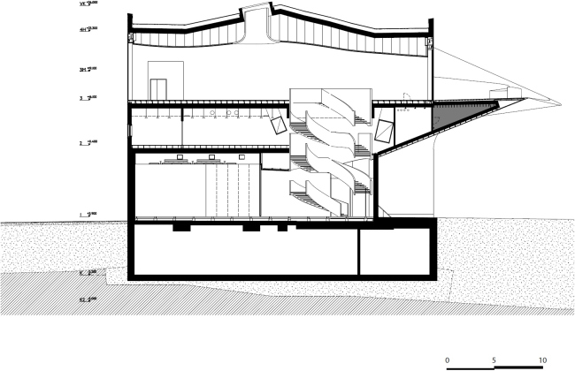
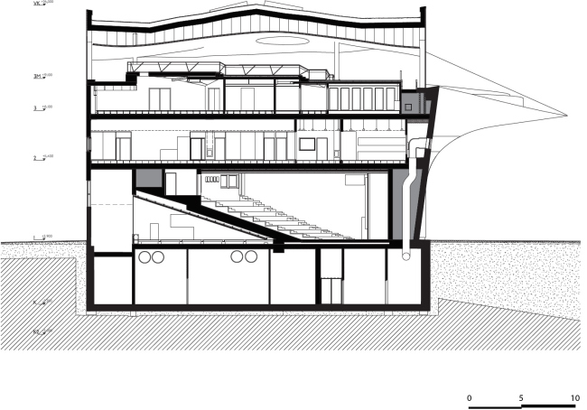
Сложность при проектировании составили форма участка (узкий и вытянутый) и то, что под ним планируют проложить тоннель. Выходом стала конструкция здания в виде моста, перекинутого пролетом в 100 м над первым этажом (про еще одну библиотеку-мост мы недавно писали здесь). Фасад обшит еловыми досками; его органическая форма на уровне земли отступает, впуская площадь перед библиотекой внутрь, а на уровне третьего этажа – выступает большим балконом, обращенным к зданию Парламента.
 
Центральная библиотека Хельсинки «Ооди». Фото © Tuomas Uusheimo
Центральная библиотека Хельсинки «Ооди». Фото © Tuomas Uusheimo

На первом уровне находятся, помимо стойки администратора и т.д., кафе-ресторан и Kino Regina, кинозал Национального аудиовизуального института. Выше ярусом расположены открытая всем мастерская с 3D-принтерами и цифровыми станками, трансформируемые помещения для групповых проектов и индивидуальных занятий, звукозаписывающие студии. На самом верху устроен «Книжный рай» со стеллажами и местами для чтения. На общей площади «Ооди» в 17 250 м2 также имеются переговорные, фотостудия, аудитория и многофункциональный зал, выставочные пространства. Административные помещения и книгохранилище занимают минимум места, здание в полном смысле принадлежит горожанам. Менеджеры остались в главной городской библиотеке, а книги можно быстро заказать в общегородской сети, поэтому единовременно хранить в здании не нужно более 100 000 томов. Система книгооборота полностью автоматизирована, в ней заняты разнообразные машины, в том числе мобильные роботы. Хранилища и другие подсобные помещения сосредоточены на подземном ярусе. Здание рассчитано на 150 лет эксплуатации и почти соответствует нулевому стандарту потребления энергии Zero Energy Building (nZEB).
 
Центральная библиотека Хельсинки «Ооди». Фото © Tuomas Uusheimo
Центральная библиотека Хельсинки «Ооди». Фото © Tuomas Uusheimo

Бюджет строительства составил 98 млн евро, 30 из них выделило правительство Финляндии, остальное – городские власти. То, что именно новая библиотека была выбрана ключевым проектом столетнего юбилея независимой Финляндии, связано с активностью граждан страны как читателей, широтой библиотечной сети и разнообразием предлагаемых ею услуг. В 2017-м 853 ее учреждения посетили 50 млн раз, то есть среднестатистический финн был в библиотеке 9 раз и брал там чуть более 15 книг, аудио- и видеозаписей. При этом содержание этой сети обходится налогоплательщикам в 57 евро на душу населения в год.
Центральная библиотека Хельсинки «Ооди» © ALA Architects
Центральная библиотека Хельсинки «Ооди» © ALA Architects
Центральная библиотека Хельсинки «Ооди» © ALA Architects
Центральная библиотека Хельсинки «Ооди» © ALA Architects
Центральная библиотека Хельсинки «Ооди» © ALA Architects
Центральная библиотека Хельсинки «Ооди» © ALA Architects
Центральная библиотека Хельсинки «Ооди» © ALA Architects
Центральная библиотека Хельсинки «Ооди» © ALA Architects
Центральная библиотека Хельсинки «Ооди» © ALA Architects
Центральная библиотека Хельсинки «Ооди» © ALA Architects
Центральная библиотека Хельсинки «Ооди» © ALA Architects
Центральная библиотека Хельсинки «Ооди» © ALA Architects
Центральная библиотека Хельсинки «Ооди» © ALA Architects
Центральная библиотека Хельсинки «Ооди» © ALA Architects
Центральная библиотека Хельсинки «Ооди» © ALA Architects
Центральная библиотека Хельсинки «Ооди» © ALA Architects
Центральная библиотека Хельсинки «Ооди» © ALA Architects
Центральная библиотека Хельсинки «Ооди» © ALA Architects
Центральная библиотека Хельсинки «Ооди» © ALA Architects
Центральная библиотека Хельсинки «Ооди» © ALA Architects
Центральная библиотека Хельсинки «Ооди» © ALA Architects
Центральная библиотека Хельсинки «Ооди» © ALA Architects
Центральная библиотека Хельсинки «Ооди» © ALA Architects
Центральная библиотека Хельсинки «Ооди» © ALA Architects
Центральная библиотека Хельсинки «Ооди» © ALA Architects
Центральная библиотека Хельсинки «Ооди» © ALA Architects
Центральная библиотека Хельсинки «Ооди» © ALA Architects
Центральная библиотека Хельсинки «Ооди» © ALA Architects
Центральная библиотека Хельсинки «Ооди» © ALA Architects
Центральная библиотека Хельсинки «Ооди» © ALA Architects
Центральная библиотека Хельсинки «Ооди» © ALA Architects
Центральная библиотека Хельсинки «Ооди» © ALA Architects
Центральная библиотека Хельсинки «Ооди» © ALA Architects
Центральная библиотека Хельсинки «Ооди» © ALA Architects
Центральная библиотека Хельсинки «Ооди» © ALA Architects
Центральная библиотека Хельсинки «Ооди» © ALA Architects
Центральная библиотека Хельсинки «Ооди» © ALA Architects
Центральная библиотека Хельсинки «Ооди» © ALA Architects
Центральная библиотека Хельсинки «Ооди» © ALA Architects
Центральная библиотека Хельсинки «Ооди» © ALA Architects
Центральная библиотека Хельсинки «Ооди» © ALA Architects
Центральная библиотека Хельсинки «Ооди» © ALA Architects
Центральная библиотека Хельсинки «Ооди» © ALA Architects
Центральная библиотека Хельсинки «Ооди» © ALA Architects
Центральная библиотека Хельсинки «Ооди» © ALA Architects
Центральная библиотека Хельсинки «Ооди» © ALA Architects
Центральная библиотека Хельсинки «Ооди» © ALA Architects
Центральная библиотека Хельсинки «Ооди» © ALA Architects
Центральная библиотека Хельсинки «Ооди» © ALA Architects
Центральная библиотека Хельсинки «Ооди» © ALA Architects
Центральная библиотека Хельсинки «Ооди» © ALA Architects
Центральная библиотека Хельсинки «Ооди» © ALA Architects
Центральная библиотека Хельсинки «Ооди» © ALA Architects
Центральная библиотека Хельсинки «Ооди» © ALA Architects
Центральная библиотека Хельсинки «Ооди» © ALA Architects
Центральная библиотека Хельсинки «Ооди» © ALA Architects
Центральная библиотека Хельсинки «Ооди» © ALA Architects
Центральная библиотека Хельсинки «Ооди» © ALA Architects
Центральная библиотека Хельсинки «Ооди» © ALA Architects
Центральная библиотека Хельсинки «Ооди» © ALA Architects
Центральная библиотека Хельсинки «Ооди» © ALA Architects
Центральная библиотека Хельсинки «Ооди» © ALA Architects
Центральная библиотека Хельсинки «Ооди» © ALA Architects
Центральная библиотека Хельсинки «Ооди» © ALA Architects
Центральная библиотека Хельсинки «Ооди» © ALA Architects
Центральная библиотека Хельсинки «Ооди» © ALA Architects