Размещено на портале Архи.ру (www.archi.ru)

26.11.2018

Плавное движение по офису

Нина Фролова
Объект:
Центр инноваций компании Merck
Адрес:
Германия, None, Дармштадт.
Мастерская:
HENN

Центр инноваций компании Merck в Дармштадте по проекту бюро HENN.

Центр инноваций компании Merck. Фото © HGEsch
Центр инноваций компании Merck. Фото © HGEsch

Merck, одно из крупнейших фармацевтических предприятий в мире, а также старейшее из ныне работающих, было основано в Дармштадте в 1668; его штаб-квартира находится в этом городе и сегодня. В наши дни кампус Merck превращается из производственного центра в научно-технологический. В духе такой трансформации – также и появление там Центра инноваций: офисного здания со стимулирующей эффективную работу планировкой.
 
Центр инноваций компании Merck. Фото © HGEsch
Центр инноваций компании Merck. Фото © HGEsch
Центр инноваций компании Merck. Фото © HGEsch
Центр инноваций компании Merck. Фото © HGEsch

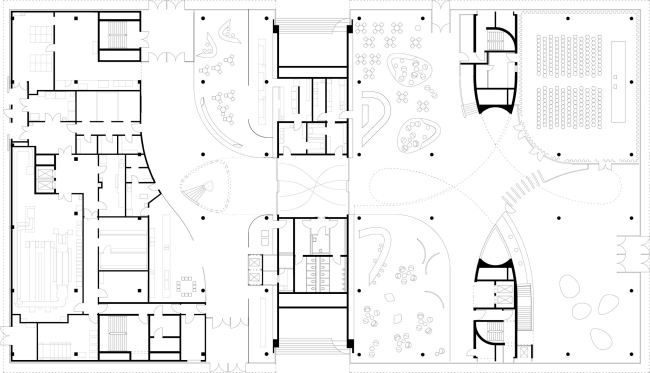
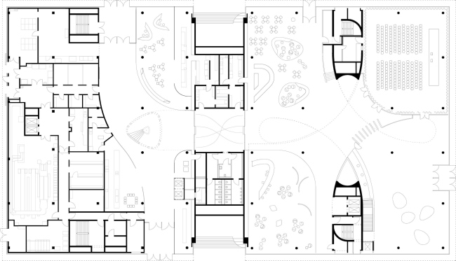
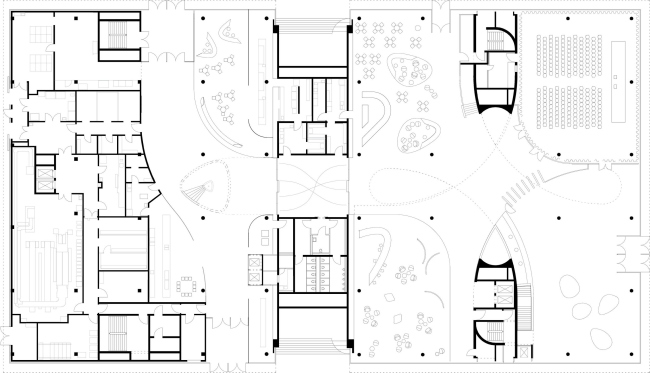
Прямоугольный объем постройки согласуется с окружающими корпусами; отступ от красной линии использован для создания площади: ее дизайном занимались берлинцы Topotek 1. За центром помещено связанное с ним открытой лестницей и закрытым переходом здание столовой для сотрудников кампуса Merck.
 
Центр инноваций компании Merck. Фото © HGEsch
Центр инноваций компании Merck. Фото © HGEsch
Центр инноваций компании Merck. Фото © HGEsch
Центр инноваций компании Merck. Фото © HGEsch

Интерьер Центра инноваций представляет собой непрерывно разворачивающееся пространство, где рабочие зоны – по две на ярусе – связаны мостиками, лестницами и пандусами спирального профиля. Поэтому перемещение между частями здания проходит, по замыслу авторов проекта, плавно и практически незаметно. Большинство опор расставлены вдоль фасадов, в центре находятся лишь четыре. Все они обшиты отполированной до зеркального блеска нержавеющей сталью и потому воспринимаются как арт-объекты, а не как часть конструкции. Пролеты достигают 20 метров.
 
Центр инноваций компании Merck. Фото © HGEsch
Центр инноваций компании Merck. Фото © HGEsch
Центр инноваций компании Merck. Фото © HGEsch
Центр инноваций компании Merck. Фото © HGEsch

Основные рабочие зоны предназначены для групп сотрудников, работающих вместе над проектом или временно. Помещения для требующих тишины занятий и переговорные размещены вдоль фасада и на антресольных уровнях. На первом этаже находятся, помимо прочего, кафе, салон и аудитория, на втором – библиотека, на верхнем – мастерская. Поглощающее звук покрытие потолков создает во всех частях здания комфортную атмосферу.
 
Центр инноваций компании Merck. Фото © HGEsch
Центр инноваций компании Merck. Фото © HGEsch
Центр инноваций компании Merck. Фото © HGEsch
Центр инноваций компании Merck. Фото © HGEsch

Так как Merck – также ведущий производитель жидких кристаллов, в здании размещены два произведения медиа-искусства с новейшими органическими светодиодами: световая и звуковая инсталляция «Облако света» (авторы Tamschick Media + Space) между Центром инноваций и корпусом столовой и «Стена вдохновения» над стойкой администратора (Art + Com AG).
 
Центр инноваций компании Merck. Фото © HGEsch
Центр инноваций компании Merck. Фото © HGEsch
Центр инноваций компании Merck. Фото © HGEsch
Центр инноваций компании Merck. Фото © HGEsch

Здание столовой для сотрудников своим интерьером вторит соседнему корпусу: обтекаемые, овальные пространства, «зеркальные» опоры, много естественного освещения, а также более «загруженное» пространство в центре и свободное – по углам. Первый этаж занят фудкортом, два верхних – столиками. Обе постройки получили «платиновый» сертификат LEED.
Центр инноваций компании Merck. Фото © HGEsch
Центр инноваций компании Merck. Фото © HGEsch
Центр инноваций компании Merck. Фото © HGEsch
Центр инноваций компании Merck. Фото © HGEsch
Центр инноваций компании Merck. Фото © HGEsch
Центр инноваций компании Merck. Фото © HGEsch
Центр инноваций компании Merck. Фото © HGEsch
Центр инноваций компании Merck. Фото © HGEsch
Центр инноваций компании Merck. Фото © HGEsch
Центр инноваций компании Merck. Фото © HGEsch
Центр инноваций компании Merck. Фото © HGEsch
Центр инноваций компании Merck. Фото © HGEsch
Центр инноваций компании Merck. Фото © HGEsch
Центр инноваций компании Merck. Фото © HGEsch
Центр инноваций компании Merck. Фото © HGEsch
Центр инноваций компании Merck. Фото © HGEsch
Центр инноваций компании Merck. Фото © HENN
Центр инноваций компании Merck. Фото © HENN
Центр инноваций компании Merck. Фото © HENN
Центр инноваций компании Merck. Фото © HENN
Центр инноваций компании Merck. Фото © HENN
Центр инноваций компании Merck. Фото © HENN
Центр инноваций компании Merck. Фото © HENN
Центр инноваций компании Merck. Фото © HENN
Центр инноваций компании Merck. Фото © HENN
Центр инноваций компании Merck. Фото © HENN
Центр инноваций компании Merck. Фото © HENN
Центр инноваций компании Merck. Фото © HENN
Центр инноваций компании Merck. Фото © HENN
Центр инноваций компании Merck. Фото © HENN
Центр инноваций компании Merck. Фото © HENN
Центр инноваций компании Merck. Фото © HENN
Центр инноваций компании Merck. Фото © HENN
Центр инноваций компании Merck. Фото © HENN
Центр инноваций компании Merck. Фото © HENN
Центр инноваций компании Merck. Фото © HENN
Центр инноваций компании Merck. Фото © HENN
Центр инноваций компании Merck. Фото © HENN
Центр инноваций компании Merck. Фото © HENN
Центр инноваций компании Merck. Фото © HENN
Центр инноваций компании Merck. Фото © HENN
Центр инноваций компании Merck. Фото © HENN
Центр инноваций компании Merck. Фото © HENN
Центр инноваций компании Merck. Фото © HENN