Размещено на портале Архи.ру (www.archi.ru)

21.11.2018

Сотня куполов

Нина Фролова
Объект:
Мечеть района Панчбоул
Адрес:
Австралия, None, Сидней.
Мастерская:
Candalepas Associates

Мечеть в пригороде Сиднея Панчбоул по проекту Candalepas Associates.

Мечеть района Панчбоул. Фото © Brett Boardman
Мечеть района Панчбоул. Фото © Brett Boardman

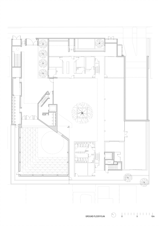
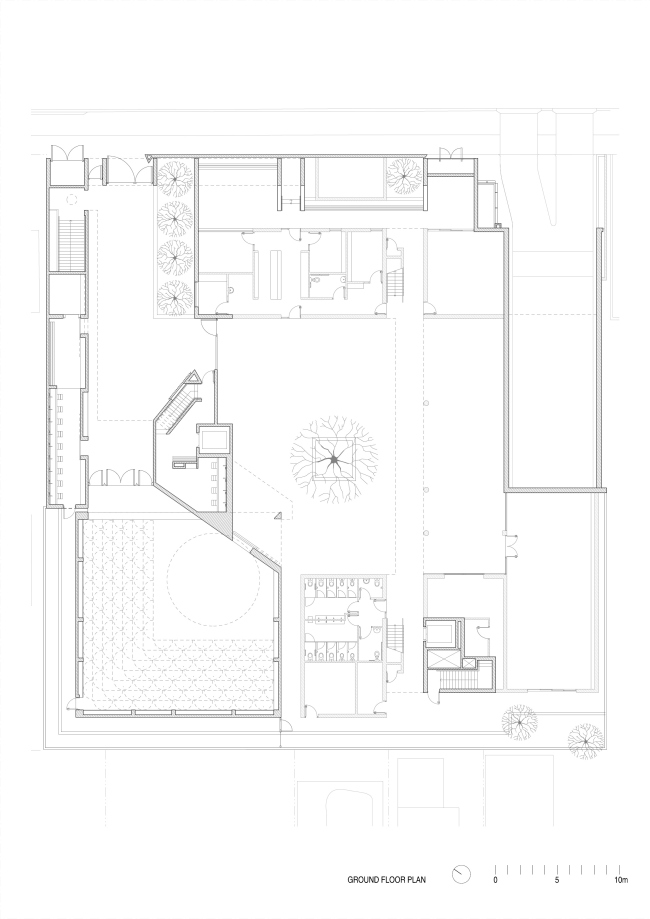
Новая мечеть построена по заказу Австралийской исламской миссии (AIM) в сиднейском пригороде Панчбоул, где мусульмане составляют среди верующих большинство.
 
Мечеть района Панчбоул. Фото © Brett Boardman
Мечеть района Панчбоул. Фото © Brett Boardman

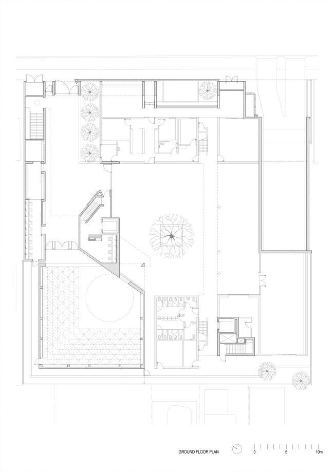
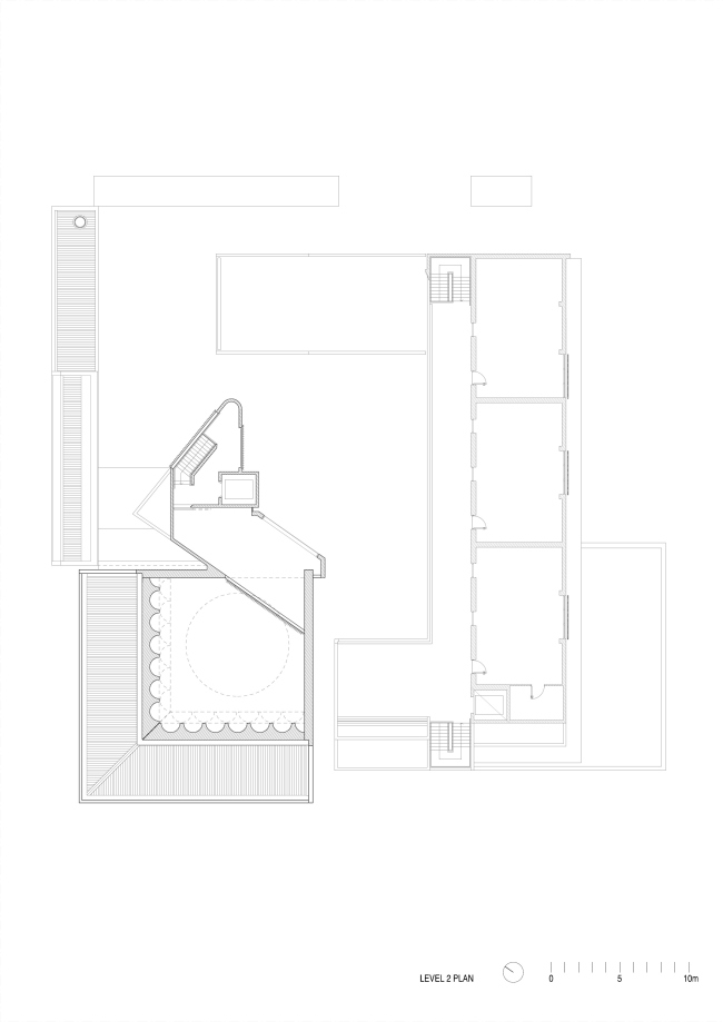
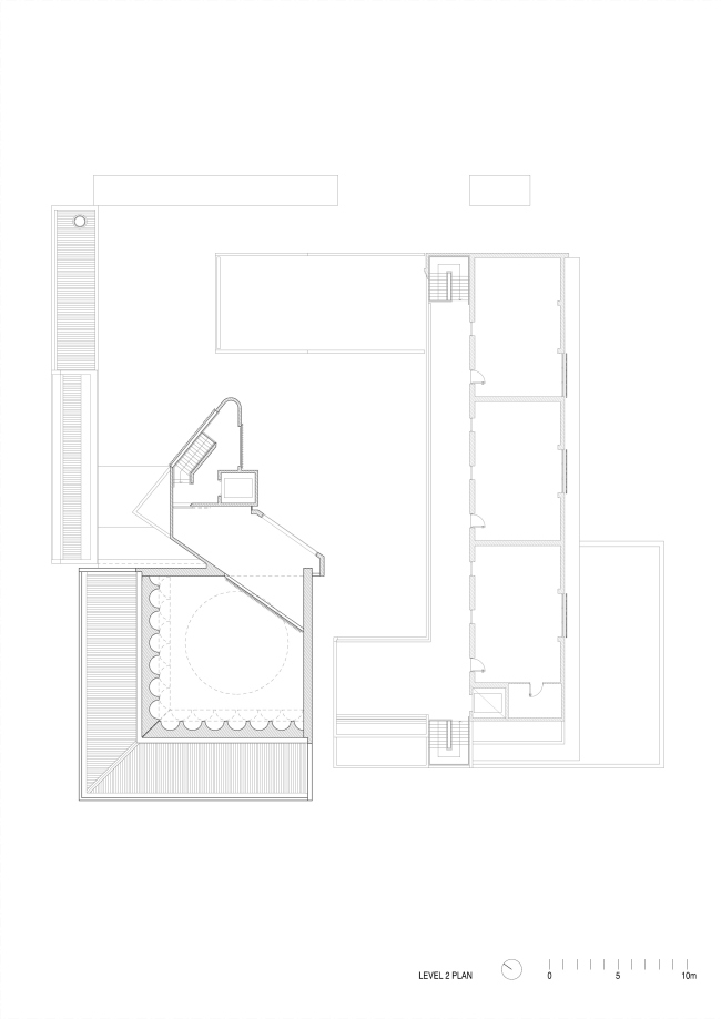
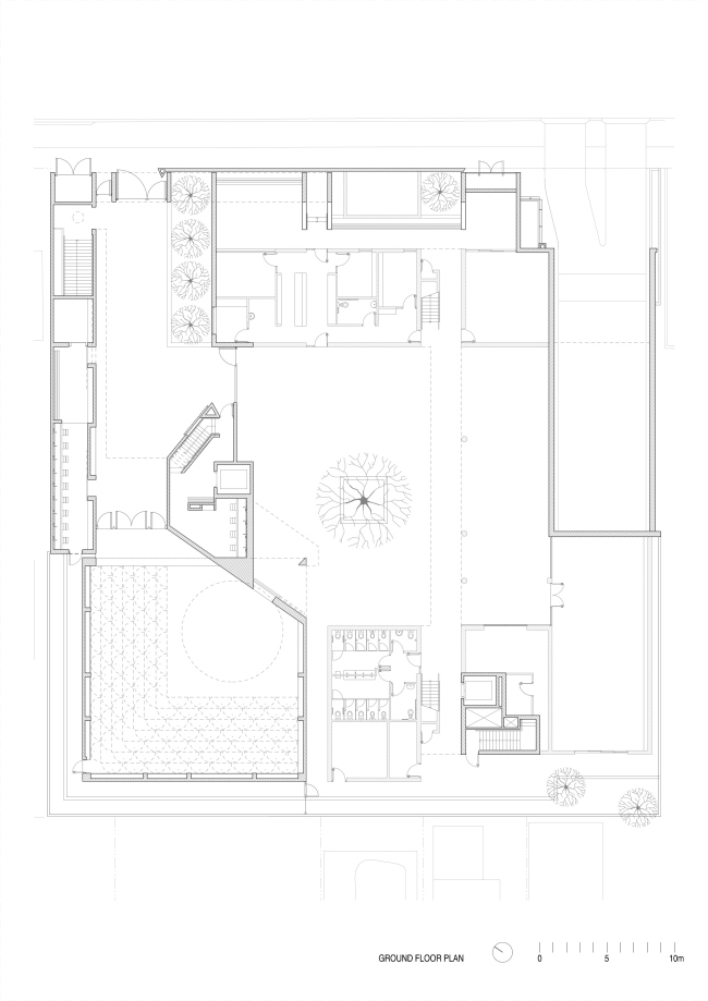
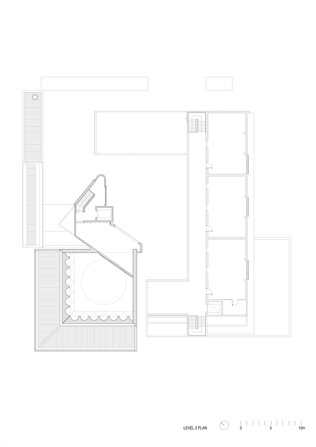
Современные формы сочетаются в проекте с историческими отсылками: так, бетонные перекрытия молельного зала напоминают мукарны сотового свода – компонента традиционной арабской архитектуры. Эти небольшие полукупола вместе с главным, обшитым деревом, составляют сотню. Во всех них есть пропускающие солнечный свет отверстия, у большого – настоящий окулюс, у мукарн – напоминающие размером звезды на ночном небе маленькие проемы.
 
Мечеть района Панчбоул. Фото © Brett Boardman
Мечеть района Панчбоул. Фото © Brett Boardman

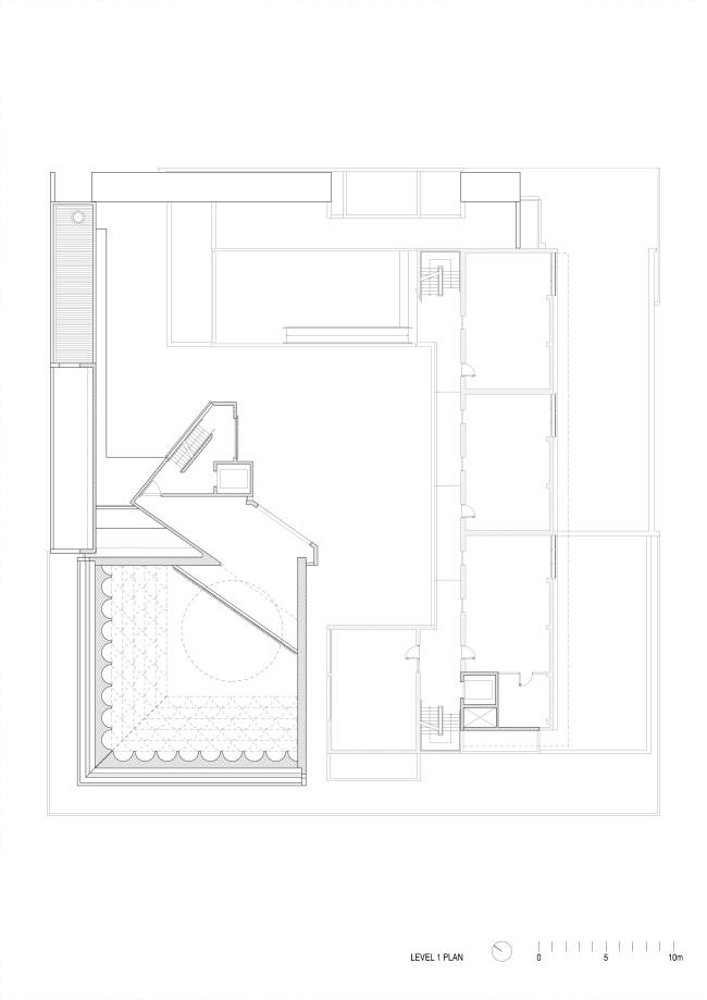
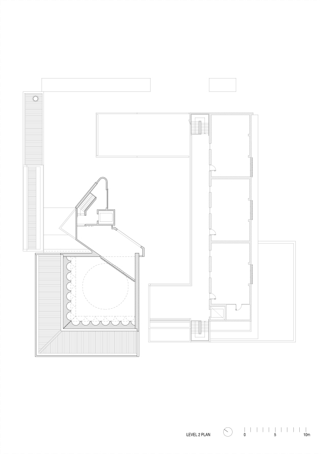
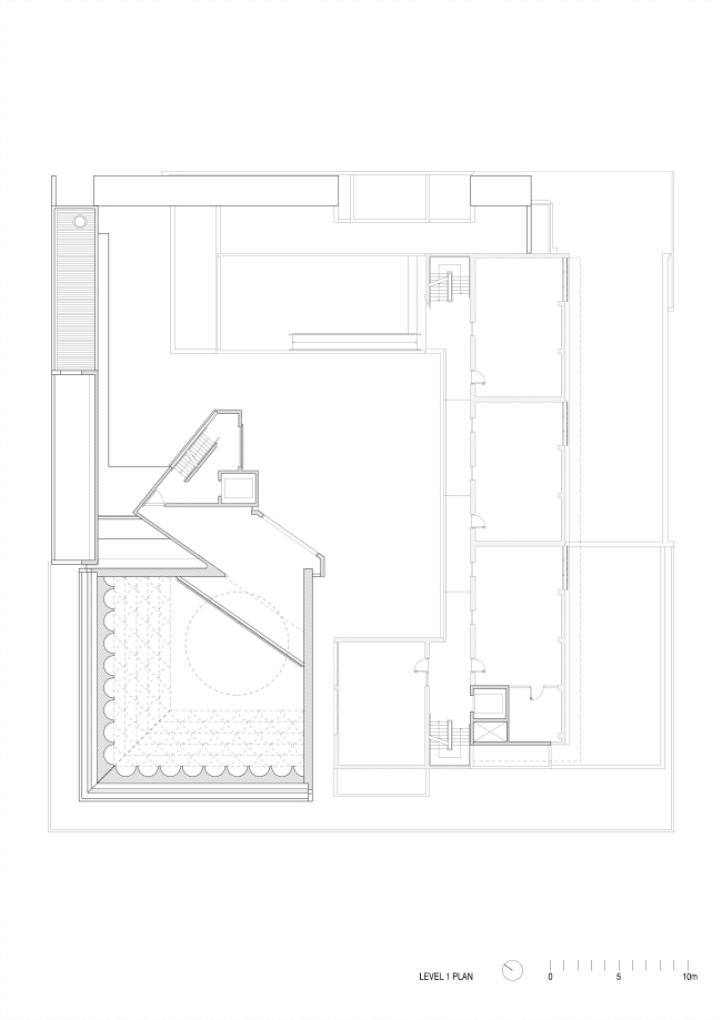
Минарет у входа мало выделяется по высоте; его фасад прорезан вертикальными профилями. Похожие вертикальные ламели составляют деревянные экраны, закрывающих женскую галерею на антресольном этаже от взглядов из основного зала.
 
Мечеть района Панчбоул. Фото © Brett Boardman
Мечеть района Панчбоул. Фото © Brett Boardman

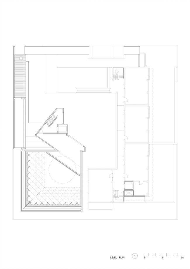
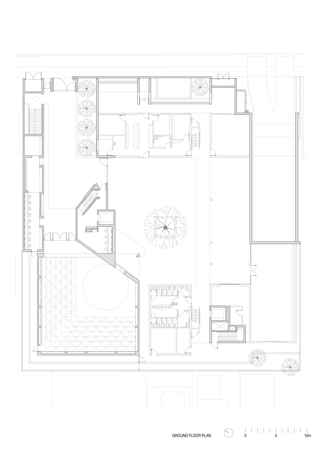
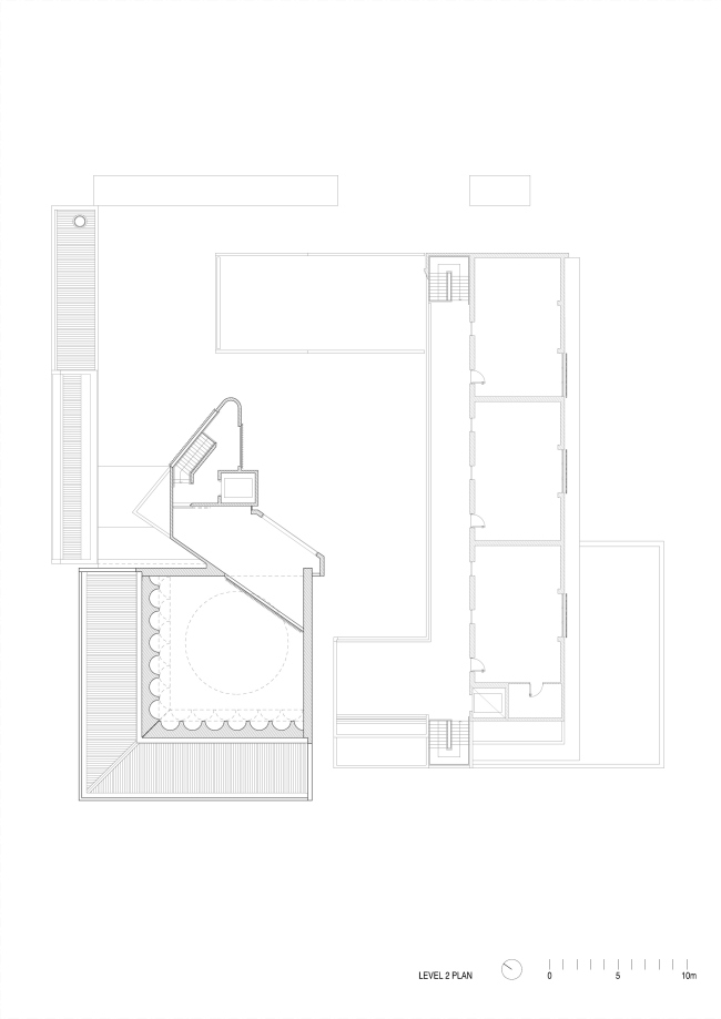
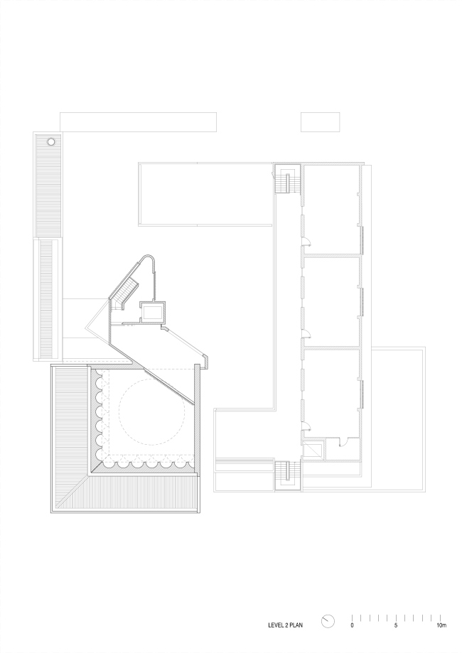
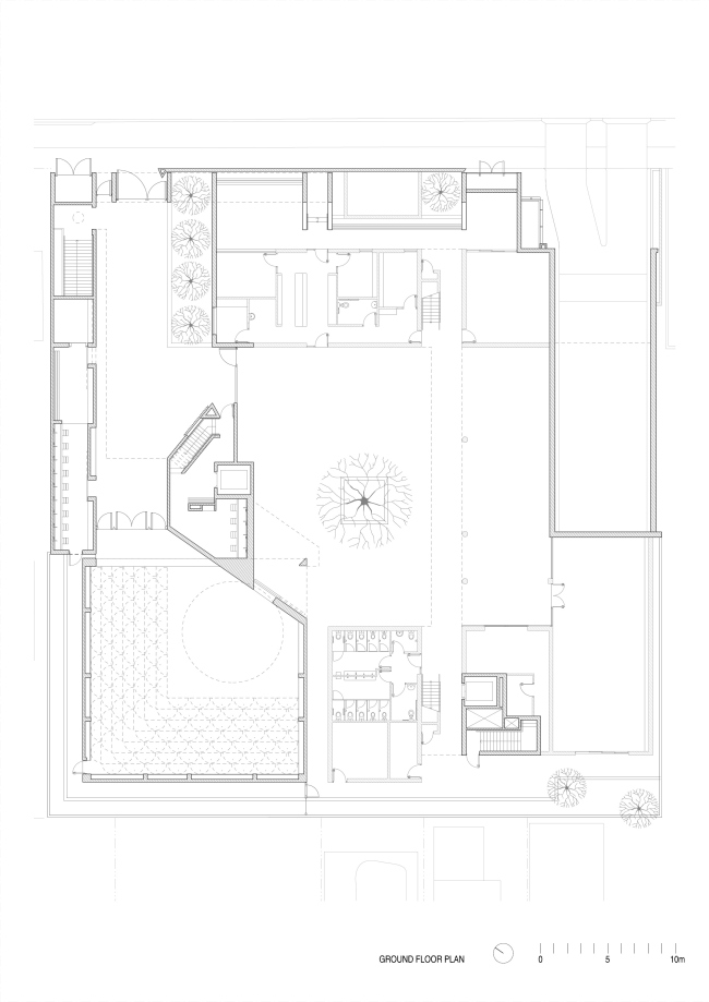
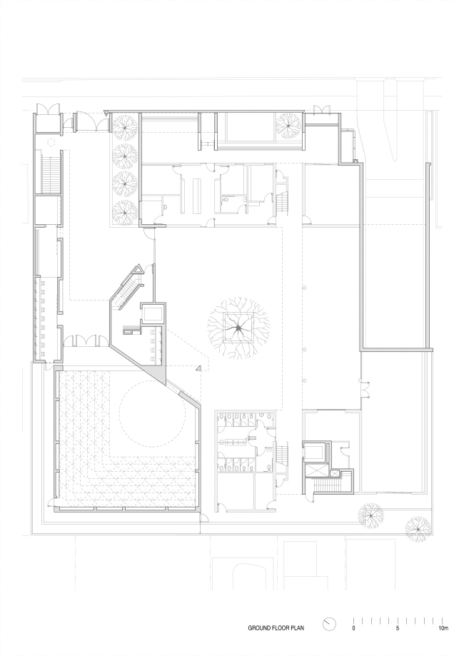
Мечеть площадью 495 м2 покоится на двухъярусном подземном гараже: его устройство было обязательным требованием местных властей.
Мечеть района Панчбоул. Фото © Brett Boardman
Мечеть района Панчбоул. Фото © Brett Boardman
Мечеть района Панчбоул. Фото © Brett Boardman
Мечеть района Панчбоул. Фото © Brett Boardman
Мечеть района Панчбоул. Фото © Brett Boardman
Мечеть района Панчбоул. Фото © Brett Boardman
Мечеть района Панчбоул. Фото © Brett Boardman
Мечеть района Панчбоул. Фото © Brett Boardman
Мечеть района Панчбоул. Фото © Brett Boardman
Мечеть района Панчбоул. Фото © Brett Boardman
Мечеть района Панчбоул. Фото © Brett Boardman
Мечеть района Панчбоул. Фото © Brett Boardman
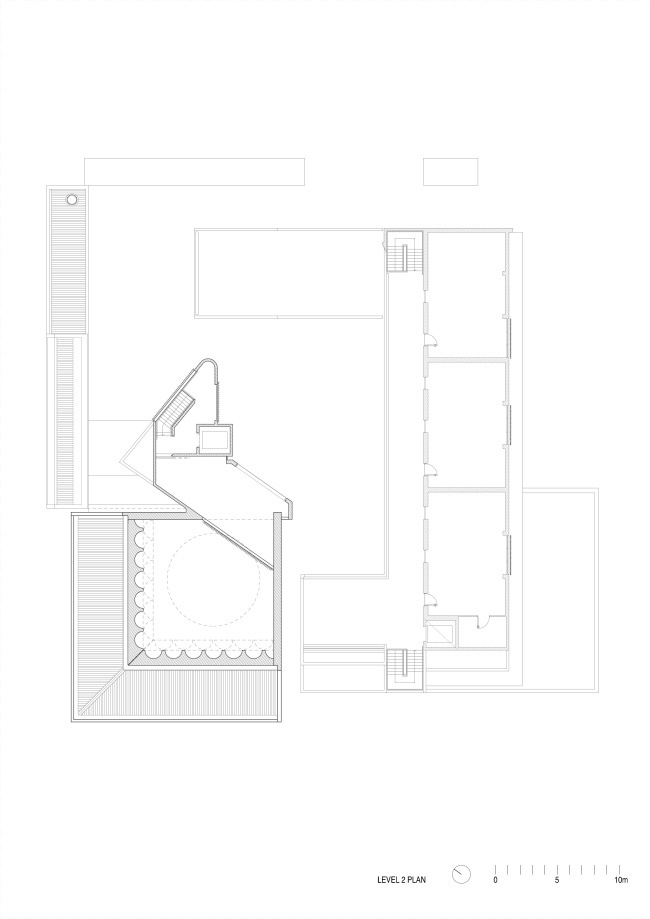
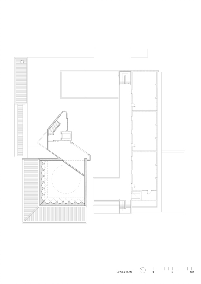
Мечеть района Панчбоул © Candalepas Associates
Мечеть района Панчбоул © Candalepas Associates
Мечеть района Панчбоул © Candalepas Associates
Мечеть района Панчбоул © Candalepas Associates
Мечеть района Панчбоул © Candalepas Associates
Мечеть района Панчбоул © Candalepas Associates
Мечеть района Панчбоул © Candalepas Associates
Мечеть района Панчбоул © Candalepas Associates
Мечеть района Панчбоул © Candalepas Associates
Мечеть района Панчбоул © Candalepas Associates
Мечеть района Панчбоул © Candalepas Associates
Мечеть района Панчбоул © Candalepas Associates