Размещено на портале Архи.ру (www.archi.ru)

16.11.2018

Обитаемые склоны

Нина Фролова
Объект:
Жилой комплекс 79&PARK
Адрес:
Швеция, None, Стокгольм.
Мастерская:
BIG

Жилой комплекс 79&PARK в Стокгольме по проекту бюро BIG.

Жилой комплекс 79&PARK. Фото © Laurian Ghinitoiu
Жилой комплекс 79&PARK. Фото © Laurian Ghinitoiu

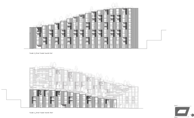
Девелопером дома на 169 квартир выступила компания Oscar Properties, одновременно с 79&PARK торжественно открывшая и другой свой проект, Norra Tornen бюро OMA (см. о нем текст Архи.ру). В отличие от постройки роттердамских архитекторов, жилой комплекс Бьярке Ингельса расположен в почти природном окружении – рядом с большим парком в районе Гердет. Здесь применен характерный для BIG прием: у окаймляющего внутренний двор здания один угол приподнят, противоположный – опущен, два оставшихся занимают среднюю позицию.
 
Жилой комплекс 79&PARK. Фото © Laurian Ghinitoiu
Жилой комплекс 79&PARK. Фото © Laurian Ghinitoiu

35-метровая часть здания наиболее удалена от парка, но квартиры там тоже получили вид на эту зеленую зону и гавань Фрихамн благодаря большей этажности. Самый низкий, 7-метровый угол смягчает границу между парком и зданием. Остальные углы по высоте соответствуют соседним с 79&PARK постройкам.
 
Жилой комплекс 79&PARK. Фото © Laurian Ghinitoiu
Жилой комплекс 79&PARK. Фото © Laurian Ghinitoiu

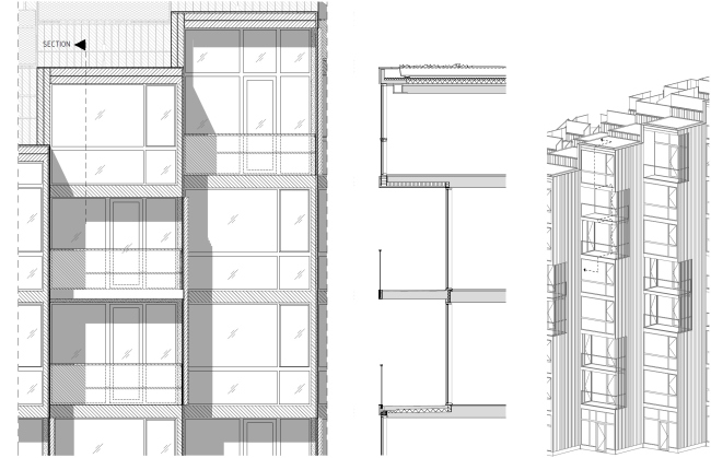
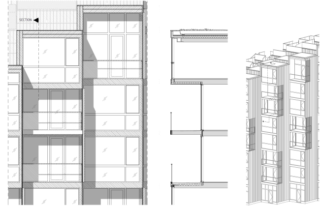
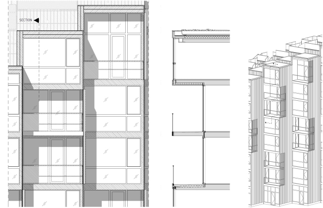
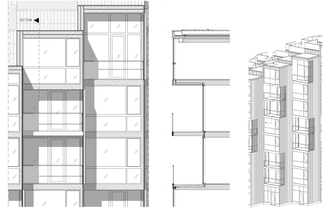
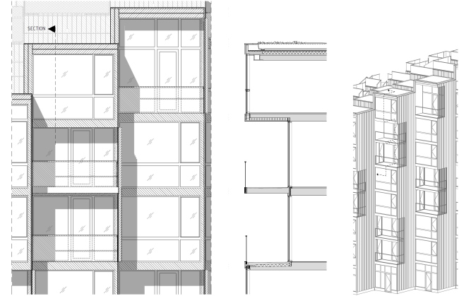
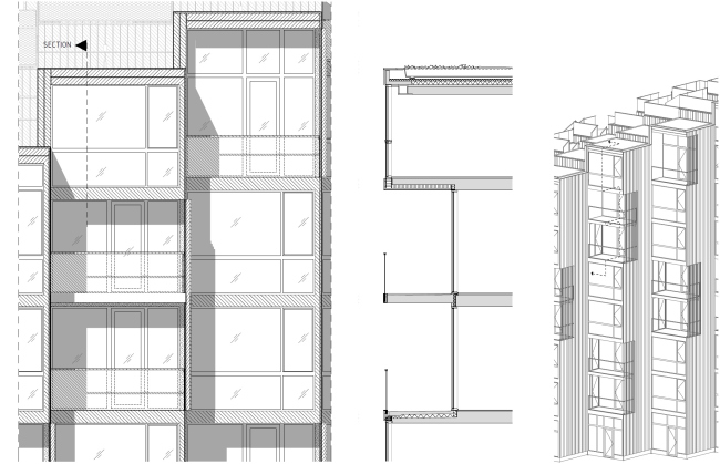
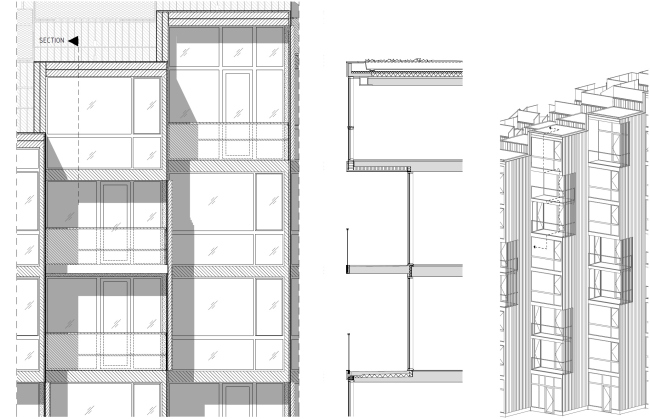
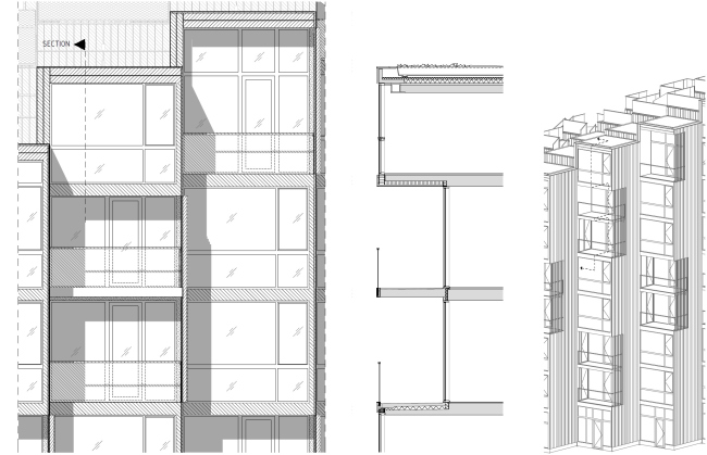
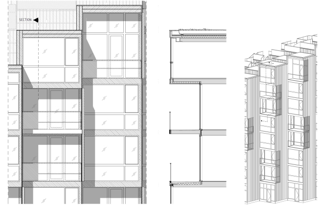
Здание составлено из модулей 3,6 м на 3,6 м, которые формируют его напоминающий склоны холма силуэт и обеспечивают жильцам частные и общественные зеленые террасы. Почти у всех квартир – индивидуальная планировка.
 
Жилой комплекс 79&PARK. Фото © Laurian Ghinitoiu
Жилой комплекс 79&PARK. Фото © Laurian Ghinitoiu

Фасады оформлены древесиной хвойных пород. В разделенном на «плато» дворе есть детский сад, центр дневного пребывания для собак, парковка для велосипедов, зеленая зона.
Жилой комплекс 79&PARK. Фото © Laurian Ghinitoiu
Жилой комплекс 79&PARK. Фото © Laurian Ghinitoiu
Жилой комплекс 79&PARK. Фото © Laurian Ghinitoiu
Жилой комплекс 79&PARK. Фото © Laurian Ghinitoiu
Жилой комплекс 79&PARK. Фото © Laurian Ghinitoiu
Жилой комплекс 79&PARK. Фото © Laurian Ghinitoiu
Жилой комплекс 79&PARK. Фото © Laurian Ghinitoiu
Жилой комплекс 79&PARK. Фото © Laurian Ghinitoiu
Жилой комплекс 79&PARK. Фото © Laurian Ghinitoiu
Жилой комплекс 79&PARK. Фото © Laurian Ghinitoiu
Жилой комплекс 79&PARK. Фото © Laurian Ghinitoiu
Жилой комплекс 79&PARK. Фото © Laurian Ghinitoiu
Жилой комплекс 79&PARK. Фото © Laurian Ghinitoiu
Жилой комплекс 79&PARK. Фото © Laurian Ghinitoiu
Жилой комплекс 79&PARK. Фото © Laurian Ghinitoiu
Жилой комплекс 79&PARK. Фото © Laurian Ghinitoiu
Жилой комплекс 79&PARK. Фото © Laurian Ghinitoiu
Жилой комплекс 79&PARK. Фото © Laurian Ghinitoiu
Жилой комплекс 79&PARK. Фото © Laurian Ghinitoiu
Жилой комплекс 79&PARK. Фото © Laurian Ghinitoiu
Жилой комплекс 79&PARK. Фото © Laurian Ghinitoiu
Жилой комплекс 79&PARK. Фото © Laurian Ghinitoiu
Жилой комплекс 79&PARK. Фото © Laurian Ghinitoiu
Жилой комплекс 79&PARK. Фото © Laurian Ghinitoiu
Жилой комплекс 79&PARK. Фото © Laurian Ghinitoiu
Жилой комплекс 79&PARK. Фото © Laurian Ghinitoiu
Жилой комплекс 79&PARK © BIG
Жилой комплекс 79&PARK © BIG
Жилой комплекс 79&PARK © BIG
Жилой комплекс 79&PARK © BIG
Жилой комплекс 79&PARK © BIG
Жилой комплекс 79&PARK © BIG
Жилой комплекс 79&PARK © BIG
Жилой комплекс 79&PARK © BIG
Жилой комплекс 79&PARK © BIG
Жилой комплекс 79&PARK © BIG
Жилой комплекс 79&PARK © BIG
Жилой комплекс 79&PARK © BIG
Жилой комплекс 79&PARK © BIG
Жилой комплекс 79&PARK © BIG
Жилой комплекс 79&PARK © BIG
Жилой комплекс 79&PARK © BIG
Жилой комплекс 79&PARK © BIG
Жилой комплекс 79&PARK © BIG
Жилой комплекс 79&PARK © BIG
Жилой комплекс 79&PARK © BIG
Жилой комплекс 79&PARK © BIG
Жилой комплекс 79&PARK © BIG
Жилой комплекс 79&PARK © BIG
Жилой комплекс 79&PARK © BIG
Жилой комплекс 79&PARK © BIG
Жилой комплекс 79&PARK © BIG
Жилой комплекс 79&PARK © BIG
Жилой комплекс 79&PARK © BIG
Жилой комплекс 79&PARK © BIG
Жилой комплекс 79&PARK © BIG
Жилой комплекс 79&PARK © BIG
Жилой комплекс 79&PARK © BIG
Жилой комплекс 79&PARK © BIG
Жилой комплекс 79&PARK © BIG