Размещено на портале Архи.ру (www.archi.ru)

15.11.2018

Сухопутный корабль

Нина Фролова
Объект:
Национальный Гаосюнский центр искусств Вэйуин
Адрес:
Тайвань, None, Гаосюн.
Мастерская:
BEMO
Mecanoo

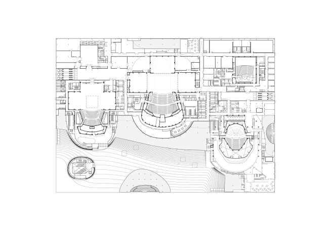
Национальный центр искусств в Гаосюне на Тайване по проекту бюро Mecanoo объединяет четыре зала общей вместимостью почти 6000 зрителей.

Центр исполнительских искусств Вэйуин. Фото © Iwan Baan
Центр исполнительских искусств Вэйуин. Фото © Iwan Baan

Национальный центр искусств также называется Вэйуин – по городскому парку, где он находится, созданному на месте военной базы. Из его территории в 64 га выделили 10 га под центр искусств, из них 7 га в итоге заняты озелененной территорией, а оставшиеся три – собственно пятном застройки.
 
Центр исполнительских искусств Вэйуин. Фото © Iwan Baan
Центр исполнительских искусств Вэйуин. Фото © Iwan Baan
Центр исполнительских искусств Вэйуин. Фото © Iwan Baan
Центр исполнительских искусств Вэйуин. Фото © Iwan Baan
Баньян (фикус мелкоплодный). Фото © Harry Cock
Баньян (фикус мелкоплодный). Фото © Harry Cock
Центр исполнительских искусств Вэйуин. Фото © Iwan Baan
Центр исполнительских искусств Вэйуин. Фото © Iwan Baan
Центр исполнительских искусств Вэйуин. Фото © Iwan Baan
Центр исполнительских искусств Вэйуин. Фото © Iwan Baan

Здание вдохновлено образом дерева баньян, характерного для субтропического Тайваня: благодаря дополнительным побегам-стволам его крона может порой достигать огромной площади. В тени можно устроить собрание, праздник или разместить уличных актеров и зрителей. Баньяны росли и на территории закрытой военной базы до того момента, когда ее стали превращать в новую рекреационную зону.
 
Центр исполнительских искусств Вэйуин. Фото © National Kaohsiung Center for the Arts (Weiwuying)
Центр исполнительских искусств Вэйуин. Фото © National Kaohsiung Center for the Arts (Weiwuying)
Центр исполнительских искусств Вэйуин. Фото © Shawn Liu Studio
Центр исполнительских искусств Вэйуин. Фото © Shawn Liu Studio
Центр исполнительских искусств Вэйуин. Фото © Shawn Liu Studio
Центр исполнительских искусств Вэйуин. Фото © Shawn Liu Studio
Центр исполнительских искусств Вэйуин. Фото © NAARO
Центр исполнительских искусств Вэйуин. Фото © NAARO
Центр исполнительских искусств Вэйуин. Фото © Iwan Baan
Центр исполнительских искусств Вэйуин. Фото © Iwan Baan

Так под зданием появилась вдохновленная этим деревом Баньяновая плаза – общественное пространство и своего рода вестибюль центра искусств. Пол сделан наливным, «потолок» обшит листовой сталью по кораблестроительной технологии, причем архитекторы добивались сходства с грузовым судном (Гаосюн – один из крупнейших портов мира), а не с «роскошной яхтой». Поэтому хорошо видны швы, есть крепления, на которые можно повесить светильники, флаги или баннеры, вместо ватерлинии – отметки высоты над уровнем моря. Праздничный настрой после захода солнца создают 12 круглых люстр.
 
Центр исполнительских искусств Вэйуин. Фото © Ethan Lee
Центр исполнительских искусств Вэйуин. Фото © Ethan Lee
Центр исполнительских искусств Вэйуин. Фото © Ethan Lee
Центр исполнительских искусств Вэйуин. Фото © Ethan Lee
Центр исполнительских искусств Вэйуин. Фото © Ethan Lee
Центр исполнительских искусств Вэйуин. Фото © Ethan Lee
Центр исполнительских искусств Вэйуин. Фото © Iwan Baan
Центр исполнительских искусств Вэйуин. Фото © Iwan Baan
Центр исполнительских искусств Вэйуин. Фото © Shawn Liu Studio
Центр исполнительских искусств Вэйуин. Фото © Shawn Liu Studio

Четыре зала, каждый со своим фойе, вырастают из «баньяновых стволов». Самый крупный – черно-красный оперный зал. 2260 зрителей размещены по традиционному плану – подкова с ярусами балконов. Акустическая схема рассчитана на исполнение западного репертуара на иностранных для тайванцев языках, поэтому особое внимание было уделено максимальной четкости звука. Вместе с тем зал можно акустически и технически приспосабливать для постановки китайских опер.
 
Центр исполнительских искусств Вэйуин. Фото © Shawn Liu Studio
Центр исполнительских искусств Вэйуин. Фото © Shawn Liu Studio
Центр исполнительских искусств Вэйуин. Фото © National Kaohsiung Center for the Arts (Weiwuying)
Центр исполнительских искусств Вэйуин. Фото © National Kaohsiung Center for the Arts (Weiwuying)
Центр исполнительских искусств Вэйуин. Фото © National Kaohsiung Center for the Arts (Weiwuying)
Центр исполнительских искусств Вэйуин. Фото © National Kaohsiung Center for the Arts (Weiwuying)
Центр исполнительских искусств Вэйуин. Фото © Ethan Lee
Центр исполнительских искусств Вэйуин. Фото © Ethan Lee

Самым сложным был концертный зал на 1981 человека: специалисты по акустике Xu Acoustique в ходе работы выполнили его модель в масштабе 1:10, а проведение различных проверок и экспериментов в Гаосюнском центре искусств заняло девять месяцев между завершением строительства и официальным открытием. Как и для большинства современных концертных залов крупного размера, было выбрано устройство террасами («виноградник») со сценой в центре: его изобрел после войны Ганс Шарун для знаменитого здания Берлинской Филармонии. Кроме возможности разместить всех зрителей вблизи исполнителей (в Гаосюне расстояние от задних рядов до дирижера не превышает 30 метров) и демократической открытости планировки, такой вариант также обходится без балконов, то есть для всех слушателей звук отражается непосредственно от акустических панелей потолка. Здесь выбраны обшивка светлым дубом и золотистая обивка кресел, как и в камерном концертном зале на 434 человека. Трансформируемый театральный зал с 1234 местами рассчитан на балетные и драматические спектакли, а также китайскую оперу; обивка кресел там окрашена в «синий цвет Mecanoo».
 
Центр исполнительских искусств Вэйуин. Фото © Shawn Liu Studio
Центр исполнительских искусств Вэйуин. Фото © Shawn Liu Studio
Центр исполнительских искусств Вэйуин. Фото © Shawn Liu Studio
Центр исполнительских искусств Вэйуин. Фото © Shawn Liu Studio
Центр исполнительских искусств Вэйуин. Фото © Ethan Lee
Центр исполнительских искусств Вэйуин. Фото © Ethan Lee

Кроме четырех залов, в здании размещены открытый амфитеатр, библиотека, учебные и репетиционные танцевальные и музыкальные студии, два конференц-зала (100 и 200 мест) и декорационные мастерские. Общая площадь здания – 140 000 м2, бюджет – 366 млн долларов. Центр искусств в Гаосюне стал третьим «большим театром» Тайваня, после Национальных театра и концертного зала в Тайбэе (1987, архитектор Ян Чочэн) и Национального театра в Тайчжуне (2014 и 2016, Тойо Ито).
Центр исполнительских искусств Вэйуин. Фото © National Kaohsiung Center for the Arts (Weiwuying)
Центр исполнительских искусств Вэйуин. Фото © National Kaohsiung Center for the Arts (Weiwuying)
Центр исполнительских искусств Вэйуин. Фото © National Kaohsiung Center for the Arts (Weiwuying)
Центр исполнительских искусств Вэйуин. Фото © National Kaohsiung Center for the Arts (Weiwuying)
Центр исполнительских искусств Вэйуин. Фото © Ethan Lee
Центр исполнительских искусств Вэйуин. Фото © Ethan Lee
Центр исполнительских искусств Вэйуин. Фото © Iwan Baan
Центр исполнительских искусств Вэйуин. Фото © Iwan Baan
Центр исполнительских искусств Вэйуин. Фото © Ethan Lee
Центр исполнительских искусств Вэйуин. Фото © Ethan Lee
Центр исполнительских искусств Вэйуин © Mecanoo architecten
Центр исполнительских искусств Вэйуин © Mecanoo architecten
Центр исполнительских искусств Вэйуин © Mecanoo architecten
Центр исполнительских искусств Вэйуин © Mecanoo architecten
Центр исполнительских искусств Вэйуин © Mecanoo architecten
Центр исполнительских искусств Вэйуин © Mecanoo architecten
Центр исполнительских искусств Вэйуин © Mecanoo architecten
Центр исполнительских искусств Вэйуин © Mecanoo architecten
Центр исполнительских искусств Вэйуин © Mecanoo architecten
Центр исполнительских искусств Вэйуин © Mecanoo architecten
Центр исполнительских искусств Вэйуин © Mecanoo architecten
Центр исполнительских искусств Вэйуин © Mecanoo architecten
Центр исполнительских искусств Вэйуин © Mecanoo architecten
Центр исполнительских искусств Вэйуин © Mecanoo architecten
Центр исполнительских искусств Вэйуин © Mecanoo architecten
Центр исполнительских искусств Вэйуин © Mecanoo architecten
Центр исполнительских искусств Вэйуин © Mecanoo architecten
Центр исполнительских искусств Вэйуин © Mecanoo architecten
Центр исполнительских искусств Вэйуин © Mecanoo architecten
Центр исполнительских искусств Вэйуин © Mecanoo architecten
Центр исполнительских искусств Вэйуин, 2011 © Harry Cock
Центр исполнительских искусств Вэйуин, 2011 © Harry Cock
Центр исполнительских искусств Вэйуин, 2013 © Kouzi Isita
Центр исполнительских искусств Вэйуин, 2013 © Kouzi Isita
Центр исполнительских искусств Вэйуин, 2013 © Christian Richters
Центр исполнительских искусств Вэйуин, 2013 © Christian Richters
Центр исполнительских искусств Вэйуин, 2013 © Mecanoo architecten
Центр исполнительских искусств Вэйуин, 2013 © Mecanoo architecten
Центр исполнительских искусств Вэйуин, 2015 © Kouzi Isita
Центр исполнительских искусств Вэйуин, 2015 © Kouzi Isita