Размещено на портале Архи.ру (www.archi.ru)

15.11.2018

Многоэтажный жилой дом из контейнеров в Йоханнесбурге

Алина Измайлова

Нестандартный жилой дом появился в деловом районе самого крупного города ЮАР, переживающем сейчас второе рождение. Шесть этажей комплекса Drivelines Studios выстроены из отработанных грузовых контейнеров – всего 140 штук. Проект принадлежит нью-йоркским архитекторам LOT-EK, чья любовь к 40-футовым контейнерам уже давно побила рекорды. Основатели LOT-EK вообще любят использовать в своих проектах готовые техногенные объекты (будь то фюзеляж самолёта или кузов авто) и раскрывать архитектурный потенциал этих вещей.

Жилой комплекс Drivelines Studios. Фотография © Dave Southwood. Предоставлена LOT-EK
Жилой комплекс Drivelines Studios. Фотография © Dave Southwood. Предоставлена LOT-EK

Комплекс Drivelines Studios – это два отдельных объёма, состоящих из поставленных друг на друга одинаковых контейнеров. В восточной части участка блоки сходятся в единой точке – такое расположение обусловлено треугольной формой участка. Между зданиями располагается внутренний дворик с бассейном и зеленью; на него возложена социальная миссия – содействовать установлению добрососедских отношений.
Жилой комплекс Drivelines Studios. Фотография © Dave Southwood. Предоставлена LOT-EK
Жилой комплекс Drivelines Studios. Фотография © Dave Southwood. Предоставлена LOT-EK

Внешний вид комплекса имитирует рекламный щит: то же соотношение ширины-высоты и лаконизм уличных фасадов. Со двора видно более сложное устройство сооружения: уровни связаны лестницами, «мостиками»-галереями, лифтовой башней. Эти узлы создают множество сценариев для взаимодействия жителей и предлагают различные маршруты для перемещения. Первые этажи комплекса частично заняты торговыми точками, остальное место отведено под жильё площадью от 28 до 56 м2.
Жилой комплекс Drivelines Studios. Фотография © Dave Southwood. Предоставлена LOT-EK
Жилой комплекс Drivelines Studios. Фотография © Dave Southwood. Предоставлена LOT-EK

Перед окончательной установкой контейнеры прошли «предварительную обработку»: на них сделали большие диагональные вырезы, которые, с одной стороны, служат проёмами для окон, с другой – формируют ритмический узор. Все работы проводились уже на месте.
Жилой комплекс Drivelines Studios. Фотография © Dave Southwood. Предоставлена LOT-EK
Жилой комплекс Drivelines Studios. Фотография © Dave Southwood. Предоставлена LOT-EK

Проект является продолжением масштабной кампании по восстановлению района Мэбоненг (Maboneng), начавшейся около десяти лет назад. За это время из криминального и грязного Мэбоненг превратился в безопасный, модный и творческий. Второе дыхание округе подарил молодой девелопер Джонатан Либман (Jonathan Liebmann); джентрификацию он проводил без поддержки государства и практически в одиночку. Причём на старте Либману не было и тридцати лет.
Жилой комплекс Drivelines Studios. Фотография © Dave Southwood. Предоставлена LOT-EK
Жилой комплекс Drivelines Studios. Фотография © Dave Southwood. Предоставлена LOT-EK
Жилой комплекс Drivelines Studios. Фотография © Dave Southwood. Предоставлена LOT-EK
Жилой комплекс Drivelines Studios. Фотография © Dave Southwood. Предоставлена LOT-EK
Жилой комплекс Drivelines Studios. Фотография © Dave Southwood. Предоставлена LOT-EK
Жилой комплекс Drivelines Studios. Фотография © Dave Southwood. Предоставлена LOT-EK
Жилой комплекс Drivelines Studios. Фотография © Dave Southwood. Предоставлена LOT-EK
Жилой комплекс Drivelines Studios. Фотография © Dave Southwood. Предоставлена LOT-EK
Жилой комплекс Drivelines Studios. Фотография © Dave Southwood. Предоставлена LOT-EK
Жилой комплекс Drivelines Studios. Фотография © Dave Southwood. Предоставлена LOT-EK
Жилой комплекс Drivelines Studios. Фотография © Dave Southwood. Предоставлена LOT-EK
Жилой комплекс Drivelines Studios. Фотография © Dave Southwood. Предоставлена LOT-EK
Жилой комплекс Drivelines Studios. Фотография © Dave Southwood. Предоставлена LOT-EK
Жилой комплекс Drivelines Studios. Фотография © Dave Southwood. Предоставлена LOT-EK
Жилой комплекс Drivelines Studios. Фотография © Dave Southwood. Предоставлена LOT-EK
Жилой комплекс Drivelines Studios. Фотография © Dave Southwood. Предоставлена LOT-EK
Жилой комплекс Drivelines Studios. Фотография © Dave Southwood. Предоставлена LOT-EK
Жилой комплекс Drivelines Studios. Фотография © Dave Southwood. Предоставлена LOT-EK
Жилой комплекс Drivelines Studios. Фотография © Dave Southwood. Предоставлена LOT-EK
Жилой комплекс Drivelines Studios. Фотография © Dave Southwood. Предоставлена LOT-EK
Жилой комплекс Drivelines Studios. Фотография © Dave Southwood. Предоставлена LOT-EK
Жилой комплекс Drivelines Studios. Фотография © Dave Southwood. Предоставлена LOT-EK
Жилой комплекс Drivelines Studios. Фотография © Dave Southwood. Предоставлена LOT-EK
Жилой комплекс Drivelines Studios. Фотография © Dave Southwood. Предоставлена LOT-EK
Жилой комплекс Drivelines Studios. Фотография © Dave Southwood. Предоставлена LOT-EK
Жилой комплекс Drivelines Studios. Фотография © Dave Southwood. Предоставлена LOT-EK
Жилой комплекс Drivelines Studios. Фотография © Dave Southwood. Предоставлена LOT-EK
Жилой комплекс Drivelines Studios. Фотография © Dave Southwood. Предоставлена LOT-EK
Жилой комплекс Drivelines Studios. Фотография © Dave Southwood. Предоставлена LOT-EK
Жилой комплекс Drivelines Studios. Фотография © Dave Southwood. Предоставлена LOT-EK
Жилой комплекс Drivelines Studios. Фотография © Dave Southwood. Предоставлена LOT-EK
Жилой комплекс Drivelines Studios. Фотография © Dave Southwood. Предоставлена LOT-EK
Жилой комплекс Drivelines Studios. Фотография © Dave Southwood. Предоставлена LOT-EK
Жилой комплекс Drivelines Studios. Фотография © Dave Southwood. Предоставлена LOT-EK
Жилой комплекс Drivelines Studios. Фотография © Dave Southwood. Предоставлена LOT-EK
Жилой комплекс Drivelines Studios. Фотография © Dave Southwood. Предоставлена LOT-EK
Жилой комплекс Drivelines Studios. Фотография © Dave Southwood. Предоставлена LOT-EK
Жилой комплекс Drivelines Studios. Фотография © Dave Southwood. Предоставлена LOT-EK
Жилой комплекс Drivelines Studios. Фотография © Dave Southwood. Предоставлена LOT-EK
Жилой комплекс Drivelines Studios. Фотография © Dave Southwood. Предоставлена LOT-EK
Жилой комплекс Drivelines Studios. Фотография © Dave Southwood. Предоставлена LOT-EK
Жилой комплекс Drivelines Studios. Фотография © Dave Southwood. Предоставлена LOT-EK
Жилой комплекс Drivelines Studios. Фотография © Dave Southwood. Предоставлена LOT-EK
Жилой комплекс Drivelines Studios. Фотография © Dave Southwood. Предоставлена LOT-EK
Жилой комплекс Drivelines Studios. Фотография © Dave Southwood. Предоставлена LOT-EK
Жилой комплекс Drivelines Studios. Фотография © Dave Southwood. Предоставлена LOT-EK
Жилой комплекс Drivelines Studios. Фотография © Dave Southwood. Предоставлена LOT-EK
Жилой комплекс Drivelines Studios. Фотография © Dave Southwood. Предоставлена LOT-EK
Жилой комплекс Drivelines Studios. Фотография © Dave Southwood. Предоставлена LOT-EK
Жилой комплекс Drivelines Studios. Фотография © Dave Southwood. Предоставлена LOT-EK
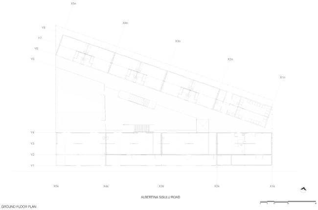
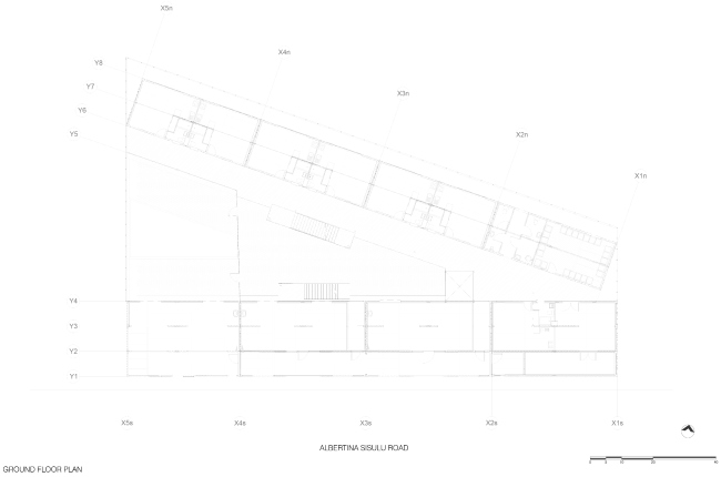
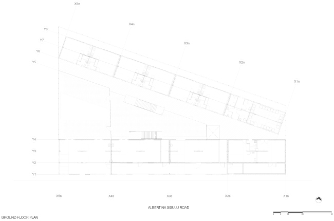
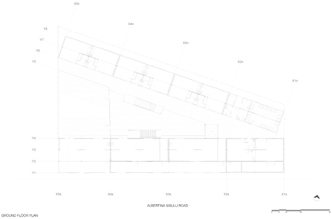
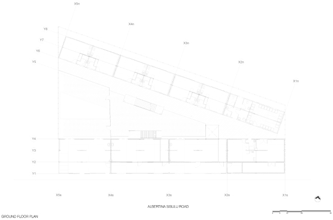
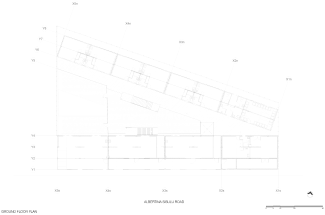
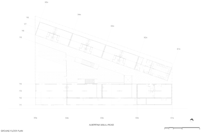
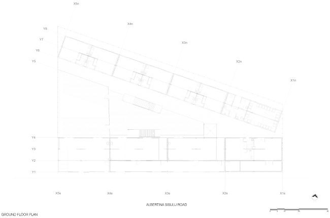
Жилой комплекс Drivelines Studios. План первого этажа © LOT-EK
Жилой комплекс Drivelines Studios. План первого этажа © LOT-EK
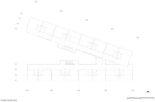
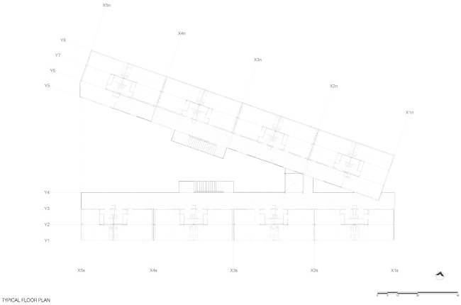
Жилой комплекс Drivelines Studios. Типовой поэтажный план © LOT-EK
Жилой комплекс Drivelines Studios. Типовой поэтажный план © LOT-EK
Жилой комплекс Drivelines Studios. Типовые планировки квартир © LOT-EK
Жилой комплекс Drivelines Studios. Типовые планировки квартир © LOT-EK
Жилой комплекс Drivelines Studios. Южный блок (вид спереди) © LOT-EK
Жилой комплекс Drivelines Studios. Южный блок (вид спереди) © LOT-EK
Жилой комплекс Drivelines Studios. Северный блок (вид спереди) © LOT-EK
Жилой комплекс Drivelines Studios. Северный блок (вид спереди) © LOT-EK
Жилой комплекс Drivelines Studios © LOT-EK
Жилой комплекс Drivelines Studios © LOT-EK
Жилой комплекс Drivelines Studios © LOT-EK
Жилой комплекс Drivelines Studios © LOT-EK
Жилой комплекс Drivelines Studios. Покомпонентный изометрический вид © LOT-EK
Жилой комплекс Drivelines Studios. Покомпонентный изометрический вид © LOT-EK
Жилой комплекс Drivelines Studios. Принцип резки © LOT-EK
Жилой комплекс Drivelines Studios. Принцип резки © LOT-EK