Размещено на портале Архи.ру (www.archi.ru)

14.11.2018

Триколор в порту

Нина Фролова
Объект:
Башня La Marseillaise
Адрес:
Франция, None, Марсель.

Офисный небоскреб La Marseillaise по проекту Жана Нувеля в марсельской гавани.

Башня La Marseillaise. Фото: Stéphane ABOUDARAM | WE ARE CONTENT(S)
Башня La Marseillaise. Фото: Stéphane ABOUDARAM | WE ARE CONTENT(S)

В рамках реконструкции порта Марселя и его превращения в зону смешанной застройки в 2010 там появилась эффектная башня CMA CGM, работа Захи Хадид. Законченное сейчас офисное здание La Marseillaise Жана Нувеля расположилось рядом с ней, причем его проект не намного «моложе». Заказчик, компания Constructa, задумала комплекс из делового и двух жилых корпусов еще в 2006, проекты (кроме Нувеля, к сотрудничеству были приглашены Жан-Батист Пьетри и Ив Льон) были готовы уже в 2008, но пока построили лишь «Марсельезу» (работы шли в 2014–2018).
 
Башня La Marseillaise. Фото: Stéphane ABOUDARAM | WE ARE CONTENT(S)
Башня La Marseillaise. Фото: Stéphane ABOUDARAM | WE ARE CONTENT(S)

135-метровое здание (31 этаж) вмещает офисы площадью 34,3 тыс. м2, ясли на 26 детей и столовую (оба объекта – для нужд сотрудников), а также пять магазинов на первом этаже.
 
Башня La Marseillaise. Фото: Stéphane ABOUDARAM | WE ARE CONTENT(S)
Башня La Marseillaise. Фото: Stéphane ABOUDARAM | WE ARE CONTENT(S)

Нувель подчеркивает, что название его постройки – совсем не агрессивно, хотя она и получила фасад в цветах французского флага (La Marseillaise можно перевести и как «жительница Марселя»). Эти цвета – одновременно и характерные тона марсельского ландшафта: синее небо – «фокейское», как называет его архитектор, напоминая об истории города, белые облака, красные черепичные крыши и кирпичные стены.
 
Башня La Marseillaise. Фото: Stéphane ABOUDARAM | WE ARE CONTENT(S)
Башня La Marseillaise. Фото: Stéphane ABOUDARAM | WE ARE CONTENT(S)

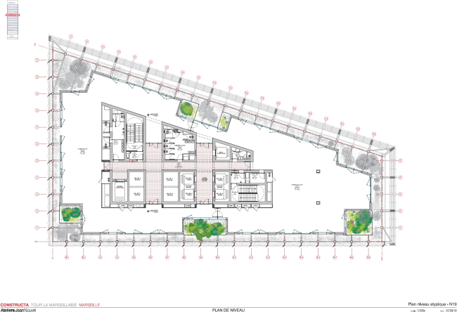
Вторая тема проекта – озеленение: деревья высажены в цоколе, на промежуточном этаже и на крыше. Третья, одновременно практическая и поэтическая – это солнцезащитные экраны и профили, защищающие интерьеры в условиях жаркого средиземноморского климата, которые при этом размывают силуэт здания, делают его более органичным дополнением к ландшафту – к чему нередко стремится Нувель.
Башня La Marseillaise. Фото: Stéphane ABOUDARAM | WE ARE CONTENT(S)
Башня La Marseillaise. Фото: Stéphane ABOUDARAM | WE ARE CONTENT(S)
Башня La Marseillaise. Фото: Michèle Clavel
Башня La Marseillaise. Фото: Michèle Clavel
Башня La Marseillaise. Фото: Michèle Clavel
Башня La Marseillaise. Фото: Michèle Clavel
Башня La Marseillaise. Фото: Stéphane ABOUDARAM | WE ARE CONTENT(S)
Башня La Marseillaise. Фото: Stéphane ABOUDARAM | WE ARE CONTENT(S)
Башня La Marseillaise. Фото: Michèle Clavel
Башня La Marseillaise. Фото: Michèle Clavel
Башня La Marseillaise. Фото: Michèle Clavel
Башня La Marseillaise. Фото: Michèle Clavel
Башня La Marseillaise. Фото: Michèle Clavel
Башня La Marseillaise. Фото: Michèle Clavel
Башня La Marseillaise. Фото: Michèle Clavel
Башня La Marseillaise. Фото: Michèle Clavel
Башня La Marseillaise. Фото: Michèle Clavel
Башня La Marseillaise. Фото: Michèle Clavel
Башня La Marseillaise. Фото: Michèle Clavel
Башня La Marseillaise. Фото: Michèle Clavel
Башня La Marseillaise. Фото: Michèle Clavel
Башня La Marseillaise. Фото: Michèle Clavel
Башня La Marseillaise. Фото: Michèle Clavel
Башня La Marseillaise. Фото: Michèle Clavel
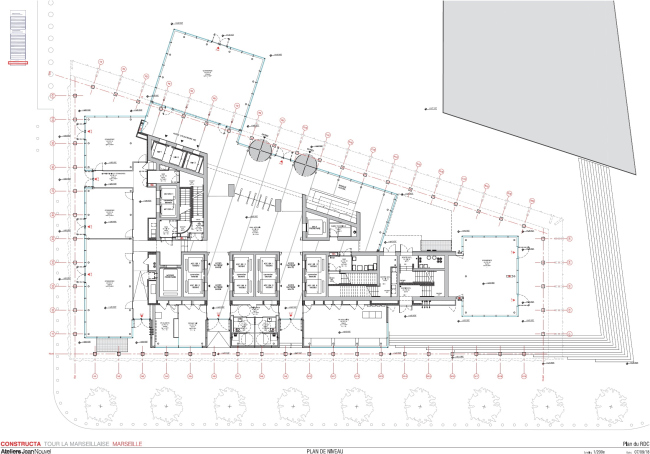
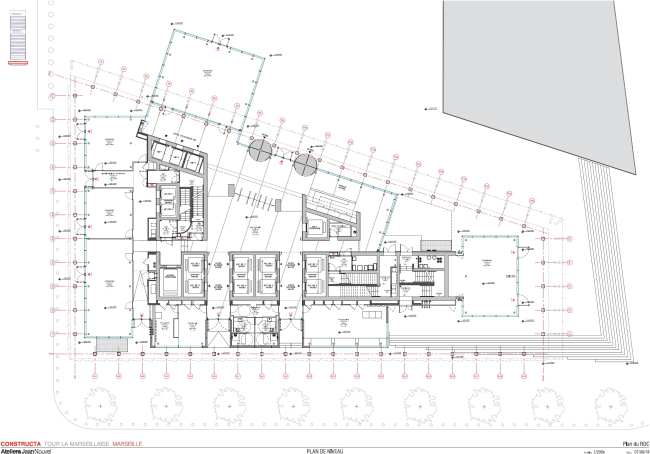
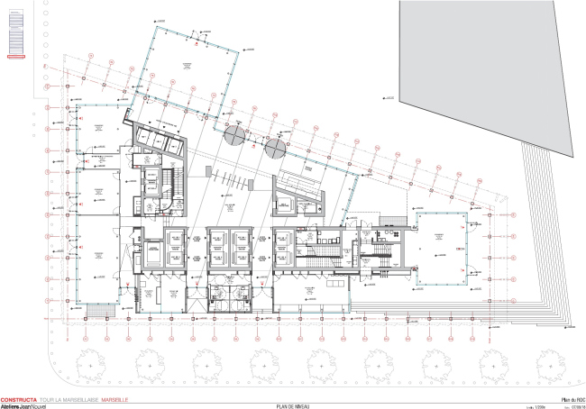
Башня La Marseillaise © Ateliers Jean Nouvel
Башня La Marseillaise © Ateliers Jean Nouvel
Башня La Marseillaise © Ateliers Jean Nouvel
Башня La Marseillaise © Ateliers Jean Nouvel
Башня La Marseillaise © Ateliers Jean Nouvel
Башня La Marseillaise © Ateliers Jean Nouvel
Башня La Marseillaise © Ateliers Jean Nouvel
Башня La Marseillaise © Ateliers Jean Nouvel
Башня La Marseillaise © Ateliers Jean Nouvel
Башня La Marseillaise © Ateliers Jean Nouvel
Башня La Marseillaise © Ateliers Jean Nouvel
Башня La Marseillaise © Ateliers Jean Nouvel
Башня La Marseillaise © Ateliers Jean Nouvel
Башня La Marseillaise © Ateliers Jean Nouvel
Башня La Marseillaise © Ateliers Jean Nouvel
Башня La Marseillaise © Ateliers Jean Nouvel
Башня La Marseillaise © Ateliers Jean Nouvel
Башня La Marseillaise © Ateliers Jean Nouvel
Башня La Marseillaise © Ateliers Jean Nouvel
Башня La Marseillaise © Ateliers Jean Nouvel
Башня La Marseillaise © Ateliers Jean Nouvel
Башня La Marseillaise © Ateliers Jean Nouvel
Башня La Marseillaise © Ateliers Jean Nouvel
Башня La Marseillaise © Ateliers Jean Nouvel