Размещено на портале Архи.ру (www.archi.ru)

13.11.2018

Супер-трансформатор

Нина Фролова
Объект:
Здание компании Elering
Адрес:
Эстония, None, Таллин.
Мастерская:
molumba

Здание компании-оператора электрической и газотранспортной сетей Elering в Таллине по проекту бюро molumba.

Здание компании Elering. Фото © Tõnu Tunnel
Здание компании Elering. Фото © Tõnu Tunnel

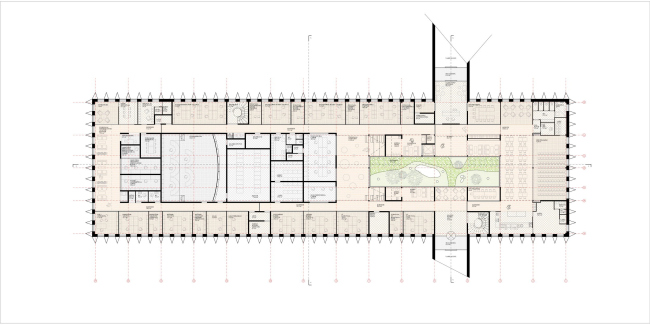
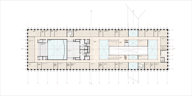
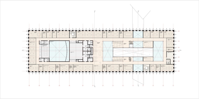
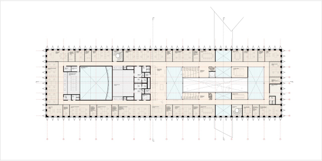
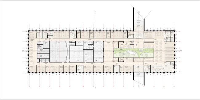
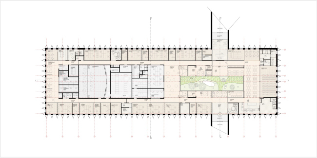
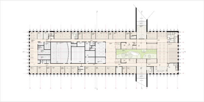
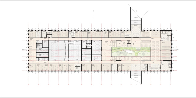
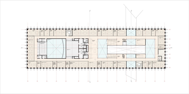
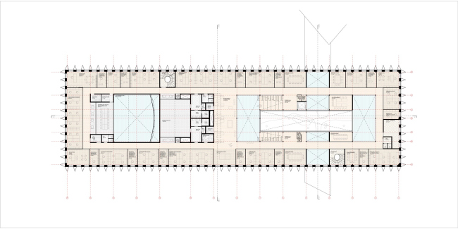
Здание государственной компании Elering вмещает офисные помещения и центр управления сетями; его расположение и габариты заданы существовавшем на этом месте сооружением, от которого осталась лишь часть каркаса. Новая постройка больше старой в три раза. Со стороны улицы она защищена другим зданием и собственным забором, однако отделенность от города компенсируется связью с охватывающими всю страну сетями газопроводов и электропередач.
 
Здание компании Elering. Фото © Tõnu Tunnel
Здание компании Elering. Фото © Tõnu Tunnel

Сам облик здания напоминает о «супер-трансформаторе», как назвали его авторы. Откровенно «технологическое» сооружение в этом плане родственно трансформаторным будкам. Фасад из черного бетона получил эффектное оформление из треугольных решетчатых профилей яркого сине-зеленого цвета, защищающих помещения от солнца.
 
Здание компании Elering. Фото © Tõnu Tunnel
Здание компании Elering. Фото © Tõnu Tunnel

В интерьере (его дизайном также занималось бюро Eeoo Stuudio) человеческая составляющая, напротив, ярко проявлена. Вокруг озелененного внутреннего двора устроена двухъярусная рекреационная зона. Бетонные поверхности дополнены деревянными, использованы светильники из вторсырья – изоляторов, части труб держат горшки с комнатными растениями.
Здание компании Elering. Фото © Tõnu Tunnel
Здание компании Elering. Фото © Tõnu Tunnel
Здание компании Elering. Фото © Tõnu Tunnel
Здание компании Elering. Фото © Tõnu Tunnel
Здание компании Elering. Фото © Tõnu Tunnel
Здание компании Elering. Фото © Tõnu Tunnel
Здание компании Elering. Фото © Tõnu Tunnel
Здание компании Elering. Фото © Tõnu Tunnel
Здание компании Elering. Фото © Tõnu Tunnel
Здание компании Elering. Фото © Tõnu Tunnel
Здание компании Elering. Фото © Tõnu Tunnel
Здание компании Elering. Фото © Tõnu Tunnel
Здание компании Elering. Фото © Tõnu Tunnel
Здание компании Elering. Фото © Tõnu Tunnel
Здание компании Elering. Фото © Tõnu Tunnel
Здание компании Elering. Фото © Tõnu Tunnel
Здание компании Elering. Фото © Kalle Veesaar
Здание компании Elering. Фото © Kalle Veesaar
Здание компании Elering. Фото © Kalle Veesaar
Здание компании Elering. Фото © Kalle Veesaar
Здание компании Elering. Фото © Kalle Veesaar
Здание компании Elering. Фото © Kalle Veesaar
Здание компании Elering. Фото © Kalle Veesaar
Здание компании Elering. Фото © Kalle Veesaar
Здание компании Elering. Фото © Kalle Veesaar
Здание компании Elering. Фото © Kalle Veesaar
Здание компании Elering. Фото © Kalle Veesaar
Здание компании Elering. Фото © Kalle Veesaar
Здание компании Elering. Фото © Kalle Veesaar
Здание компании Elering. Фото © Kalle Veesaar
Здание компании Elering. Фото © Kalle Veesaar
Здание компании Elering. Фото © Kalle Veesaar
Здание компании Elering. Фото © Kalle Veesaar
Здание компании Elering. Фото © Kalle Veesaar
Здание компании Elering. Фото © Kalle Veesaar
Здание компании Elering. Фото © Kalle Veesaar
Здание компании Elering. Фото © Kalle Veesaar
Здание компании Elering. Фото © Kalle Veesaar
Здание компании Elering © molumba
Здание компании Elering © molumba
Здание компании Elering © molumba
Здание компании Elering © molumba
Здание компании Elering © molumba
Здание компании Elering © molumba
Здание компании Elering © molumba
Здание компании Elering © molumba
Здание компании Elering © molumba
Здание компании Elering © molumba