Размещено на портале Архи.ру (www.archi.ru)

09.11.2018

Сборный гуманизм

Нина Фролова
Объект:
Башни Norra tornen
Адрес:
Швеция, None, Стокгольм.
Мастерская:
OMA

В Стокгольме завершено строительство по проекту OMA первой из двух жилых башен Norra Tornen из сборных бетонных элементов.

Башни Norra tornen. Башня Innovationen. Фото: Laurian Ghinitoiu, предоставлено OMA
Башни Norra tornen. Башня Innovationen. Фото: Laurian Ghinitoiu, предоставлено OMA

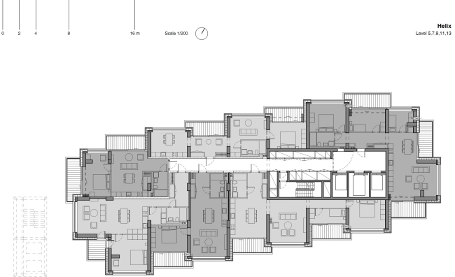
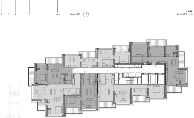
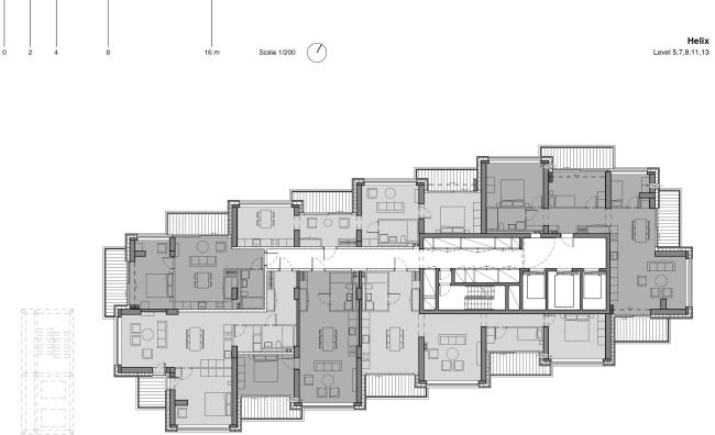
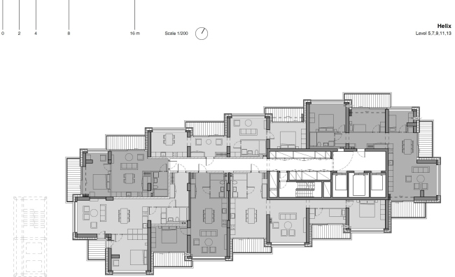
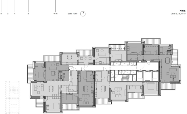
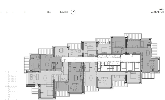
Два высотных жилых дома в северной части города, своего рода «ворота» центра Стокгольма, были задуманы еще до приглашения к участию OMA. Архитекторам пришлось учесть предложенный до них разновысотный силуэт, который они дополнили такой же «неоднородностью» по горизонтали. В результате, здания как будто сложены из кубических «эркеров» с гостиными за ними, перекрытия которых служат открытыми террасами для квартир этажом выше. Предложенная схема дала соотношение стен и перекрытий около единицы, при том что девелоперам в случае высотного жилья обычно невыгодна даже пропорция 0,5, поясняют авторы проекта. Удешивить строительство позволило использование сборных элементов из крашеного фактурного бетона с добавлением разноцветной гальки. Это отсылка к фактуре бруталистских зданий, основанная на изобретении термина «брутализм» именно шведом – Гансом Асплундом, сыном Гуннара. Использование «панелей» также позволило легко вести строительство при температуре ниже нуля.
 
Башни Norra tornen. Изображение © OMA
Башни Norra tornen. Изображение © OMA
Башни Norra tornen. Башня Innovationen. Фото предоставлено OMA; фотограф: Ossip van Duivenbode
Башни Norra tornen. Башня Innovationen. Фото предоставлено OMA; фотограф: Ossip van Duivenbode
Башни Norra tornen. Башня Innovationen. Фото: Laurian Ghinitoiu, предоставлено OMA
Башни Norra tornen. Башня Innovationen. Фото: Laurian Ghinitoiu, предоставлено OMA
Башни Norra tornen. Башня Innovationen. Фото: Laurian Ghinitoiu, предоставлено OMA
Башни Norra tornen. Башня Innovationen. Фото: Laurian Ghinitoiu, предоставлено OMA

Сэкономленные средства пошли на более разнообразные планировки квартир и большие окна, что актуально при дефиците солнца в течение полугода. Кроме того, объем башен распадается на «пиксели», лишается при этом изначальной монументальности, а взамен приобретает неформальность и даже гуманистичность, считает отвечающий за проект партнер OMA Рейнир де Граф.
 
Башни Norra tornen. Башня Innovationen. Фото: Laurian Ghinitoiu, предоставлено OMA
Башни Norra tornen. Башня Innovationen. Фото: Laurian Ghinitoiu, предоставлено OMA
Башни Norra tornen. Башня Innovationen. Фото: Laurian Ghinitoiu, предоставлено OMA
Башни Norra tornen. Башня Innovationen. Фото: Laurian Ghinitoiu, предоставлено OMA
Башни Norra tornen. Башня Innovationen. Фото: Laurian Ghinitoiu, предоставлено OMA
Башни Norra tornen. Башня Innovationen. Фото: Laurian Ghinitoiu, предоставлено OMA
Башни Norra tornen. Башня Innovationen. Фото: Laurian Ghinitoiu, предоставлено OMA
Башни Norra tornen. Башня Innovationen. Фото: Laurian Ghinitoiu, предоставлено OMA

Сейчас завершена более высокая башня Innovationen (125 м, 36 этажей), вторую, Helix (110 м, 32 этажа), планируют сдать в начале 2020-го. В общей сложности в жилом комплексе будет 320 квартир, а на первых этажах – помещения для сдачи в аренду под магазины и пр.
 
Башни Norra tornen. Башня Innovationen. Фото: Laurian Ghinitoiu, предоставлено OMA
Башни Norra tornen. Башня Innovationen. Фото: Laurian Ghinitoiu, предоставлено OMA
Башни Norra tornen. Башня Innovationen. Фото: Laurian Ghinitoiu, предоставлено OMA
Башни Norra tornen. Башня Innovationen. Фото: Laurian Ghinitoiu, предоставлено OMA
Башни Norra tornen. Башня Innovationen
Башни Norra tornen. Башня Innovationen
Фото: Laurian Ghinitoiu, предоставлено OMA
Башни Norra tornen. Башня Innovationen. Фото предоставлено OMA; фотограф: Ossip van Duivenbode
Башни Norra tornen. Башня Innovationen. Фото предоставлено OMA; фотограф: Ossip van Duivenbode

Innovationen (общая площадь 23 479 м2) вмещает 182 квартиры размером от двух до семи спален (пентхаусы площадью до 271 м2). Все квартиры были распроданы еще до начала строительства, их стоимость варьировалась в случае с этой башней от 575 тыс. до 4,3 млн евро. Среди удобств для жильцов предусмотрены комната для кинопоказов, большая столовая для праздников, гостевая квартира, спортзал с сауной.
Башни Norra tornen. Башня Innovationen. Фото: Laurian Ghinitoiu, предоставлено OMA
Башни Norra tornen. Башня Innovationen. Фото: Laurian Ghinitoiu, предоставлено OMA
Башни Norra tornen. Башня Innovationen. Фото: Laurian Ghinitoiu, предоставлено OMA
Башни Norra tornen. Башня Innovationen. Фото: Laurian Ghinitoiu, предоставлено OMA
Башни Norra tornen. Башня Innovationen. Фото: Laurian Ghinitoiu, предоставлено OMA
Башни Norra tornen. Башня Innovationen. Фото: Laurian Ghinitoiu, предоставлено OMA
Башни Norra tornen. Башня Innovationen. Фото: Laurian Ghinitoiu, предоставлено OMA
Башни Norra tornen. Башня Innovationen. Фото: Laurian Ghinitoiu, предоставлено OMA
Башни Norra tornen. Башня Innovationen. Фото: Laurian Ghinitoiu, предоставлено OMA
Башни Norra tornen. Башня Innovationen. Фото: Laurian Ghinitoiu, предоставлено OMA
Башни Norra tornen. Башня Innovationen. Фото предоставлено OMA; фотограф: Ossip van Duivenbode
Башни Norra tornen. Башня Innovationen. Фото предоставлено OMA; фотограф: Ossip van Duivenbode
Башни Norra tornen. Башня Innovationen. Фото предоставлено OMA; фотограф: Ossip van Duivenbode
Башни Norra tornen. Башня Innovationen. Фото предоставлено OMA; фотограф: Ossip van Duivenbode
Башни Norra tornen. Башня Innovationen. Фото предоставлено OMA; фотограф: Ossip van Duivenbode
Башни Norra tornen. Башня Innovationen. Фото предоставлено OMA; фотограф: Ossip van Duivenbode
Башни Norra tornen. Башня Innovationen. Фото предоставлено OMA; фотограф: Ossip van Duivenbode
Башни Norra tornen. Башня Innovationen. Фото предоставлено OMA; фотограф: Ossip van Duivenbode
Башни Norra tornen. Башня Innovationen. Фото предоставлено OMA; фотограф: Ossip van Duivenbode
Башни Norra tornen. Башня Innovationen. Фото предоставлено OMA; фотограф: Ossip van Duivenbode
Башни Norra tornen. Башня Innovationen. Фото предоставлено OMA; фотограф: Ossip van Duivenbode
Башни Norra tornen. Башня Innovationen. Фото предоставлено OMA; фотограф: Ossip van Duivenbode
Башни Norra tornen. Башня Innovationen. Фото предоставлено OMA; фотограф: Ossip van Duivenbode
Башни Norra tornen. Башня Innovationen. Фото предоставлено OMA; фотограф: Ossip van Duivenbode
Башни Norra tornen. Изображение © OMA
Башни Norra tornen. Изображение © OMA
Башни Norra tornen. Изображение: Bloomimages, предоставлено OMA
Башни Norra tornen. Изображение: Bloomimages, предоставлено OMA
Башни Norra tornen (Вид Стокгольма 1868 года). Изображение © OMA
Башни Norra tornen (Вид Стокгольма 1868 года). Изображение © OMA
Башни Norra tornen. Изображение © OMA
Башни Norra tornen. Изображение © OMA
Башни Norra tornen. Изображение © OMA
Башни Norra tornen. Изображение © OMA
Башни Norra tornen. Изображение © OMA
Башни Norra tornen. Изображение © OMA
Башни Norra tornen. Изображение © OMA
Башни Norra tornen. Изображение © OMA
Башни Norra tornen. Изображение © OMA
Башни Norra tornen. Изображение © OMA
Башни Norra tornen. Изображение © OMA
Башни Norra tornen. Изображение © OMA
Башни Norra tornen. Изображение © OMA
Башни Norra tornen. Изображение © OMA