Размещено на портале Архи.ру (www.archi.ru)

05.12.2018

Преображая окраину

Мария Трошина
Объект:
Квартал «Преображение»
Адрес:
Россия, Ярославская область,, Пестрецовский сельский округ, д. Мостец
Мастерская:
АТОМ га
АБ «А-ГА»
Авторский коллектив:
ГАП: Р.А. Керимов
Архитекторы: Е.С. Дидоренко, Д.В. Волков, Н.Ю. Левко, А.В. Панарина
Руководитель автор. коллектива: Е.Л. Серов
ГИП: Д.А. Емельянов
 

Дав новому жилому комплексу в деревне Мостец Ярославской области название «Преображение» его авторы поставили перед собой задачу изменить не только облик места, но и психологию жителей.

Жилой комплекс «Преображение» в деревне Мостец
Жилой комплекс «Преображение» в деревне Мостец
© АТОМ аг + А-ГА

«Архитектор создает сценарий жизни всего квартала», – считает Рустам Керимов, главный архитектор проекта: «Он задает тональность, которая выражается в фасадах и в пространстве между домами, а не только в планировочных решениях отдельных квартир. Поэтому мы уделяем много внимания работе с заказчиком, стараемся находить оптимальные решения, отвечающие как современному запросу на формирование комфортной среды, так и экономической стороне проекта».
Жилой комплекс «Преображение» в деревне Мостец
Жилой комплекс «Преображение» в деревне Мостец
© АТОМ аг + А-ГА

Участок расположен на восточной окраине Ярославля. В советское время прямоугольник площадью около 200 га между Тверицким и Яковлевским борами здесь застроили шестью панельными микрорайонами, в основном десятиэтажными – так что место совершенно не ощущается ни как часть древнего русского города, ни как даже поволжская деревня: частный сектор группируется западнее, вдоль берега реки, а здесь и присутствие Волги-то не слишком ощущается, до нее 4 км.

Новый ЖК строится на границе старых микрорайонов и бора, подхватывая масштаб первых и рассчитывая рекреационные преимущества второго. Кроме того рядом ярославская клиническая больница.
Жилой комплекс «Преображение» в деревне Мостец
Жилой комплекс «Преображение» в деревне Мостец
© АТОМ аг + А-ГА

Работа над проектом началась с изучения прилегающих кварталов типовой панельной застройки и их дворов. Оказалось, что дворы, как и во многих советских городах используются для парковки машин, а от прежнего их благоустройства не осталось и следа. Так что архитекторы, в числе прочего, стремились предложить альтернативу неприветливым дворам унылой позднесоветской застройки.

В основу проекта легла концепция феномена добрососедства, в которой двор является местом совместной деятельности жильцов. Основываясь на теории плейсмейкинга, архитекторы постарались учесть все составляющие привлекательности места и воплотить их в квартале.
Жилой комплекс «Преображение» в деревне Мостец
Жилой комплекс «Преображение» в деревне Мостец
© АТОМ аг + А-ГА

Периметральная застройка трапециевидного участка, предложенная архитекторами, позволила создать сеть дворов, разнообразных по своей функции, но связанных между собой. Г-образный четырехсекционный корпус формирует фронт, обращенный к лесу и клинической больнице, а односекционные башни ритмично расставлены по ул. Орджоникидзе. Замыкает композицию двухсекционный дом, формируя большой двор – центр квартала.
Жилой комплекс «Преображение» в деревне Мостец. План первого этажа
Жилой комплекс «Преображение» в деревне Мостец. План первого этажа
© АТОМ аг + А-ГА

Открытая парковка примыкает непосредственно к кварталу, таким образом дворы освобождаются от машин, что благоприятствует созданию внутриквартальной среды без автомобилей, которая по замыслу архитекторов должна способствовать общению между жителями и появлению собственного комьюнити жильцов.
Жилой комплекс «Преображение» в деревне Мостец. Генеральный план
Жилой комплекс «Преображение» в деревне Мостец. Генеральный план
© АТОМ аг + А-ГА

Ни для кого не секрет, что во многом формирование локальных сообществ зависит от плотности застройки. Решая эту проблему, архитекторы убедили заказчика не строить здания выше 12 этажей. На «Комфортном городе» обсуждалось, что максимальный предел населения двора, выше которого он перестает быть комфортным – 4000 человек; здесь же в общей сложности планируется 1500 жителей, что авторы считают оптимальным для поддержания стабильных объединений жителей по интересам, развития и реализации совместных проектов.

Таким образом уже на стадии проекта закладывается подход к будущему управлению территорией.

Жилой комплекс «Преображение» в деревне Мостец. Схема фасадов
Жилой комплекс «Преображение» в деревне Мостец. Схема фасадов
© АТОМ аг + А-ГА
Жилой комплекс «Преображение» в деревне Мостец. Схема фасадов
Жилой комплекс «Преображение» в деревне Мостец. Схема фасадов
© АТОМ аг + А-ГА

Немаловажный фактор в глазах покупателей квартир – качество фасадов и внешних характеристик: в «Преображении» используется поризованный клинкерный кирпич, материал с устойчивой репутацией престижного и гидроустойчивый. Архитекторы предложили клинкер ручной формовки Atelier Bricks компании Архитайл с фактурой, усиливающей эффект тактильности, четырех разных оттенков.
Жилой комплекс «Преображение» в деревне Мостец. Фрагмент фасада 1
Жилой комплекс «Преображение» в деревне Мостец. Фрагмент фасада 1
© АТОМ аг + А-ГА
Жилой комплекс «Преображение» в деревне Мостец. Фрагмент фасада 2
Жилой комплекс «Преображение» в деревне Мостец. Фрагмент фасада 2
© АТОМ аг + А-ГА

Но использовать клинкер на всех фасадах не позволял бюджет, и авторы предложили комплексное решение: не отказываясь от кирпича, комбинировать его с металлическими кассетами. Нашли отечественного производителя, предложили собственные решения кассет – в итоге по расчетам цена одного квадратного метра такого фасада составляет всего 9 000 рублей, что достаточно дешево. Различные сочетания нейтральных оттенков серого, бурого и коричневого клинкера и гладких поверхностей цветных кассет, выносы эркеров оживляют фасады.
Жилой комплекс «Преображение» в деревне Мостец
Жилой комплекс «Преображение» в деревне Мостец
© АТОМ аг + А-ГА
Жилой комплекс «Преображение» в деревне Мостец
Жилой комплекс «Преображение» в деревне Мостец
© АТОМ аг + А-ГА
Жилой комплекс «Преображение» в деревне Мостец
Жилой комплекс «Преображение» в деревне Мостец
© АТОМ аг + А-ГА
Жилой комплекс «Преображение» в деревне Мостец
Жилой комплекс «Преображение» в деревне Мостец
© АТОМ аг + А-ГА

Авторы следуют теории плейсмейкинга, которая считает важным соучастие жильцов в благоустройстве дворов. Естественно, что в данном случае архитекторы могут лишь сформировать предпосылки, ориентируясь на среднестатистического будущего покупателя.

Согласно исследованиям, будущие жильцы – молодые семьи и люди среднего возраста, которые приобретают жилье в ипотеку. Долгосрочность вложений – своеобразный гарант того, что люди будут воспринимать место как свое и развивать его со временем самостоятельно.

Жилой комплекс «Преображение» в деревне Мостец
Жилой комплекс «Преображение» в деревне Мостец
© АТОМ аг + А-ГА

Для формирования такой среды архитекторы предлагают разнообразить решения первых этажей домов. По периметру квартала первые этажи отданы под коммерческие и общественные площади, а внутри – под квартиры с собственным палисадником, окруженным живой изгородью.
Жилой комплекс «Преображение» в деревне Мостец
Жилой комплекс «Преображение» в деревне Мостец
© АТОМ аг + А-ГА
Жилой комплекс «Преображение» в деревне Мостец
Жилой комплекс «Преображение» в деревне Мостец
© АТОМ аг + А-ГА
Жилой комплекс «Преображение» в деревне Мостец. Озеленение
Жилой комплекс «Преображение» в деревне Мостец. Озеленение
© АТОМ аг + А-ГА

Увеличенная высота первого этажа – 4,5 м, по сравнению с высотой типового этажа в 3,15 м, панорамные окна и палисадник, согласно замыслу, должны способствовать развитию соседских отношений и благоустройству территории. К индивидуальным палисадникам примыкает небольшой участок, в котором все жители комплекса могут обустроить общественный сад или огород.
Жилой комплекс «Преображение» в деревне Мостец. Зонирование по возрастным группам
Жилой комплекс «Преображение» в деревне Мостец. Зонирование по возрастным группам
© АТОМ аг + А-ГА
Жилой комплекс «Преображение» в деревне Мостец
Жилой комплекс «Преображение» в деревне Мостец
© АТОМ аг + А-ГА
Жилой комплекс «Преображение» в деревне Мостец.  Площадки для детей © АТОМ аг + А-ГА
Жилой комплекс «Преображение» в деревне Мостец. Площадки для детей © АТОМ аг + А-ГА

Уникальность каждого двора определяется разнообразием ландшафта и функций: здесь и детские игровые, и спортивная площадка с песчаным покрытием.

Отказ от типовых площадок в пользу индивидуального решения – еще одна особенность проекта. Первоначально рассматривался вариант благоустройства с использованием площадок от голландского производителя, но они не уместились в бюджет и тогда архитекторы обратились к Ивану Щетинину – ладшафтному художнику, который уже много лет создает объекты в Никола-Ленивце. Сейчас он готовит предложение по менее затратному проекту – «природной площадке»: она должна придать среде уникальность, и кроме того, рассчитана на разные возрасты.

Семь площадок – семь решений, где внимание уделено как малым архитектурным формам – лавкам, беседкам, так и озеленению. Игровые детские площадки, напоминающие скульптуру из дерева, оформленные арками променады, площадки для созерцательного отдыха в окружении кустарников и деревьев, подобранных так, чтобы выглядеть привлекательно и в зимний период – все должно способствовать психологическому комфорту будущих жильцов.
Жилой комплекс «Преображение» в деревне Мостец
Жилой комплекс «Преображение» в деревне Мостец
© АТОМ аг + А-ГА
Жилой комплекс «Преображение» в деревне Мостец
Жилой комплекс «Преображение» в деревне Мостец
© АТОМ аг + А-ГА
Жилой комплекс «Преображение» в деревне Мостец. Фасад в осях 9-1
Жилой комплекс «Преображение» в деревне Мостец. Фасад в осях 9-1
© АТОМ аг + А-ГА
Жилой комплекс «Преображение» в деревне Мостец. Фасад в осях Г-А
Жилой комплекс «Преображение» в деревне Мостец. Фасад в осях Г-А
© АТОМ аг + А-ГА
Жилой комплекс «Преображение» в деревне Мостец. Схема разреза 3-3
Жилой комплекс «Преображение» в деревне Мостец. Схема разреза 3-3
© АТОМ аг + А-ГА
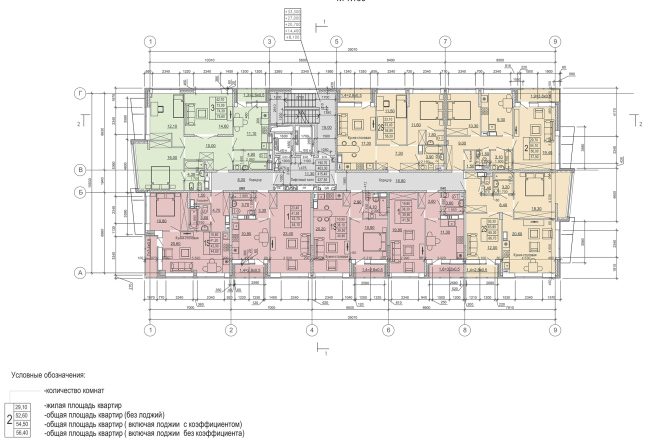
Жилой комплекс «Преображение» в деревне Мостец. План 3,5,7,9,11 этажей
Жилой комплекс «Преображение» в деревне Мостец. План 3,5,7,9,11 этажей
© АТОМ аг + А-ГА
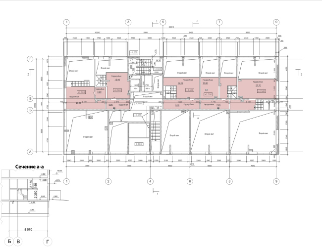
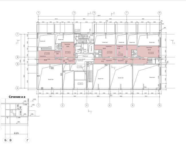
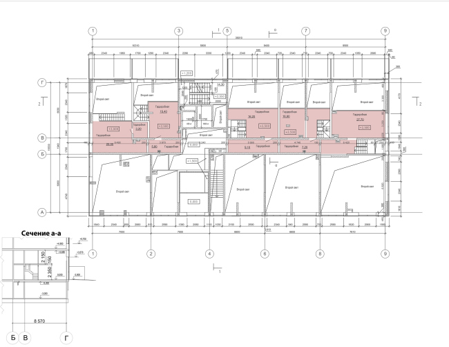
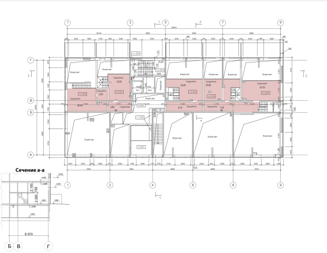
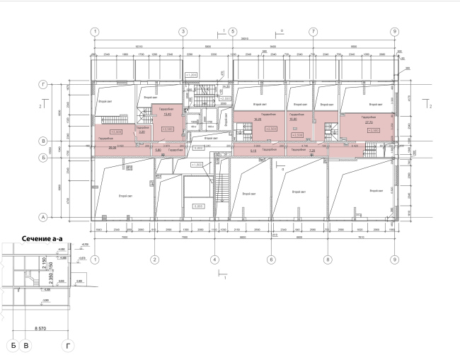
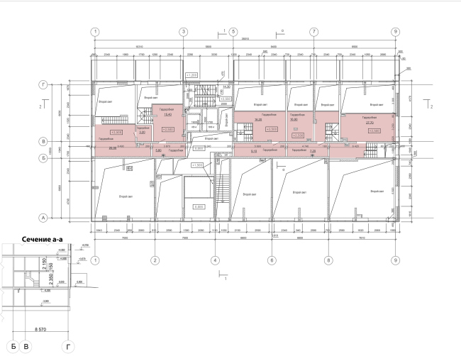
Жилой комплекс «Преображение» в деревне Мостец. План антресоли 1 этажа
Жилой комплекс «Преображение» в деревне Мостец. План антресоли 1 этажа
© АТОМ аг + А-ГА
Жилой комплекс «Преображение» в деревне Мостец. План 1 этажа, этап 1
Жилой комплекс «Преображение» в деревне Мостец. План 1 этажа, этап 1
© АТОМ аг + А-ГА
Жилой комплекс «Преображение» в деревне Мостец. Чертежи «узлов» © АТОМ аг + А-ГА
Жилой комплекс «Преображение» в деревне Мостец. Чертежи «узлов» © АТОМ аг + А-ГА
Жилой комплекс «Преображение» в деревне Мостец. Чертежи «узлов» © АТОМ аг + А-ГА
Жилой комплекс «Преображение» в деревне Мостец. Чертежи «узлов» © АТОМ аг + А-ГА