Размещено на портале Архи.ру (www.archi.ru)

07.11.2018

Цвет в окне

Нина Фролова
Объект:
Кинотеатр Pálás
Адрес:
Ирландия, None, Голуэй.
Мастерская:
dePaor Architects

Кинотеатр Pálás для артхаусных фильмов по проекту dePaor Architects в Голуэе на западе Ирландии.

Кинотеатр Pálás. Фото © Ed Reeve
Кинотеатр Pálás. Фото © Ed Reeve

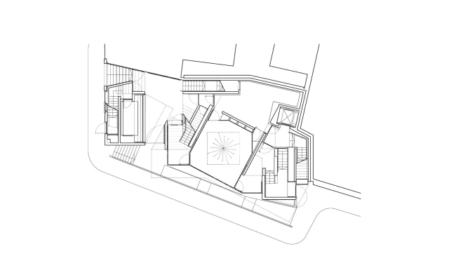
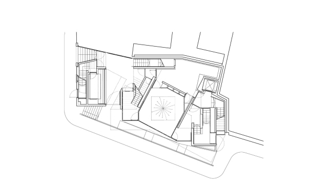
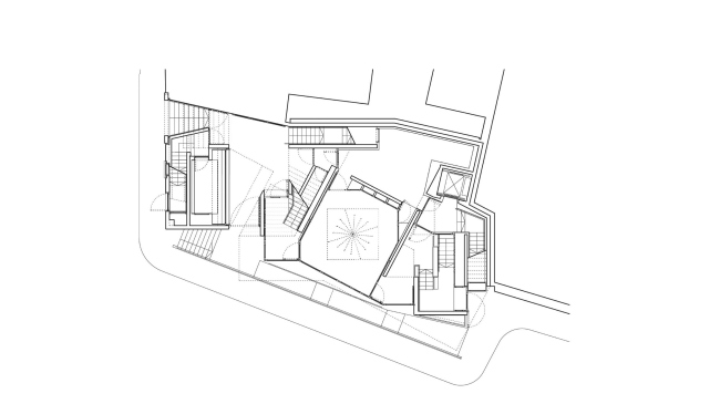
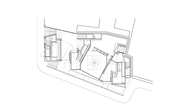
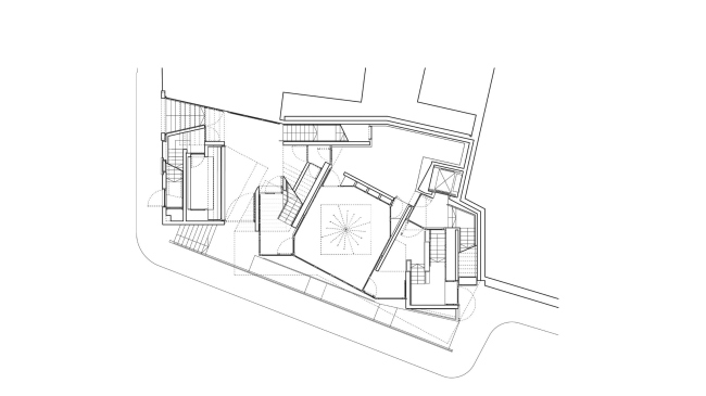
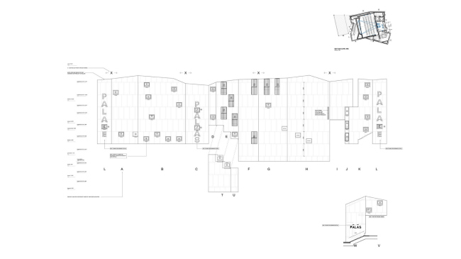
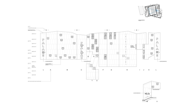
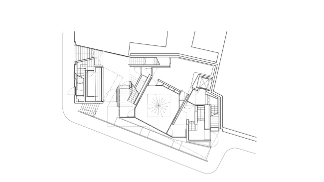
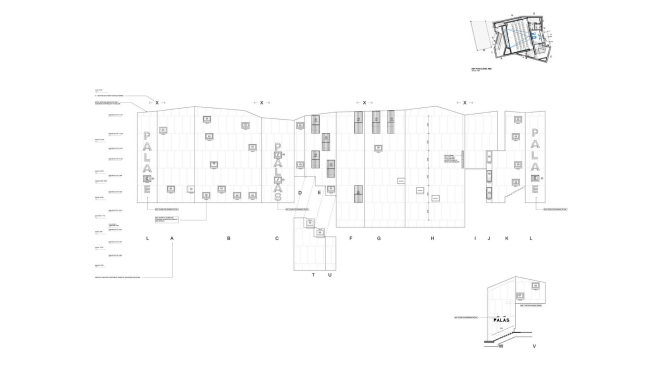
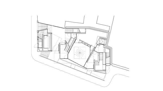
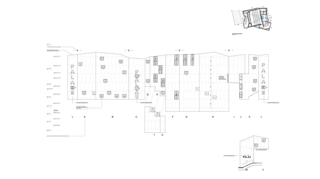
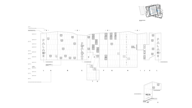
Новое здание появилось на границе исторического центра Голуэя, рядом с доками и берегом реки Корриб. Это место в прошлом занимал георгианский купеческий особняк с садом, и архитекторы воссоздали один из его фасадов: невысокий корпус за ним теперь вмещает фойе и билетную кассу. Основной объем кинотеатра – это лаконичный блок с обработанными дробеструйными аппаратами бетонными стенами. Три зала помещены в подвале и на третьем и четвертом (верхнем) этажах. Здание завершается традиционной, крытой сланцем кровлей с флюгером.
 
Кинотеатр Pálás. Фото © Ed Reeve
Кинотеатр Pálás. Фото © Ed Reeve

Все три кинозала выдержаны в черно-красном колорите, с драпировками на стенах и потолке и неглубокой сценой. Ключевую роль в образе интерьера играют лестницы. Бар оформлен традиционно – ценными породами дерева, с чередой небольших пространств с эффектными перспективными видами, а кафе получило оформление из стекла, зеркал и древесины сапеле.
 
Кинотеатр Pálás. Фото © Ed Reeve
Кинотеатр Pálás. Фото © Ed Reeve

Отдельного упоминания заслуживают окна работы художников Патрика Скотта и Эрика Пирса: в роли краски использован неон в случае с названием кинотеатра или же полимеры – красные для лестниц, зеленые на заднем фасаде, янтарные – в остальных случаях.
Кинотеатр Pálás. Фото © Ed Reeve
Кинотеатр Pálás. Фото © Ed Reeve
Кинотеатр Pálás. Окна © Eric Pearce
Кинотеатр Pálás. Окна © Eric Pearce
Кинотеатр Pálás. Фото © Ed Reeve
Кинотеатр Pálás. Фото © Ed Reeve
Кинотеатр Pálás. Фото © Ed Reeve
Кинотеатр Pálás. Фото © Ed Reeve
Кинотеатр Pálás. Фото © Ed Reeve
Кинотеатр Pálás. Фото © Ed Reeve
Кинотеатр Pálás. Фото © Ed Reeve
Кинотеатр Pálás. Фото © Ed Reeve
Кинотеатр Pálás. Фото © Peter Maybury
Кинотеатр Pálás. Фото © Peter Maybury
David Grandgorge
David Grandgorge
Кинотеатр Pálás. Фото © Peter Maybury
Кинотеатр Pálás. Фото © Peter Maybury
Кинотеатр Pálás. Фото © Ed Reeve
Кинотеатр Pálás. Фото © Ed Reeve
Кинотеатр Pálás. Фото © Peter Maybury
Кинотеатр Pálás. Фото © Peter Maybury
Кинотеатр Pálás. Фото © Peter Maybury
Кинотеатр Pálás. Фото © Peter Maybury
Кинотеатр Pálás. Фото © Ed Reeve
Кинотеатр Pálás. Фото © Ed Reeve
Кинотеатр Pálás. Фото © Ed Reeve
Кинотеатр Pálás. Фото © Ed Reeve
Кинотеатр Pálás. Фото © Ed Reeve
Кинотеатр Pálás. Фото © Ed Reeve
Кинотеатр Pálás. Фото © Ed Reeve
Кинотеатр Pálás. Фото © Ed Reeve
Кинотеатр Pálás © dePaor Architects
Кинотеатр Pálás © dePaor Architects
Кинотеатр Pálás © dePaor Architects
Кинотеатр Pálás © dePaor Architects
Кинотеатр Pálás © dePaor Architects
Кинотеатр Pálás © dePaor Architects
Кинотеатр Pálás © dePaor Architects
Кинотеатр Pálás © dePaor Architects
Кинотеатр Pálás © dePaor Architects
Кинотеатр Pálás © dePaor Architects
Кинотеатр Pálás © dePaor Architects
Кинотеатр Pálás © dePaor Architects
Кинотеатр Pálás © dePaor Architects
Кинотеатр Pálás © dePaor Architects
Кинотеатр Pálás © dePaor Architects
Кинотеатр Pálás © dePaor Architects
Кинотеатр Pálás © dePaor Architects
Кинотеатр Pálás © dePaor Architects
Кинотеатр Pálás © dePaor Architects
Кинотеатр Pálás © dePaor Architects
Кинотеатр Pálás © dePaor Architects
Кинотеатр Pálás © dePaor Architects
Кинотеатр Pálás © dePaor Architects
Кинотеатр Pálás © dePaor Architects
Кинотеатр Pálás © dePaor Architects
Кинотеатр Pálás © dePaor Architects