Размещено на портале Архи.ру (www.archi.ru)

31.10.2018

Яркость на отдыхе

Нина Фролова
Объект:
Глэмпинг-курорт SJCC
Адрес:
Южная Корея, None,
Мастерская:
Atelier Chang

Курортный комплекс из сборных домов с тканевой оболочкой по проекту Сухён Чан и ее бюро Atelier Chang близ корейского города Сунчхон.

Глэмпинг-курорт SJCC. Фото © Kyungsub Shin, предоставлено Atelier Chang
Глэмпинг-курорт SJCC. Фото © Kyungsub Shin, предоставлено Atelier Chang

Новый курорт недалеко от побережья Корейского залива, в 300 км к югу от Сеула, построен в густом кипарисовом лесу. Он прилегает к загородному клубу «Сынджу»; его заказчиком выступила фирма SJCCglamping, принадлежащая второй в мире по величине сталелитейной компании POSCO. Речь идет не просто о базе отдыха, а о примере «глэмпинга», соединения glamour и camping, то есть о «гламурном турпоходе». В данном случае речь все же идет о довольно скромном варианте «минималистичной роскоши», как его описывают авторы проекта, однако провести ночь на этом курорте стоит как номер в гостинице 4*, что значительно дороже отелей в округе.
 
Глэмпинг-курорт SJCC. Фото © Kyungsub Shin, предоставлено Atelier Chang
Глэмпинг-курорт SJCC. Фото © Kyungsub Shin, предоставлено Atelier Chang
Глэмпинг-курорт SJCC. Фото © Kyungsub Shin, предоставлено Atelier Chang
Глэмпинг-курорт SJCC. Фото © Kyungsub Shin, предоставлено Atelier Chang
Глэмпинг-курорт SJCC. Фото © Kyungsub Shin, предоставлено Atelier Chang
Глэмпинг-курорт SJCC. Фото © Kyungsub Shin, предоставлено Atelier Chang
Глэмпинг-курорт SJCC. Фото © Kyungsub Shin, предоставлено Atelier Chang
Глэмпинг-курорт SJCC. Фото © Kyungsub Shin, предоставлено Atelier Chang

Ключевая особенность проекта – сборность всех построек, произведенных вдали от стройплощадки, что было особенно актуально для природного окружения со сложным рельефом. Сухён Чан разработала домики трех типов, которые можно использовать и в других условиях, в том числе и как временное жилье для отдыхающих до начала капитального строительства на участке. Модуль при должном уходе рассчитан на срок службы в 10–15 лет и на местные климатические условия, то есть зимнюю температуру до минус 20 градусов по Цельсию, а летнюю – до плюс 40.
 
Глэмпинг-курорт SJCC. Фото © Kyungsub Shin, предоставлено Atelier Chang
Глэмпинг-курорт SJCC. Фото © Kyungsub Shin, предоставлено Atelier Chang
Глэмпинг-курорт SJCC. Фото © Kyungsub Shin, предоставлено Atelier Chang
Глэмпинг-курорт SJCC. Фото © Kyungsub Shin, предоставлено Atelier Chang
Глэмпинг-курорт SJCC. Фото © Kyungsub Shin, предоставлено Atelier Chang
Глэмпинг-курорт SJCC. Фото © Kyungsub Shin, предоставлено Atelier Chang
Глэмпинг-курорт SJCC. Фото © Kyungsub Shin, предоставлено Atelier Chang
Глэмпинг-курорт SJCC. Фото © Kyungsub Shin, предоставлено Atelier Chang

В каждом из 16 домиков имеются жилая зона в 50 м2, две спальни, кухня и ванная. Стоимость такого жилища без мебели, отделки кухни и ванной сопоставима с ценой семейного автомобиля; Toyota Prius, к примеру, стоит дороже. От заказа до завершения производства проходит порядка 8–10 недель.
 
Глэмпинг-курорт SJCC. Фото © Kyungsub Shin, предоставлено Atelier Chang
Глэмпинг-курорт SJCC. Фото © Kyungsub Shin, предоставлено Atelier Chang
Глэмпинг-курорт SJCC. Фото © Kyungsub Shin, предоставлено Atelier Chang
Глэмпинг-курорт SJCC. Фото © Kyungsub Shin, предоставлено Atelier Chang
Глэмпинг-курорт SJCC. Фото © Kyungsub Shin, предоставлено Atelier Chang
Глэмпинг-курорт SJCC. Фото © Kyungsub Shin, предоставлено Atelier Chang
Глэмпинг-курорт SJCC. Фото © Kyungsub Shin, предоставлено Atelier Chang
Глэмпинг-курорт SJCC. Фото © Kyungsub Shin, предоставлено Atelier Chang

Яркая оболочка из двух слоев негорючей и непромокаемой ткани производителя Serge Ferrari со слоем изоляции между ними натягивается на стальной каркас. Дом укрепляется на платформе, края которой служат открытой террасой. Платформа опирается на стальные опоры, а те – на бетонные сваи в грунте. В окнах в интересах приватности использован двухслойный поликарбонат, но при желании его можно заменить на стекло.
 
Глэмпинг-курорт SJCC. Фото © Kyungsub Shin, предоставлено Atelier Chang
Глэмпинг-курорт SJCC. Фото © Kyungsub Shin, предоставлено Atelier Chang
Глэмпинг-курорт SJCC. Фото © Kyungsub Shin, предоставлено Atelier Chang
Глэмпинг-курорт SJCC. Фото © Kyungsub Shin, предоставлено Atelier Chang
Глэмпинг-курорт SJCC. Фото © Kyungsub Shin, предоставлено Atelier Chang
Глэмпинг-курорт SJCC. Фото © Kyungsub Shin, предоставлено Atelier Chang
Глэмпинг-курорт SJCC. Фото © Kyungsub Shin, предоставлено Atelier Chang
Глэмпинг-курорт SJCC. Фото © Kyungsub Shin, предоставлено Atelier Chang

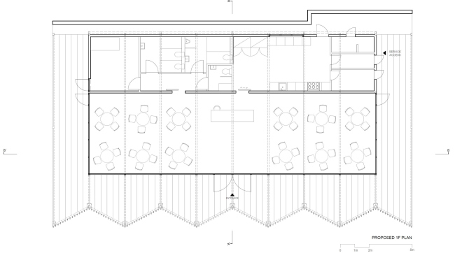
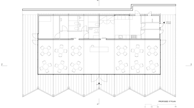
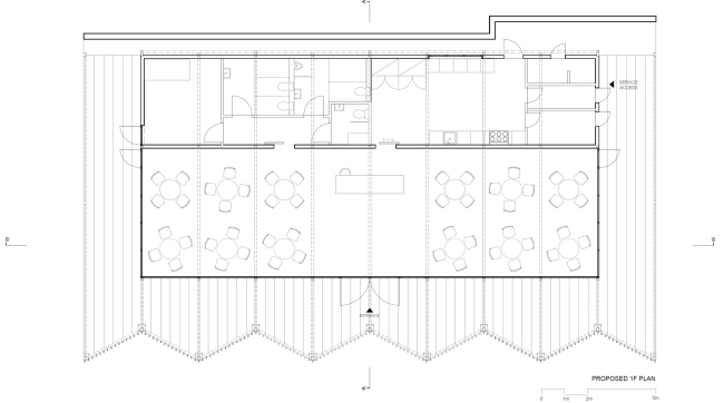
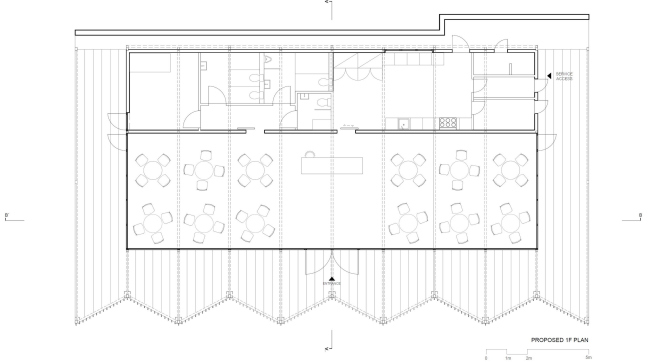
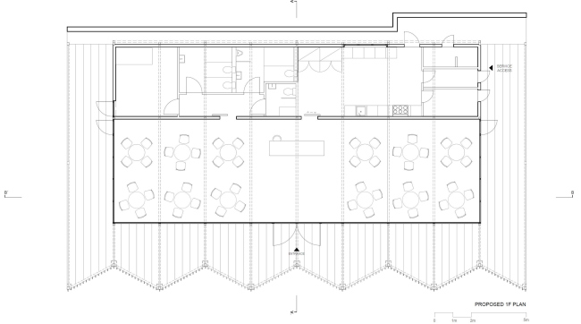
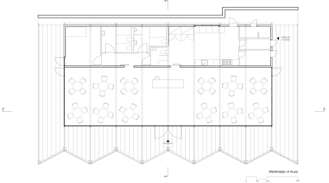
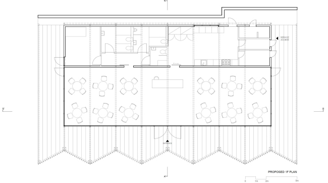
Кроме жилья, сотрудники Atelier Chang разработали также здание ресторана, где расположена и стойка администратора. Его отличительная особенность – эффектный главный фасад с белыми стальными профилями, защищающими интерьер от солнца.
 
Глэмпинг-курорт SJCC. Фото © Kyungsub Shin, предоставлено Atelier Chang
Глэмпинг-курорт SJCC. Фото © Kyungsub Shin, предоставлено Atelier Chang
Глэмпинг-курорт SJCC. Фото © Kyungsub Shin, предоставлено Atelier Chang
Глэмпинг-курорт SJCC. Фото © Kyungsub Shin, предоставлено Atelier Chang
Глэмпинг-курорт SJCC. Фото © Kyungsub Shin, предоставлено Atelier Chang
Глэмпинг-курорт SJCC. Фото © Kyungsub Shin, предоставлено Atelier Chang
Глэмпинг-курорт SJCC. Фото © Kyungsub Shin, предоставлено Atelier Chang
Глэмпинг-курорт SJCC. Фото © Kyungsub Shin, предоставлено Atelier Chang

Сухён Чан подчеркивает, что в ее замысле было самым важным сохранить контакт гостей курорта с природой (что достигается самой схемой легких и небольших построек), а также защитить их от посторонних взглядов – поэтому все жилые модули ориентированы так, чтобы быть скрытыми друг от друга деревьями.
 
Глэмпинг-курорт SJCC. Фото © Kyungsub Shin, предоставлено Atelier Chang
Глэмпинг-курорт SJCC. Фото © Kyungsub Shin, предоставлено Atelier Chang
Глэмпинг-курорт SJCC. Фото © Kyungsub Shin, предоставлено Atelier Chang
Глэмпинг-курорт SJCC. Фото © Kyungsub Shin, предоставлено Atelier Chang
Глэмпинг-курорт SJCC. Фото © Kyungsub Shin, предоставлено Atelier Chang
Глэмпинг-курорт SJCC. Фото © Kyungsub Shin, предоставлено Atelier Chang
Глэмпинг-курорт SJCC. Фото © Kyungsub Shin, предоставлено Atelier Chang
Глэмпинг-курорт SJCC. Фото © Kyungsub Shin, предоставлено Atelier Chang
Глэмпинг-курорт SJCC. Фото © Kyungsub Shin, предоставлено Atelier Chang
Глэмпинг-курорт SJCC. Фото © Kyungsub Shin, предоставлено Atelier Chang
Глэмпинг-курорт SJCC. Фото © Kyungsub Shin, предоставлено Atelier Chang
Глэмпинг-курорт SJCC. Фото © Kyungsub Shin, предоставлено Atelier Chang
Глэмпинг-курорт SJCC. Дом типа Cutent © Atelier Chang
Глэмпинг-курорт SJCC. Дом типа Cutent © Atelier Chang
Глэмпинг-курорт SJCC. Дом типа Cutent © Atelier Chang
Глэмпинг-курорт SJCC. Дом типа Cutent © Atelier Chang
Глэмпинг-курорт SJCC. Дом типа Cutent © Atelier Chang
Глэмпинг-курорт SJCC. Дом типа Cutent © Atelier Chang
Глэмпинг-курорт SJCC. Дом типа «Гора» © Atelier Chang
Глэмпинг-курорт SJCC. Дом типа «Гора» © Atelier Chang
Глэмпинг-курорт SJCC. Дом типа «Гора» © Atelier Chang
Глэмпинг-курорт SJCC. Дом типа «Гора» © Atelier Chang
Глэмпинг-курорт SJCC. Дом типа «Гора» © Atelier Chang
Глэмпинг-курорт SJCC. Дом типа «Гора» © Atelier Chang
Глэмпинг-курорт SJCC. Дом типа «Стрекоза» © Atelier Chang
Глэмпинг-курорт SJCC. Дом типа «Стрекоза» © Atelier Chang
Глэмпинг-курорт SJCC. Дом типа «Стрекоза» © Atelier Chang
Глэмпинг-курорт SJCC. Дом типа «Стрекоза» © Atelier Chang
Глэмпинг-курорт SJCC. Дом типа «Стрекоза» © Atelier Chang
Глэмпинг-курорт SJCC. Дом типа «Стрекоза» © Atelier Chang
Глэмпинг-курорт SJCC. Корпус ресторана © Atelier Chang
Глэмпинг-курорт SJCC. Корпус ресторана © Atelier Chang
Глэмпинг-курорт SJCC. Корпус ресторана © Atelier Chang
Глэмпинг-курорт SJCC. Корпус ресторана © Atelier Chang
Глэмпинг-курорт SJCC. Корпус ресторана © Atelier Chang
Глэмпинг-курорт SJCC. Корпус ресторана © Atelier Chang