Размещено на портале Архи.ру (www.archi.ru)

24.10.2018

Таунхаусы 2.0

Нина Фролова
Объект:
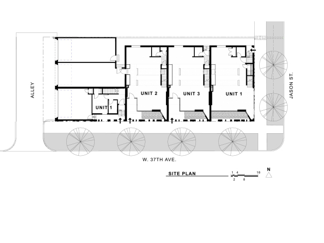
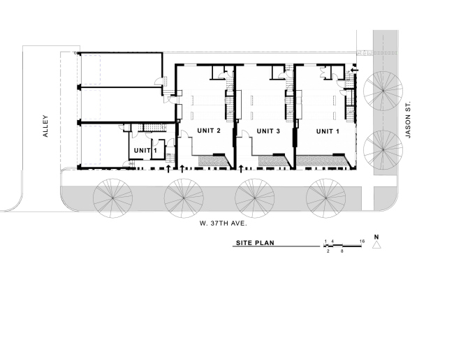
Многоквартирный дом на Джейсон-стрит
Адрес:
США, None, Денвер.
Мастерская:
Meridian 105 Architecture

Жилой комплекс на четыре семьи в Денвере по проекту Meridian 105 Architecture.

Многоквартирный дом на Джейсон-стрит. Фото © Astula, Inc.
Многоквартирный дом на Джейсон-стрит. Фото © Astula, Inc.

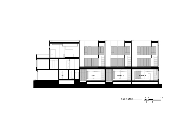
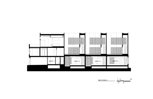
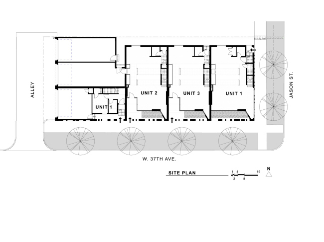
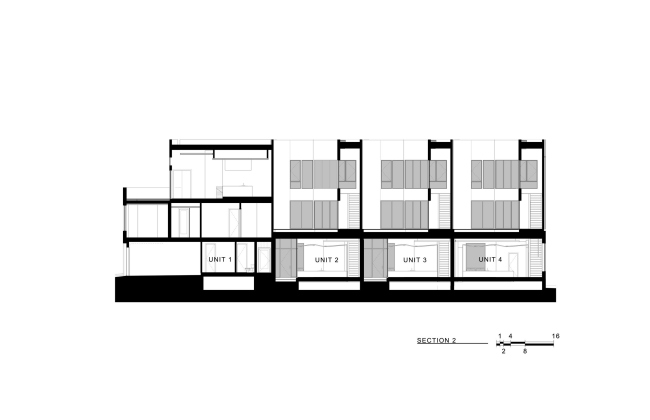
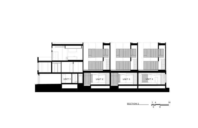
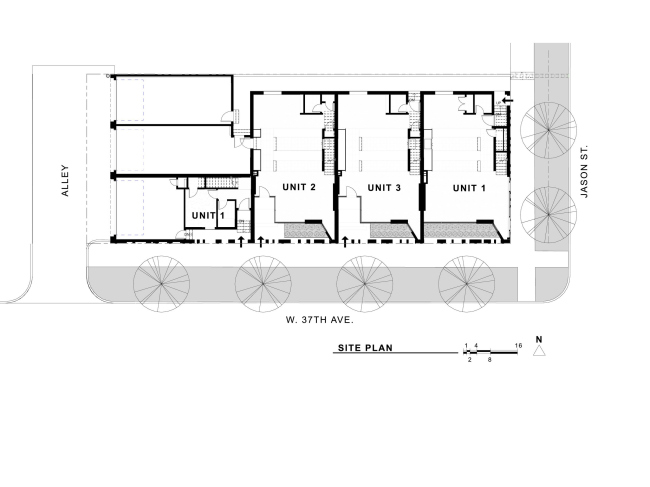
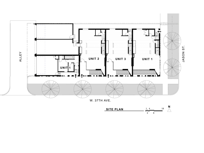
Работая над проектом четырех таунхаусов, бюро Meridian 105 Architecture решило отказаться от типичного для Денвера варианта, когда терраса расположена на крыше, а ведет туда лесенка размером «как в собачьей будке», и потому наверх поднимаются редко. Взамен архитекторы разместили террасы на уровне второго этажа, связав их – и открывающиеся оттуда виды на центр города – с интерьерами.
 
Многоквартирный дом на Джейсон-стрит. Фото © Astula, Inc.
Многоквартирный дом на Джейсон-стрит. Фото © Astula, Inc.

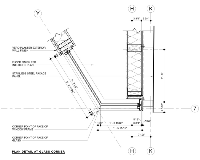
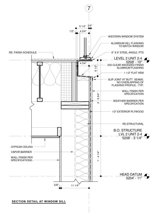
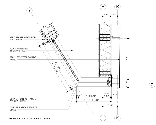
Одновременно такой ход сообщает дому эффектность, сделав весь квартал интереснее. Той же цели служит оформление первого этажа в виде портика, который отделяет входные двери и прилегающее жилое помещение от пешеходного движения по тротуару. Кроме того, облик здания определяют материалы. Нержавеющая сталь – вторсырье, что стало «устойчивым» решением; ее неидеальная поверхность, считают авторы, придает дому характер. Также использована древесина кедра с защитным покрытием на основе сосновой смолы.
 
Многоквартирный дом на Джейсон-стрит. Фото © Astula, Inc.
Многоквартирный дом на Джейсон-стрит. Фото © Astula, Inc.

В интерьере большую роль играет двухсветный солярий, впускающий в квартиру солнечный свет с южный стороны. Общественный центр каждого из жилищ, слегка утопленная кухня в центре первого этажа, не прерывает пространственную связь между гостиной и столовой по обе стороны от нее.
Многоквартирный дом на Джейсон-стрит. Фото © Astula, Inc.
Многоквартирный дом на Джейсон-стрит. Фото © Astula, Inc.
Многоквартирный дом на Джейсон-стрит. Фото © Astula, Inc.
Многоквартирный дом на Джейсон-стрит. Фото © Astula, Inc.
Многоквартирный дом на Джейсон-стрит. Фото © Astula, Inc.
Многоквартирный дом на Джейсон-стрит. Фото © Astula, Inc.
Многоквартирный дом на Джейсон-стрит. Фото © Astula, Inc.
Многоквартирный дом на Джейсон-стрит. Фото © Astula, Inc.
Многоквартирный дом на Джейсон-стрит. Фото © Astula, Inc.
Многоквартирный дом на Джейсон-стрит. Фото © Astula, Inc.
Многоквартирный дом на Джейсон-стрит. Фото © Astula, Inc.
Многоквартирный дом на Джейсон-стрит. Фото © Astula, Inc.
Многоквартирный дом на Джейсон-стрит. Фото © Astula, Inc.
Многоквартирный дом на Джейсон-стрит. Фото © Astula, Inc.
Многоквартирный дом на Джейсон-стрит. Фото © Astula, Inc.
Многоквартирный дом на Джейсон-стрит. Фото © Astula, Inc.
Многоквартирный дом на Джейсон-стрит. Фото © Astula, Inc.
Многоквартирный дом на Джейсон-стрит. Фото © Astula, Inc.
Многоквартирный дом на Джейсон-стрит. Фото © Astula, Inc.
Многоквартирный дом на Джейсон-стрит. Фото © Astula, Inc.
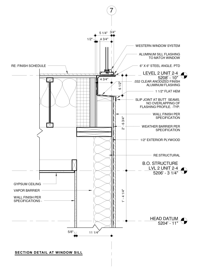
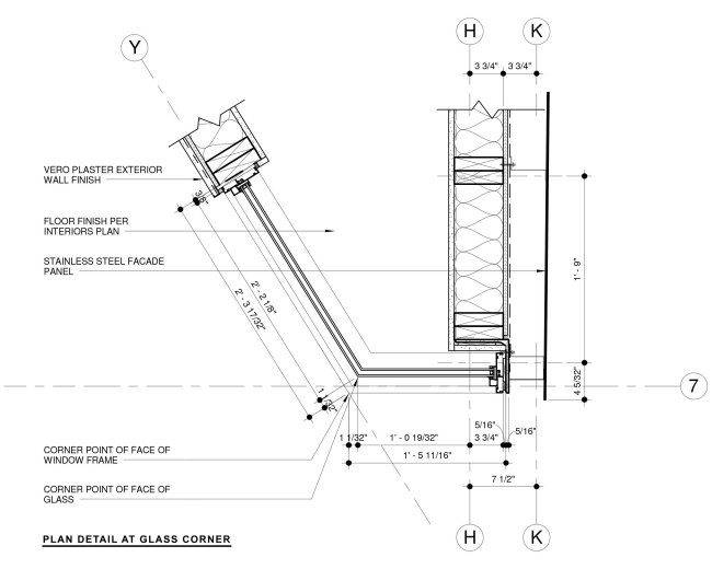
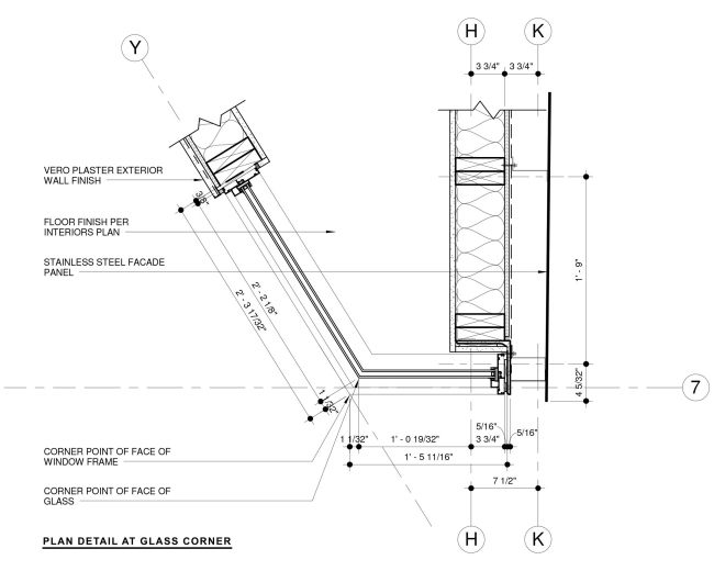
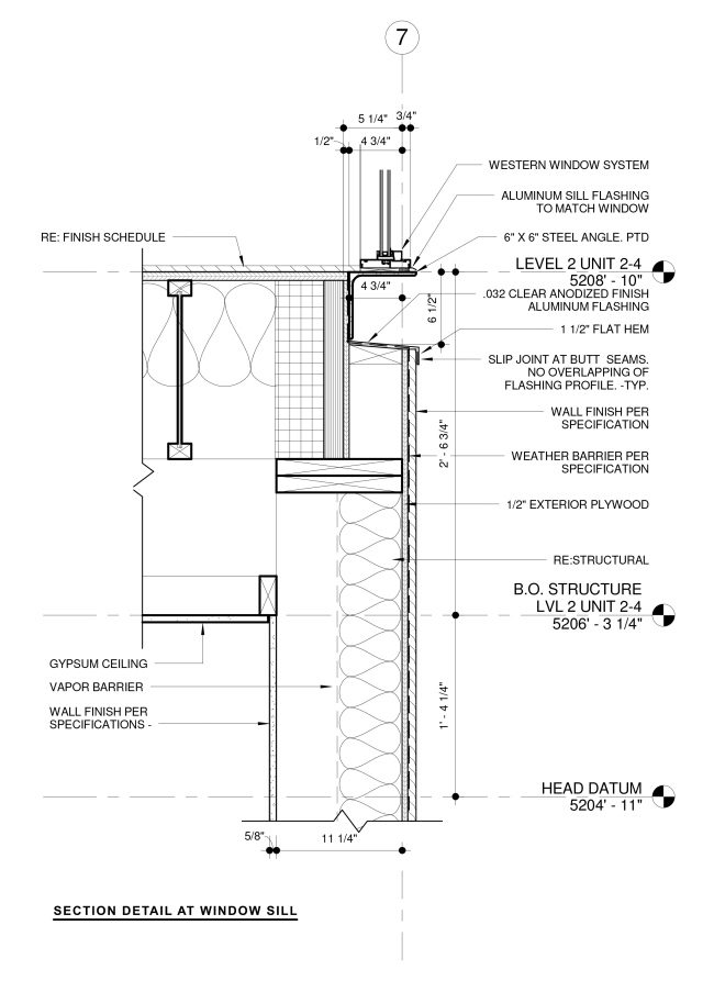
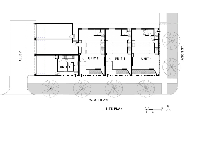
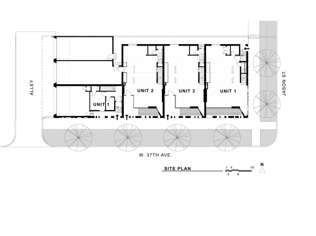
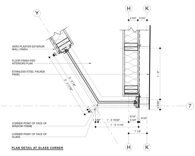
Многоквартирный дом на Джейсон-стрит © Meridian 105 Architecture
Многоквартирный дом на Джейсон-стрит © Meridian 105 Architecture
Многоквартирный дом на Джейсон-стрит © Meridian 105 Architecture
Многоквартирный дом на Джейсон-стрит © Meridian 105 Architecture
Многоквартирный дом на Джейсон-стрит © Meridian 105 Architecture
Многоквартирный дом на Джейсон-стрит © Meridian 105 Architecture
Многоквартирный дом на Джейсон-стрит © Meridian 105 Architecture
Многоквартирный дом на Джейсон-стрит © Meridian 105 Architecture
Многоквартирный дом на Джейсон-стрит © Meridian 105 Architecture
Многоквартирный дом на Джейсон-стрит © Meridian 105 Architecture
Многоквартирный дом на Джейсон-стрит © Meridian 105 Architecture
Многоквартирный дом на Джейсон-стрит © Meridian 105 Architecture
Многоквартирный дом на Джейсон-стрит © Meridian 105 Architecture
Многоквартирный дом на Джейсон-стрит © Meridian 105 Architecture
Многоквартирный дом на Джейсон-стрит © Meridian 105 Architecture
Многоквартирный дом на Джейсон-стрит © Meridian 105 Architecture
Многоквартирный дом на Джейсон-стрит © Meridian 105 Architecture
Многоквартирный дом на Джейсон-стрит © Meridian 105 Architecture
Многоквартирный дом на Джейсон-стрит © Meridian 105 Architecture
Многоквартирный дом на Джейсон-стрит © Meridian 105 Architecture
Многоквартирный дом на Джейсон-стрит © Meridian 105 Architecture
Многоквартирный дом на Джейсон-стрит © Meridian 105 Architecture
Многоквартирный дом на Джейсон-стрит © Meridian 105 Architecture
Многоквартирный дом на Джейсон-стрит © Meridian 105 Architecture