Размещено на портале Архи.ру (www.archi.ru)

22.10.2018

Максимум со-участия

Нина Фролова
Объект:
Общественный и образовательный центр Hjertet
Адрес:
Дания, None, Икаст-Бранне.
Мастерская:
C. F. Møller

Новый корпус датской Международной школы Икаст-Бранне по проекту бюро C. F. Møller рассчитан не только на учеников, но и на местных жителей всех возрастов и интересов.

Общественный и образовательный центр Hjertet © Adam Mørk
Общественный и образовательный центр Hjertet © Adam Mørk

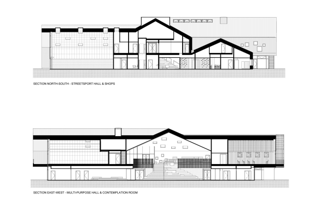
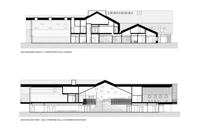
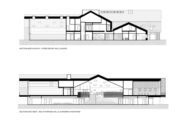
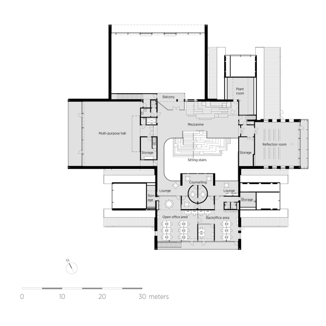
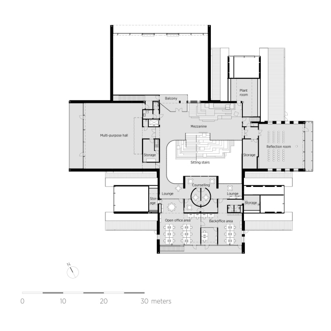
Образовательный, общественный и досуговый центр Hjertet – «сердце» – с парком площадью 3,7 га дополнил существующее здание школы в коммуне Икаст-Бранне, которое тоже построили архитекторы C. F. Møller. Напоминающий своими двускатными крышами деревню или даже городок, Hjertet и устроен как поселение: в центре находится холл-площадь, от которого расходятся вытянутые объемы – улицы.
 
Общественный и образовательный центр Hjertet © Adam Mørk
Общественный и образовательный центр Hjertet © Adam Mørk
Общественный и образовательный центр Hjertet © Adam Mørk
Общественный и образовательный центр Hjertet © Adam Mørk
Общественный и образовательный центр Hjertet © Adam Mørk
Общественный и образовательный центр Hjertet © Adam Mørk
Общественный и образовательный центр Hjertet © Adam Mørk
Общественный и образовательный центр Hjertet © Adam Mørk
Общественный и образовательный центр Hjertet © Adam Mørk
Общественный и образовательный центр Hjertet © Adam Mørk
Общественный и образовательный центр Hjertet © Adam Mørk
Общественный и образовательный центр Hjertet © Adam Mørk
Общественный и образовательный центр Hjertet © Adam Mørk
Общественный и образовательный центр Hjertet © Adam Mørk
Общественный и образовательный центр Hjertet © Adam Mørk
Общественный и образовательный центр Hjertet © Adam Mørk

При разработке проекта авторы советовались с 35 группами местных жителей, поэтому получившаяся постройка учитывает самые разные нужды и интересы. Для собственно школы предназначено одно крыло, но даже оно после конца занятий может и должно использоваться для собраний различных общественных объединений, художественных занятий и образовательных курсов для взрослых. Второе крыло занято залом для уличных видов спорта, третье – кафе и магазином, где продаются органические продукты местных фермеров и товары слепых и слабовидящих производителей. На втором этаже помещены большие и малые залы для занятий йогой и танцами, культурных мероприятий, а также муниципальный консультационный центр по вопросам молодежи и образования. В центре здания, на «площади», находится сцена для представлений. Общая площадь постройки – 3660 м2.
 
Общественный и образовательный центр Hjertet © Adam Mørk
Общественный и образовательный центр Hjertet © Adam Mørk
Общественный и образовательный центр Hjertet © Adam Mørk
Общественный и образовательный центр Hjertet © Adam Mørk
Общественный и образовательный центр Hjertet © Adam Mørk
Общественный и образовательный центр Hjertet © Adam Mørk
Общественный и образовательный центр Hjertet © Adam Mørk
Общественный и образовательный центр Hjertet © Adam Mørk
Общественный и образовательный центр Hjertet © Adam Mørk
Общественный и образовательный центр Hjertet © Adam Mørk
Общественный и образовательный центр Hjertet © Adam Mørk
Общественный и образовательный центр Hjertet © Adam Mørk
Общественный и образовательный центр Hjertet © Adam Mørk
Общественный и образовательный центр Hjertet © Adam Mørk
Общественный и образовательный центр Hjertet © Adam Mørk
Общественный и образовательный центр Hjertet © Adam Mørk
Общественный и образовательный центр Hjertet © Adam Mørk
Общественный и образовательный центр Hjertet © Adam Mørk

Окружающий парк посвящен занятиям на свежем воздухе: там есть объекты для скейтеров и для занятий паркуром, велотрасса типа «памп-трек», площадки для пляжного волейбола, многофункциональное спортивное поле. Не забыты и более «спокойные» виды досуга: петанк и пикники, в том числе и с костром.
 
Общественный и образовательный центр Hjertet © Adam Mørk
Общественный и образовательный центр Hjertet © Adam Mørk
Общественный и образовательный центр Hjertet © Adam Mørk
Общественный и образовательный центр Hjertet © Adam Mørk
Общественный и образовательный центр Hjertet © Adam Mørk
Общественный и образовательный центр Hjertet © Adam Mørk
Общественный и образовательный центр Hjertet © Adam Mørk
Общественный и образовательный центр Hjertet © Adam Mørk
Общественный и образовательный центр Hjertet © Adam Mørk
Общественный и образовательный центр Hjertet © Adam Mørk
Общественный и образовательный центр Hjertet © Adam Mørk
Общественный и образовательный центр Hjertet © Adam Mørk
Общественный и образовательный центр Hjertet © Adam Mørk
Общественный и образовательный центр Hjertet © Adam Mørk
Общественный и образовательный центр Hjertet © Adam Mørk
Общественный и образовательный центр Hjertet © Adam Mørk
Общественный и образовательный центр Hjertet © Adam Mørk
Общественный и образовательный центр Hjertet © Adam Mørk
Общественный и образовательный центр Hjertet © Adam Mørk
Общественный и образовательный центр Hjertet © Adam Mørk

Задачей архитекторов было создать здание, которое полностью используют с раннего утра до позднего вечера, где параллельно происходят самые разные события, поясняет партнер C. F. Møller Юлиан Вейер. Кроме того, Hjertet позволяет встречаться и плодотворно общаться самым разным людям: школьникам из разных стран мира, любителям спорта, музыкантам, скейтерам, участницам женских программ и т.д. Немалое значение имеет расположение центра и Международной школы: рядом находятся бизнес-колледж, городская школа (отдел старших классов) и педагогический колледж, а сам прилегающий район сейчас активно развивается.
Общественный и образовательный центр Hjertet © Adam Mørk
Общественный и образовательный центр Hjertet © Adam Mørk
Общественный и образовательный центр Hjertet © Adam Mørk
Общественный и образовательный центр Hjertet © Adam Mørk
Общественный и образовательный центр Hjertet © Adam Mørk
Общественный и образовательный центр Hjertet © Adam Mørk
Общественный и образовательный центр Hjertet © Adam Mørk
Общественный и образовательный центр Hjertet © Adam Mørk
Общественный и образовательный центр Hjertet © Adam Mørk
Общественный и образовательный центр Hjertet © Adam Mørk
Общественный и образовательный центр Hjertet © Adam Mørk
Общественный и образовательный центр Hjertet © Adam Mørk
Общественный и образовательный центр Hjertet © Adam Mørk
Общественный и образовательный центр Hjertet © Adam Mørk
Общественный и образовательный центр Hjertet © Adam Mørk
Общественный и образовательный центр Hjertet © Adam Mørk
Общественный и образовательный центр Hjertet © Adam Mørk
Общественный и образовательный центр Hjertet © Adam Mørk
Общественный и образовательный центр Hjertet © Adam Mørk
Общественный и образовательный центр Hjertet © Adam Mørk
Общественный и образовательный центр Hjertet © Adam Mørk
Общественный и образовательный центр Hjertet © Adam Mørk
Общественный и образовательный центр Hjertet © Adam Mørk
Общественный и образовательный центр Hjertet © Adam Mørk
Общественный и образовательный центр Hjertet © Adam Mørk
Общественный и образовательный центр Hjertet © Adam Mørk
Общественный и образовательный центр Hjertet © Adam Mørk
Общественный и образовательный центр Hjertet © Adam Mørk
Общественный и образовательный центр Hjertet © Adam Mørk
Общественный и образовательный центр Hjertet © Adam Mørk
Общественный и образовательный центр Hjertet © Adam Mørk
Общественный и образовательный центр Hjertet © Adam Mørk
Общественный и образовательный центр Hjertet © Adam Mørk
Общественный и образовательный центр Hjertet © Adam Mørk
Общественный и образовательный центр Hjertet © Adam Mørk
Общественный и образовательный центр Hjertet © Adam Mørk
Общественный и образовательный центр Hjertet © Adam Mørk
Общественный и образовательный центр Hjertet © Adam Mørk
Общественный и образовательный центр Hjertet © C.F. Møller Architects
Общественный и образовательный центр Hjertet © C.F. Møller Architects
Общественный и образовательный центр Hjertet © C.F. Møller Architects
Общественный и образовательный центр Hjertet © C.F. Møller Architects
Общественный и образовательный центр Hjertet © C.F. Møller Architects
Общественный и образовательный центр Hjertet © C.F. Møller Architects
Общественный и образовательный центр Hjertet © C.F. Møller Architects
Общественный и образовательный центр Hjertet © C.F. Møller Architects
Общественный и образовательный центр Hjertet © C.F. Møller Architects
Общественный и образовательный центр Hjertet © C.F. Møller Architects
Общественный и образовательный центр Hjertet © C.F. Møller Architects
Общественный и образовательный центр Hjertet © C.F. Møller Architects
Общественный и образовательный центр Hjertet © C.F. Møller Architects
Общественный и образовательный центр Hjertet © C.F. Møller Architects
Общественный и образовательный центр Hjertet © C.F. Møller Architects
Общественный и образовательный центр Hjertet © C.F. Møller Architects
Общественный и образовательный центр Hjertet © C.F. Møller Architects
Общественный и образовательный центр Hjertet © C.F. Møller Architects
Общественный и образовательный центр Hjertet © C.F. Møller Architects
Общественный и образовательный центр Hjertet © C.F. Møller Architects
Общественный и образовательный центр Hjertet © C.F. Møller Architects
Общественный и образовательный центр Hjertet © C.F. Møller Architects
Общественный и образовательный центр Hjertet © C.F. Møller Architects
Общественный и образовательный центр Hjertet © C.F. Møller Architects
Общественный и образовательный центр Hjertet © C.F. Møller Architects
Общественный и образовательный центр Hjertet © C.F. Møller Architects
Общественный и образовательный центр Hjertet © C.F. Møller Architects
Общественный и образовательный центр Hjertet © C.F. Møller Architects
Общественный и образовательный центр Hjertet © C.F. Møller Architects
Общественный и образовательный центр Hjertet © C.F. Møller Architects