Размещено на портале Архи.ру (www.archi.ru)

19.10.2018

Временная развилка

Нина Фролова
Объект:
Институт современного искусства университета Содружества Виргинии
Адрес:
США, None, Ричмонд.

Здание Института современного искусства в университете Содружества Виргинии на востоке США по проекту бюро Стивена Холла.

Институт современного искусства университета Содружества Виргинии. Фото © Iwan Baan
Институт современного искусства университета Содружества Виргинии. Фото © Iwan Baan

Институт современного искусства при университете Содружества Виргинии – художественное учреждение без собственной коллекции, посвященное новейшему искусству. Его новое здание, официально названное «Маркел-центр», расположено на границе вузовского кампуса, на самом оживленном перекрестке города Ричмонд, так как предназначено не только для студентов и преподавателей, но и для самой широкой публики, тем более что вход в него бесплатен.
 
Институт современного искусства университета Содружества Виргинии. Фото © Iwan Baan
Институт современного искусства университета Содружества Виргинии. Фото © Iwan Baan

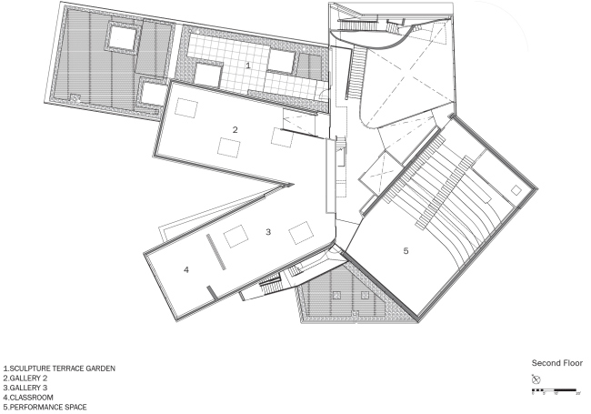
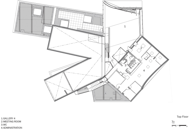
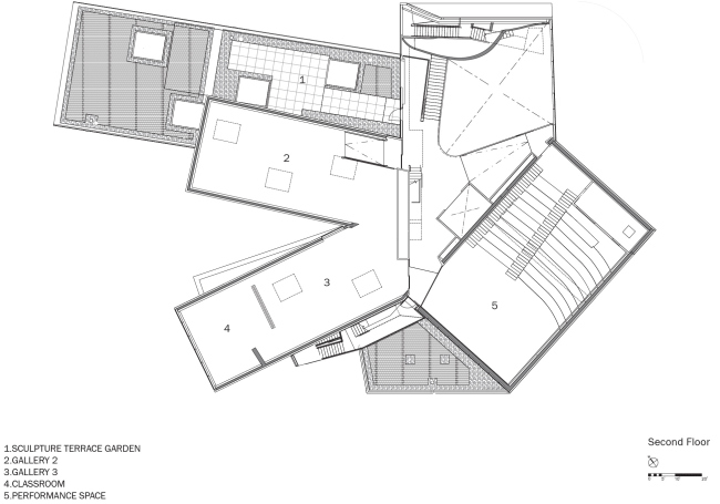
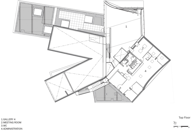
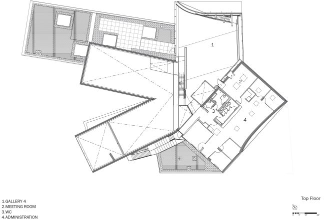
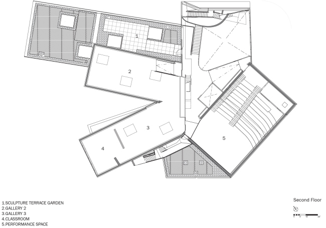
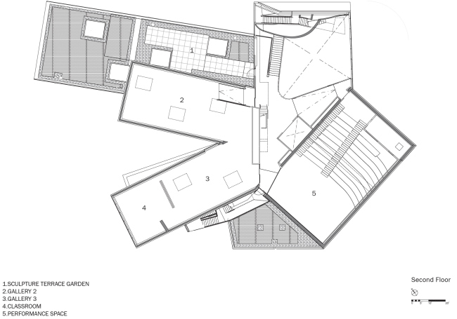
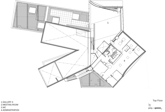
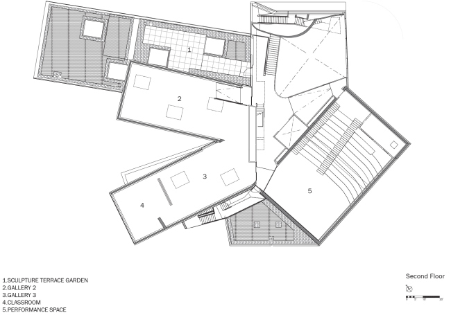
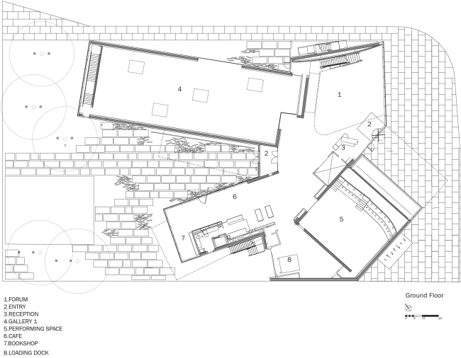
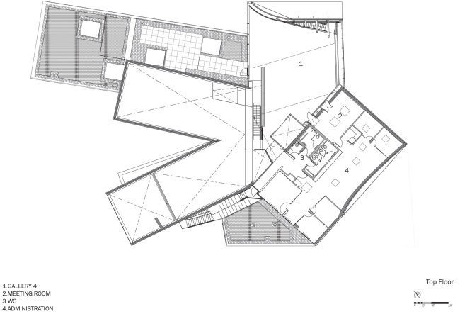
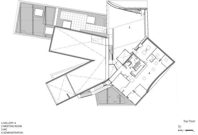
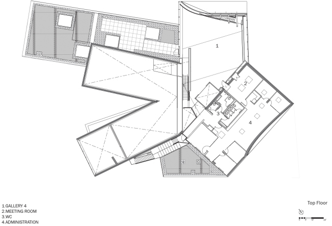
Отсутствие линейности в развитии искусства наших дней Стивен Холл отразил во «временной развилке»: объем здания расходится на несколько блоков-консолей. Кроме того, постройка учитывает размытые границы между изобразительным и исполнительским искусством, характерные для современной ситуации, поэтому ее помещения можно использовать самым разным образом. Помещенные на разных этажах залы могут вмещать единую выставку, четыре разных или же любые промежуточные варианты. Также имеется зрительный зал на 240 мест, подходящий для концертов, кинопоказов, театральных и балетных представлений. Среди других помещений – учебная лаборатория, сад скульптур на одной из кровель, административные и подсобные помещения, вестибюль, кафе и бар, концепт-магазин.
 
Институт современного искусства университета Содружества Виргинии. Фото © Iwan Baan
Институт современного искусства университета Содружества Виргинии. Фото © Iwan Baan

Фасады облицованы титан-цинком, также использовано прозрачное и полупрозрачное стекло. В расположенном рядом саду, куда «выплескивается» пространство института, устроен водоем, высажены местные, не требующие особого полива виды растений. Среди экологических компонентов проекта – естественное освещение в интерьере, зеленые кровли, геотермальная система отопления и охлаждения помещений, светодиодные светильники, смесители с пониженным напором воды и т.д. Общая площадь здания – 3 800 м2, бюджет проекта – 41 млн долларов.
Институт современного искусства университета Содружества Виргинии. Фото © Iwan Baan
Институт современного искусства университета Содружества Виргинии. Фото © Iwan Baan
Институт современного искусства университета Содружества Виргинии. Фото © Iwan Baan
Институт современного искусства университета Содружества Виргинии. Фото © Iwan Baan
Институт современного искусства университета Содружества Виргинии. Фото © Iwan Baan
Институт современного искусства университета Содружества Виргинии. Фото © Iwan Baan
Институт современного искусства университета Содружества Виргинии. Фото © Iwan Baan
Институт современного искусства университета Содружества Виргинии. Фото © Iwan Baan
Институт современного искусства университета Содружества Виргинии. Фото © Iwan Baan
Институт современного искусства университета Содружества Виргинии. Фото © Iwan Baan
Институт современного искусства университета Содружества Виргинии. Фото © Iwan Baan
Институт современного искусства университета Содружества Виргинии. Фото © Iwan Baan
Институт современного искусства университета Содружества Виргинии. Фото © Iwan Baan
Институт современного искусства университета Содружества Виргинии. Фото © Iwan Baan
Институт современного искусства университета Содружества Виргинии. Фото © Iwan Baan
Институт современного искусства университета Содружества Виргинии. Фото © Iwan Baan
Институт современного искусства университета Содружества Виргинии. Фото © Iwan Baan
Институт современного искусства университета Содружества Виргинии. Фото © Iwan Baan
Институт современного искусства университета Содружества Виргинии. Фото © Iwan Baan
Институт современного искусства университета Содружества Виргинии. Фото © Iwan Baan
Институт современного искусства университета Содружества Виргинии. Фото © Terry Brown
Институт современного искусства университета Содружества Виргинии. Фото © Terry Brown
Институт современного искусства университета Содружества Виргинии. Фото © Iwan Baan
Институт современного искусства университета Содружества Виргинии. Фото © Iwan Baan
Институт современного искусства университета Содружества Виргинии. Фото © Iwan Baan
Институт современного искусства университета Содружества Виргинии. Фото © Iwan Baan
Институт современного искусства университета Содружества Виргинии. Фото © Iwan Baan
Институт современного искусства университета Содружества Виргинии. Фото © Iwan Baan
Институт современного искусства университета Содружества Виргинии. Фото © Iwan Baan
Институт современного искусства университета Содружества Виргинии. Фото © Iwan Baan
Институт современного искусства университета Содружества Виргинии. Фото © Iwan Baan
Институт современного искусства университета Содружества Виргинии. Фото © Iwan Baan
Институт современного искусства университета Содружества Виргинии © Steven Holl Architects
Институт современного искусства университета Содружества Виргинии © Steven Holl Architects
Институт современного искусства университета Содружества Виргинии © Steven Holl Architects
Институт современного искусства университета Содружества Виргинии © Steven Holl Architects
Институт современного искусства университета Содружества Виргинии © Steven Holl Architects
Институт современного искусства университета Содружества Виргинии © Steven Holl Architects
Институт современного искусства университета Содружества Виргинии © Steven Holl Architects
Институт современного искусства университета Содружества Виргинии © Steven Holl Architects
Институт современного искусства университета Содружества Виргинии © Steven Holl Architects
Институт современного искусства университета Содружества Виргинии © Steven Holl Architects
Институт современного искусства университета Содружества Виргинии © Steven Holl Architects
Институт современного искусства университета Содружества Виргинии © Steven Holl Architects