Размещено на портале Архи.ру (www.archi.ru)

03.10.2018

Зал-кит

Полина Садова
Объект:
Свердловская филармония
Адрес:
Россия, Екатеринбург.
Мастерская:
Alvisi Kirimoto + Partners
Zaha Hadid Architects
Авторский коллектив:
Zaha Hadid Architects, SPEECH, theatre projects, OVI, Optimise, Marshall Day Acoustics, atelier ten, Arteza, akt II

В конкурсе на концертный зал в центре Екатеринбурга победил проект бюро Захи Хадид, оставив второе место итальянской команде и третье – венгерской. Показываем все три проекта.

Итоги работы жюри открытого конкурса были оглашены 25 сентября, проекты восьми участников первого этапа конкурса, включая работы победителя и двух призеров, опубликованы на сайте министерства культуры Свердловской области. Конкурс был открытым, международным, в нем участвовало 47 консорциумов. Тройку лидеров в итоге составили британское бюро Zaha Hadid Architects, итальянцы Alvisi Kirimoto Partners S.R.L. и венгерская студия Robert Gutowsky Architects. На строительство, которое планируется завершить в течение 5 лет, обещано выделить 300 млн рублей из регионального бюджета.

Сейчас концертный зал Свердловской филармонии занимает здание 1910 года с большими окнами и колоннами на улице Карла Либкнехта в центре исторического города. За ним расположен миниатюрный парк под названием сад Вайнера, почти не благоустроенный. В том же квартале общей площадью 4,5 га расположен также учебный театр ЕГТУ и Аграрная академия. Новое здание должно включить в себя старое, разместившись к северу, в том числе на месте 5-этажного жилого дома и части сада Вайнера. Разумеется, благоустройства потребует весь участок – здесь должны будут появиться подземные переходы и парковки с эксплуатируемыми кровлями, также планируется реконструировать дороги и воссоздать фасады двух старинных особняков.

Стоит отметить, что окончательный выбор проекта для реализации, несмотря на то, что победитель назван, еще предстоит сделать – специальная конкурсная комиссия берет месяц на тщательный анализ проектов-призеров на предмет реализуемости и пригодности к эксплуатации в уральском климате. А мы пока показываем все три варианта.

 
Первое место
Zaha Hadid Architects, SPEECH, theatre projects, OVI, Optimise, Marshall Day Acoustics, atelier ten, Arteza, akt II
Свердловская филармония
Свердловская филармония
© Консорциум Zaha Hadid Architects

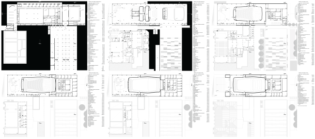
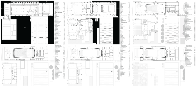
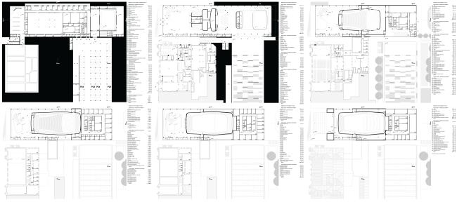
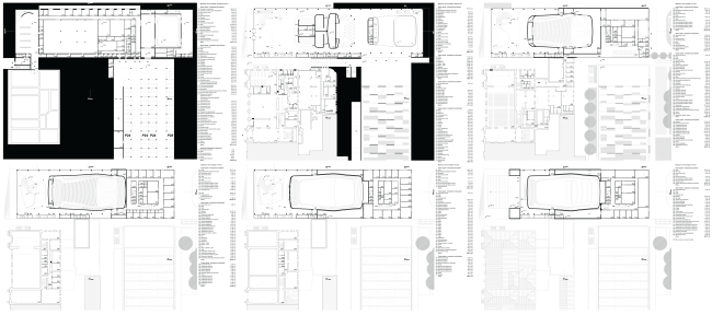
Филармония консорциума Захи Хадид похожа на синего кита, чья гигантская «морда» обращена к улице Либкнехта. Здание занимает значительную часть территории сада Вайнера, «обнимает» собой исторические корпуса филармонии и ЕГТУ. Ровная горизонтальная кровля вспухает в двух местах: над главным залом и над вторым, поменьше. Второй зал интересен тем, что авторы предусмотрели стеклянную стену за его сценой, обращенную в сторону сада Вайнера.

Конечно, главная ассоциация с этим проектом – волна, звуковая. И конкурсное жюри высоко оценило метафоричность. Цель визуально слиться с существующим окружением архитекторами не преследовалась. Напротив, они стремились создать здание, которое перетягивает все внимание на себя. Однако новая филармония не живет сама по себе – она активно взаимодействует с городом и, что свойственно проектам ZHA, математически точно вписана в контекст.
Свердловская филармония
Свердловская филармония
© Консорциум Zaha Hadid Architects
Свердловская филармония
Свердловская филармония
© Консорциум Zaha Hadid Architects
Свердловская филармония
Свердловская филармония
© Консорциум Zaha Hadid Architects
Свердловская филармония
Свердловская филармония
© Консорциум Zaha Hadid Architects
Свердловская филармония
Свердловская филармония
© Консорциум Zaha Hadid Architects
Свердловская филармония
Свердловская филармония
© Консорциум Zaha Hadid Architects
Свердловская филармония
Свердловская филармония
© Консорциум Zaha Hadid Architects
Свердловская филармония
Свердловская филармония
© Консорциум Zaha Hadid Architects
Свердловская филармония
Свердловская филармония
© Консорциум Zaha Hadid Architects
Свердловская филармония
Свердловская филармония
© Консорциум Zaha Hadid Architects
Свердловская филармония
Свердловская филармония
© Консорциум Zaha Hadid Architects
Свердловская филармония
Свердловская филармония
© Консорциум Zaha Hadid Architects
Свердловская филармония
Свердловская филармония
© Консорциум Zaha Hadid Architects
 
Второе место
Alvisi Kirimoto Partners S.R.L., TA.R.I-Architects
Филармония в Екатеринбурге, конкурсный проект, 2018 © Консорциум Alvisi Kirimoto Partners S.R.L.
Филармония в Екатеринбурге, конкурсный проект, 2018 © Консорциум Alvisi Kirimoto Partners S.R.L.

Пафос проекта – в урбанистической интеграции нового здания, «превращении не-места в место». Авторы, по их словам, предлагают возможность городу «войти в проект», причем вовлекая историческое здание филармонии. Сделать парк общественным и доступным для пешеходов, «вернуть природную сущность участка» и «подарить Екатеринбургу новый городской ориентир» – такие задачи ставили перед собой итальянские архитекторы.

Здание собственно концертного зала отнесено далеко в глубину участка, перед ним со стороны улицы задумана крытая общественная площадь – она занимает примерно то же пятно, что и театр.

Самое пристальное внимание архитекторы уделили акустике. Работа с формами подчинялась цели достичь эффекта полного погружения слушателей в звук.
Филармония в Екатеринбурге, конкурсный проект, 2018 © Консорциум Alvisi Kirimoto Partners S.R.L.
Филармония в Екатеринбурге, конкурсный проект, 2018 © Консорциум Alvisi Kirimoto Partners S.R.L.
Филармония в Екатеринбурге, конкурсный проект, 2018 © Консорциум Alvisi Kirimoto Partners S.R.L.
Филармония в Екатеринбурге, конкурсный проект, 2018 © Консорциум Alvisi Kirimoto Partners S.R.L.
Филармония в Екатеринбурге, конкурсный проект, 2018 © Консорциум Alvisi Kirimoto Partners S.R.L.
Филармония в Екатеринбурге, конкурсный проект, 2018 © Консорциум Alvisi Kirimoto Partners S.R.L.
Филармония в Екатеринбурге, конкурсный проект, 2018 © Консорциум Alvisi Kirimoto Partners S.R.L.
Филармония в Екатеринбурге, конкурсный проект, 2018 © Консорциум Alvisi Kirimoto Partners S.R.L.
Филармония в Екатеринбурге, конкурсный проект, 2018 © Консорциум Alvisi Kirimoto Partners S.R.L.
Филармония в Екатеринбурге, конкурсный проект, 2018 © Консорциум Alvisi Kirimoto Partners S.R.L.
Филармония в Екатеринбурге, конкурсный проект, 2018 © Консорциум Alvisi Kirimoto Partners S.R.L.
Филармония в Екатеринбурге, конкурсный проект, 2018 © Консорциум Alvisi Kirimoto Partners S.R.L.
Филармония в Екатеринбурге, конкурсный проект, 2018 © Консорциум Alvisi Kirimoto Partners S.R.L.
Филармония в Екатеринбурге, конкурсный проект, 2018 © Консорциум Alvisi Kirimoto Partners S.R.L.
Филармония в Екатеринбурге, конкурсный проект, 2018 © Консорциум Alvisi Kirimoto Partners S.R.L.
Филармония в Екатеринбурге, конкурсный проект, 2018 © Консорциум Alvisi Kirimoto Partners S.R.L.
Филармония в Екатеринбурге, конкурсный проект, 2018 © Консорциум Alvisi Kirimoto Partners S.R.L.
Филармония в Екатеринбурге, конкурсный проект, 2018 © Консорциум Alvisi Kirimoto Partners S.R.L.
Филармония в Екатеринбурге, конкурсный проект, 2018 © Консорциум Alvisi Kirimoto Partners S.R.L.
Филармония в Екатеринбурге, конкурсный проект, 2018 © Консорциум Alvisi Kirimoto Partners S.R.L.

 
Третье место
Robert Gutowski Architects, Gade&Mortensen Acoustics, Arato Acoustics
Филармония в Екатеринбурге, конкурсный проект, 2018 © Консорциум Robert Gutowski Architects
Филармония в Екатеринбурге, конкурсный проект, 2018 © Консорциум Robert Gutowski Architects

Проект построен на принципе «красота в простоте» – не только потому, что простые и четкие формы это элегантно и всегда актуально, но еще и потому, что бюджет реализации проекта не предполагает вычурности. Однако скучным здание назвать нельзя. В него можно заглянуть, не заходя внутрь – сквозь прозрачную золотую ткань фасада.

Выбранная архитекторами форма обувной коробки – традиционная для концертных залов и обеспечивающая хорошую акустику и к тому же экономичная, по сравнению, например, с залами-аренами. Коробка обычно имеет и недостатки, вроде плохого обзора с боковых балконов или слабой слышимости на задних рядах, – здесь, по заверению авторов, эти проблемы учтены и решены (не зря в составе консорциума две акустических компании).
Филармония в Екатеринбурге, конкурсный проект, 2018 © Консорциум Robert Gutowski Architects
Филармония в Екатеринбурге, конкурсный проект, 2018 © Консорциум Robert Gutowski Architects
Филармония в Екатеринбурге, конкурсный проект, 2018 © Консорциум Robert Gutowski Architects
Филармония в Екатеринбурге, конкурсный проект, 2018 © Консорциум Robert Gutowski Architects
Филармония в Екатеринбурге, конкурсный проект, 2018 © Консорциум Robert Gutowski Architects
Филармония в Екатеринбурге, конкурсный проект, 2018 © Консорциум Robert Gutowski Architects
Филармония в Екатеринбурге, конкурсный проект, 2018 © Консорциум Robert Gutowski Architects
Филармония в Екатеринбурге, конкурсный проект, 2018 © Консорциум Robert Gutowski Architects
Филармония в Екатеринбурге, конкурсный проект, 2018 © Консорциум Robert Gutowski Architects
Филармония в Екатеринбурге, конкурсный проект, 2018 © Консорциум Robert Gutowski Architects
Филармония в Екатеринбурге, конкурсный проект, 2018 © Консорциум Robert Gutowski Architects
Филармония в Екатеринбурге, конкурсный проект, 2018 © Консорциум Robert Gutowski Architects
Филармония в Екатеринбурге, конкурсный проект, 2018 © Консорциум Robert Gutowski Architects
Филармония в Екатеринбурге, конкурсный проект, 2018 © Консорциум Robert Gutowski Architects
Филармония в Екатеринбурге, конкурсный проект, 2018 © Консорциум Robert Gutowski Architects
Филармония в Екатеринбурге, конкурсный проект, 2018 © Консорциум Robert Gutowski Architects
Филармония в Екатеринбурге, конкурсный проект, 2018 © Консорциум Robert Gutowski Architects
Филармония в Екатеринбурге, конкурсный проект, 2018 © Консорциум Robert Gutowski Architects