Размещено на портале Архи.ру (www.archi.ru)

17.10.2018

Небо. Круги. Синкопы

Юлия Шишалова
Объект:
ЖК PerovSky
Адрес:
Россия, Москва. шоссе Энтузиастов, 88
Архитектор:
Андрей Романов
Екатерина Кузнецова
Мастерская:
ADM
Авторский коллектив:
Архитекторы: Романов А.С., Кузнецова Е.И., Маломуж А.А., Дорошенко Е.А., Заец Б.Н.

Новая постройка архитекторов ADM показывает, как сделать квартал всего из трех башен, фактически плоское – визуально объемным, одновысотное – разнообразным, разновысотное – единообразным и интегрировать в жилую среду максимум неба и зелени.

ЖК PerovSky © ADM
ЖК PerovSky © ADM

Новый жилой комплекс PerovSky девелопера MR Group – тот случай, когда расположение вдали от транспортных магистралей – безусловное достоинство. Да, пешком до метро «Перово» минут 15, но зато участок буквально окружен кольцом зелени: в двух минутах – Терлецкий парк с прудами и 300-летними дубами, с другой стороны – Измайловский парк, с третьей – территория больницы, развернутая к комплексу двором, который тоже по сути является парком.
ЖК PerovSky. Генеральный план. Проект, 2015 © ADM
ЖК PerovSky. Генеральный план. Проект, 2015 © ADM

При этом дворовое и уличное пространство четко разделены – Андрей Романов и Екатерина Кузнецова из бюро ADM убеждены, что человеку так намного комфортнее. Московские власти активно пропагандируют подобное деление посредством квартальной застройки, то есть строительством замкнутого контура домов примерно одной высоты. Однако авторы считают, что если эта высота получается больше 13 этажей, ощущение комфорта и сомасштабности пропадает, неба становится мало, дома начинают давить. Гораздо честнее в этом случае выстраивать композицию из свободно расставленных башен – здесь их получилось три по 23 этажа каждая, – а контур-границу «своего» и «общественного» вычерчивать и фиксировать объединяющим стилобатом.
ЖК PerovSky © ADM
ЖК PerovSky © ADM
ЖК PerovSky © ADM
ЖК PerovSky © ADM

Так в PerovSky в центре участка, «лицом» к Терлецкой дубраве, появился относительно закрытый двор без машин: оставив автомобиль в паркинге под этим самым двором, его нужно пересечь, чтобы попасть из центрального лобби в одну из двух дальних башен. А большая общественная зона организована как раз у лобби: сюда ориентированы входы в спроектированные на первом этаже стилобата помещения, предназначенные для магазинов, сервисных центров и кафе. Отдельный вход есть и у встроенного детского сада. Его собственные спортивные и детские площадки с внешней стороны комплекса образуют еще один функциональный блок. И уж чего-чего, а неба в PerovSky много: и с уровня земли, во дворе, залитом солнцем, и с жилых этажей, взмывающих над деревьями. Вплоть до того, что сами корпуса носят названия созвездий: Пегаса, Феникса и Водолея.
ЖК PerovSky © ADM
ЖК PerovSky © ADM

Кстати, артикулированная высота задала определенную планку и для «пятого фасада» стилобата. И хотя не удалось сделать его кровлю зеленой, как планировалось изначально, но применение в отделке плитки и гальки, а главное – камуфлирование всех коммуникаций аккуратными полупрозрачными цилиндрами – превратили плоскую поверхность стилобата в органичную часть ландшафта.
ЖК PerovSky © ADM
ЖК PerovSky © ADM

Во многом эффект удался за счет того, что ландшафты для своих комплексов ADM всегда проектируют сами. И круги – а таковыми Платон называл все небесные светила – то складывающиеся в сложные молекулярные структуры, то разбегающиеся брусчаткой от деревьев, как от брошенных в воду камушков; то прикрывающие вентиляционные шахты или вырастающие зелеными холмами из земли, а то невидимо «врезающиеся» в линию стилобата – оказались тем простым по сути, но эффектным объединяющим приемом, который сформировал гармоничную глазу (как, впрочем, и всем остальным органам чувств) живую среду. Заодно криволинейные «врезы» визуально нивелировали протяженность стилобата и породили квартиры нетривиальной планировки: второй этаж здесь в итоге сделали жилым. В целом же в комплексе есть как студии площадью 32 м2, так и пятикомнатные квартиры до 172 м2.
ЖК PerovSky © ADM
ЖК PerovSky © ADM
ЖК PerovSky © ADM
ЖК PerovSky © ADM
ЖК PerovSky © ADM
ЖК PerovSky © ADM
ЖК PerovSky © ADM
ЖК PerovSky © ADM
ЖК PerovSky © ADM
ЖК PerovSky © ADM
ЖК PerovSky © ADM
ЖК PerovSky © ADM

В вертикальных плоскостях пресловутого разнообразия – обязательной уже составляющей комфорта – архитекторы достигают совсем иными способами. В комплексах подобного (среднего) класса обычно отделываются разными видами материалов, принципиально не меняя сами фасадные паттерны. Но ADM потому и стало одним из ведущих столичных бюро по проектированию жилых комплексов, что работает с материями на гораздо более тонком уровне, и даже «плоская» архитектура, в формальном отсутствии пластики, обретает у них дополнительное измерение. В одной из светлых башен за счет серых вставок очертания окон оказываются «сбитыми» и непредсказуемыми (хотя везде абсолютно – трехметровые потолки).
ЖК PerovSky © ADM
ЖК PerovSky © ADM
ЖК PerovSky © ADM
ЖК PerovSky © ADM

Две других башни «делают» угловые окна и специально разработанные металлические решетки: где-то они примыкают вплотную к стене этакими декоративными балкончиками, а где-то отходят от нее, как балкончики настоящие, но на самом деле служат экранами для кондиционеров. Клинкер «заворачивает» в окна – и это тоже придает поверхности объем и глубину. А фасады стилобата артикулированы вертикальными деревянными ламелями – все на разном расстоянии друг от друга, как стволы деревьев в какой-нибудь нерукотворной роще – да вот хотя бы в близлежащей Терлецкой дубраве. И во всей этой нарочитой аритмичности очевидно проявлено искусство виртуозного исполнения архитектурного синкопированного «джаза», в котором каждая импровизация тщательно просчитана и отрепетирована.

Хотя не исключено, что основная мелодия все же «подслушана» у Перовских небес.
ЖК PerovSky © ADM
ЖК PerovSky © ADM
ЖК Perovsky © ADM
ЖК Perovsky © ADM
ЖК PerovSky © ADM
ЖК PerovSky © ADM
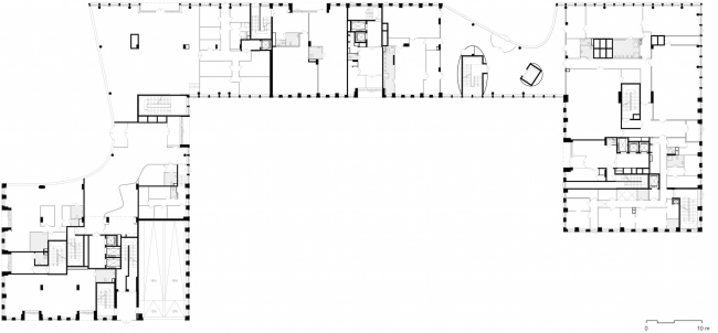
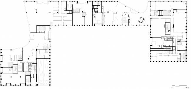
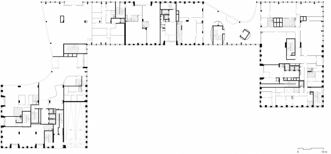
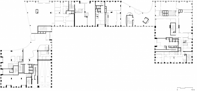
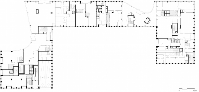
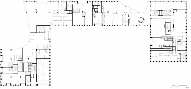
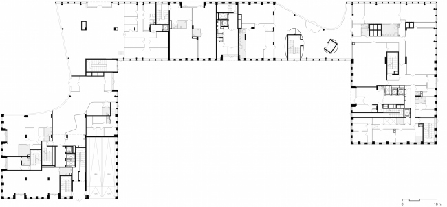
ЖК PerovSky. План 1 этажа. Проект, 2015 © ADM
ЖК PerovSky. План 1 этажа. Проект, 2015 © ADM
ЖК PerovSky. План типового этажа. Проект, 2015 © ADM
ЖК PerovSky. План типового этажа. Проект, 2015 © ADM