Размещено на портале Архи.ру (www.archi.ru)

20.09.2018

Архсовет Москвы – 58

Мария Трошина
Объект:
Гостиница Toyoko Inn на Красносельской улице
Адрес:
Россия, Москва. ул. Красносельская
Мастерская:
ООО «Другие Перспективы»

Поиск баланса между корпоративным стилем и уместной для Москвы архитектуры стал предметом обсуждения архсовета, рассмотревшего проект гостиницы японской сети Toyoko Inn на Красносельской улице.

Гостиница Toyoko Inn на Красносельской улице.Проектировщик ООО «АНТ ЯПЫ» Разработчик ООО «Другие перспективы».
Гостиница Toyoko Inn на Красносельской улице.Проектировщик ООО «АНТ ЯПЫ» Разработчик ООО «Другие перспективы».

Участок будущей 2-звездной гостиницы расположен недалеко от метро «Красносельская», рядом со съездом с ТТК перед Русаковской эстакадой. Кирпичное здание АТС 1980-х, где уже сейчас располагается общежитие, снесут, одноэтажное строение рядом реконструируют и включат в новый комплекс.

Так выглядит АТС сейчас:


Место не самое центральное, однако строительство бюджетной гостиницы иностранной сети – факт, примечательный для Москвы сам по себе. «Этот объект интересен столкновением корпоративного стиля и представлений о городе. Поэтому мы решили рассмотреть его на архсовете», – отметил главный архитектор города Сергей Кузнецов.
Гостиница Toyoko Inn на Красносельской улице.Проектировщик ООО «АНТ ЯПЫ» Разработчик ООО «Другие перспективы».
Гостиница Toyoko Inn на Красносельской улице.Проектировщик ООО «АНТ ЯПЫ» Разработчик ООО «Другие перспективы».

Бренд Toyoko Inn еще в 2015 году решил завоевать российский рынок и вышел с предложением о строительстве гостиницы в Москве; в планах компании также создание отелей в Санкт-Петербурге и других российских городах. Таким образом московский проект – для компании пилотный, отчего она уделяет особенное внимание корпоративному стилю, который делает здания узнаваемыми для клиентов. На презентации проекта представители Toyoko Inn объясняли свою приверженность корпоративному стилю, явно сформировавшемуся в 1980-е, демонстрируя фасады уже построенных гостиниц: все они пластины с металлокассетными фасадами.
Гостиница Toyoko Inn в Хоккайдо – типичный отель сети.
Гостиница Toyoko Inn в Хоккайдо – типичный отель сети.

Дизайн-код гостиниц сети, построенных в основном в Японии, предполагает трехцветный фасад и квадратные окна, а также использование различных материалов, в частности, натурального камня в нижнем ярусе зданий. Будучи бюджетным отелем, Toyoko Inn делает ставку на то, что постоянные клиенты будут чувствовать себя как дома, поэтому если в фасадах может быть некий отход от правил, то интерьеры повторяются во всех гостиницах. Еще одна особенность сети – все отели спроектированы со сплит-системами, что в немалой степени определяет внешний облик здания.

Иногда бренд отступает от своих правил. Единственной гостиницей сети, полностью отошедшей от заданных канонов, стал открытый мае этого года отель Toyoko Inn в Марселе по проекту местного бюро TANGRAM ARCHITECTS. Как пишут архитекторы на своем сайте, для них было важно представить страну восходящего солнца: они «использовали код современной японской архитектуры», который помимо отдельных приемов в пластике фасада отразился и в создании японского сада. При этом интерьеры следовали дизайн-коду.
Гостиница Toyoko Inn в Марселе. Архитекторы TANGRAM ARCHITECTS
Гостиница Toyoko Inn в Марселе. Архитекторы TANGRAM ARCHITECTS

Сложно сказать, удачен ли яркий образ для гостиницы с категорией 2 звезды. Сами японцы больше склоняются к скромному традиционному варианту, и Москва не стала исключением.

Между тем исходный вариант гостиницы, соблюдавший все каноны бренда – два параллелепипеда, повернутые под углом 104 градуса друг к другу – оказался однако совершенно неприемлем для города, особенно учитывая близость участка к центру. Как сказал главный архитектор Сергей Кузнецов: «Это похоже на панельные серии 1980-х какого-нибудь ДСК».
Гостиница Toyoko Inn на Красносельской улице.Исходное предложение
Гостиница Toyoko Inn на Красносельской улице.Исходное предложение

Собственно задачей авторов второго варианта, бюро «Другие перспективы», стала адаптация требований фирменного стиля к требованиям города. Бюро имеет опыт работы с отелями, но с двумя звездами работает впервые – а категория гостиницы, по словам архитекторов, существенно отражается на проекте.

Застройка Верхней Красносельской – умеренно разнообразная, преобладает кирпич. Поэтому в предложенном варианте предложено сохранить трехцветный дизайн-код, но уйти от гладких фасадов, традиционно используемых в отелях сети, обогатив пластику отделкой из клинкерного кирпича с градиентными переходами между цветами.
Гостиница Toyoko Inn на Красносельской улице.Проектировщик ООО «АНТ ЯПЫ» Разработчик ООО «Другие перспективы». Фасад со стороны Третьего транспортного кольца
Гостиница Toyoko Inn на Красносельской улице.Проектировщик ООО «АНТ ЯПЫ» Разработчик ООО «Другие перспективы». Фасад со стороны Третьего транспортного кольца

Окна также получают пластическое решение благодаря выносу их обрамления на 20 см.
Гостиница Toyoko Inn на Красносельской улице.Проектировщик ООО «АНТ ЯПЫ» Разработчик ООО «Другие перспективы». Деталь отделки фасада
Гостиница Toyoko Inn на Красносельской улице.Проектировщик ООО «АНТ ЯПЫ» Разработчик ООО «Другие перспективы». Деталь отделки фасада

Также был представлен компромиссный вариант, в двух цветах. Были предложены и два решения дворового фасада – с деревянными и металлическими ограждениями балконов.
Гостиница Toyoko Inn на Красносельской улице.Проектировщик ООО «АНТ ЯПЫ» Разработчик ООО «Другие перспективы». Альтернативный вариант решения фасада в двух цветах
Гостиница Toyoko Inn на Красносельской улице.Проектировщик ООО «АНТ ЯПЫ» Разработчик ООО «Другие перспективы». Альтернативный вариант решения фасада в двух цветах
Гостиница Toyoko Inn на Красносельской улице.Проектировщик ООО «АНТ ЯПЫ» Разработчик ООО «Другие перспективы».Вариант дворового фасада с металлическими ограждениями
Гостиница Toyoko Inn на Красносельской улице.Проектировщик ООО «АНТ ЯПЫ» Разработчик ООО «Другие перспективы».Вариант дворового фасада с металлическими ограждениями

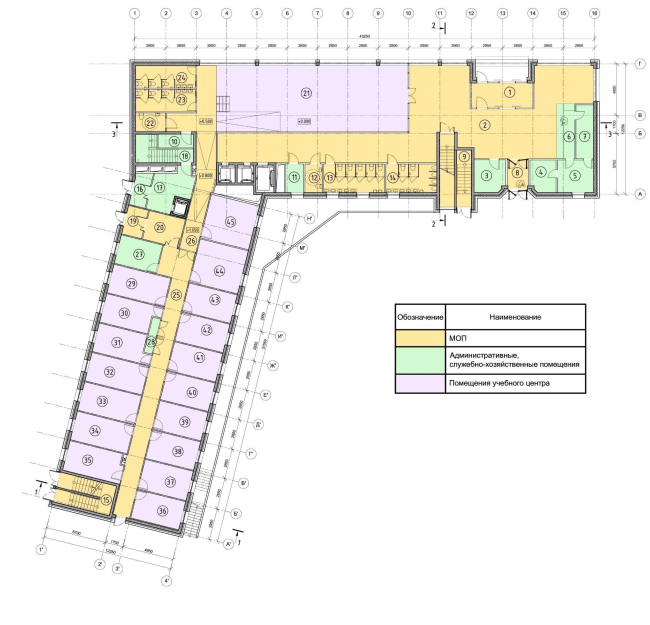
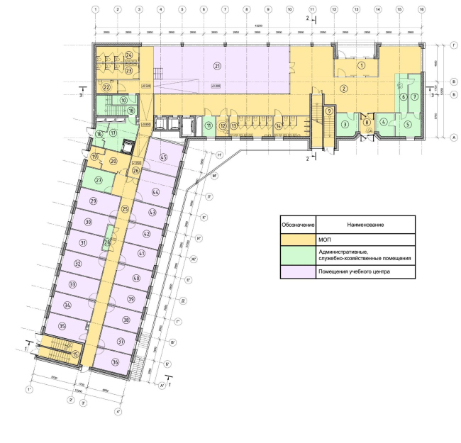
Всего в одиннадцатиэтажной гостинице предполагается 440 номеров и учебный центр.

При обсуждении гостиницы Алексей Воронцов вспомнил свою работу над зданием Макдональдс на Тверской – отход от корпоративного стиля тогда сыграл на руку бренду, но во многом то решение определялось центральным местоположением постройки. Замена кассетного фасада на клинкерный кирпич в данном случае по его мнению – хорошее компромиссное решение.

По мнению Евгения Асса, было найдено элегантное решение корпоративного стиля бренда и отметил, что вариант в двух цветах предпочтительнее, так как он может быть понят как цоколь с большой массой над ним. Также он указал на отсутствие карниза и непродуманность завершения здания. Архитекторы обещали подумать и предложить более артикулированный карниз или изменение соотношений цветовых пятен на фасаде для создания тектоники.

После короткого обсуждения архсовет одобрил фасадное и объемно-планировочное решение с учетом доработки транспортной схемы, а также снятия других замечаний технического характера.
 
Нам стали поступать изумленно понятые брови, поэтому поясним.
Репортажи с архсовета – это отчеты о том, что происходило на архсоветах. С критикой рассмотренных проектов, как правило, отлично справляются собственно члены совета, чьи мнения мы старательно озвучиваем в этих текстах. В данном случае критики было немного, поэтому, чтобы было интереснее, мы добавили обзор политики компании заказчика, которая (политика), собственно и привела к рассматриваемому результату. Все прочие выводы вы можете сделать самостоятельно.
Ю.Тарабарина, от редакции
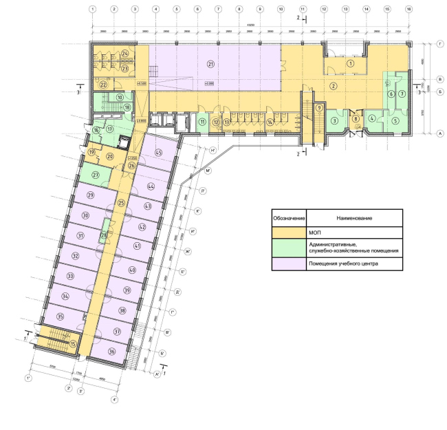
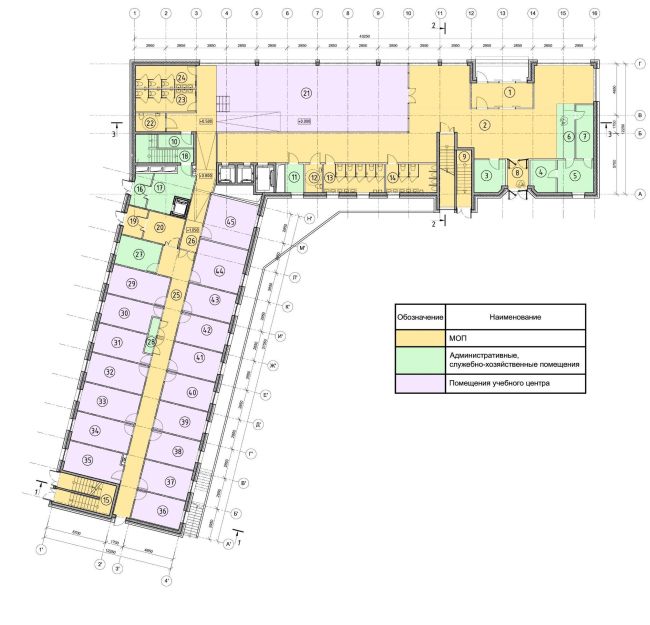
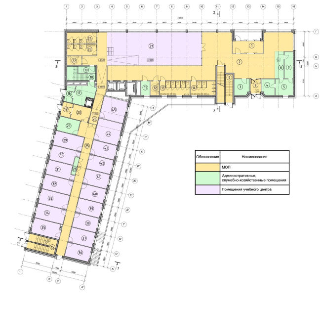
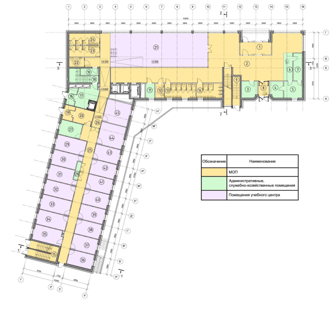
Гостиница Toyoko Inn на Красносельской улице.Проектировщик ООО «АНТ ЯПЫ» Разработчик ООО «Другие перспективы».План 1го этажа
Гостиница Toyoko Inn на Красносельской улице.Проектировщик ООО «АНТ ЯПЫ» Разработчик ООО «Другие перспективы».План 1го этажа
Гостиница Toyoko Inn на Красносельской улице.Проектировщик ООО «АНТ ЯПЫ» Разработчик ООО «Другие перспективы». Разрез 1-1
Гостиница Toyoko Inn на Красносельской улице.Проектировщик ООО «АНТ ЯПЫ» Разработчик ООО «Другие перспективы». Разрез 1-1
Гостиница Toyoko Inn на Красносельской улице.Проектировщик ООО «АНТ ЯПЫ» Разработчик ООО «Другие перспективы».Разрез2-2
Гостиница Toyoko Inn на Красносельской улице.Проектировщик ООО «АНТ ЯПЫ» Разработчик ООО «Другие перспективы».Разрез2-2