Размещено на портале Архи.ру (www.archi.ru)

19.09.2018

Слоистый фасад

Нина Фролова
Объект:
Филиал Музея Виктории и Альберта в Данди
Адрес:
Великобритания, None, Данди.

Филиал Музея Виктории и Альберта в Данди на восточном побережье Шотландии по проекту Кенго Кумы.

Филиал Музея Виктории и Альберта в Данди © Hufton+Crow
Филиал Музея Виктории и Альберта в Данди © Hufton+Crow

В Данди открылся первый в истории филиал лондонского Музея Виктории и Альберта; его постоянная экспозиция посвящена шотландскому дизайну, и его уже назвали крупнейшим культурным приобретением региона в XXI веке. Среди особых экспонатов – интерьер «Дубовой комнаты» Чарльза Ренни Макинтоша, созданный им для чайной на Ингрем-стрит в Глазго (1900–1912), тщательно отреставрированный и впервые за полвека представленный публике. Триста предметов постоянной экспозиции поступили из собрания музея Виктории и Альберта, а также из других учреждений и частных коллекций разных стран мира. Вход в филиал в Данди, как в и в «главный» музей в Лондоне – бесплатный.
 
Филиал Музея Виктории и Альберта в Данди © Hufton+Crow
Филиал Музея Виктории и Альберта в Данди © Hufton+Crow
Филиал Музея Виктории и Альберта в Данди © Hufton+Crow
Филиал Музея Виктории и Альберта в Данди © Hufton+Crow

Здание музея с бюджетом 80,11 млн фунтов расположено на берегу реки Тей, в ее устье недалеко от места ее впадения в Северное море. Проект Кенго Кумы (ему поручили его в результате конкурса в 2010) – часть масштабного плана по превращению бывшей гавани с доками в район смешанной застройки, открывающий Данди выход к воде. Этот план с бюджетом в миллиард фунтов стартовал в 2001 и рассчитан на 30 лет. Он охватывает восемь километров побережья и участок в 240 гектаров.
 
Филиал Музея Виктории и Альберта в Данди © Hufton+Crow
Филиал Музея Виктории и Альберта в Данди © Hufton+Crow
Филиал Музея Виктории и Альберта в Данди © Hufton+Crow
Филиал Музея Виктории и Альберта в Данди © Hufton+Crow

Задание конкурса оговаривало поддержание проектом музея визуальной связи города и реки, поэтому здание Кумы на уровне первого этажа разделено надвое (что также разводит в разные стороны общественный и служебный входы), превращаясь в арку, кадрирующую вид на воду. Кроме того, музей выдается в сторону Тей мощным выступом длиной почти в двадцать метров. Связь с рекой архитектор подчеркнул и серией водоемов вокруг здания.
 
Филиал Музея Виктории и Альберта в Данди © Hufton+Crow
Филиал Музея Виктории и Альберта в Данди © Hufton+Crow
Филиал Музея Виктории и Альберта в Данди © Hufton+Crow
Филиал Музея Виктории и Альберта в Данди © Hufton+Crow

Объем в форме двух перевернутых пирамид, срастающихся на высоте второго яруса, покрыт горизонтальными бетонными «слоями»: этот образ архитектор почерпнул у скал на северо-восточном побережье Шотландии. Эти «слои» покрывают почти 2500 фасадных панелей разного размера и формы, на монтаж которых ушло порядка семи месяцев. Их вес достигает двух тонн, длина – до четырех метров. Изначально стены должны были быть толщиной в 60 см, с очень толстым стальным каркасом, однако инженерам Arup удалось сократить это число вдвое и значительно уменьшить расход стали. Оболочка здания, включая кровлю – цельная структура, и ее многочисленные «складки» делают ее более устойчивой. При работе над проектом ключевую роль играла BIM-модель.
 
Филиал Музея Виктории и Альберта в Данди © Hufton+Crow
Филиал Музея Виктории и Альберта в Данди © Hufton+Crow
Филиал Музея Виктории и Альберта в Данди © Hufton+Crow
Филиал Музея Виктории и Альберта в Данди © Hufton+Crow

«Арка» в основании музея напоминает о стоявшей ранее неподалеку Королевской арке, построенной в 1844 в честь визита в город королевы Виктории и принца Альберта. Рядом с постройкой Кумы с начала 1990-х выставлен «Дискавери», построенный в Данди корабль исследователя Антарктики Роберта Скотта, а недалеко создан новый парк Слессор-гарденс.




Филиал Музея Виктории и Альберта в Данди © Hufton+Crow
Филиал Музея Виктории и Альберта в Данди © Hufton+Crow
Филиал Музея Виктории и Альберта в Данди © Hufton+Crow
Филиал Музея Виктории и Альберта в Данди © Hufton+Crow

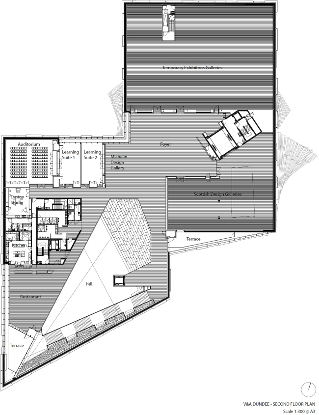
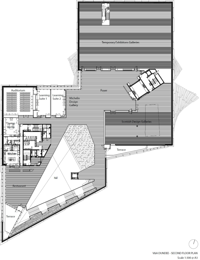
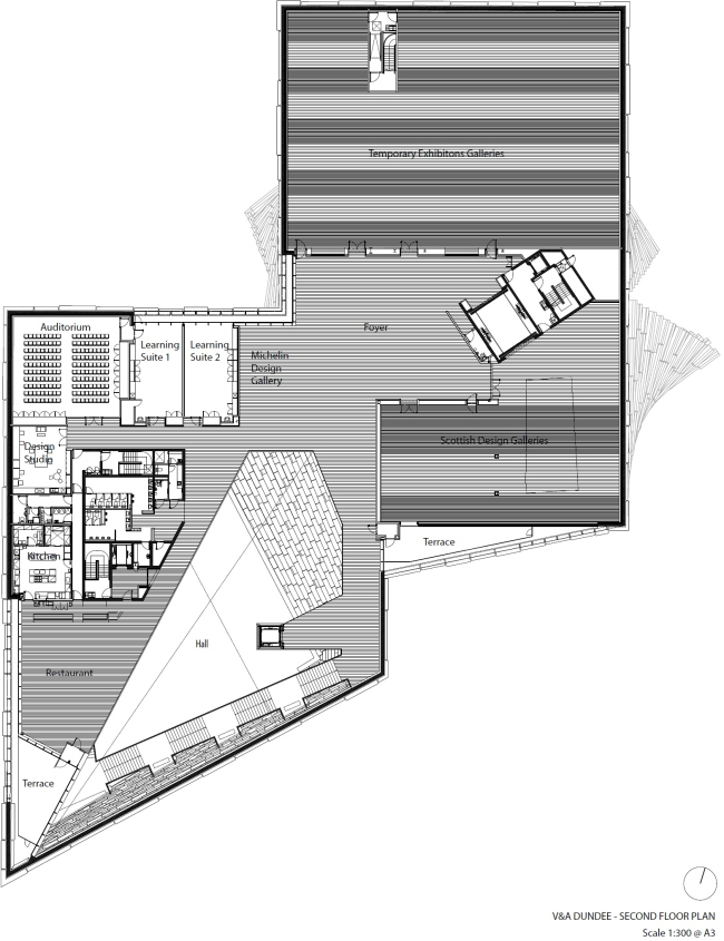
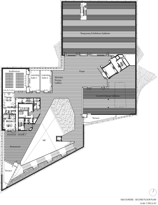
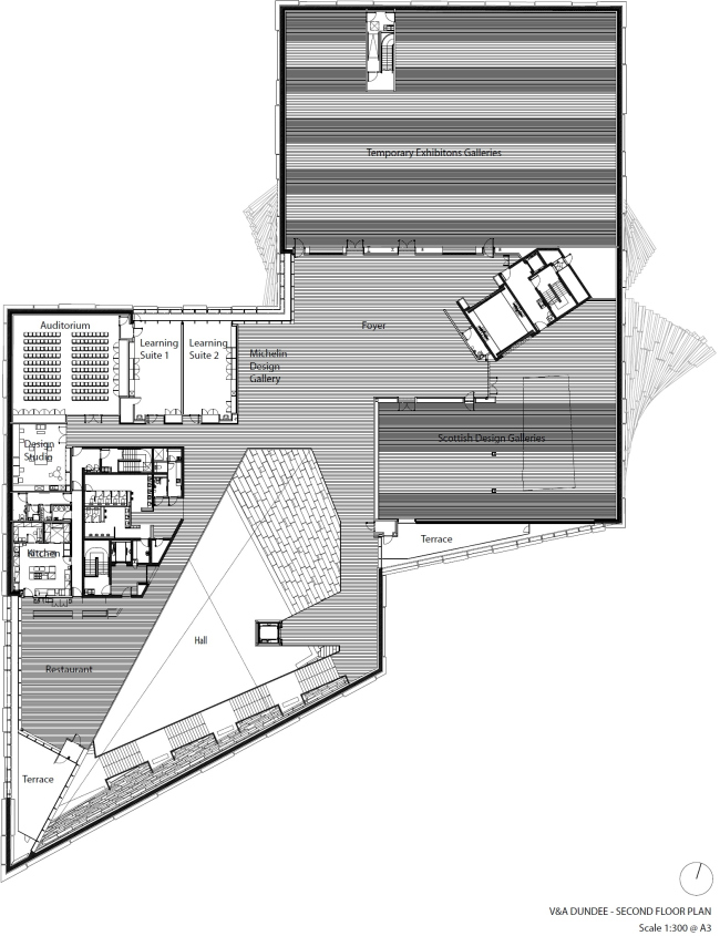
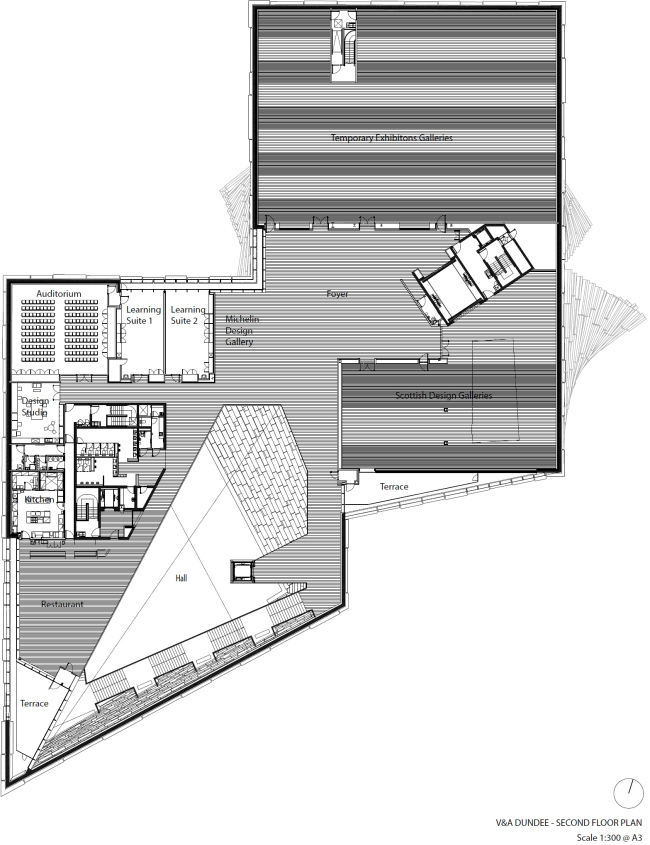
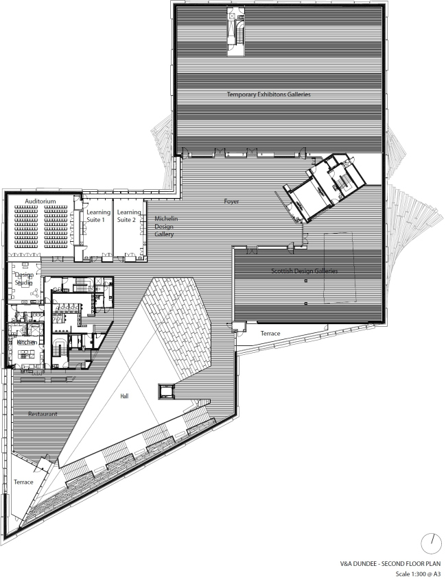
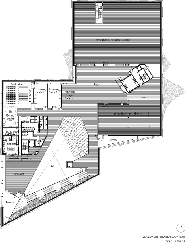
Главный вестибюль музея также обшит «слоями» – только покрытыми дубовой фанерой. Его пол и лестница выполнены из синего ирландского известняка Карлоу, в котором видны окаменелости морских животных и растений, что дополнительно связывает музей с водой. По тому же принципу кассовые стойки в музейных кафе, ресторане и магазине изготовили из белого бетона с добавлением раковин моллюсков (получены как отходы местной пищевой промышленности или собраны на пляжах). На антресольном этаже находится «комната для пикников» для школьных групп и посетителей с семьями, выше помещены залы постоянных (550 м2) и временных (1100 м2) выставок, образовательный центр. В верхней части музея также имеются студия для «дизайнера-резидента», многофункциональная аудитория и ресторан с панорамными видами на реку. Общая площадь музея – 8445 м2.

 
Филиал Музея Виктории и Альберта в Данди © Hufton+Crow
Филиал Музея Виктории и Альберта в Данди © Hufton+Crow
Филиал Музея Виктории и Альберта в Данди © Hufton+Crow
Филиал Музея Виктории и Альберта в Данди © Hufton+Crow
Филиал Музея Виктории и Альберта в Данди © Hufton+Crow
Филиал Музея Виктории и Альберта в Данди © Hufton+Crow
Филиал Музея Виктории и Альберта в Данди © Hufton+Crow
Филиал Музея Виктории и Альберта в Данди © Hufton+Crow
Филиал Музея Виктории и Альберта в Данди © Hufton+Crow
Филиал Музея Виктории и Альберта в Данди © Hufton+Crow
Филиал Музея Виктории и Альберта в Данди © Hufton+Crow
Филиал Музея Виктории и Альберта в Данди © Hufton+Crow
Kengo Kuma Associates. Филиал Музея Виктории и Альберта в Данди
Kengo Kuma Associates. Филиал Музея Виктории и Альберта в Данди
© Hufton+Crow
Филиал Музея Виктории и Альберта в Данди © Hufton+Crow
Филиал Музея Виктории и Альберта в Данди © Hufton+Crow
Филиал Музея Виктории и Альберта в Данди © Hufton+Crow
Филиал Музея Виктории и Альберта в Данди © Hufton+Crow
Филиал Музея Виктории и Альберта в Данди © Hufton+Crow
Филиал Музея Виктории и Альберта в Данди © Hufton+Crow
Филиал Музея Виктории и Альберта в Данди © Hufton+Crow
Филиал Музея Виктории и Альберта в Данди © Hufton+Crow
Филиал Музея Виктории и Альберта в Данди © Hufton+Crow
Филиал Музея Виктории и Альберта в Данди © Hufton+Crow
Филиал Музея Виктории и Альберта в Данди © Hufton+Crow
Филиал Музея Виктории и Альберта в Данди © Hufton+Crow
Филиал Музея Виктории и Альберта в Данди © Hufton+Crow
Филиал Музея Виктории и Альберта в Данди © Hufton+Crow
Филиал Музея Виктории и Альберта в Данди © Hufton+Crow
Филиал Музея Виктории и Альберта в Данди © Hufton+Crow
Филиал Музея Виктории и Альберта в Данди © Hufton+Crow
Филиал Музея Виктории и Альберта в Данди © Hufton+Crow
Филиал Музея Виктории и Альберта в Данди © Hufton+Crow
Филиал Музея Виктории и Альберта в Данди © Hufton+Crow
Kengo Kuma Associates.Филиал Музея Виктории и Альберта в Данди
Kengo Kuma Associates.Филиал Музея Виктории и Альберта в Данди
© Hufton+Crow
Филиал Музея Виктории и Альберта в Данди © Hufton+Crow
Филиал Музея Виктории и Альберта в Данди © Hufton+Crow
Филиал Музея Виктории и Альберта в Данди © Hufton+Crow
Филиал Музея Виктории и Альберта в Данди © Hufton+Crow
Филиал Музея Виктории и Альберта в Данди © Hufton+Crow
Филиал Музея Виктории и Альберта в Данди © Hufton+Crow
Филиал Музея Виктории и Альберта в Данди © Hufton+Crow
Филиал Музея Виктории и Альберта в Данди © Hufton+Crow
Филиал Музея Виктории и Альберта в Данди © Hufton+Crow
Филиал Музея Виктории и Альберта в Данди © Hufton+Crow
Филиал Музея Виктории и Альберта в Данди © KKAA
Филиал Музея Виктории и Альберта в Данди © KKAA
Филиал Музея Виктории и Альберта в Данди © KKAA
Филиал Музея Виктории и Альберта в Данди © KKAA
Филиал Музея Виктории и Альберта в Данди © KKAA
Филиал Музея Виктории и Альберта в Данди © KKAA
Филиал Музея Виктории и Альберта в Данди © KKAA
Филиал Музея Виктории и Альберта в Данди © KKAA
Филиал Музея Виктории и Альберта в Данди © KKAA
Филиал Музея Виктории и Альберта в Данди © KKAA
Филиал Музея Виктории и Альберта в Данди © Arup
Филиал Музея Виктории и Альберта в Данди © Arup
Филиал Музея Виктории и Альберта в Данди © Arup
Филиал Музея Виктории и Альберта в Данди © Arup
Филиал Музея Виктории и Альберта в Данди © KKAA
Филиал Музея Виктории и Альберта в Данди © KKAA
Филиал Музея Виктории и Альберта в Данди © KKAA
Филиал Музея Виктории и Альберта в Данди © KKAA
Филиал Музея Виктории и Альберта в Данди © KKAA
Филиал Музея Виктории и Альберта в Данди © KKAA
Филиал Музея Виктории и Альберта в Данди в процессе строительства. Май 2017 © Ross Fraser McLean
Филиал Музея Виктории и Альберта в Данди в процессе строительства. Май 2017 © Ross Fraser McLean