Размещено на портале Архи.ру (www.archi.ru)

13.09.2018

Старый материал для новой формы

Нина Фролова
Объект:
Дом в Корве
Адрес:
Иран, None, Корве.
Мастерская:
ReNa Design

Жилой дом в городе Корве на северо-западе Ирана по проекту бюро ReNa Design.

Дом в Корве. Фото © M.H. Hamzehlouei
Дом в Корве. Фото © M.H. Hamzehlouei

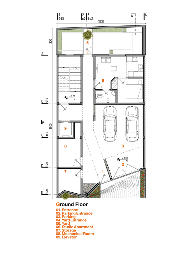
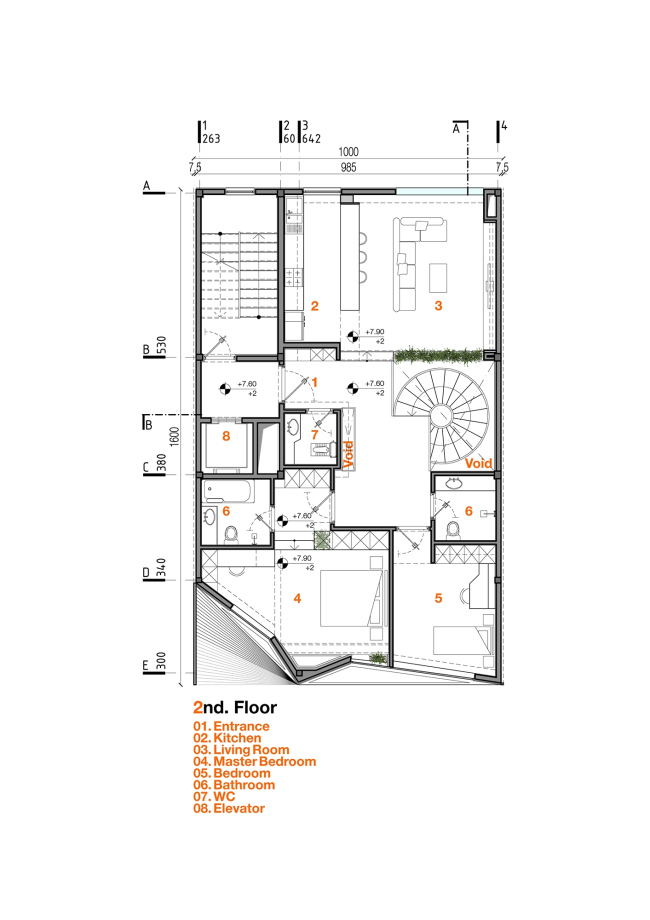
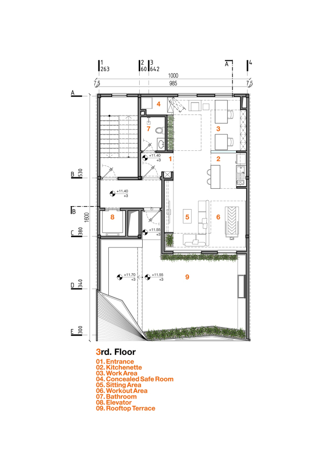
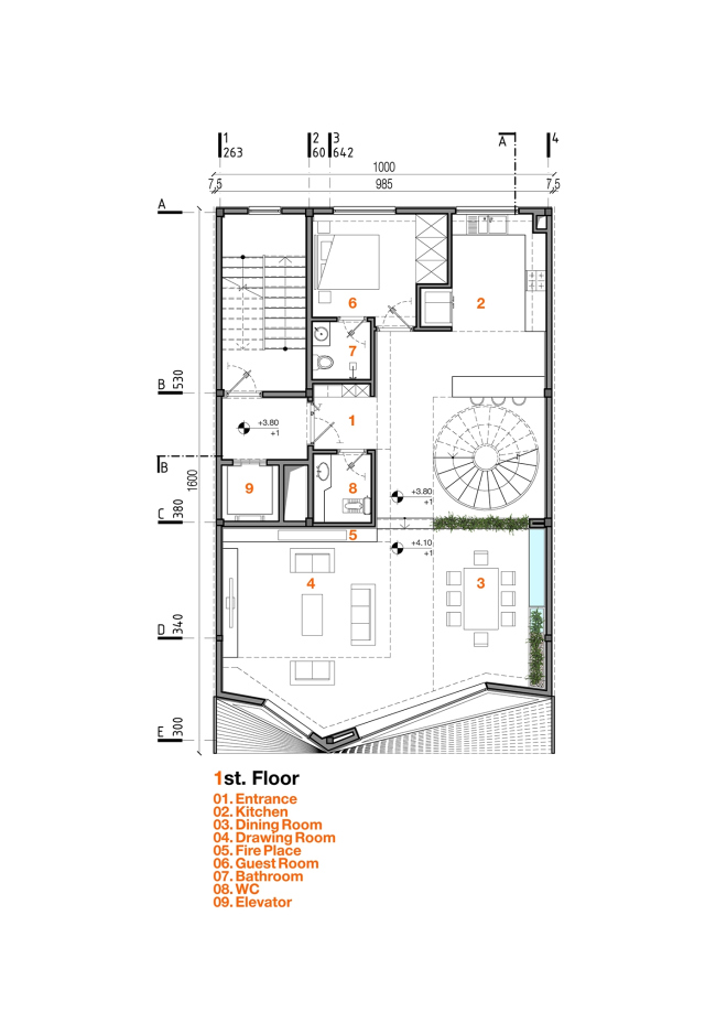
Корве в провинции Курдистан – город с населением около 115 тыс. Заказчица проекта пожелала получить здание площадью 540 м2 из двух квартир: дуплекса и многофункционального пространства для жилья и работы.
 
Дом в Корве. Фото © Reza Najafian
Дом в Корве. Фото © Reza Najafian

В окружающей застройке преобладают обычные дома с «двухмерными» фасадами, и архитекторы ReNa Design во главе с Резой Наджафьяном решили предложить нечто кардинально отличное – несмотря на типовой участок и плотное соседство с другими зданиями.
 
Дом в Корве. Фото © Reza Najafian
Дом в Корве. Фото © Reza Najafian

Полем для эксперимента стал фасад, трактованный как скульптурная форма из дерева и кирпича, долговечных и традиционных для региона материалов. Заданный кирпичной кладкой и рейками ритм контрастирует с динамикой стены в целом.
Дом в Корве. Фото © Reza Najafian
Дом в Корве. Фото © Reza Najafian
Дом в Корве. Фото © M.H. Hamzehlouei
Дом в Корве. Фото © M.H. Hamzehlouei
Дом в Корве. Фото © Reza Najafian
Дом в Корве. Фото © Reza Najafian
Дом в Корве. Фото © Reza Najafian
Дом в Корве. Фото © Reza Najafian
Дом в Корве. Фото © Reza Najafian
Дом в Корве. Фото © Reza Najafian
Дом в Корве. Фото © Reza Najafian
Дом в Корве. Фото © Reza Najafian
Дом в Корве. Фото © M.H. Hamzehlouei
Дом в Корве. Фото © M.H. Hamzehlouei
Дом в Корве. Фото © M.H. Hamzehlouei
Дом в Корве. Фото © M.H. Hamzehlouei
Дом в Корве. Фото © Reza Najafian
Дом в Корве. Фото © Reza Najafian
Дом в Корве. Фото © Reza Najafian
Дом в Корве. Фото © Reza Najafian
Дом в Корве. Фото © Reza Najafian
Дом в Корве. Фото © Reza Najafian
Дом в Корве. Фото © M.H. Hamzehlouei
Дом в Корве. Фото © M.H. Hamzehlouei
Дом в Корве. Фото © Reza Najafian
Дом в Корве. Фото © Reza Najafian
Дом в Корве. Фото © Reza Najafian
Дом в Корве. Фото © Reza Najafian
Дом в Корве. Фото © Reza Najafian
Дом в Корве. Фото © Reza Najafian
Дом в Корве. Фото © Reza Najafian
Дом в Корве. Фото © Reza Najafian
Дом в Корве. Фото © Reza Najafian
Дом в Корве. Фото © Reza Najafian
Дом в Корве. Фото © Reza Najafian
Дом в Корве. Фото © Reza Najafian
Дом в Корве. Фото © Reza Najafian
Дом в Корве. Фото © Reza Najafian
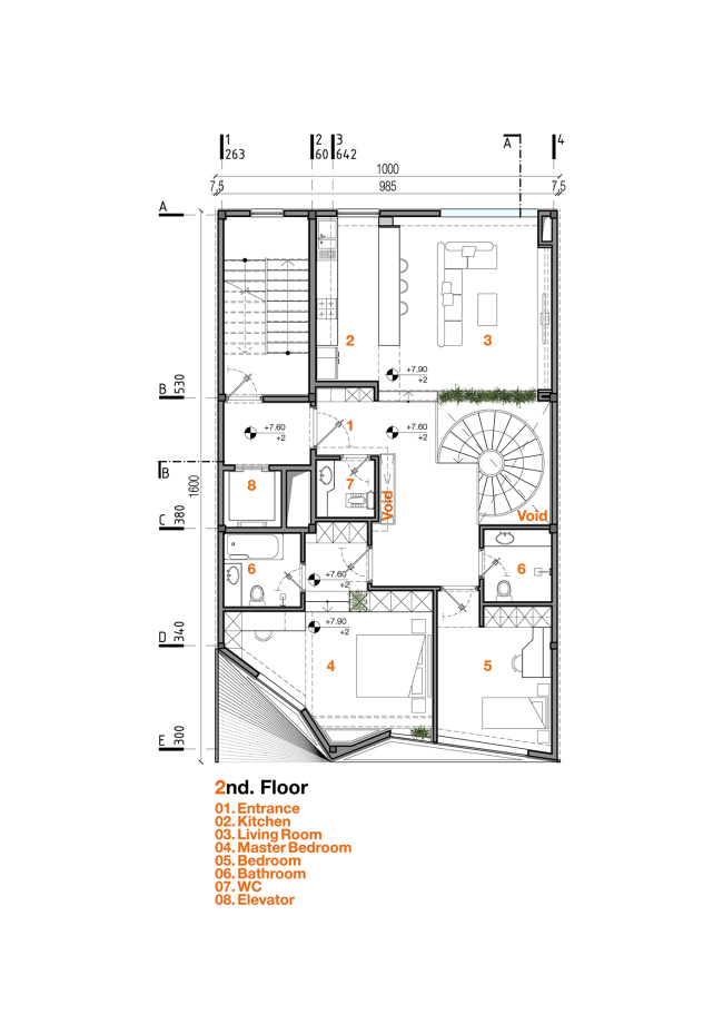
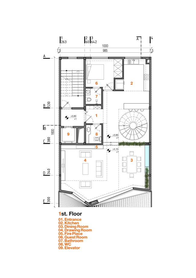
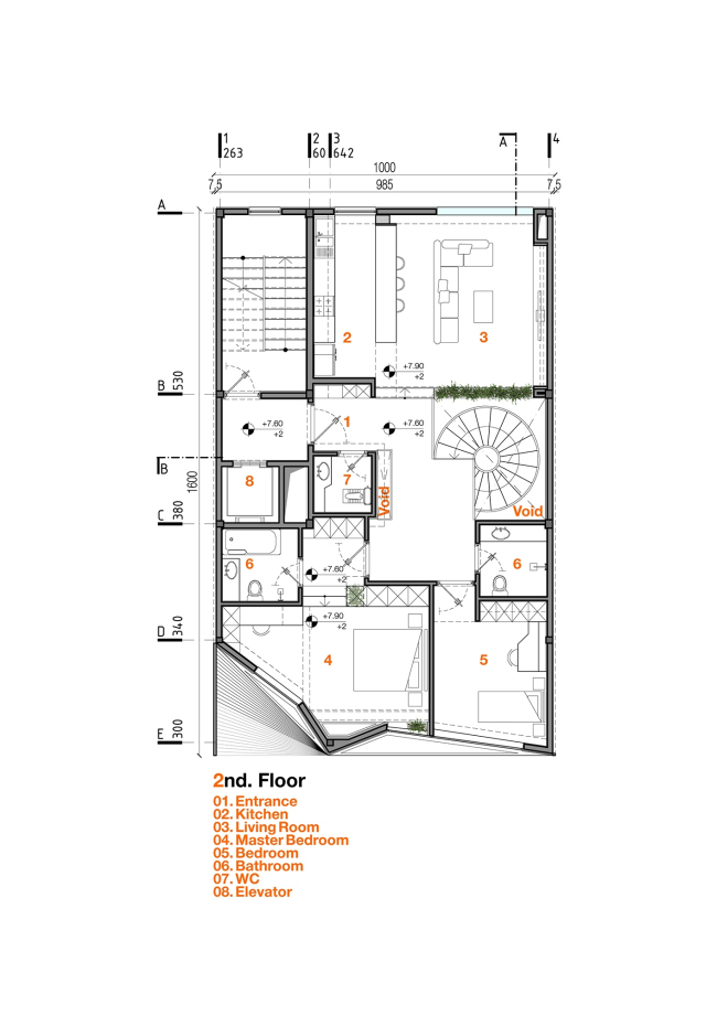
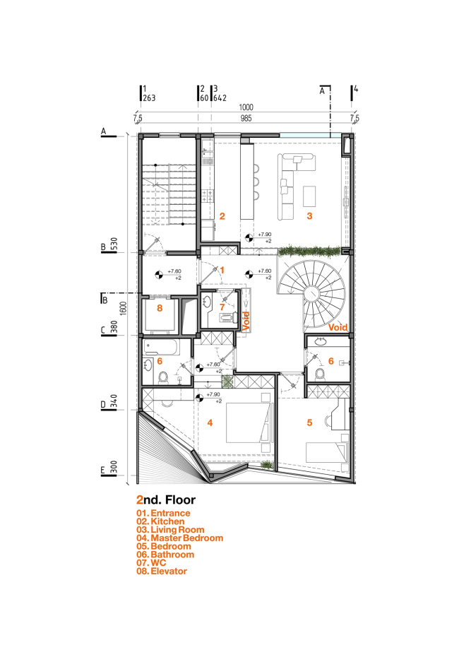
Дом в Корве © ReNa Design
Дом в Корве © ReNa Design
Дом в Корве © ReNa Design
Дом в Корве © ReNa Design
Дом в Корве © ReNa Design
Дом в Корве © ReNa Design
Дом в Корве © ReNa Design
Дом в Корве © ReNa Design
Дом в Корве © ReNa Design
Дом в Корве © ReNa Design
Дом в Корве © ReNa Design
Дом в Корве © ReNa Design
Дом в Корве © ReNa Design
Дом в Корве © ReNa Design
Дом в Корве © ReNa Design
Дом в Корве © ReNa Design
Дом в Корве © ReNa Design
Дом в Корве © ReNa Design
Дом в Корве © ReNa Design
Дом в Корве © ReNa Design
Дом в Корве © ReNa Design
Дом в Корве © ReNa Design