Размещено на портале Архи.ру (www.archi.ru)

05.09.2018

Желтый кирпич вчера и сегодня

Нина Фролова
Объект:
Комплекс на улице Пол-стрит
Адрес:
Великобритания, None, Лондон.
Мастерская:
Stiff + Trevillion

Комплекс из квартир и офисов в лондонском Шордитче по проекту Stiff + Trevillion включил в свой состав церковные стены XIX столетия.

Комплекс на улице Пол-стрит © Andy Stagg
Комплекс на улице Пол-стрит © Andy Stagg

Новое здание расположилось на заметном участке – углу Пол-стрит и Леонард-стрит, в границах охраняемой исторической территории района Шордитч. В годы Второй мировой войны кварталы здесь сильно пострадали от бомбардировок, поэтому от граничащей с постройкой бюро Stiff + Trevillion церкви XIX века осталась лишь часть, однако даже фрагменты ее стен имеют статус памятника.
 
Комплекс на улице Пол-стрит © Andy Stagg
Комплекс на улице Пол-стрит © Andy Stagg

Архитекторы включили в свой проект части этого сооружения: исторические стены из желтого кирпича ограничивают внутренний двор современной постройки, фасады которой – из такого же материала. Это намеренный ход, дань памяти места, как и общее решение пятиэтажного здания, напоминающего композицией и высотой промышленные корпуса Шордитча позапрошлого века.
 
Комплекс на улице Пол-стрит © Andy Stagg
Комплекс на улице Пол-стрит © Andy Stagg

Кроме жилья и офисов, на общей площади 4 028 м2 также разместились – на первом этаже – кафе и магазины. Они обращены на улицу, в то время помещения у заднего, дворового фасада можно использовать как художественную галерею.
 
Комплекс на улице Пол-стрит © Andy Stagg
Комплекс на улице Пол-стрит © Andy Stagg

В память о бомбардировках Второй мировой архитекторы создали «феникса» из металлических панелей, изображающих части разрушенной церкви: этот арт-объект символизирует возрождение Шордитча.
Комплекс на улице Пол-стрит © Andy Stagg
Комплекс на улице Пол-стрит © Andy Stagg
Комплекс на улице Пол-стрит © Andy Stagg
Комплекс на улице Пол-стрит © Andy Stagg
Комплекс на улице Пол-стрит © Andy Stagg
Комплекс на улице Пол-стрит © Andy Stagg
Комплекс на улице Пол-стрит © Andy Stagg
Комплекс на улице Пол-стрит © Andy Stagg
Комплекс на улице Пол-стрит © Andy Stagg
Комплекс на улице Пол-стрит © Andy Stagg
Комплекс на улице Пол-стрит © Andy Stagg
Комплекс на улице Пол-стрит © Andy Stagg
Комплекс на улице Пол-стрит © Andy Stagg
Комплекс на улице Пол-стрит © Andy Stagg
Комплекс на улице Пол-стрит © Andy Stagg
Комплекс на улице Пол-стрит © Andy Stagg
Комплекс на улице Пол-стрит © Andy Stagg
Комплекс на улице Пол-стрит © Andy Stagg
Комплекс на улице Пол-стрит © Andy Stagg
Комплекс на улице Пол-стрит © Andy Stagg
Комплекс на улице Пол-стрит © Andy Stagg
Комплекс на улице Пол-стрит © Andy Stagg
Комплекс на улице Пол-стрит © Andy Stagg
Комплекс на улице Пол-стрит © Andy Stagg
Комплекс на улице Пол-стрит © Andy Stagg
Комплекс на улице Пол-стрит © Andy Stagg
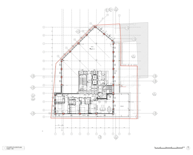
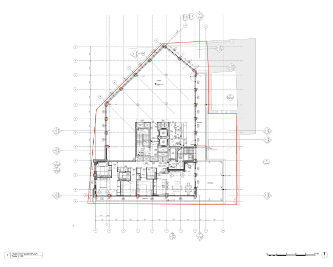
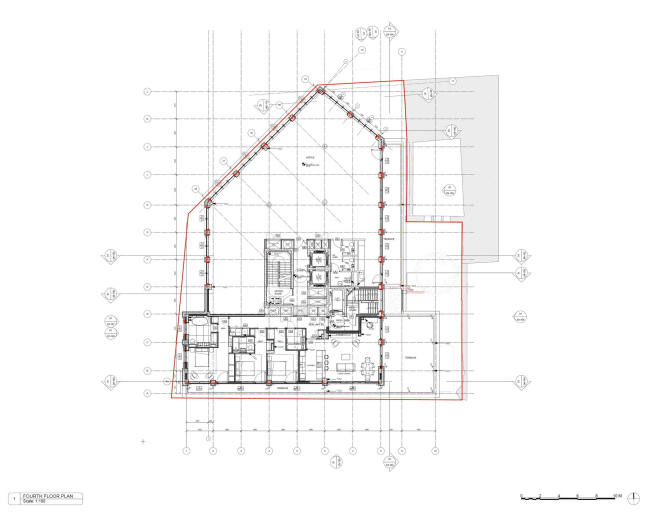
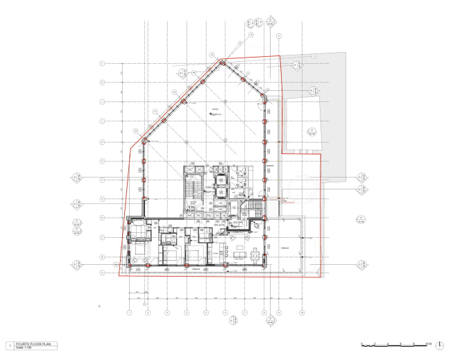
Комплекс на улице Пол-стрит © Stiff + Trevillion
Комплекс на улице Пол-стрит © Stiff + Trevillion
Комплекс на улице Пол-стрит © Stiff + Trevillion
Комплекс на улице Пол-стрит © Stiff + Trevillion
Комплекс на улице Пол-стрит © Stiff + Trevillion
Комплекс на улице Пол-стрит © Stiff + Trevillion
Комплекс на улице Пол-стрит © Stiff + Trevillion
Комплекс на улице Пол-стрит © Stiff + Trevillion