Размещено на портале Архи.ру (www.archi.ru)

04.09.2018

Новый абрис города

Нина Фролова
Объект:
Дворец конгрессов и гостиница в Пальме-де-Мальорке
Адрес:
Испания, None, Пальма-де-Мальорка.

Конгресс-центр с гостиницей в Пальма-де-Майорке по проекту Франсиско Мангадо.

Дворец конгрессов и гостиница в Пальма-де-Майорка © Juan Rodriguez
Дворец конгрессов и гостиница в Пальма-де-Майорка © Juan Rodriguez

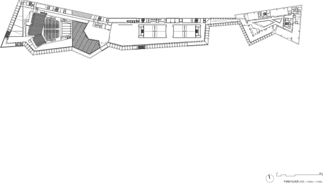
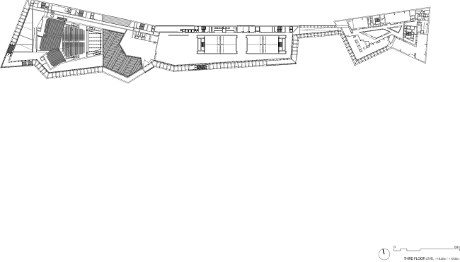
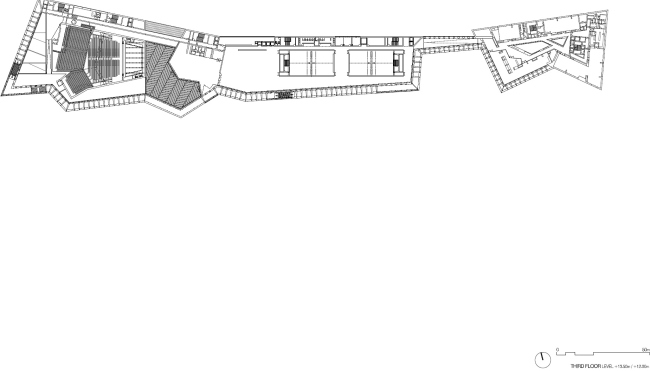
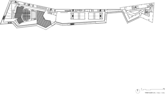
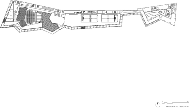
Новый Дворец конгрессов расположился на длинном и узком участке вдоль моря, образуя «морской фасад» города длиной почти 350 метров – скорее, новый образ Пальмы со стороны берега, чем просто здание, пусть и крупное.
 
Дворец конгрессов и гостиница в Пальма-де-Майорка © Juan Rodriguez
Дворец конгрессов и гостиница в Пальма-де-Майорка © Juan Rodriguez

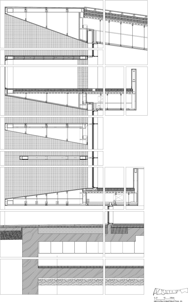
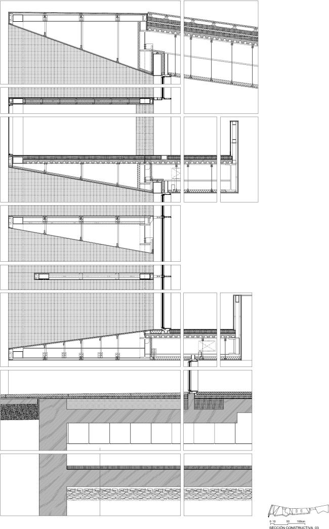
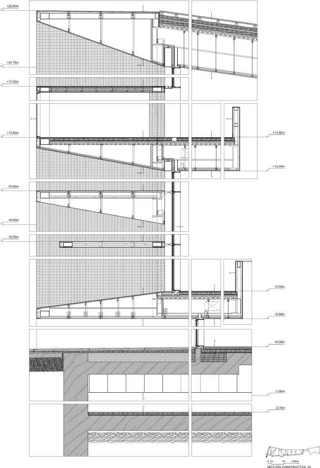
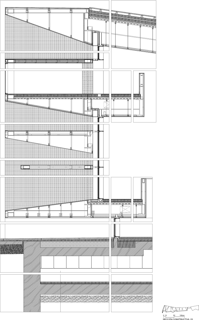
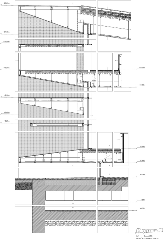
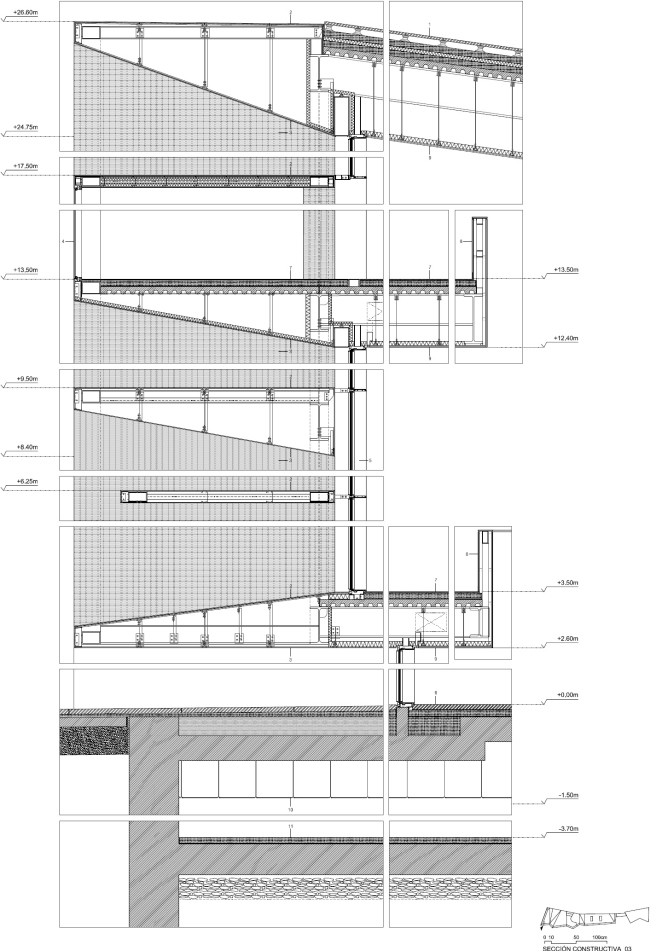
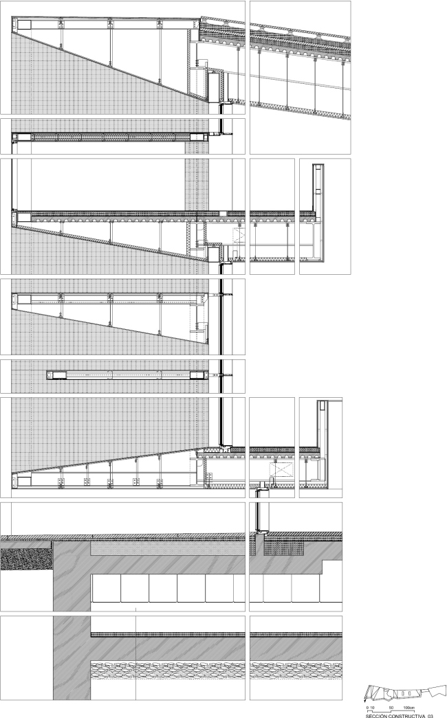
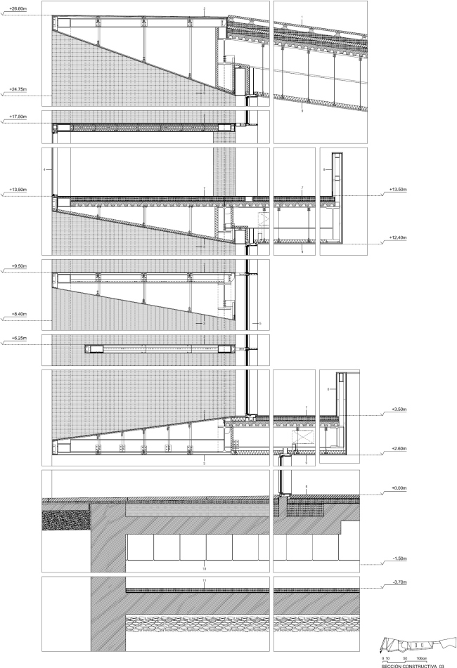
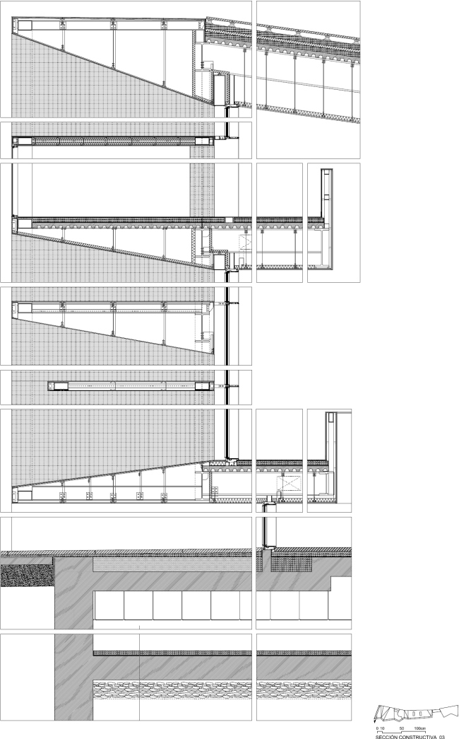
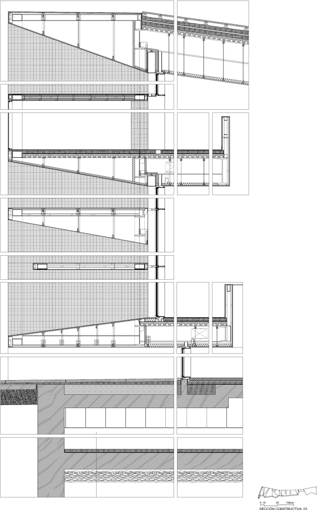
Со стороны воды фасад сделан очень толстым – пятиметровым, причем при его строительстве использовались приемы судостроения. Он защищает интерьер от солнца и содержит в себе лестницы и другие объекты, соединяющие разные помещения и функции. Эти объекты как будто находятся одновременно внутри и снаружи, ведь сквозь остекление видно море. Архитекторы сравнивают этот фасад с городской стеной, одновременно толстой и местами проницаемой.
 
Дворец конгрессов и гостиница в Пальма-де-Майорка © Juan Rodriguez
Дворец конгрессов и гостиница в Пальма-де-Майорка © Juan Rodriguez

По сравнению с морским, южным фасадом, северная стена конгресс-центра выглядит более суровой, закрытой, «частной», так как туда выходят служебные помещения.
 
Дворец конгрессов и гостиница в Пальма-де-Майорка © Juan Rodriguez
Дворец конгрессов и гостиница в Пальма-де-Майорка © Juan Rodriguez

В интерьере конференц- и выставочные залы следуют друг за другом; их «подвешенные» в пространстве объемы соединяют переходы и платформы, откуда можно видеть море. На верхнем этаже, связанном с гостиницей мостиком, помещены малые залы и рестораны, а также большая терраса.
 
Дворец конгрессов и гостиница в Пальма-де-Майорка © Juan Rodriguez
Дворец конгрессов и гостиница в Пальма-де-Майорка © Juan Rodriguez

Бюджет проекта – 96,5 млн евро. Площадь конгресс-центра с парковкой – 37 700 м2, гостиницы – 17 700 м2.
 
Дворец конгрессов и гостиница в Пальма-де-Майорка © Juan Rodriguez
Дворец конгрессов и гостиница в Пальма-де-Майорка © Juan Rodriguez
Дворец конгрессов и гостиница в Пальма-де-Майорка © Juan Rodriguez
Дворец конгрессов и гостиница в Пальма-де-Майорка © Juan Rodriguez
Дворец конгрессов и гостиница в Пальма-де-Майорка © Juan Rodriguez
Дворец конгрессов и гостиница в Пальма-де-Майорка © Juan Rodriguez
Дворец конгрессов и гостиница в Пальма-де-Майорка © Juan Rodriguez
Дворец конгрессов и гостиница в Пальма-де-Майорка © Juan Rodriguez
Дворец конгрессов и гостиница в Пальма-де-Майорка © Juan Rodriguez
Дворец конгрессов и гостиница в Пальма-де-Майорка © Juan Rodriguez
Дворец конгрессов и гостиница в Пальма-де-Майорка © Mangado y Asociados
Дворец конгрессов и гостиница в Пальма-де-Майорка © Mangado y Asociados
Дворец конгрессов и гостиница в Пальма-де-Майорка © Mangado y Asociados
Дворец конгрессов и гостиница в Пальма-де-Майорка © Mangado y Asociados
Дворец конгрессов и гостиница в Пальма-де-Майорка © Mangado y Asociados
Дворец конгрессов и гостиница в Пальма-де-Майорка © Mangado y Asociados
Дворец конгрессов и гостиница в Пальма-де-Майорка © Mangado y Asociados
Дворец конгрессов и гостиница в Пальма-де-Майорка © Mangado y Asociados
Дворец конгрессов и гостиница в Пальма-де-Майорка © Mangado y Asociados
Дворец конгрессов и гостиница в Пальма-де-Майорка © Mangado y Asociados
Дворец конгрессов и гостиница в Пальма-де-Майорка © Mangado y Asociados
Дворец конгрессов и гостиница в Пальма-де-Майорка © Mangado y Asociados
Дворец конгрессов и гостиница в Пальма-де-Майорка © Mangado y Asociados
Дворец конгрессов и гостиница в Пальма-де-Майорка © Mangado y Asociados
Дворец конгрессов и гостиница в Пальма-де-Майорка © Mangado y Asociados
Дворец конгрессов и гостиница в Пальма-де-Майорка © Mangado y Asociados
Дворец конгрессов и гостиница в Пальма-де-Майорка © Mangado y Asociados
Дворец конгрессов и гостиница в Пальма-де-Майорка © Mangado y Asociados
Дворец конгрессов и гостиница в Пальма-де-Майорка © Mangado y Asociados
Дворец конгрессов и гостиница в Пальма-де-Майорка © Mangado y Asociados
Дворец конгрессов и гостиница в Пальма-де-Майорка © Mangado y Asociados
Дворец конгрессов и гостиница в Пальма-де-Майорка © Mangado y Asociados
Дворец конгрессов и гостиница в Пальма-де-Майорка © Mangado y Asociados
Дворец конгрессов и гостиница в Пальма-де-Майорка © Mangado y Asociados
Дворец конгрессов и гостиница в Пальма-де-Майорка © Mangado y Asociados
Дворец конгрессов и гостиница в Пальма-де-Майорка © Mangado y Asociados
Дворец конгрессов и гостиница в Пальма-де-Майорка © Mangado y Asociados
Дворец конгрессов и гостиница в Пальма-де-Майорка © Mangado y Asociados
Дворец конгрессов и гостиница в Пальма-де-Майорка © Mangado y Asociados
Дворец конгрессов и гостиница в Пальма-де-Майорка © Mangado y Asociados
Дворец конгрессов и гостиница в Пальма-де-Майорка © Mangado y Asociados
Дворец конгрессов и гостиница в Пальма-де-Майорка © Mangado y Asociados
Дворец конгрессов и гостиница в Пальма-де-Майорка © Mangado y Asociados
Дворец конгрессов и гостиница в Пальма-де-Майорка © Mangado y Asociados
Дворец конгрессов и гостиница в Пальма-де-Майорка © Mangado y Asociados
Дворец конгрессов и гостиница в Пальма-де-Майорка © Mangado y Asociados
Дворец конгрессов и гостиница в Пальма-де-Майорка © Mangado y Asociados
Дворец конгрессов и гостиница в Пальма-де-Майорка © Mangado y Asociados
Дворец конгрессов и гостиница в Пальма-де-Майорка © Mangado y Asociados
Дворец конгрессов и гостиница в Пальма-де-Майорка © Mangado y Asociados
Дворец конгрессов и гостиница в Пальма-де-Майорка © Mangado y Asociados
Дворец конгрессов и гостиница в Пальма-де-Майорка © Mangado y Asociados
Дворец конгрессов и гостиница в Пальма-де-Майорка © Mangado y Asociados
Дворец конгрессов и гостиница в Пальма-де-Майорка © Mangado y Asociados