Размещено на портале Архи.ру (www.archi.ru)

03.09.2018

Ткачество и хай-тек

Нина Фролова
Объект:
Комплекс Kolon One & Only Tower
Адрес:
Южная Корея, None, Сеул.
Мастерская:
Morphosis

Корпус лабораторий и офисов производителя текстиля и полимеров, компании Kolon, в Сеуле по проекту бюро Morphosis.

Комплекс Kolon One & Only Tower. Фото © Jasmine Park, предоставлено Morphosis Architects
Комплекс Kolon One & Only Tower. Фото © Jasmine Park, предоставлено Morphosis Architects

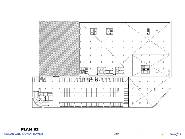
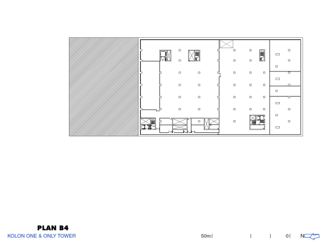
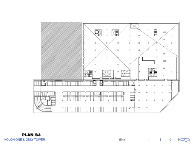
По желанию заказчика в постройке бюро Тома Мейна Morphosis 15% из его площади в 76,3 тыс. м2 отдано общественным пространствам для активного общения и взаимодействия сотрудников; 55% – это лаборатории, остальное – офисы.
 
Комплекс Kolon One & Only Tower. Фото © Jasmine Park, предоставлено Morphosis Architects
Комплекс Kolon One & Only Tower. Фото © Jasmine Park, предоставлено Morphosis Architects

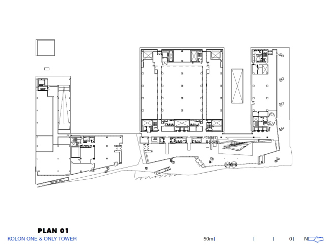
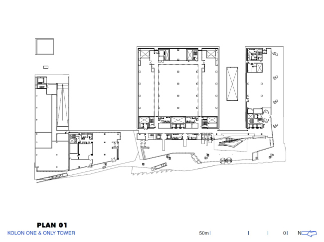
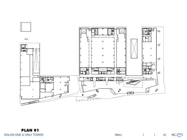
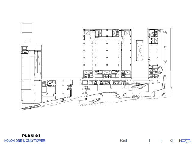
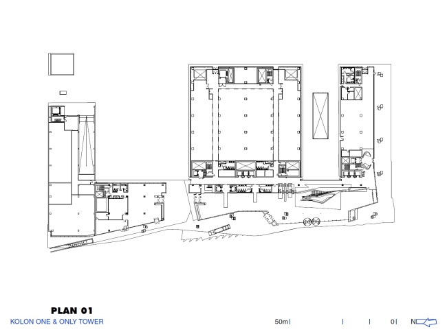
Здание вмещает отделы R&D – исследований и разработки новой продукции. Оно появилось в районе Магок, который в будущем должен стать центром технологий и легкой промышленности: его власти Сеула видят как своего рода «индустриальную экосистему». Участок компании Kolon площадью два гектара расположен удачно: он примыкает к центральному парку Магока. В сторону этой зеленой зоны постройка как будто «складывается», затеняя верхней частью нижние этажи. Этот сложный объем связывает три крыла лабораторий; в нем самом расположены конференц-залы и общественные пространства. На нижнем этаже помещены обращенные на улицу фирменные магазины одежды и выставочные помещения.
 
Комплекс Kolon One & Only Tower. Фото © Jasmine Park, предоставлено Morphosis Architects
Комплекс Kolon One & Only Tower. Фото © Jasmine Park, предоставлено Morphosis Architects

Важную роль в интерьере играет атриум высотой 40 м и длиной 100 м с естественным освещением. Также его стены оформлены более чем 400 восьмиметровых панелей, демонстрирующих разные виды производимых Kolon тканей. Особая часть пространства – Большая лестница, вдохновленная Испанской лестницей в Риме.
 
Комплекс Kolon One & Only Tower. Фото © Jasmine Park, предоставлено Morphosis Architects
Комплекс Kolon One & Only Tower. Фото © Jasmine Park, предоставлено Morphosis Architects

Среди «зеленых» компонентов проекта – главный, западный фасад постройки. Его как будто тканая поверхность напоминает о текстильной специализации компании-заказчика. Его параметрические модули учитывают необходимость и защиты от солнца, и сохранения видов из интерьера наружу. Они выполнены из армированного волокном полимера, для изготовления которого применили производимую Kolon высокотехнологичную ткань Aramid. Также в здании использованы естественное освещение и вентиляция, зеленые кровли и солнечные батареи, переработанные материалы, геотермальная система. При строительстве удалось сэкономить 30% бетона благодаря применению облегченных плит типа bubble deck.
Комплекс Kolon One & Only Tower. Фото © Jasmine Park, предоставлено Morphosis Architects
Комплекс Kolon One & Only Tower. Фото © Jasmine Park, предоставлено Morphosis Architects
Комплекс Kolon One & Only Tower. Фото © Roland Halbe, предоставлено Morphosis Architects
Комплекс Kolon One & Only Tower. Фото © Roland Halbe, предоставлено Morphosis Architects
Комплекс Kolon One & Only Tower. Фото © Jasmine Park, предоставлено Morphosis Architects
Комплекс Kolon One & Only Tower. Фото © Jasmine Park, предоставлено Morphosis Architects
Комплекс Kolon One & Only Tower. Фото © Jasmine Park, предоставлено Morphosis Architects
Комплекс Kolon One & Only Tower. Фото © Jasmine Park, предоставлено Morphosis Architects
Комплекс Kolon One & Only Tower. Фото © Roland Halbe, предоставлено Morphosis Architects
Комплекс Kolon One & Only Tower. Фото © Roland Halbe, предоставлено Morphosis Architects
Комплекс Kolon One & Only Tower. Фото © Jasmine Park, предоставлено Morphosis Architects
Комплекс Kolon One & Only Tower. Фото © Jasmine Park, предоставлено Morphosis Architects
Комплекс Kolon One & Only Tower. Фото © Roland Halbe, предоставлено Morphosis Architects
Комплекс Kolon One & Only Tower. Фото © Roland Halbe, предоставлено Morphosis Architects
Комплекс Kolon One & Only Tower. Фото © Jasmine Park, предоставлено Morphosis Architects
Комплекс Kolon One & Only Tower. Фото © Jasmine Park, предоставлено Morphosis Architects
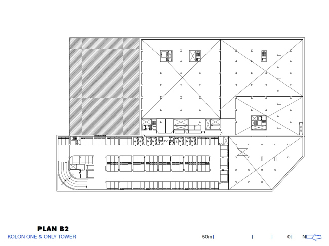
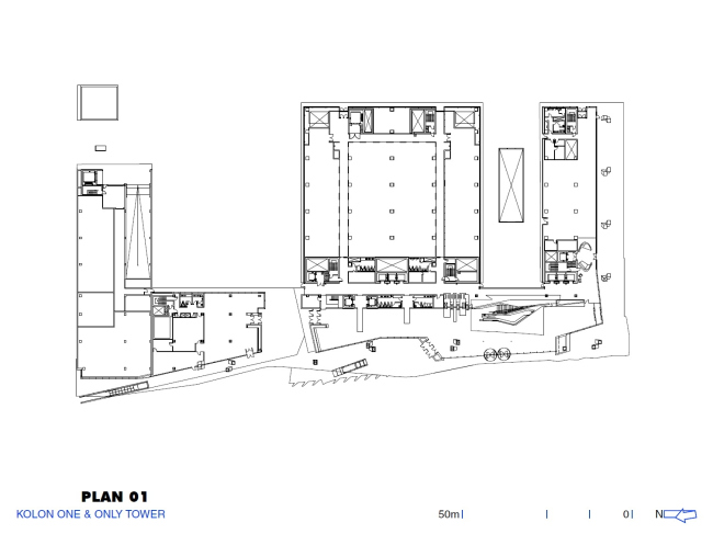
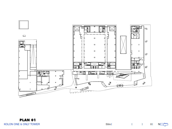
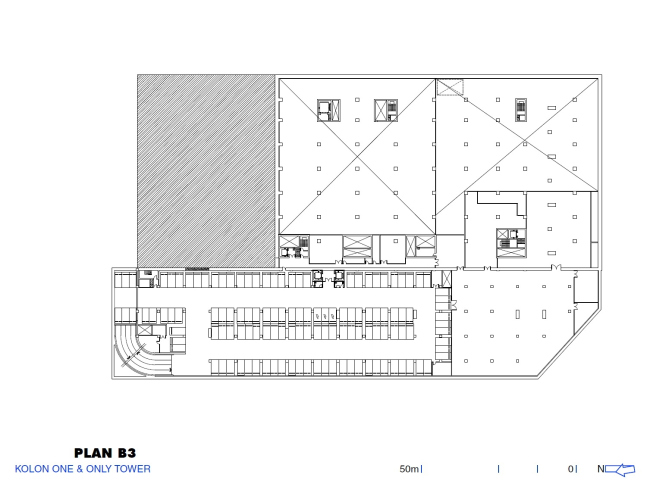
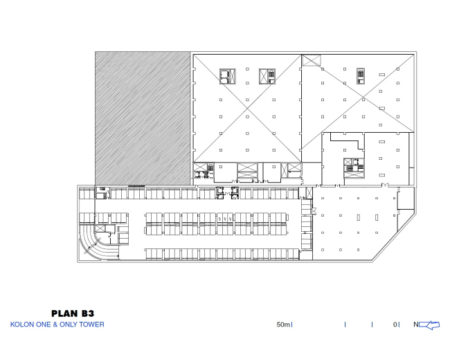
Комплекс Kolon One & Only Tower. Изображение предоставлено Morphosis Architects
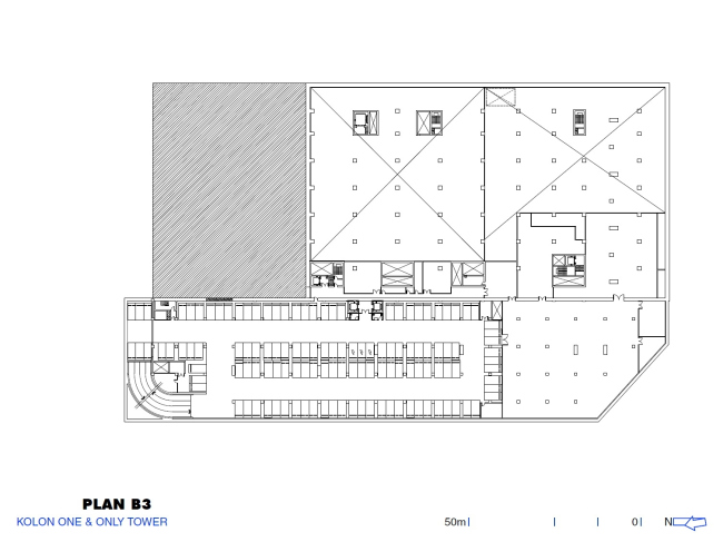
Комплекс Kolon One & Only Tower. Изображение предоставлено Morphosis Architects
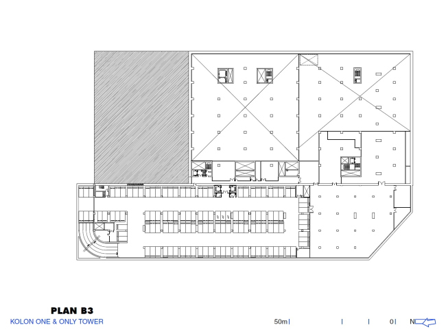
Комплекс Kolon One & Only Tower. Изображение предоставлено Morphosis Architects
Комплекс Kolon One & Only Tower. Изображение предоставлено Morphosis Architects
Комплекс Kolon One & Only Tower. Изображение предоставлено Morphosis Architects
Комплекс Kolon One & Only Tower. Изображение предоставлено Morphosis Architects
Комплекс Kolon One & Only Tower. Изображение предоставлено Morphosis Architects
Комплекс Kolon One & Only Tower. Изображение предоставлено Morphosis Architects
Комплекс Kolon One & Only Tower. Изображение предоставлено Morphosis Architects
Комплекс Kolon One & Only Tower. Изображение предоставлено Morphosis Architects
Комплекс Kolon One & Only Tower. Изображение предоставлено Morphosis Architects
Комплекс Kolon One & Only Tower. Изображение предоставлено Morphosis Architects
Комплекс Kolon One & Only Tower. Изображение предоставлено Morphosis Architects
Комплекс Kolon One & Only Tower. Изображение предоставлено Morphosis Architects
Комплекс Kolon One & Only Tower. Изображение предоставлено Morphosis Architects
Комплекс Kolon One & Only Tower. Изображение предоставлено Morphosis Architects
Комплекс Kolon One & Only Tower. Изображение предоставлено Morphosis Architects
Комплекс Kolon One & Only Tower. Изображение предоставлено Morphosis Architects
Комплекс Kolon One & Only Tower. Изображение предоставлено Morphosis Architects
Комплекс Kolon One & Only Tower. Изображение предоставлено Morphosis Architects
Комплекс Kolon One & Only Tower. Изображение предоставлено Morphosis Architects
Комплекс Kolon One & Only Tower. Изображение предоставлено Morphosis Architects
Комплекс Kolon One & Only Tower. Изображение предоставлено Morphosis Architects
Комплекс Kolon One & Only Tower. Изображение предоставлено Morphosis Architects
Комплекс Kolon One & Only Tower. Изображение предоставлено Morphosis Architects
Комплекс Kolon One & Only Tower. Изображение предоставлено Morphosis Architects
Комплекс Kolon One & Only Tower. Изображение предоставлено Morphosis Architects
Комплекс Kolon One & Only Tower. Изображение предоставлено Morphosis Architects
Комплекс Kolon One & Only Tower. Изображение предоставлено Morphosis Architects
Комплекс Kolon One & Only Tower. Изображение предоставлено Morphosis Architects
Комплекс Kolon One & Only Tower. Изображение предоставлено Morphosis Architects
Комплекс Kolon One & Only Tower. Изображение предоставлено Morphosis Architects
Комплекс Kolon One & Only Tower. Изображение предоставлено Morphosis Architects
Комплекс Kolon One & Only Tower. Изображение предоставлено Morphosis Architects
Комплекс Kolon One & Only Tower. Изображение предоставлено Morphosis Architects
Комплекс Kolon One & Only Tower. Изображение предоставлено Morphosis Architects
Комплекс Kolon One & Only Tower. Изображение предоставлено Morphosis Architects
Комплекс Kolon One & Only Tower. Изображение предоставлено Morphosis Architects