Размещено на портале Архи.ру (www.archi.ru)

30.08.2018

От Колхаса до Колльхоффа

Нина Фролова
Объект:
Комплекс Zuidblok
Адрес:
Нидерланды, None, Амстердам.

Коммерческий комплекс Zuidblok в Амстердаме по проекту Ханса Колльхоффа и Александра Полса получил мощный консольный вынос в соответствии с концепцией OMA для этого участка.

Комплекс Zuidblok. Фото © Luuk Kramer
Комплекс Zuidblok. Фото © Luuk Kramer

Комплекс Zuidblok находится в насыщенной исторической среде: рядом – Олимпийский стадион (1927) для Игр 1928 года и многоярусный гараж Citroën (1931), построенные архитектором Яном Вилсом. Огромная открытая парковка для болельщиков уже давно не нужна, и ее постепенно застраивают, однако участок, где появился Zuidblok, стал предметом конфликта между муниципалитетом и местными жителями. По мнению горожан, постройка в этом месте закрывала бы важные перспективные виды. Выходом стало предложенное бюро Рема Колхаса объемное решение с двухэтажным консольным выносом в 16 метрах над уровнем земли.
 
Комплекс Zuidblok. Фото © MWA Hart Nibbrig
Комплекс Zuidblok. Фото © MWA Hart Nibbrig

Именно в таких формах и габаритах должны были работать Kollhoff & Pols Architecten – несмотря на свою приверженность традиционализму и свойственным ему солидности и отсутствию динамичных жестов. Чтобы согласовать свой подход с идеей OMA, архитекторы использовали «фальшивые» контрфорсы, также подчеркивающие ритм опоясывающей здание аркады окон.
 
Комплекс Zuidblok. Фото © MWA Hart Nibbrig
Комплекс Zuidblok. Фото © MWA Hart Nibbrig

На двух нижних этажах расположен Het Amsterdamse Proeflokaal – гастрономический центр, объединяющий кафе-ресторан, винный бар, кулинарную школу, конференц-центр, пространства для проведения различных мероприятий. Лестница между рестораном и учебной кухней идет по всей длине пандуса подземной парковки и задумана как удобная зона отдыха и общения. На двух верхних ярусах находится апарт-отель Twenty Eight на 60 номеров, скомпонованных вокруг внутреннего двора, где высажены овощи и травы. Наряду с гаражом, под землю помещен супермаркет. Общая площадь постройки – 12 500 м2.
 
Комплекс Zuidblok. Фото © MWA Hart Nibbrig
Комплекс Zuidblok. Фото © MWA Hart Nibbrig

В рамках проекта были восстановлены два кассовых киоска для парковки стадиона, изначально спроектированных Вилсом: теперь в них продают кофе и мороженое.
Комплекс Zuidblok. Фото © Luuk Kramer
Комплекс Zuidblok. Фото © Luuk Kramer
Комплекс Zuidblok. Фото © Luuk Kramer
Комплекс Zuidblok. Фото © Luuk Kramer
Комплекс Zuidblok. Фото © MWA Hart Nibbrig
Комплекс Zuidblok. Фото © MWA Hart Nibbrig
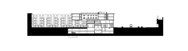
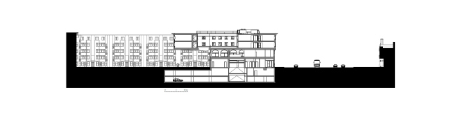
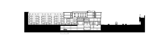
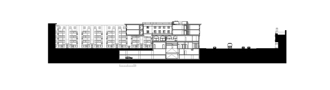
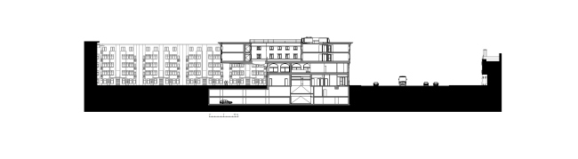
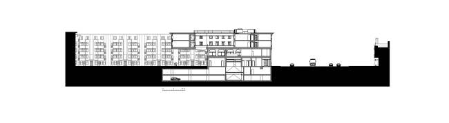
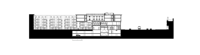
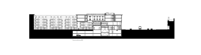
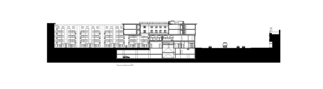
Комплекс Zuidblok © Kollhoff & Pols architecten
Комплекс Zuidblok © Kollhoff & Pols architecten
Комплекс Zuidblok © Kollhoff & Pols architecten
Комплекс Zuidblok © Kollhoff & Pols architecten
Комплекс Zuidblok © Kollhoff & Pols architecten
Комплекс Zuidblok © Kollhoff & Pols architecten
Комплекс Zuidblok © Kollhoff & Pols architecten
Комплекс Zuidblok © Kollhoff & Pols architecten
Комплекс Zuidblok © Kollhoff & Pols architecten
Комплекс Zuidblok © Kollhoff & Pols architecten
Комплекс Zuidblok © Kollhoff & Pols architecten
Комплекс Zuidblok © Kollhoff & Pols architecten
Комплекс Zuidblok © Kollhoff & Pols architecten
Комплекс Zuidblok © Kollhoff & Pols architecten
Комплекс Zuidblok © Hans Kollhoff
Комплекс Zuidblok © Hans Kollhoff