Размещено на портале Архи.ру (www.archi.ru)

29.08.2018

Центр тяжести – наверху

Нина Фролова
Объект:
Башни Zhengzhou Greenland Central Plaza
Адрес:
Китай, None, Чжэнчжоу.
Мастерская:
gmp

У парных небоскребов Greenland Towers в Чжэнчжоу по проекту бюро gmp ключевая общественная программа расположена наверху.

Башни Zhengzhou Greenland Central Plaza © Zeng Jianghe
Башни Zhengzhou Greenland Central Plaza © Zeng Jianghe

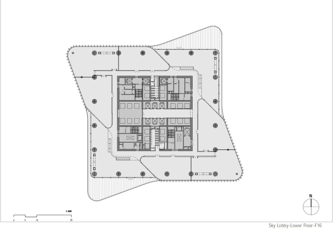
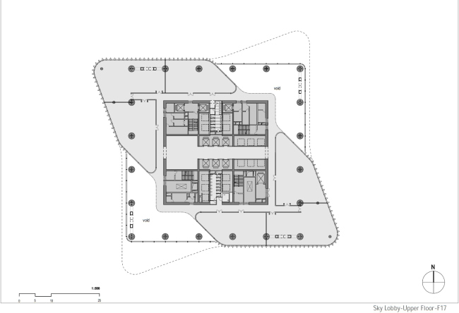
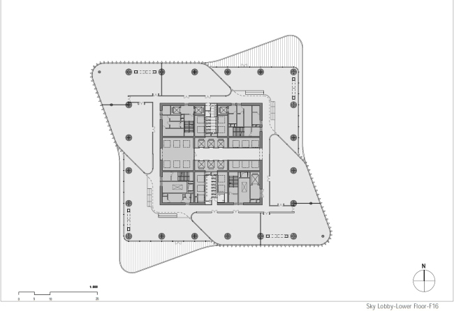
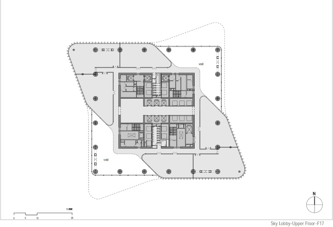
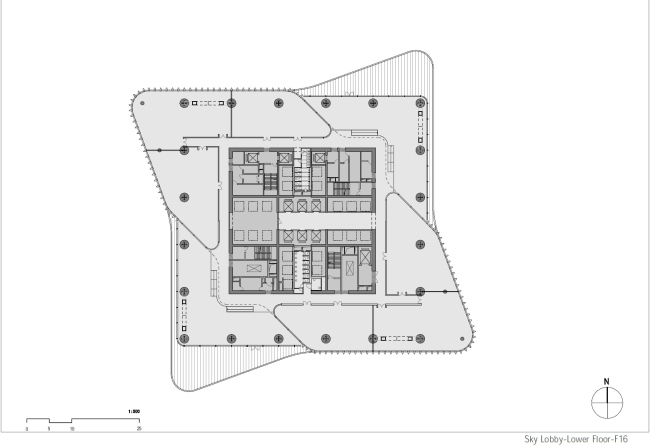
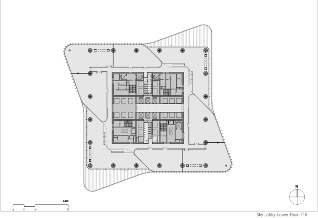
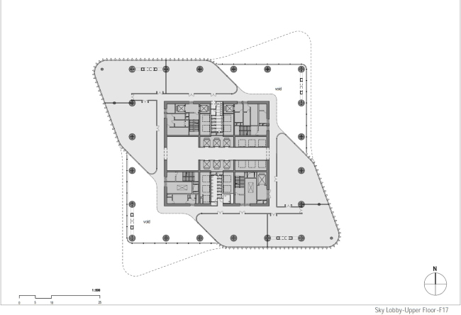
Северная и южная башни комплекса Zhengzhou Greenland Central Plaza при своей высоте в 284 м (63 этажа) стали самыми высокими зданиями в городе. Они построены на градостроительной оси, ведущей от нового вокзала на запад, к центру Чжэнчжоу, и играют роль своего рода ворот. Их облик определяют расположенные на каждом восьмом этаже «небесные вестибюли», которые арендаторы прилегающих офисов могут использовать по своему усмотрению, однако это в первую очередь – возможность для сотрудников любоваться панорамой города, в том числе и с открытой террасы – вплоть до высоты в 240 м.
 
Башни Zhengzhou Greenland Central Plaza © Zeng Jianghe
Башни Zhengzhou Greenland Central Plaza © Zeng Jianghe

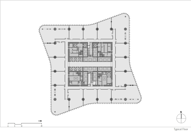
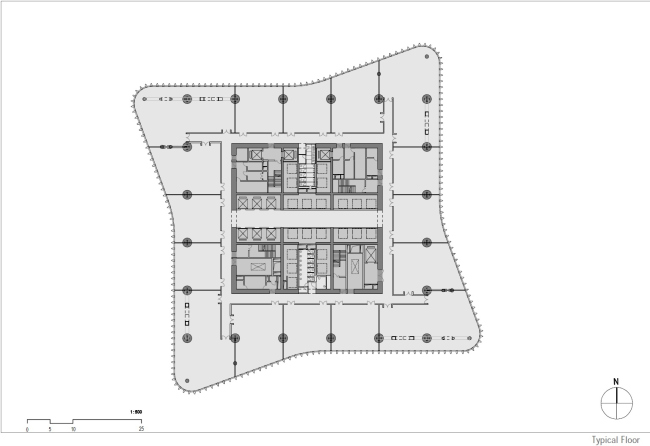
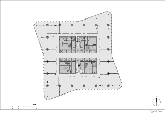
У подножия небоскребов помещено по L-образному стилобату с коммерческими функциями, однако он полностью отделен от основания «своей» башни, что облегчило устройство удобных входов для сотрудников, ведь ежедневно через вестибюль первого этажа в каждом случае проходит 12 000 человек. Общая площадь у башен одинаковая – 232 тыс. м2, стандартный офисный этаж – 4000 м2, его можно разделить максимум на пятнадцать частей.
 
Башни Zhengzhou Greenland Central Plaza © ZMG China
Башни Zhengzhou Greenland Central Plaza © ZMG China

У обеих башен в верхней части устроены восьмиэтажные «небесные атриумы», вокруг которых на трех этажах помещены рестораны, магазины и спа-центр с бассейном. На самом верху северного небоскреба находятся «эксклюзивные» офисные площади, южного – квартиры и клубные помещения.
Башни Zhengzhou Greenland Central Plaza © Zeng Jianghe
Башни Zhengzhou Greenland Central Plaza © Zeng Jianghe
Башни Zhengzhou Greenland Central Plaza © Zeng Jianghe
Башни Zhengzhou Greenland Central Plaza © Zeng Jianghe
Башни Zhengzhou Greenland Central Plaza © Zeng Jianghe
Башни Zhengzhou Greenland Central Plaza © Zeng Jianghe
Башни Zhengzhou Greenland Central Plaza © Zeng Jianghe
Башни Zhengzhou Greenland Central Plaza © Zeng Jianghe
Башни Zhengzhou Greenland Central Plaza © Zeng Jianghe
Башни Zhengzhou Greenland Central Plaza © Zeng Jianghe
Башни Zhengzhou Greenland Central Plaza © Zeng Jianghe
Башни Zhengzhou Greenland Central Plaza © Zeng Jianghe
Башни Zhengzhou Greenland Central Plaza © gmp Architects
Башни Zhengzhou Greenland Central Plaza © gmp Architects
Башни Zhengzhou Greenland Central Plaza © gmp Architects
Башни Zhengzhou Greenland Central Plaza © gmp Architects
Башни Zhengzhou Greenland Central Plaza © gmp Architects
Башни Zhengzhou Greenland Central Plaza © gmp Architects
Башни Zhengzhou Greenland Central Plaza © gmp Architects
Башни Zhengzhou Greenland Central Plaza © gmp Architects
Башни Zhengzhou Greenland Central Plaza © gmp Architects
Башни Zhengzhou Greenland Central Plaza © gmp Architects
Башни Zhengzhou Greenland Central Plaza © gmp Architects
Башни Zhengzhou Greenland Central Plaza © gmp Architects