Размещено на портале Архи.ру (www.archi.ru)

28.08.2018

Подземелье для «Стеклянного дворца»

Нина Фролова
Объект:
Музей Amos Rex
Адрес:
Финляндия, None, Хельсинки.
Мастерская:
JKMM

Памятник финского функционализма Ласипалатси стал частью нового музея Amos Rex по проекту бюро JKMM в центре Хельсинки.

Музей Amos Rex © Tuomas Uusheimo
Музей Amos Rex © Tuomas Uusheimo

Ласипалатси, «Стеклянный дворец» – это павильон с ресторанами, магазинами и кинотеатром Bio Rex, построенный молодыми архитекторами Вильо Ревеллом, Ниило Кокко и Хейно Риихимяки в 1936 как временное сооружение для гостей Олимпиады-­1940 в центре Хельсинки (из-за войны Игры провели лишь в 1952). Несмотря на ограниченный срок службы, он был построен очень качественно и дошел до наших дней в достойном состоянии, хотя и пережил период запустения в 1980-е. Неподалеку располагался художественный музей, открывшийся в 1965 согласно завещанию коммерсанта и коллекционера Амоса Андерсона в бывшем его офисном здании, где также находилась и его квартира. В начале 2010-х отвечавшая за музей ассоциация Konstsamfundet решила объединить эти два объекта, выделив на свой план 50 млн евро, и нашла поддержку у руководства города.
 
Музей Amos Rex © Tuomas Uusheimo
Музей Amos Rex © Tuomas Uusheimo

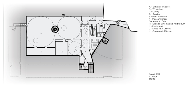
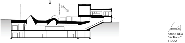
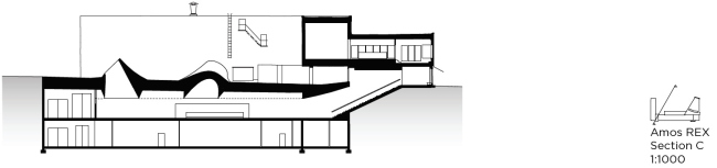
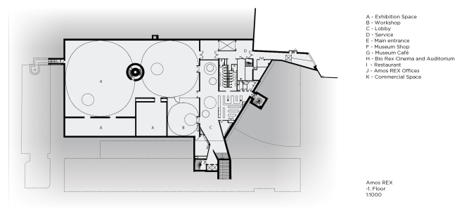
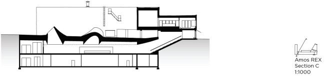
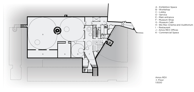
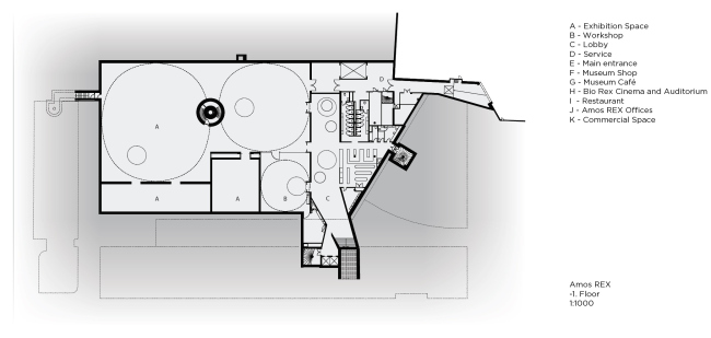
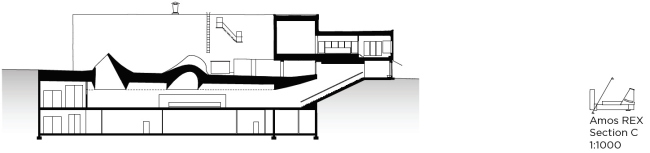
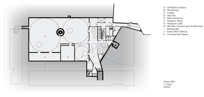
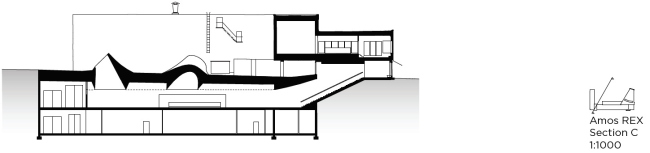
Разработанный архитекторами JKMM проект предполагал сохранение памятника – Ласипалатси, включая высокую трубу рядом, его тщательную реставрацию и консервацию, а также создание под прилегающей площадью нового выставочного пространства. Площадь нельзя было застраивать, так как это бывший плац казарм XIX века, также ценного объекта наследия. Поэтому залы общей площадью 2200 м2 расположились под землей, а наверху об их существовании можно судить лишь по кратерам-оконным проемам, обеспечивающим «подземелье» солнечным светом.
 
Музей Amos Rex © Mika Huisman / Amos Rex
Музей Amos Rex © Mika Huisman / Amos Rex

В залы можно попасть через Ласипалатси: в ходе реставрации была точно восстановлена окраска стен и росписи, выполненные декоратором Эйно Кауриа, также работавшим, помимо прочего, над цветовой гаммой санатория в Паймио Алвара Аалто. Многое вернулось к первоначальному состоянию, но и следы истории, включая созданные в ходе реставрации 1999 года реплики утерянных деталей, также были сохранены как представляющие ценность.
 
Музей Amos Rex © Tuomas Uusheimo
Музей Amos Rex © Tuomas Uusheimo

В кинотеатре Bio Rex на 550 мест, давшем половину названия музею, обосновалась художественная организация Korjaamo. Она будет показывать там как артхаусные, так и «обычные» фильмы, а также проводить фестивали. Особого упоминания заслуживают отреставрированные неоновые вывески кинотеатра, первые подобные в Финляндии.
 
Музей Amos Rex © Tuomas Uusheimo
Музей Amos Rex © Tuomas Uusheimo

В бывшем художественном музее Амоса Андерсена сейчас идет реконструкция, после которой там создадут экспозицию, посвященную жизни этого общественного деятеля.
Музей Amos Rex © Tuomas Uusheimo
Музей Amos Rex © Tuomas Uusheimo
Музей Amos Rex © Tuomas Uusheimo
Музей Amos Rex © Tuomas Uusheimo
Музей Amos Rex © Tuomas Uusheimo
Музей Amos Rex © Tuomas Uusheimo
Музей Amos Rex © Tuomas Uusheimo
Музей Amos Rex © Tuomas Uusheimo
Музей Amos Rex © Tuomas Uusheimo
Музей Amos Rex © Tuomas Uusheimo
Музей Amos Rex © Tuomas Uusheimo
Музей Amos Rex © Tuomas Uusheimo
Музей Amos Rex © Tuomas Uusheimo
Музей Amos Rex © Tuomas Uusheimo
Музей Amos Rex © Tuomas Uusheimo
Музей Amos Rex © Tuomas Uusheimo
Музей Amos Rex © Tuomas Uusheimo
Музей Amos Rex © Tuomas Uusheimo
Музей Amos Rex © Tuomas Uusheimo
Музей Amos Rex © Tuomas Uusheimo
Музей Amos Rex © Tuomas Uusheimo
Музей Amos Rex © Tuomas Uusheimo
Музей Amos Rex © Tuomas Uusheimo
Музей Amos Rex © Tuomas Uusheimo
Музей Amos Rex © Tuomas Uusheimo
Музей Amos Rex © Tuomas Uusheimo
Музей Amos Rex © Tuomas Uusheimo
Музей Amos Rex © Tuomas Uusheimo
Музей Amos Rex © Tuomas Uusheimo
Музей Amos Rex © Tuomas Uusheimo
Музей Amos Rex © Tuomas Uusheimo
Музей Amos Rex © Tuomas Uusheimo
Музей Amos Rex © Tuomas Uusheimo
Музей Amos Rex © Tuomas Uusheimo
Музей Amos Rex © Tuomas Uusheimo
Музей Amos Rex © Tuomas Uusheimo
Музей Amos Rex © Tuomas Uusheimo
Музей Amos Rex © Tuomas Uusheimo
Музей Amos Rex © Tuomas Uusheimo
Музей Amos Rex © Tuomas Uusheimo
Музей Amos Rex © JKMM
Музей Amos Rex © JKMM
Музей Amos Rex. Историческая фотография Ласипалатси © JKMM
Музей Amos Rex. Историческая фотография Ласипалатси © JKMM
Музей Amos Rex. Историческая фотография Ласипалатси © JKMM
Музей Amos Rex. Историческая фотография Ласипалатси © JKMM
Музей Amos Rex © JKMM
Музей Amos Rex © JKMM
Музей Amos Rex © JKMM
Музей Amos Rex © JKMM
Музей Amos Rex © JKMM
Музей Amos Rex © JKMM
Музей Amos Rex © JKMM
Музей Amos Rex © JKMM
Музей Amos Rex. Схема до реконструкции © JKMM
Музей Amos Rex. Схема до реконструкции © JKMM
Музей Amos Rex © JKMM
Музей Amos Rex © JKMM
Музей Amos Rex © JKMM
Музей Amos Rex © JKMM
Музей Amos Rex © JKMM
Музей Amos Rex © JKMM
Музей Amos Rex © JKMM
Музей Amos Rex © JKMM
Музей Amos Rex © JKMM
Музей Amos Rex © JKMM
Музей Amos Rex © JKMM
Музей Amos Rex © JKMM
Музей Amos Rex © JKMM
Музей Amos Rex © JKMM
Музей Amos Rex © JKMM
Музей Amos Rex © JKMM
Музей Amos Rex © JKMM
Музей Amos Rex © JKMM
Музей Amos Rex © JKMM
Музей Amos Rex © JKMM
Музей Amos Rex © JKMM
Музей Amos Rex © JKMM
Музей Amos Rex © JKMM
Музей Amos Rex © JKMM
Музей Amos Rex © JKMM
Музей Amos Rex © JKMM
Музей Amos Rex © JKMM
Музей Amos Rex © JKMM
Музей Amos Rex в ходе строительства © Tuomas Uusheimo
Музей Amos Rex в ходе строительства © Tuomas Uusheimo
Музей Amos Rex в ходе строительства © Tuomas Uusheimo
Музей Amos Rex в ходе строительства © Tuomas Uusheimo
Музей Amos Rex в ходе строительства © Tuomas Uusheimo
Музей Amos Rex в ходе строительства © Tuomas Uusheimo
Музей Amos Rex в ходе строительства © Tuomas Uusheimo
Музей Amos Rex в ходе строительства © Tuomas Uusheimo
Музей Amos Rex в ходе строительства © Tuomas Uusheimo
Музей Amos Rex в ходе строительства © Tuomas Uusheimo