Размещено на портале Архи.ру (www.archi.ru)

29.08.2018

МАРШ: Переосмысление материальности

Металл, кирпич, земля: работы студии Rethinking materiality Евгения Асса и Игоря Чиркина, 2017/2018 учебный год.

Переосмысление металла. Автор работы: Александр Белозерцев. Преподаватели: Евгений Асс, Игорь Чиркин © МАРШ
Переосмысление металла. Автор работы: Александр Белозерцев. Преподаватели: Евгений Асс, Игорь Чиркин © МАРШ

Евгений Асс, Игорь Чиркин, 
руководители студии: 

«В магистратуре МАРШ традиционно существует студия, посвященная переосмыслению фундаментальных тем архитектуры: в этом году студенты исследовали роль и значение материала в архитектуре и, шире, субстанциальность архитектуры вообще.

Изначально слово материя и в древнегреческом (ὕλη), и в латинском (materia) языках означало дерево, древесину. Сегодня этим словом мы обозначаем огромную палитру естественных и искусственных материалов.

В процессе работы студенты провели исследования, которые касались Физики материалов, то есть их физических свойств – прочности, упругости, теплопроводности, прозрачности, звукоизоляции и прочих скучных, но необходимым архитектору знаний.

Вторая группа исследований касалась Поэтики материала, то есть художественных, образных, символических качеств материалов. Третья серия исследований, Жизнь материала, была посвящена изучению прототипов: выдающихся построек разных эпох, в которых роль материала особенно существенна. Студия фокусировалась на том, из чего создаётся архитектура, и, в конечном счете, на вопросе о природе и смысле архитектуры.

На основании исследований каждый из студентов сформулировал персональный Манифест материальности, в котором отразил собственные представления о роли и значении материала в архитектуре. Затем каждый выбрал материал и составил программу сооружения, типология которого в наибольшей степени соотносится с выбранным материалом. Итогом работы в студии стал проект сооружения, разработанный на основе авторского Манифеста».
***
 
Переосмысление металла
Александр Белозерцев
Переосмысление металла. Автор работы: Александр Белозерцев. Преподаватели: Евгений Асс, Игорь Чиркин  © МАРШ
Переосмысление металла. Автор работы: Александр Белозерцев. Преподаватели: Евгений Асс, Игорь Чиркин © МАРШ

«Первый металл, используемый человеком – метеоритное железо. То есть достаточно твердый материал – своего рода пришелец. Это означает, что еще до того, как человечество смогло освоить производство твердых тел из руды, оно уже имело перед глазами пример готового результата. С развитием человечества менялся химический состав, технологические характеристики и способы производства металла, но стремясь переосмыслить этот материал, человек всегда имел дело с уже существующим объектом и процессом его возникновения. История обработки металлов, от примитивной печи до гигантских промышленных печей, говорит о том, что связь материала с историей человечества намного теснее, чем кажется, если думать только об изделии и его технических характеристиках. Потеряв свою первоначальную функцию, объект обретает новое значение.

В моем проекте основным материалом будет сталь. Сталь является самым распространенным и широко применяемым в строительстве видом металла, но все же в работе над своим проектом я хотел посмотреть на материал во всей широте его контекста. Для меня металл – это процесс, плоды которого имеют номадический характер и, подобно метеоритам, попадают в контекст.
Переосмысление металла. Автор работы: Александр Белозерцев. Преподаватели: Евгений Асс, Игорь Чиркин © МАРШ
Переосмысление металла. Автор работы: Александр Белозерцев. Преподаватели: Евгений Асс, Игорь Чиркин © МАРШ
Переосмысление металла. Автор работы: Александр Белозерцев. Преподаватели: Евгений Асс, Игорь Чиркин © МАРШ
Переосмысление металла. Автор работы: Александр Белозерцев. Преподаватели: Евгений Асс, Игорь Чиркин © МАРШ
Переосмысление металла. Автор работы: Александр Белозерцев. Преподаватели: Евгений Асс, Игорь Чиркин
Переосмысление металла. Автор работы: Александр Белозерцев. Преподаватели: Евгений Асс, Игорь Чиркин

В качестве локации для проектирования мною была выбрана набережная города Волгодонск. Если смотреть на карту речных круизов европейской части России, Волгодонск расположен по маршруту Москва – Ростов-на-Дону.

Пирс является примером сооружения, которое изначально отвечало только своей прямой функции – быть причалом для кораблей. Позднее пирс превращается, скорее, в развлекательный объект, точку притяжения городской жизни. Для условий нестабильного уровня воды пирс также является верным решением, поскольку протяженность словно следует за водой. В зависимости от популярности у горожан и туристов, пирс может быть как простой пустой плоскостью, так и местом отдыха и развлечений.
Переосмысление металла. Автор работы: Александр Белозерцев. Преподаватели: Евгений Асс, Игорь Чиркин
Переосмысление металла. Автор работы: Александр Белозерцев. Преподаватели: Евгений Асс, Игорь Чиркин
Переосмысление металла. Автор работы: Александр Белозерцев. Преподаватели: Евгений Асс, Игорь Чиркин
Переосмысление металла. Автор работы: Александр Белозерцев. Преподаватели: Евгений Асс, Игорь Чиркин
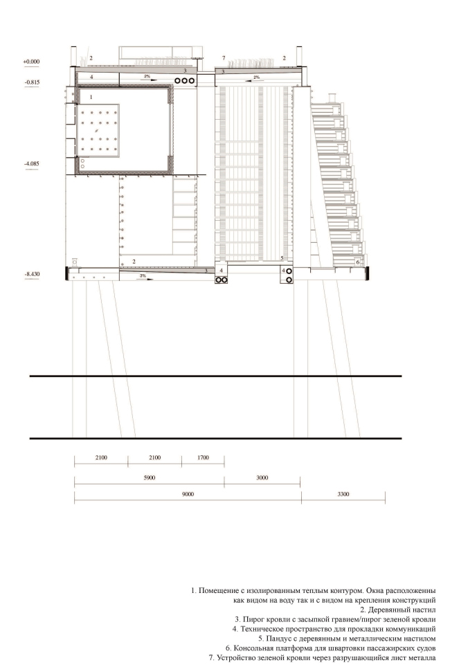
Переосмысление металла. Разрез B-B. Автор работы: Александр Белозерцев. Преподаватели: Евгений Асс, Игорь Чиркин
Переосмысление металла. Разрез B-B. Автор работы: Александр Белозерцев. Преподаватели: Евгений Асс, Игорь Чиркин
Переосмысление металла. Автор работы: Александр Белозерцев. Преподаватели: Евгений Асс, Игорь Чиркин
Переосмысление металла. Автор работы: Александр Белозерцев. Преподаватели: Евгений Асс, Игорь Чиркин
Переосмысление металла. Схема секции конструкции пирса. Автор работы: Александр Белозерцев. Преподаватели: Евгений Асс, Игорь Чиркин
Переосмысление металла. Схема секции конструкции пирса. Автор работы: Александр Белозерцев. Преподаватели: Евгений Асс, Игорь Чиркин

В моем проекте диагональ, уходящая от дамбы, может стать местом размещения функционального наполнения. Устаревшая типология речного вокзала, помещения, относящиеся к речному вокзалу, будут максимально интегрированы в структуру других помещений пирса. В качестве зала ожидания – многофункциональное пространство, отвечающее требованиям для временного размещения функциональных зон. Часть конструкции будет оборудована под рыбный рынок и места для отдыха.

Само понятие наружной отделки утрачивается: другие материалы возникают не как часть образа, но как необходимость для человека».
***

Переосмысление кирпича
Александра Полидовец
Переосмысление кирпича. Балкон. Автор: Александра Полидовец. Преподаватели: Евгений Асс, Игорь Чиркин © МАРШ
Переосмысление кирпича. Балкон. Автор: Александра Полидовец. Преподаватели: Евгений Асс, Игорь Чиркин © МАРШ

«Для меня работа с кирпичом началась с необходимости придумать манифест. Бриф гласил: в своём манифесте нужно выразить свои взгляды на материал и материальность, на современную архитектуру, сформировать своё кредо архитектора. У меня родилась идея о том, что материал нужно познавать, непосредственно работая с ним, закончить теоретизировать и взять в руки шпатель и кирпич. Я купила 300 килограммов кирпича и начала возводить стену, фиксируя на видео все происходящее.

В процессе исследования физики и поэтики кирпича, я наткнулась на книгу по архитектурной кладке 1762 года, в которой в качестве архитектурной детали была представлена печь. Эта печь сама по себе напоминала архитектурную постройку и, углубившись в тему взаимодействия кирпича и тепла, я пришла к выводу, что кирпич не хочет стать аркой, как говорил Луис Канн, а хочет быть в тепле.
Переосмысление кирпича. Автор: Александра Полидовец. Преподаватели: Евгений Асс, Игорь Чиркин © МАРШ
Переосмысление кирпича. Автор: Александра Полидовец. Преподаватели: Евгений Асс, Игорь Чиркин © МАРШ
Переосмысление кирпича. Автор: Александра Полидовец. Преподаватели: Евгений Асс, Игорь Чиркин © МАРШ
Переосмысление кирпича. Автор: Александра Полидовец. Преподаватели: Евгений Асс, Игорь Чиркин © МАРШ

Кирпич известен своей способностью сохранять тепло. Проанализировав кирпичные печи в архитектуре, я выделила 3 основных типологии, в которых встречаются печи: пекарня, керамическая мастерская и крематорий. В данных типологиях кирпич взаимодействует с тестом, глиной и телом, и три этих материи являются метафорически триедиными. Проанализировав контекст моей постройки, я остановила свой выбор на типологии пекарни, в дальнейшем развивая свой проект по направлению взаимодействия кирпича и хлеба.

В качестве места проектирования я выбрала небольшой участок в поле, рядом с агрогородком Островно, расположенным в Витебской области. В Витебскую область меня привела совокупность воспоминаний из детства и взрослой жизни.

Островно – это агрогородок, уникальный тип сельских населенных пунктов который появился в Беларуси сравнительно недавно. В Островно находится бывший римско-католический храм (XVI век), сейчас он практически разрушен. Толстые кирпичные стены и мощные своды, ощущение сакральности и величия объединяют этот храм и мою будущую пекарню.
Переосмысление кирпича. Автор: Александра Полидовец. Преподаватели: Евгений Асс, Игорь Чиркин © МАРШ
Переосмысление кирпича. Автор: Александра Полидовец. Преподаватели: Евгений Асс, Игорь Чиркин © МАРШ
Переосмысление кирпича. Автор: Александра Полидовец. Преподаватели: Евгений Асс, Игорь Чиркин © МАРШ
Переосмысление кирпича. Автор: Александра Полидовец. Преподаватели: Евгений Асс, Игорь Чиркин © МАРШ

Вдохновение с лёгким налётом грусти за этот покинутый разрушающийся храм, находящийся в центре неизвестности, стало для меня тем последующим связующим звеном места и постройки.

Я подумала, что весьма символично будет, если вместо умирающего кирпичного здания появится что-то новое, возведенное по традиционным технологиям кирпичной кладки, которые отдавали бы дань времени и отражали преемственность архитектурной материальности.

В первом эскизе плана я размышляла о функциональной и чувственной взаимосвязи всех помещений, а также соотнесла каждое из помещений со своим видом кладки и своим видом хлеба. При этом я соотнесла их не только по форме, но и по значению. Например, гостиную – место, где происходит дегустация хлеба и мастер-классы, процесс познания хлеба – я соотнесла с караваем, традиционным хлебом гостеприимства, и грубой традиционной кладкой.
Переосмысление кирпича. Автор: Александра Полидовец. Преподаватели: Евгений Асс, Игорь Чиркин © МАРШ
Переосмысление кирпича. Автор: Александра Полидовец. Преподаватели: Евгений Асс, Игорь Чиркин © МАРШ
Переосмысление кирпича. Разрез 1-1. Автор: Александра Полидовец. Преподаватели: Евгений Асс, Игорь Чиркин © МАРШ
Переосмысление кирпича. Разрез 1-1. Автор: Александра Полидовец. Преподаватели: Евгений Асс, Игорь Чиркин © МАРШ

Изучая технологии производства кирпича, я нашла параллели между процессами производства хлеба и кирпича: и в технологическом (получение сырья – замес – формовка – выпекание – поставка готовой продукции), и в визуальном смысле. Булки хлеба и кирпичи – это модульные предметы, которые стремятся к строгой и правильной сетке. Но и тот, и другой процесс на том или ином этапе встречаются с человеком, что приводит к появлению случайностей и мелких сбоев, будь то сдвиг кирпича относительно толщины шва или поворот одной буханки относительно другой.

Продолжая свой метод познания материала через ручную работу, я сделала 600 кирпичей, чтобы прочувствовать размер, модуль и поэкспериментировать с кладкой и деталями.

Мой проект устроен так: на первом этаже располагается парадный вход с магазином, где можно выпить чашку кофе и купить буханку хлеба или свежие круассаны. Также хлебная лавка объединена с ресепшеном для мини-гостиницы. Далее, минуя ряды с хлебом, посетитель попадает в галерею. Прямо находится производство хлебобулочных изделий на 3000 т/сут, завернув налево, посетитель проходит мимо производства, заглядывая в окошки и наблюдая за хлебопекарным процессом. Дойдя до конца, он упирается в мини-гостиницу, на первом этаже которой располагается гостиная для завтраков и мини-кухня.
Переосмысление кирпича. разрез 2-2, 3-3. Автор: Александра Полидовец. Преподаватели: Евгений Асс, Игорь Чиркин © МАРШ
Переосмысление кирпича. разрез 2-2, 3-3. Автор: Александра Полидовец. Преподаватели: Евгений Асс, Игорь Чиркин © МАРШ
Переосмысление кирпича. Разрез 4-4. Автор: Александра Полидовец. Преподаватели: Евгений Асс, Игорь Чиркин © МАРШ
Переосмысление кирпича. Разрез 4-4. Автор: Александра Полидовец. Преподаватели: Евгений Асс, Игорь Чиркин © МАРШ

Если же от входа повернуть направо, то, пройдя по галерее, посетитель может выйти на площадь с нефункционирующей трубой, в которую можно зайти, чтобы посмотреть на ясное звездное небо, как в подзорную трубу. А пройдя чуть дальше, посетитель попадает в пространство познания приготовления хлеба, где располагается помещение для мастер-классов по хлебопечению. Прямо от входа ведет лестница на второй этаж. Если повернуть налево, в арку, открывается двусветное пространство с большим столом для группы начинающих пекарей. Приготовив хлеб, посетитель может пройти в индивидуальные кабины знакомства с хлебом, расположенные слева. Также справа, в отдельном помещении, располагается мини-кухня по приготовлению легких закусок и напитков в дополнение к хлебу – мёд, деревенский сыр, домашнее вино и медовуха.

На втором этаже находится прогулочный балкон, с которого открывается красивый вид на окружающие леса, поля и озёра. В мини-гостинице на этаже находятся три номера, в каждом есть ванная комната, небольшой комод и рабочий стол. Выходя из номера, постоялец попадает на открытый балкон, с которого можно наблюдать окружающие поля, луга, озёра и леса. Проходя мимо производственного цеха, можно заглянуть в пространство запаха хлеба, внутри которого расположены скамейки, сидя на которых можно смотреть на весь цикл производства хлеба сквозь арочную колоннаду. На противоположной стороне от производства находятся административные помещения, кабинет главного пекаря и директора производства, место для отдыха работников с обеденным столом.
Переосмысление кирпича. Автор: Александра Полидовец. Преподаватели: Евгений Асс, Игорь Чиркин © МАРШ
Переосмысление кирпича. Автор: Александра Полидовец. Преподаватели: Евгений Асс, Игорь Чиркин © МАРШ

В конце балкона расположено небольшое кафе на балкончике, откуда можно наблюдать за мастер-классом, проходящим внизу. Таким образом, увидев воочию процесс производства, в конце пути можно насладиться свежей буханкой хлеба.

На третьем и четвёртом этажах находятся гостиничные номера. В обоих концах коридора лестничного холла находятся круглые окна для света и обзора.

Поднявшись по лестнице в гостинице на 5 этаж, посетитель попадает на обзорную площадку, с которой открывается вид на Островно и можно охватить взглядом все окружение».
***

Переосмысление земли
Анвар Гарипов
Переосмысление земли. Автор: Анвар Гарипов. Преподаватели: Евгений Асс, Игорь Чиркин © МАРШ
Переосмысление земли. Автор: Анвар Гарипов. Преподаватели: Евгений Асс, Игорь Чиркин © МАРШ

«Этот мир стремительно дематериализуется. Стерильность, гладкость и блеск – ключевые характеристики современности. Мы не знаем, из чего сделано большинство окружающих нас предметов, мы даже не можем предположить, как они устроены. Искусственность и имитация лишают вещь многих свойств.

Материал в архитектуре должен не только предлагать богатую пищу для глаз, но и работать на все органы чувств, расчет на чисто визуальное восприятие приводит к потере материальности. Архитектура имеет право стареть, и материал должен передавать физическое ощущение времени.

Земля является основным материалом проекта. Изучив все способы строительства из земли, был выбран метод трамбовки в опалубку, как наиболее подходящий для наших климатических и технологических условий. Земля – материал, который напрямую отражает геологическую память места. Грунты даже на соседних участках могут сильно различаться, поэтому каждое землебитное здание уникально.
Переосмысление земли. Вестибюль. Преподаватели: Евгений Асс, Игорь Чиркин © МАРШ
Переосмысление земли. Вестибюль. Преподаватели: Евгений Асс, Игорь Чиркин © МАРШ
Переосмысление земли. Библиотека. Преподаватели: Евгений Асс, Игорь Чиркин © МАРШ
Переосмысление земли. Библиотека. Преподаватели: Евгений Асс, Игорь Чиркин © МАРШ
Переосмысление земли. Вид с площади. Преподаватели: Евгений Асс, Игорь Чиркин © МАРШ
Переосмысление земли. Вид с площади. Преподаватели: Евгений Асс, Игорь Чиркин © МАРШ

Место проектирования расположено в городе Можге. Это ничем не примечательный город, без культурных, архитектурных и природных достопримечательностей. Первый генеральный план города от 1927 года предусматривал организацию городской площади, но этот проект не был реализован. На месте предполагаемой площади был создан парк. Полноценный городской центр с площадью и общественными пространствами не сформирован до сих пор. Большую часть застройки города составляют индивидуальные жилые дома с приусадебными участками. В этих домах проживает большая часть жителей города. Плотность населения очень низкая, активной общественной жизни в городе не наблюдается.
Переосмысление земли. Автор: Анвар Гарипов. Преподаватели: Евгений Асс, Игорь Чиркин © МАРШ
Переосмысление земли. Автор: Анвар Гарипов. Преподаватели: Евгений Асс, Игорь Чиркин © МАРШ
Переосмысление земли. Автор: Анвар Гарипов. Преподаватели: Евгений Асс, Игорь Чиркин © МАРШ
Переосмысление земли. Автор: Анвар Гарипов. Преподаватели: Евгений Асс, Игорь Чиркин © МАРШ
Переосмысление земли. Автор: Анвар Гарипов. Преподаватели: Евгений Асс, Игорь Чиркин © МАРШ
Переосмысление земли. Автор: Анвар Гарипов. Преподаватели: Евгений Асс, Игорь Чиркин © МАРШ

Все заведения, которые могли бы служить местами объединения местных жителей, находятся вдали от центра и не принимают участие в повседневной жизни города. Я выбрал типологию дома культуры или общественно-культурного центра, чтобы решить обозначенные проблемы.Мой объект будет располагаться на площадке перед зданием горсовета. Эта площадка используется для проведения общегородских мероприятий, однако большую часть времени она служит парковкой и в жизни города не играет существенной роли.

Земля берётся непосредственно на месте строительства. Котлован, образующийся на месте выемки земли, может быть превращен в пруд. Всего для возведения здания необходимо 6 200 м³ земли. Площадь пруда 3100 м² при средней глубине 2 м.

Переосмысление земли. Автор: Анвар Гарипов. Преподаватели: Евгений Асс, Игорь Чиркин © МАРШ
Переосмысление земли. Автор: Анвар Гарипов. Преподаватели: Евгений Асс, Игорь Чиркин © МАРШ
Переосмысление земли. Фото макета №2. Преподаватели: Евгений Асс, Игорь Чиркин © МАРШ
Переосмысление земли. Фото макета №2. Преподаватели: Евгений Асс, Игорь Чиркин © МАРШ
Переосмысление земли. Автор: Анвар Гарипов. Преподаватели: Евгений Асс, Игорь Чиркин © МАРШ
Переосмысление земли. Автор: Анвар Гарипов. Преподаватели: Евгений Асс, Игорь Чиркин © МАРШ

Между слоёв трамбованной земли через каждые 400 мм укладываются отсечки из известкового цемента. Спустя некоторое время под влиянием атмосферных воздействий фасад начинает разрушаться, обнажая известковые слои. Обнажившись, известковые пласты начинают препятствовать стеканию воды по фасаду, тем самым защищают его от размывания.

Естественная неравномерность вручную уложенных слоёв в сочетании с природными силами создает не просто конструктивный прием, но и живописную фактуру фасада».
***