Размещено на портале Архи.ру (www.archi.ru)

27.08.2018

Красота старого кирпича

Нина Фролова
Объект:
Факультет радио и телевидения Силезского университета
Адрес:
Польша, Катовице.
Мастерская:
BAAS arquitectura

Здание факультета радио и телевидения Силезского университета в Катовице по проекту BAAS arquitectura получило архитектурную премию авторитетного журнала Polityka как лучшая постройка Польши.

Факультет радио и телевидения Силезского университета © Adrià Goula
Факультет радио и телевидения Силезского университета © Adrià Goula

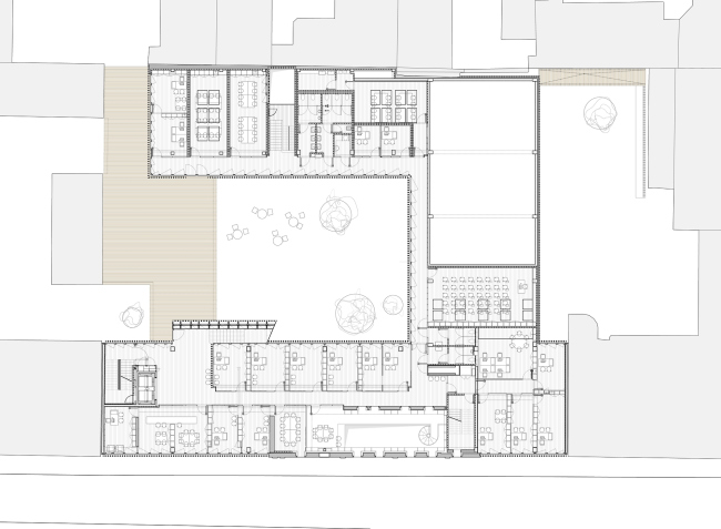
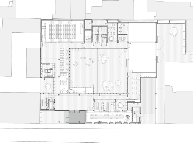
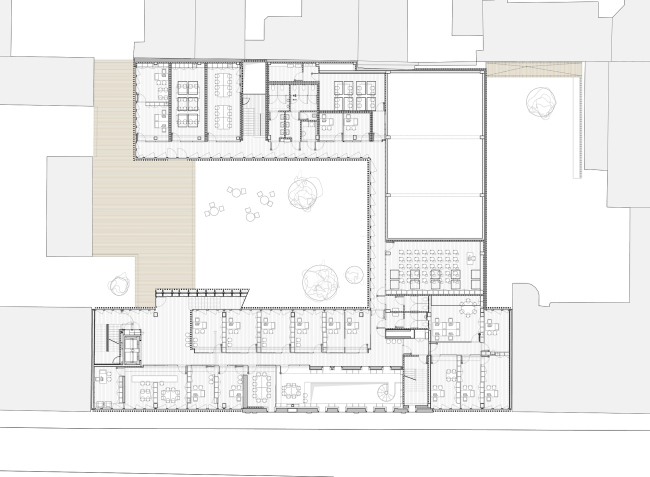
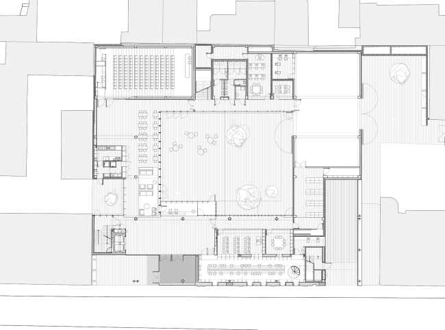
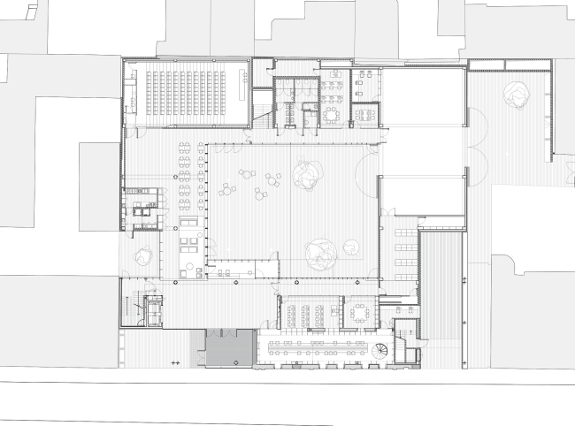
Здание факультета радио и телевидения спроектировано барселонским бюро BAAS arquitectura совместно с польскими мастерскими Grupa 5 Architekci и Małeccy Biuro Projektowe. Оно расположено в центре Катовице, в тихом переулке, плотно застроенном дешевыми доходными домами межвоенного времени, неинтересными и обветшалыми. Участок, выбранный Силезским университетом, был единственным там пустырем, где при этом стояла небольшая руина – корпус электролампового завода, который по условиям конкурса 2011 года можно было снести. Однако BAAS arquitectura не воспользовались, в отличие от многих конкурентов, такой возможностью, а включили эту скромную постройку в свое здание, сделав его частью главного фасада и снабдив функцией: там теперь находится факультетская библиотека.
 
Факультет радио и телевидения Силезского университета © Adrià Goula
Факультет радио и телевидения Силезского университета © Adrià Goula

И заводской корпус, и доходные дома вокруг построены из типичнейшего для Катовице материала – кирпича. В новом здании он тоже широко использован, наряду с древесиной лиственницы и бетоном, причем в том числе и для мощения пола. Но для большинства фасадов выбраны полые керамические блоки, не дающее современной постройке полностью слиться с окружением. Еще один необычный для Силезии ход – двор-патио для общения студентов. Общая площадь постройки – 5 390 м2, бюджет – 38,5 млн злотых.
 
Факультет радио и телевидения Силезского университета © Adrià Goula
Факультет радио и телевидения Силезского университета © Adrià Goula

Эксперты журнала Polityka отметили, что за семилетнюю историю их премии это уже третье награжденное здание в Катовице, городе, больше известном своей индустриальной историей, чем архитектурными красотами. Прежними лауреатами были библиотека Силезского университета и Международный конгресс-центр, но, в отличие от них, факультет радио и ТВ – не знаковое здание, а образец виртуозной работы с контекстом, заставившей «заиграть» даже побитые временем и раскрашенные неказистыми граффити соседние дома.
 
Факультет радио и телевидения Силезского университета © Adrià Goula
Факультет радио и телевидения Силезского университета © Adrià Goula

Параллельно с работой жюри проводилось интернет-госование за лучшее из пяти зданий-финалистов. По его результатам факультет радио и ТВ занял второе место с 15,1 процентов голосов, а на первом оказалась башня Bałtyk в Познани по проекту бюро MVRDV, получившая целых 64 процента. Как считают эксперты, интернет-пользователи так высоко оценили редкое для Польши соединение офисного здания с общественным и культурным пространством.
Факультет радио и телевидения Силезского университета © Adrià Goula
Факультет радио и телевидения Силезского университета © Adrià Goula
Факультет радио и телевидения Силезского университета © Adrià Goula
Факультет радио и телевидения Силезского университета © Adrià Goula
Факультет радио и телевидения Силезского университета © Adrià Goula
Факультет радио и телевидения Силезского университета © Adrià Goula
Факультет радио и телевидения Силезского университета © Adrià Goula
Факультет радио и телевидения Силезского университета © Adrià Goula
Факультет радио и телевидения Силезского университета © BAAS arquitectura
Факультет радио и телевидения Силезского университета © BAAS arquitectura
Факультет радио и телевидения Силезского университета © BAAS arquitectura
Факультет радио и телевидения Силезского университета © BAAS arquitectura
Факультет радио и телевидения Силезского университета © BAAS arquitectura
Факультет радио и телевидения Силезского университета © BAAS arquitectura
Факультет радио и телевидения Силезского университета © BAAS arquitectura
Факультет радио и телевидения Силезского университета © BAAS arquitectura
Факультет радио и телевидения Силезского университета © BAAS arquitectura
Факультет радио и телевидения Силезского университета © BAAS arquitectura
Факультет радио и телевидения Силезского университета © BAAS arquitectura
Факультет радио и телевидения Силезского университета © BAAS arquitectura
Факультет радио и телевидения Силезского университета © BAAS arquitectura
Факультет радио и телевидения Силезского университета © BAAS arquitectura
Факультет радио и телевидения Силезского университета © BAAS arquitectura
Факультет радио и телевидения Силезского университета © BAAS arquitectura
Факультет радио и телевидения Силезского университета © BAAS arquitectura
Факультет радио и телевидения Силезского университета © BAAS arquitectura
Факультет радио и телевидения Силезского университета. Вид участка до начала строительства © BAAS arquitectura
Факультет радио и телевидения Силезского университета. Вид участка до начала строительства © BAAS arquitectura
Факультет радио и телевидения Силезского университета. Вид участка до начала строительства © BAAS arquitectura
Факультет радио и телевидения Силезского университета. Вид участка до начала строительства © BAAS arquitectura