Размещено на портале Архи.ру (www.archi.ru)

23.08.2018

Непреходящие ценности

Нина Фролова
Объект:
Жилой комплекс True North
Адрес:
США, None, Детройт.
Мастерская:
EC3

Жилой комплекс True North в Детройте по проекту бюро EC3 состоит из сборных домов на основе модели времен Второй мировой войны.

Жилой комплекс True North © Chris Miele
Жилой комплекс True North © Chris Miele

Комплекс True North из восьми жилых «единиц» и одного специально оставленного свободным зеленого участка построен в районе Кор-сити в четырех километрах от центра Детройта. На его улице пустующие дома сочетаются с обитаемыми, а также с превратившимися в луга пустырями. True North рассчитан на сдачу в аренду представителям творческих профессий, никак не отгорожен от окружающего города, спроектирован с учетом интересов местных жителей и муниципалитета. Все это позволило проекту стать самым маленьким по масштабу финалистом авторитетной премии Mies Crown Hall Americas Prize, охватывающей новые постройки обеих Америк (самый крупный претендент на награду – афроамериканский музей Дэвида Аджайе в Вашингтоне, а победитель станет известен в октябре).
 
Жилой комплекс True North © Chris Miele
Жилой комплекс True North © Chris Miele
Жилой комплекс True North © Chris Miele
Жилой комплекс True North © Chris Miele
Жилой комплекс True North © Chris Miele
Жилой комплекс True North © Chris Miele

Застройщик изначально хотел использовать для своего проекта так называемые Куонсетские ангары – полуциркульные сооружения из профнастила, изготовлявшиеся с 1941 для ВМС США. Кроме узко военных нужд, их использовали как временное жилье, а после 1945 излишки были распроданы населению и нередко сохранились до наших дней. Новоизготовленные сборные дома такого типа и планировалось возвести на участке, а задачей архитектора, бывшего партнера Фрэнка Гэри Эдвина Чаня и его бюро EC3, было приспособить этот образец дизайна середины XX века под нужды – и вкусы – века двадцать первого.
 
Жилой комплекс True North © Chris Miele
Жилой комплекс True North © Chris Miele
Жилой комплекс True North © Chris Miele
Жилой комплекс True North © Chris Miele
Жилой комплекс True North © Chris Miele
Жилой комплекс True North © Chris Miele

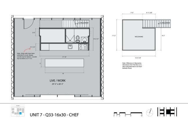
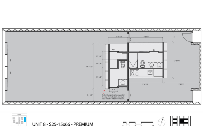
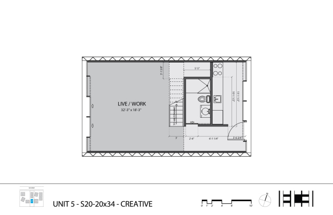
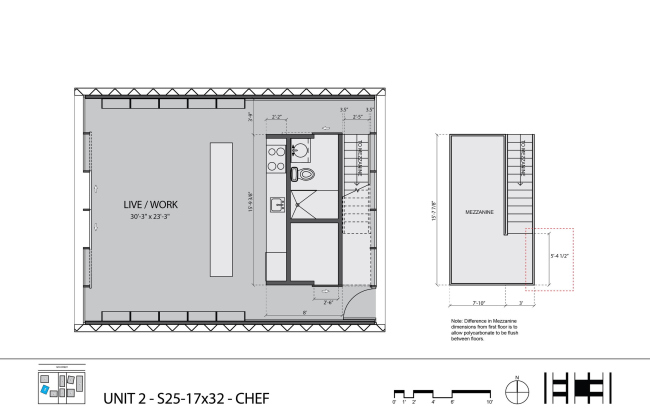
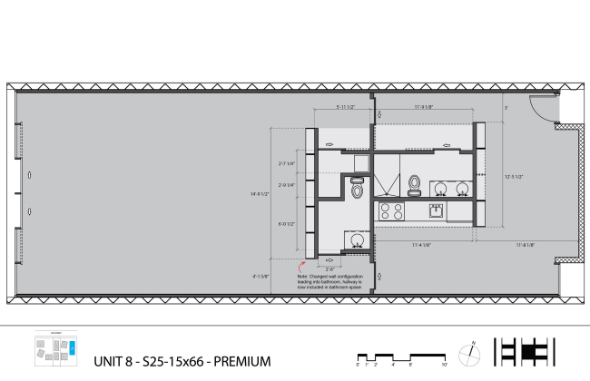
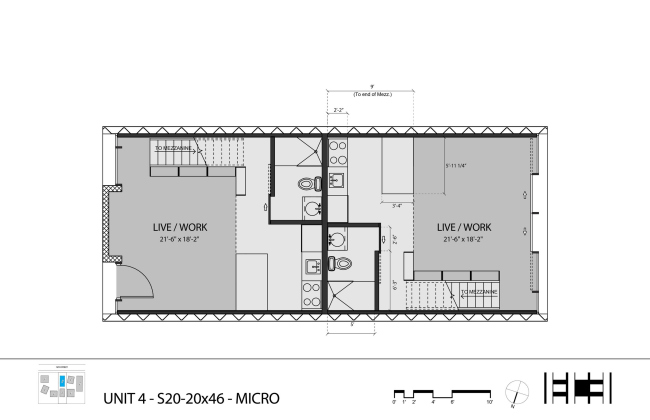
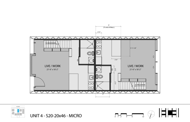
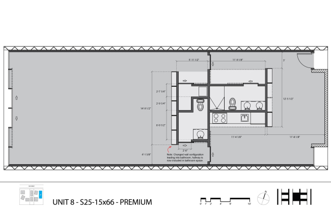
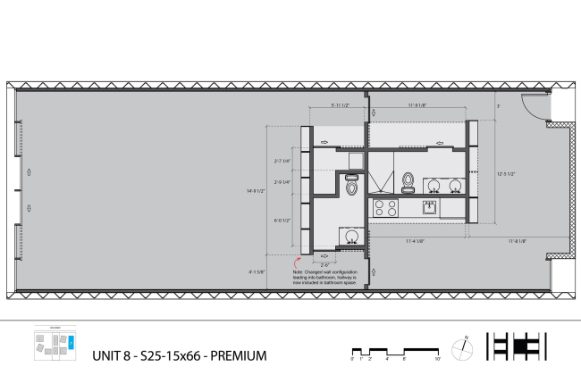
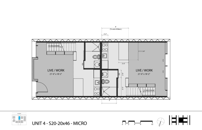
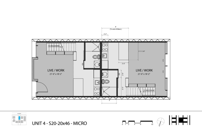
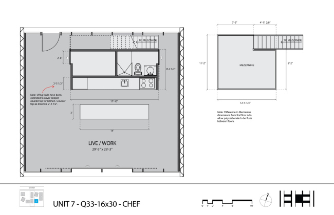
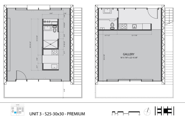
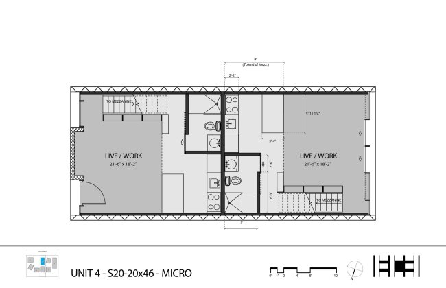
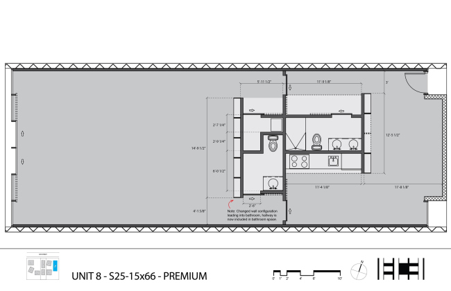
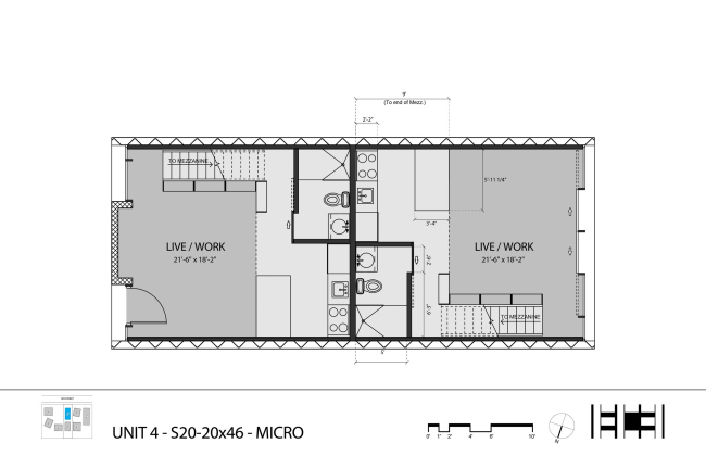
Участок площадью 0,23 гектара занят восемью домами разной площади, от 44 до 150 м2 (общая площадь проекта – 700 м2): это первое новое жилищное строительство в районе за более чем 60 лет. Каждый дом поставлен на бетонную плиту толщиной в 10 сантиметров; в нее встроена излучательная система отопления. Торцевые стены выполнены из поликарбоната, одновременно защищающего частное пространство жильцов и обеспечивающего интерьер естественным светом. Также из поликарбоната сделан «островок» с кухней, санузлом, технической подсобкой-кладовкой.
 
Жилой комплекс True North © Chris Miele
Жилой комплекс True North © Chris Miele
Жилой комплекс True North © Chris Miele
Жилой комплекс True North © Chris Miele
Жилой комплекс True North © Chris Miele
Жилой комплекс True North © Chris Miele

Отдельное внимание было уделено роли True North для района: через участок проходят три общедоступные дорожки, а дома расположены так, чтобы балансировать между оптимальными показателями освещенности и затененности, приватности и открытости. Было высажено тридцать новых деревьев. Именно после демонстрации проекта властям Детройта застройщику удалось получить последний фрагмент участка, которого не хватало для воплощения плана.
Жилой комплекс True North © Chris Miele
Жилой комплекс True North © Chris Miele
Жилой комплекс True North © Chris Miele
Жилой комплекс True North © Chris Miele
Жилой комплекс True North © Chris Miele
Жилой комплекс True North © Chris Miele
Жилой комплекс True North © Jason Keen
Жилой комплекс True North © Jason Keen
Жилой комплекс True North © Jason Keen
Жилой комплекс True North © Jason Keen
Жилой комплекс True North © Chris Miele
Жилой комплекс True North © Chris Miele
Жилой комплекс True North © Jason Keen
Жилой комплекс True North © Jason Keen
Жилой комплекс True North © Chris Miele
Жилой комплекс True North © Chris Miele
Жилой комплекс True North © Chris Miele
Жилой комплекс True North © Chris Miele
Жилой комплекс True North © Chris Miele
Жилой комплекс True North © Chris Miele
Жилой комплекс True North © Chris Miele
Жилой комплекс True North © Chris Miele
Жилой комплекс True North © Chris Miele
Жилой комплекс True North © Chris Miele
Жилой комплекс True North © Chris Miele
Жилой комплекс True North © Chris Miele
Жилой комплекс True North © Chris Miele
Жилой комплекс True North © Chris Miele
Жилой комплекс True North © Chris Miele
Жилой комплекс True North © Chris Miele
Жилой комплекс True North © Chris Miele
Жилой комплекс True North © Chris Miele
Жилой комплекс True North © EC3
Жилой комплекс True North © EC3
Жилой комплекс True North © EC3
Жилой комплекс True North © EC3
Жилой комплекс True North © EC3
Жилой комплекс True North © EC3
Жилой комплекс True North © EC3
Жилой комплекс True North © EC3
Жилой комплекс True North © EC3
Жилой комплекс True North © EC3
Жилой комплекс True North © EC3
Жилой комплекс True North © EC3
Жилой комплекс True North © EC3
Жилой комплекс True North © EC3
Жилой комплекс True North © EC3
Жилой комплекс True North © EC3
Жилой комплекс True North © EC3
Жилой комплекс True North © EC3
Жилой комплекс True North © EC3
Жилой комплекс True North © EC3
Жилой комплекс True North © EC3
Жилой комплекс True North © EC3
Жилой комплекс True North © EC3
Жилой комплекс True North © EC3
Жилой комплекс True North © EC3
Жилой комплекс True North © EC3
Жилой комплекс True North © EC3
Жилой комплекс True North © EC3
Жилой комплекс True North © EC3
Жилой комплекс True North © EC3
Жилой комплекс True North. Участок до начала строитлеьства © EC3
Жилой комплекс True North. Участок до начала строитлеьства © EC3
Жилой комплекс True North в процессе строительства © Chris Miele
Жилой комплекс True North в процессе строительства © Chris Miele
Жилой комплекс True North в процессе строительства © Chris Miele
Жилой комплекс True North в процессе строительства © Chris Miele
Жилой комплекс True North в процессе строительства © Chris Miele
Жилой комплекс True North в процессе строительства © Chris Miele
Жилой комплекс True North в процессе строительства © Chris Miele
Жилой комплекс True North в процессе строительства © Chris Miele
Жилой комплекс True North в процессе строительства © Chris Miele
Жилой комплекс True North в процессе строительства © Chris Miele
Жилой комплекс True North в процессе строительства © Chris Miele
Жилой комплекс True North в процессе строительства © Chris Miele