Размещено на портале Архи.ру (www.archi.ru)

22.08.2018

Два цвета, две нации

Нина Фролова
Объект:
Посольство Германии и Франции в Бангладеш
Адрес:
Бангладеш, None, Дакка.
Мастерская:
Stephane Paumier Architects (S.P.A. Design)

Единственное в мире общее здание посольств Франции и Германии в Дакке по проекту бюро Стефана Помье.

Посольство Германии и Франции в Бангладеш © Amit Pasricha
Посольство Германии и Франции в Бангладеш © Amit Pasricha

Здание посольств ФРГ и Французской республики в Дакке, столице Бангладеш, – пока единственный пример такого тесного соседства в мире. Некоторым аналогом можно считать комплексы скандинавских посольств, к примеру, в Непале – но их объединяет общая «северная» идентичность и эстетика и давняя традиция разного рода общих культурных и общественных учреждений, чего нет в случае Германии и Франции. Как считает Стефан Помье, «первоисточник» для его проекта – Елисейский договор, подписанный Конрадом Аденаэуром и Шарлем де Голлем в 1963: он заложил новую основу для сотрудничества Франции и Германии, положив конец многовековому соперничеству. Собственно идея общих посольств – более недавняя: она относится рубежу XX – XXI веков, времени Герхарда Шрёдера и Жака Ширака.
 
Посольство Германии и Франции в Бангладеш © Amit Pasricha
Посольство Германии и Франции в Бангладеш © Amit Pasricha

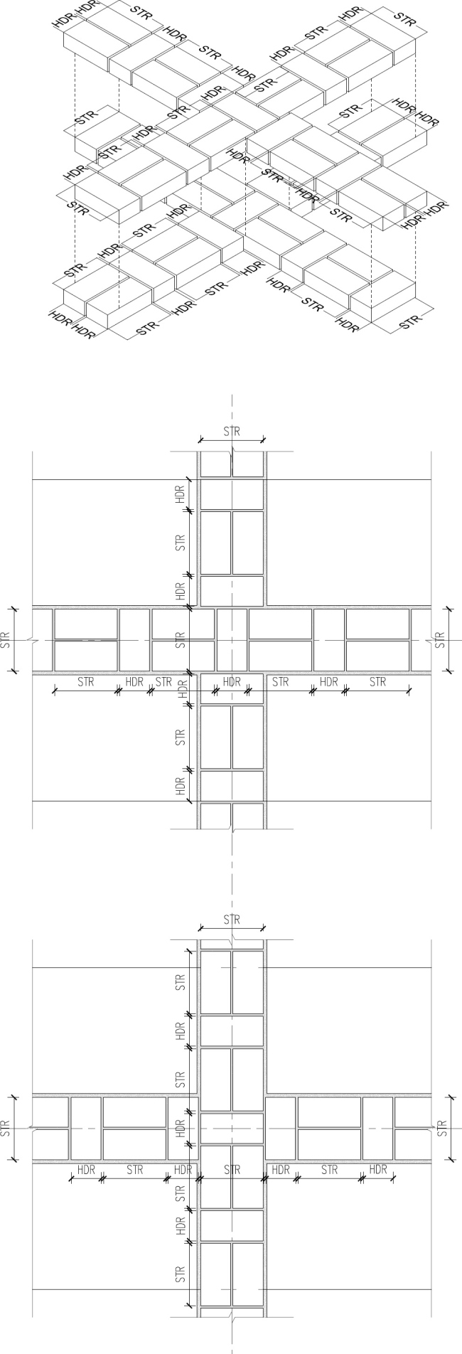
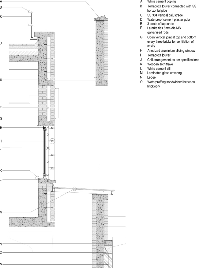
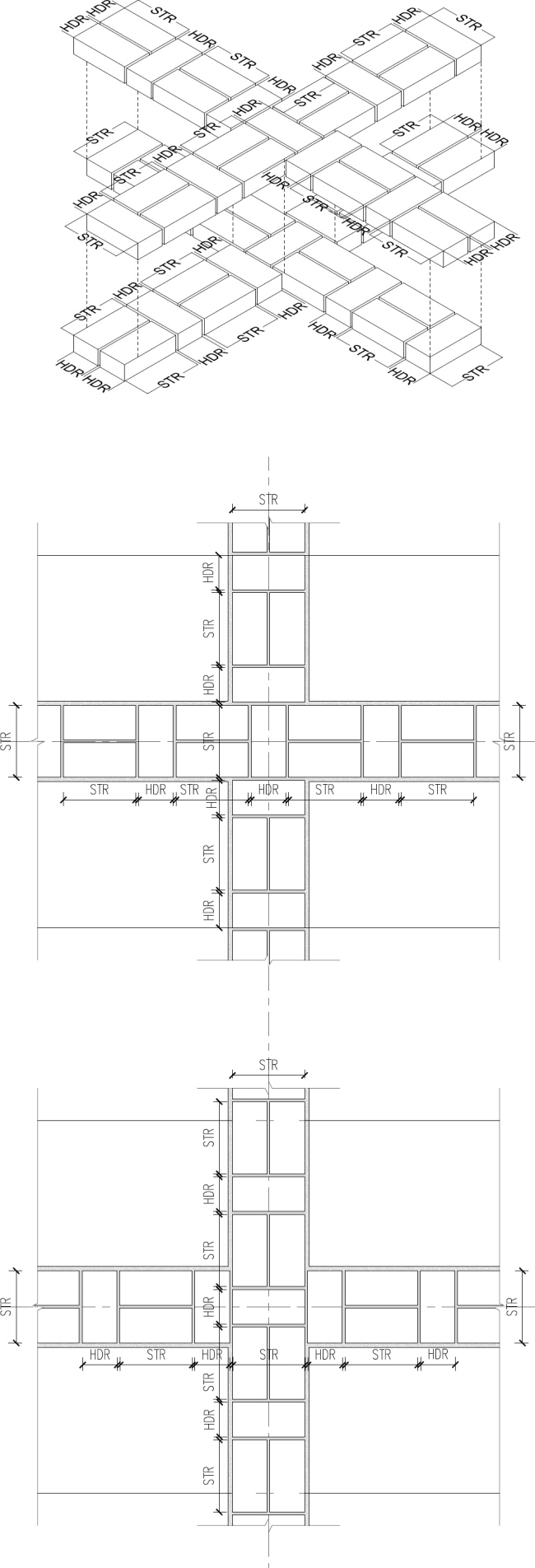
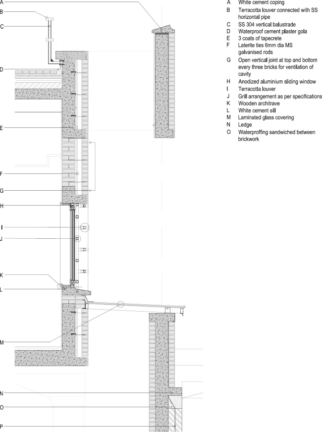
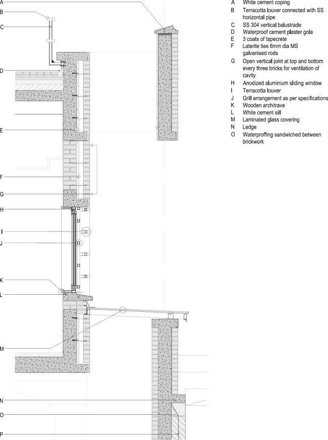
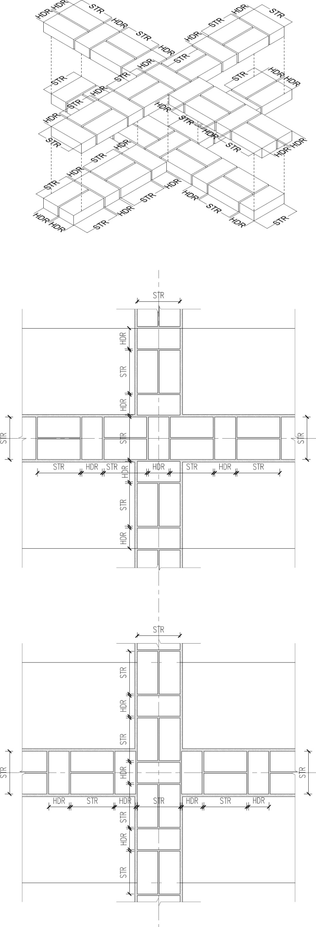
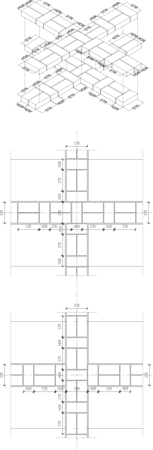
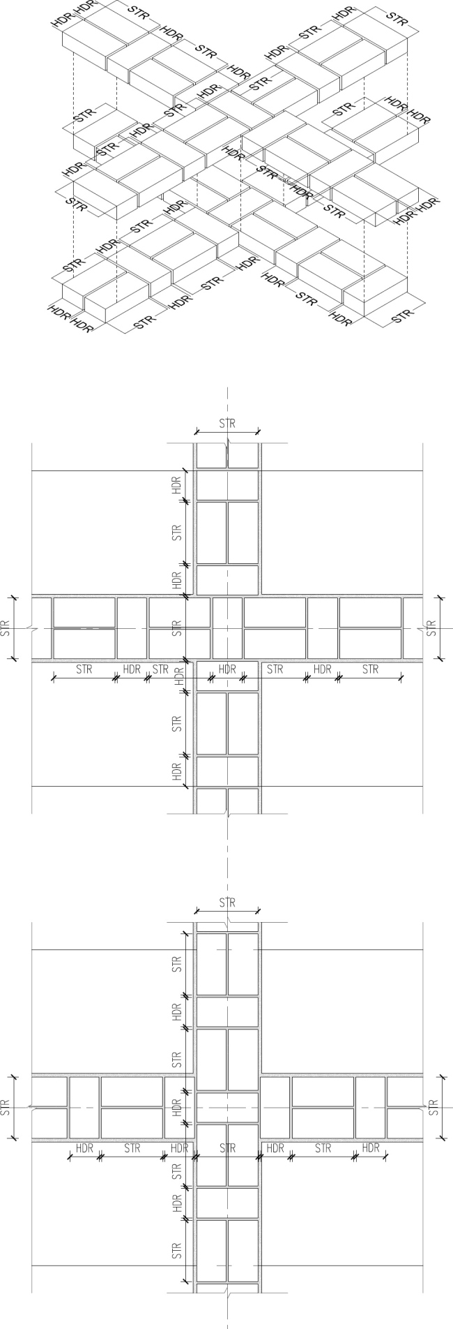
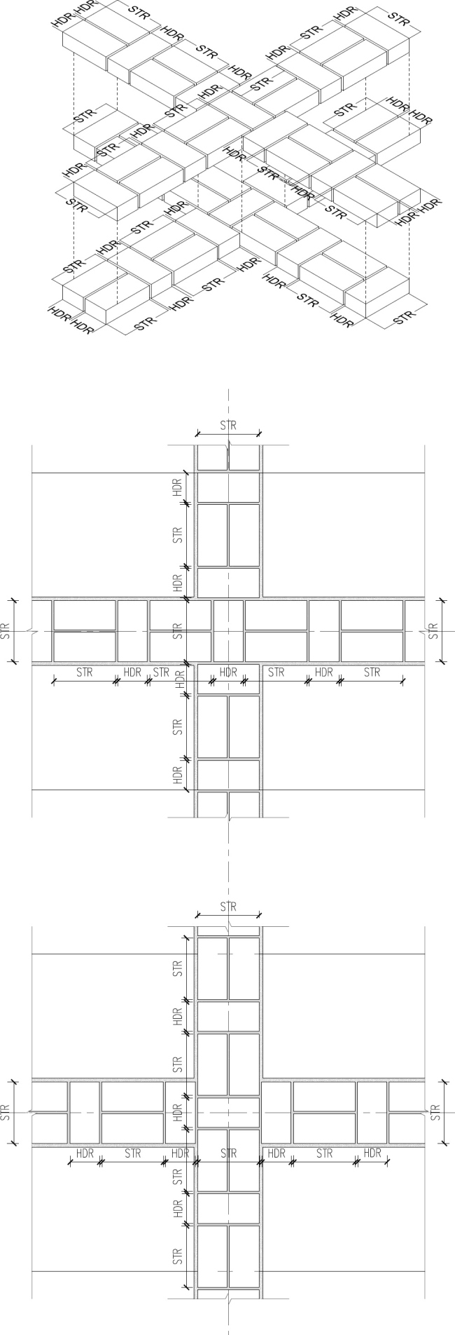
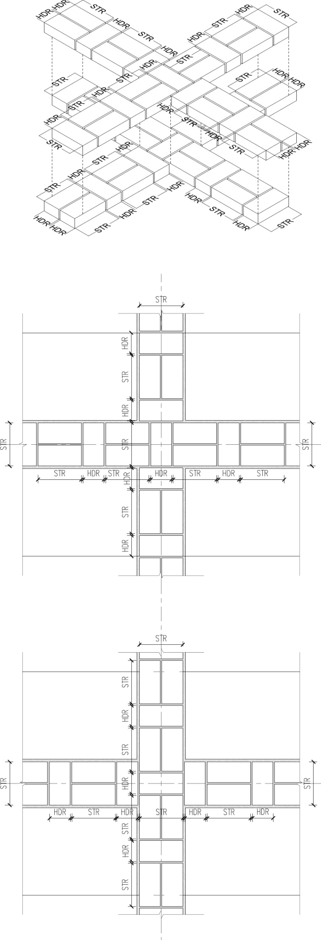
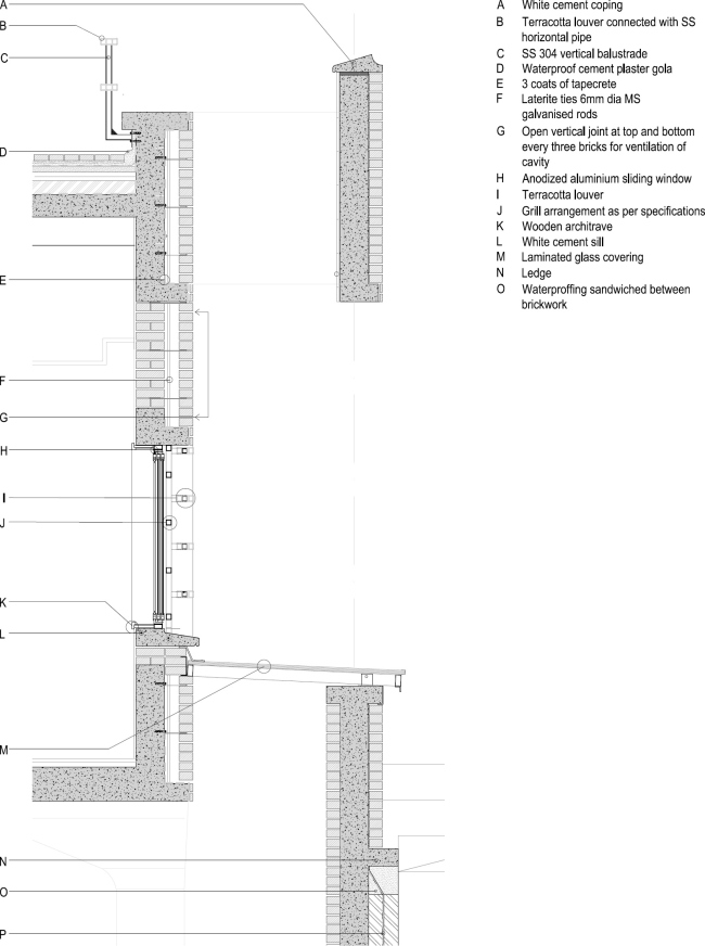
Конкурс на проект франко-германского посольства прошел в 2009 году; Помье с удивлением отмечает, что его команда была единственной, предложившей проект с темой двойственности, дуальности. На образ здания повлияла игра дженга, в которую архитектор в тот момент часто играл с маленькой дочерью, и двойная спираль молекулы ДНК как выражение идентичности. Сосуществование двух посольств в одном здании отмечено также материалом и цветом: Германию обозначили красным кирпичом (от того же производителя в дельте Ганга, что поставлял его на строительство Национальной ассамблеи в Дакке по проекту Луиса Кана), а Францию – бетонным кирпичом – это отсылка и к ее каменной архитектуре, и к Огюсту Перре и другим французским архитекторам-новаторам, экспериментировавшим с железобетоном.
 
Посольство Германии и Франции в Бангладеш © Amit Pasricha
Посольство Германии и Франции в Бангладеш © Amit Pasricha

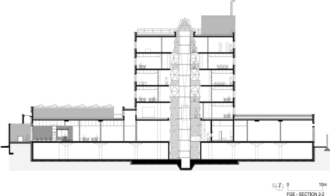
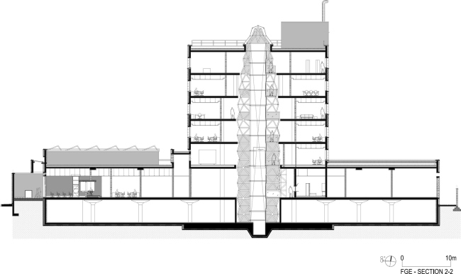
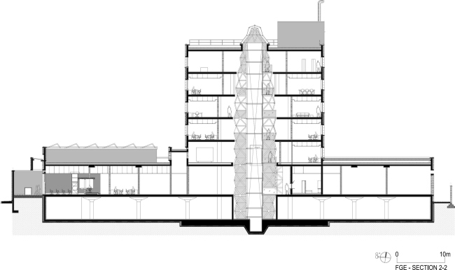
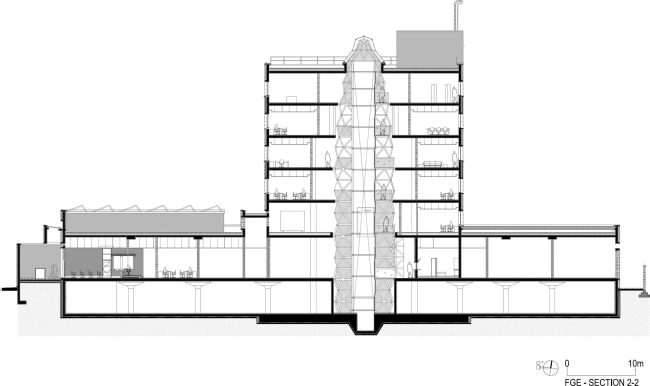
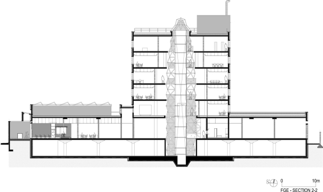
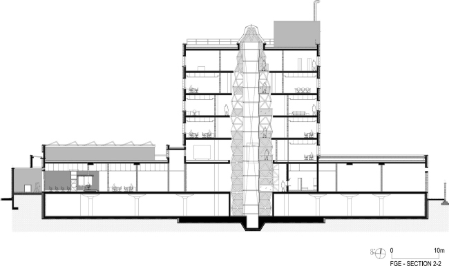
На первом этаже расположены общий вестибюль, визовый отдел, выдающий один и тот же «Шенген», служба безопасности, техподдержка и парковка. В «башне», напоминающей донжон средневекового замка, помещены канцелярии обоих посольств, собственно кабинеты послов и самостоятельные отделы информационных технологий. Для защиты от возможного взрыва на окружающих улицах только визовый и технический отделы касаются границ участка площадью чуть меньше 8000 м2.
 
Посольство Германии и Франции в Бангладеш © Amit Pasricha
Посольство Германии и Франции в Бангладеш © Amit Pasricha

Двойное посольство находится в одном из дипломатических кварталов в благополучном районе Баридхара, напоминающем Дакку середины XX века, тогда еще остававшуюся зеленым городом-садом.
 
Посольство Германии и Франции в Бангладеш © Amit Pasricha
Посольство Германии и Франции в Бангладеш © Amit Pasricha

Архитектурное бюро Стефана Помье расположено в Нью-Дели, и в его портфолио, по преимуществу, здания для различных индийских учреждений. Разница между привычным ему контекстом и Бангладеш не так велика, однако в случае Дакки почти все материалы приходилось импортировать, в то время как в Индии производится практически все, что необходимо для строительства. На проект и реализацию также повлияло наличие двух заказчиков с часто разным подходом к делу – правительств Германии и Франции, и ужесточавшиеся даже в процессе строительства требования к безопасности, вызванные в том числе народными выступлениями и терактами исламистов в Дакке 2010-х.
Посольство Германии и Франции в Бангладеш © Amit Pasricha
Посольство Германии и Франции в Бангладеш © Amit Pasricha
Посольство Германии и Франции в Бангладеш © Amit Pasricha
Посольство Германии и Франции в Бангладеш © Amit Pasricha
Посольство Германии и Франции в Бангладеш © Amit Pasricha
Посольство Германии и Франции в Бангладеш © Amit Pasricha
Посольство Германии и Франции в Бангладеш © Amit Pasricha
Посольство Германии и Франции в Бангладеш © Amit Pasricha
Посольство Германии и Франции в Бангладеш © Amit Pasricha
Посольство Германии и Франции в Бангладеш © Amit Pasricha
Посольство Германии и Франции в Бангладеш © Amit Pasricha
Посольство Германии и Франции в Бангладеш © Amit Pasricha
Посольство Германии и Франции в Бангладеш © Amit Pasricha
Посольство Германии и Франции в Бангладеш © Amit Pasricha
Посольство Германии и Франции в Бангладеш © Amit Pasricha
Посольство Германии и Франции в Бангладеш © Amit Pasricha
Посольство Германии и Франции в Бангладеш © Amit Pasricha
Посольство Германии и Франции в Бангладеш © Amit Pasricha
Посольство Германии и Франции в Бангладеш © Amit Pasricha
Посольство Германии и Франции в Бангладеш © Amit Pasricha
Посольство Германии и Франции в Бангладеш © Amit Pasricha
Посольство Германии и Франции в Бангладеш © Amit Pasricha
Посольство Германии и Франции в Бангладеш © Amit Pasricha
Посольство Германии и Франции в Бангладеш © Amit Pasricha
Посольство Германии и Франции в Бангладеш © Amit Pasricha
Посольство Германии и Франции в Бангладеш © Amit Pasricha
Посольство Германии и Франции в Бангладеш © Amit Pasricha
Посольство Германии и Франции в Бангладеш © Amit Pasricha
Посольство Германии и Франции в Бангладеш © Stephane Paumier Architects
Посольство Германии и Франции в Бангладеш © Stephane Paumier Architects
Посольство Германии и Франции в Бангладеш © Stephane Paumier Architects
Посольство Германии и Франции в Бангладеш © Stephane Paumier Architects
Посольство Германии и Франции в Бангладеш © Stephane Paumier Architects
Посольство Германии и Франции в Бангладеш © Stephane Paumier Architects
Посольство Германии и Франции в Бангладеш © Stephane Paumier Architects
Посольство Германии и Франции в Бангладеш © Stephane Paumier Architects
Посольство Германии и Франции в Бангладеш © Stephane Paumier Architects
Посольство Германии и Франции в Бангладеш © Stephane Paumier Architects
Посольство Германии и Франции в Бангладеш © Stephane Paumier Architects
Посольство Германии и Франции в Бангладеш © Stephane Paumier Architects
Посольство Германии и Франции в Бангладеш © Stephane Paumier Architects
Посольство Германии и Франции в Бангладеш © Stephane Paumier Architects
Посольство Германии и Франции в Бангладеш © Stephane Paumier Architects
Посольство Германии и Франции в Бангладеш © Stephane Paumier Architects
Посольство Германии и Франции в Бангладеш © Stephane Paumier Architects
Посольство Германии и Франции в Бангладеш © Stephane Paumier Architects