Размещено на портале Архи.ру (www.archi.ru)

21.08.2018

Складки на фасаде

Нина Фролова
Объект:
Здание компании Shenzhen Energy
Адрес:
Китай, Шэньчжэнь.
Мастерская:
BIG

Штаб-квартира компании Shenzhen Energy в Шэньчжэне по проекту бюро BIG.

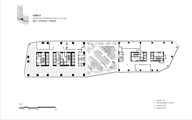
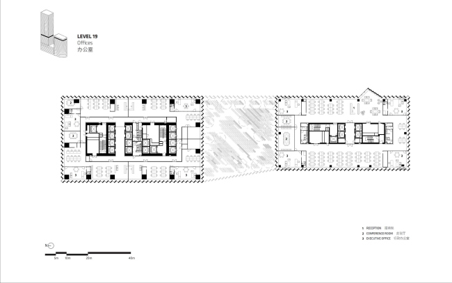
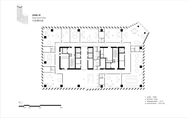
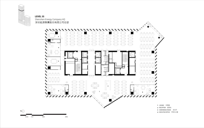
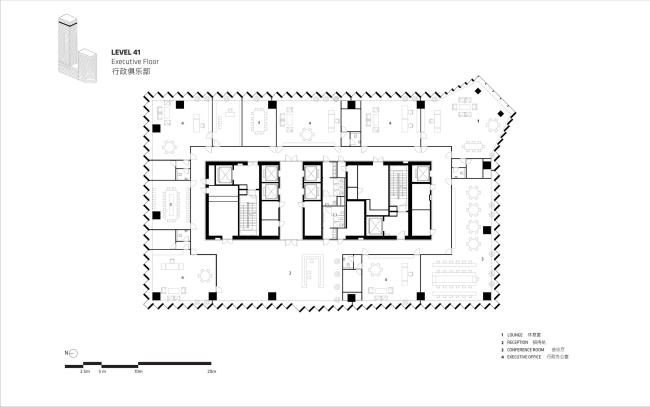
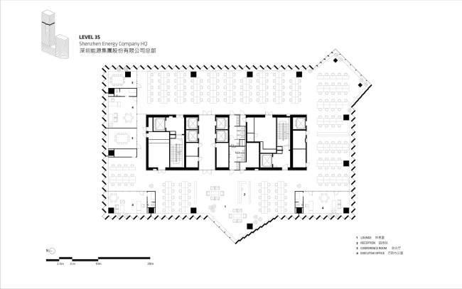
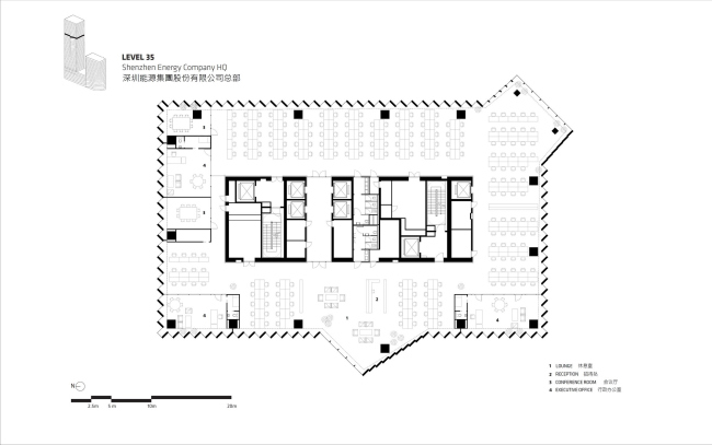
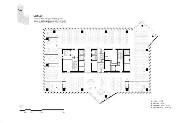
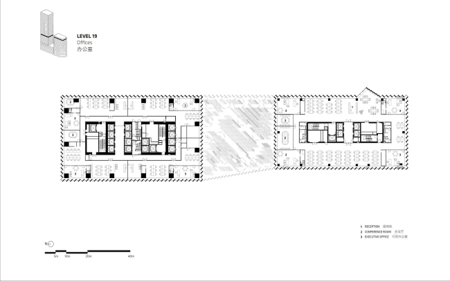
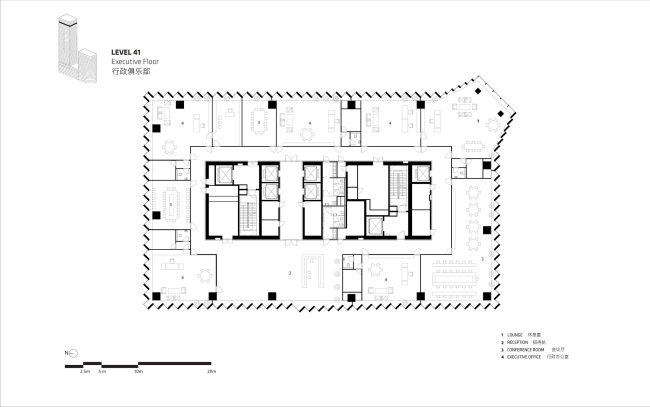
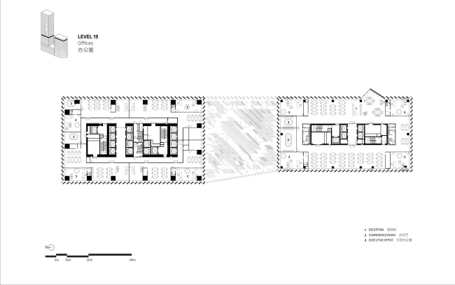
Расположенная в центре 12-миллионного города на юге Китая штаб-квартира государственной компании Shenzhen Energy состоит из двух башен – высотой 220 и 120 метров, соответственно.

Здание компании Shenzhen Energy
Здание компании Shenzhen Energy
Фотография © Laurian Ghinitoiu

Учитывая влажный и жаркий климат Шэньчжэня, важной задачей архитекторов было защитить интерьеры от солнечного жара. Выходом стал «складчатый» фасад, где панели из прозрачного стекла помещены под углом и потому отражают лучи, вместе с тем обеспечивая «пользователей» здания видами на мегаполис. Наиболее опасные направления защищены непроницаемыми панелями. Северный фасад, наименее подверженный перегреву, потому сделан самым открытым.
 
Здание компании Shenzhen Energy
Здание компании Shenzhen Energy
Фотография © Chao Zhang

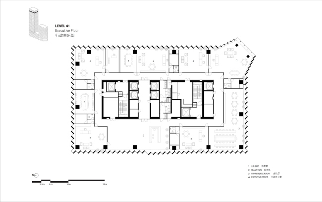
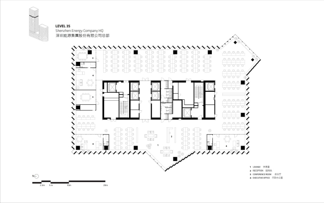
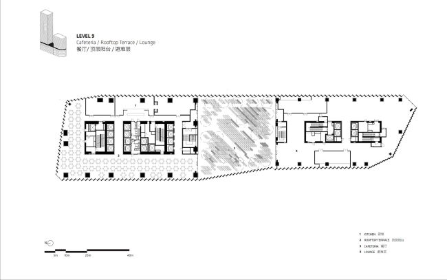
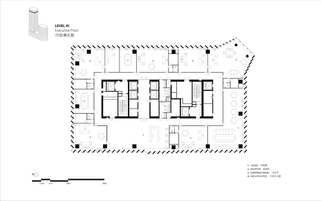
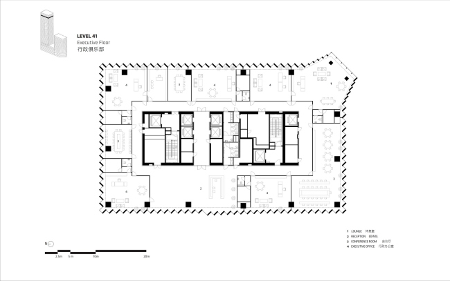
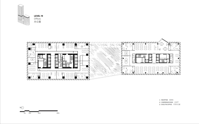
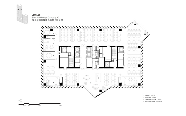
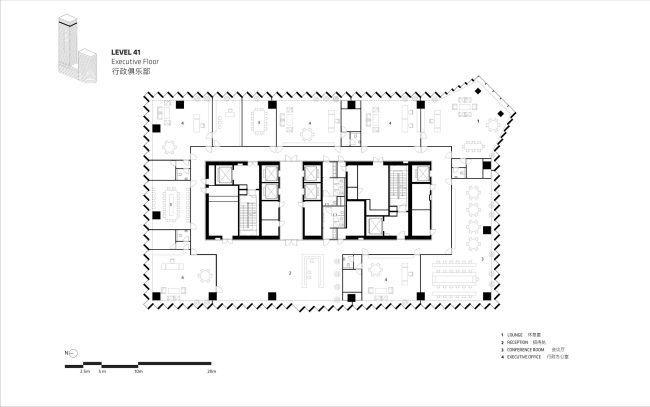
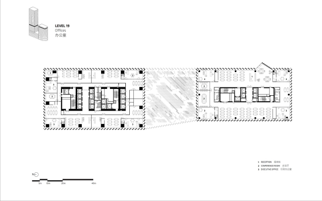
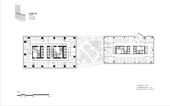
Оживляют облик башен «прорези», напоминающие раздвинутые рукой жалюзи. В этих участках фасадов, где особенно эффектна панорама города, помещены переговорные, клубные помещения для руководства и т.д. Подобным образом фасад раскрывается на уровне земли, образуя входы в сдаваемые в аренду коммерческие компартименты. Главный вход – для сотрудников Shenzhen Energy, которым достались верхние этажи, с видами, и компаний, снимающих офисы на нижних ярусах, – выделен снаружи плазой.
Здание компании Shenzhen Energy
Здание компании Shenzhen Energy
Фотография © Chao Zhang
Здание компании Shenzhen Energy
Здание компании Shenzhen Energy
Фотография © Chao Zhang
Здание компании Shenzhen Energy
Здание компании Shenzhen Energy
Фотография © Chao Zhang
Здание компании Shenzhen Energy
Здание компании Shenzhen Energy
Фотография © Chao Zhang
Здание компании Shenzhen Energy
Здание компании Shenzhen Energy
Фотография © Laurian Ghinitoiu
Здание компании Shenzhen Energy
Здание компании Shenzhen Energy
Фотография © Chao Zhang
Здание компании Shenzhen Energy
Здание компании Shenzhen Energy
Фотография © Chao Zhang
Здание компании Shenzhen Energy
Здание компании Shenzhen Energy
Фотография © Laurian Ghinitoiu
Здание компании Shenzhen Energy
Здание компании Shenzhen Energy
Фотография © Laurian Ghinitoiu
Здание компании Shenzhen Energy
Здание компании Shenzhen Energy
Фотография © Laurian Ghinitoiu
Здание компании Shenzhen Energy
Здание компании Shenzhen Energy
Фотография © Laurian Ghinitoiu
Здание компании Shenzhen Energy
Здание компании Shenzhen Energy
Фотография © Laurian Ghinitoiu
Здание компании Shenzhen Energy
Здание компании Shenzhen Energy
Фотография © Laurian Ghinitoiu
Здание компании Shenzhen Energy
Здание компании Shenzhen Energy
Фотография © Chao Zhang
Здание компании Shenzhen Energy
Здание компании Shenzhen Energy
Фотография © Chao Zhang
Здание компании Shenzhen Energy
Здание компании Shenzhen Energy
Фотография © Chao Zhang
Здание компании Shenzhen Energy
Здание компании Shenzhen Energy
Фотография © Chao Zhang
Здание компании Shenzhen Energy
Здание компании Shenzhen Energy
Фотография © Chao Zhang
Здание компании Shenzhen Energy
Здание компании Shenzhen Energy
Фотография © Chao Zhang
Здание компании Shenzhen Energy
Здание компании Shenzhen Energy
Фотография © Chao Zhang
Здание компании Shenzhen Energy
Здание компании Shenzhen Energy
Фотография © Chao Zhang
Здание компании Shenzhen Energy
Здание компании Shenzhen Energy
Фотография © Chao Zhang
Здание компании Shenzhen Energy
Здание компании Shenzhen Energy
© BIG
Здание компании Shenzhen Energy
Здание компании Shenzhen Energy
© BIG
Здание компании Shenzhen Energy
Здание компании Shenzhen Energy
© BIG
Здание компании Shenzhen Energy
Здание компании Shenzhen Energy
© BIG
Здание компании Shenzhen Energy
Здание компании Shenzhen Energy
© BIG
Здание компании Shenzhen Energy
Здание компании Shenzhen Energy
© BIG
Здание компании Shenzhen Energy
Здание компании Shenzhen Energy
© BIG
Здание компании Shenzhen Energy
Здание компании Shenzhen Energy
© BIG
Здание компании Shenzhen Energy
Здание компании Shenzhen Energy
© BIG
Здание компании Shenzhen Energy
Здание компании Shenzhen Energy
© BIG
Здание компании Shenzhen Energy
Здание компании Shenzhen Energy
© BIG
Здание компании Shenzhen Energy
Здание компании Shenzhen Energy
© BIG
Здание компании Shenzhen Energy © BIG
Здание компании Shenzhen Energy © BIG
© BIG