Размещено на портале Архи.ру (www.archi.ru)

08.08.2018

Спонтанность в центре столицы

Нина Фролова
Объект:
Площадь Скандербега – реконструкция
Адрес:
Албания, None, Тирана.
Мастерская:
51N4E

Главная площадь Тираны – имени Скандербега – после реконструкции по проекту бюро 51N4E отмечена премией как лучшее городское общественное пространство Европы.

Площадь Скандербега – реконструкция © Filip Dujardin
Площадь Скандербега – реконструкция © Filip Dujardin

Европейская премия за городское общественное пространство (European Prize for Urban Public Space) вручается в этом году уже в десятый раз. Ее основной организатор – Барселонский центр современной культуры (CCCB), который поддерживают видные европейские архитектурные учреждения – британский Архитектурный фонд, Венский архитектурный центр, Центр архитектуры и наследия в Париже, Музей архитектуры и дизайна в Любляне, а также 35 экспертов из разных стран, что обеспечивает нужный географический охват. В этот раз на премию претендовали 279 объектов из 179 городов; среди 32 стран, где расположены общественные пространства-претенденты, была и Россия. Премия не предусматривает денежного вознаграждения, выделяет общественное пространство с выраженными «европейскими» чертами и отмечает как авторов проекта, так и заказчиков – муниципальные власти. Награда уникальна тем, что рассматривает только общедоступные городские территории разного масштаба, в то время как другие ландшафтные премии присуждаются как частным, так и гражданским проектам.
 
Площадь Скандербега. Тирана, Албания. Реконструкция по проекту 51N4E. Фотография © Filip Dujardin
Площадь Скандербега. Тирана, Албания. Реконструкция по проекту 51N4E. Фотография © Filip Dujardin

Площадь Скандербега по существу была создана в межвоенный период: тогда Албания была захвачена фашистской Италией, которая вела на своих «заморских территориях» активную архитектурную и градостроительную деятельность. При социализме вокруг появился ряд парадных общественных зданий и статуя Иосифа Сталина, позже замененная на памятник национальному герою Албании, борцу с турецким владычеством Скандербегу. Общий размер площади – около десяти га, незастроенное пространство в ее центре занимает порядка шести гектаров. Архитекторы 51N4E выиграли конкурс на проект реконструкции важнейшего для Албании городского объекта в 2008, спустя несколько лет проект положили на полку, однако в 2015, при смене мэра, возобновили. Авторы переработали свой замысел с учетом изменившейся ситуации и реализовали его в 2017.
Площадь Скандербега – реконструкция © Filip Dujardin
Площадь Скандербега – реконструкция © Filip Dujardin

Из официозной территории, не предназначенной для «частной жизни» горожан площадь превратилась в важное рекреационное пространство, где возможна самая разная спонтанная активность ­– от утренних молитв до вечерних концертов. Вымощенная территория в центре не плоская, а имеет форму пирамиды с очень пологими гранями. Перепад высоты между центром и краями площади – два метра, что позволяет горожанам иначе, с более выигрышной позиции, взглянуть на парадные здания вокруг. По свободному пространству течет вода фонтанов, пестрое, напоминающее ковер мощение выполнено из камня, добытого в разных частях Албании.
Площадь Скандербега – реконструкция © Filip Dujardin
Площадь Скандербега – реконструкция © Filip Dujardin

Периметр площади, граница плотной застройки и свободного пространства, занят двенадцатью садами и легкой городской мебелью. Этот «зеленый пояс», «гостиная на открытом воздухе» также охватывает существовавшие там ранее парадные лестницы. Он создан с учетом нужд горожан и располагающихся вокруг общественных учреждений: их функции в той или иной степени «выплескиваются» здесь наружу.
Площадь Скандербега – реконструкция © Blerta Kambo
Площадь Скандербега – реконструкция © Blerta Kambo

Чтобы сделать уход за озеленением легче, для садов выбрали характерные для окрестностей Тираны растения. Для обеспечения площади Скандербега при реконструкции деревьями, кустарником и многолетниками, открыли три новых питомника, для нужд мощения возобновили работу несколько каменоломен, продолжающих функционировать и сегодня: в этих позитивных экономических событиях архитекторы и заказчики видят и свою заслугу.
Площадь Скандербега – реконструкция © Blerta Kambo
Площадь Скандербега – реконструкция © Blerta Kambo

Бюджет проекта составил 13 млн евро. Помимо общественного пространства с малыми архитектурными формами наверху, в проект вошел подземный гараж на 300 машин. Озеленение занимает 18,5 тыс. м2, мощение – 36,5 тыс. м2, гравий – 9,8 тыс. м2.
Площадь Скандербега – реконструкция © Filip Dujardin
Площадь Скандербега – реконструкция © Filip Dujardin
Площадь Скандербега – реконструкция © Filip Dujardin
Площадь Скандербега – реконструкция © Filip Dujardin
Площадь Скандербега – реконструкция © Filip Dujardin
Площадь Скандербега – реконструкция © Filip Dujardin
Площадь Скандербега – реконструкция © Blerta Kambo
Площадь Скандербега – реконструкция © Blerta Kambo
Площадь Скандербега – реконструкция © Filip Dujardin
Площадь Скандербега – реконструкция © Filip Dujardin
Площадь Скандербега – реконструкция © Blerta Kambo
Площадь Скандербега – реконструкция © Blerta Kambo
Площадь Скандербега – реконструкция © Blerta Kambo
Площадь Скандербега – реконструкция © Blerta Kambo
Площадь Скандербега – реконструкция © Filip Dujardin
Площадь Скандербега – реконструкция © Filip Dujardin
Площадь Скандербега – реконструкция © Blerta Kambo
Площадь Скандербега – реконструкция © Blerta Kambo
Площадь Скандербега до реконструкции. Фото предоставлено 51N4E
Площадь Скандербега до реконструкции. Фото предоставлено 51N4E
Площадь Скандербега – реконструкция © 51N4E
Площадь Скандербега – реконструкция © 51N4E
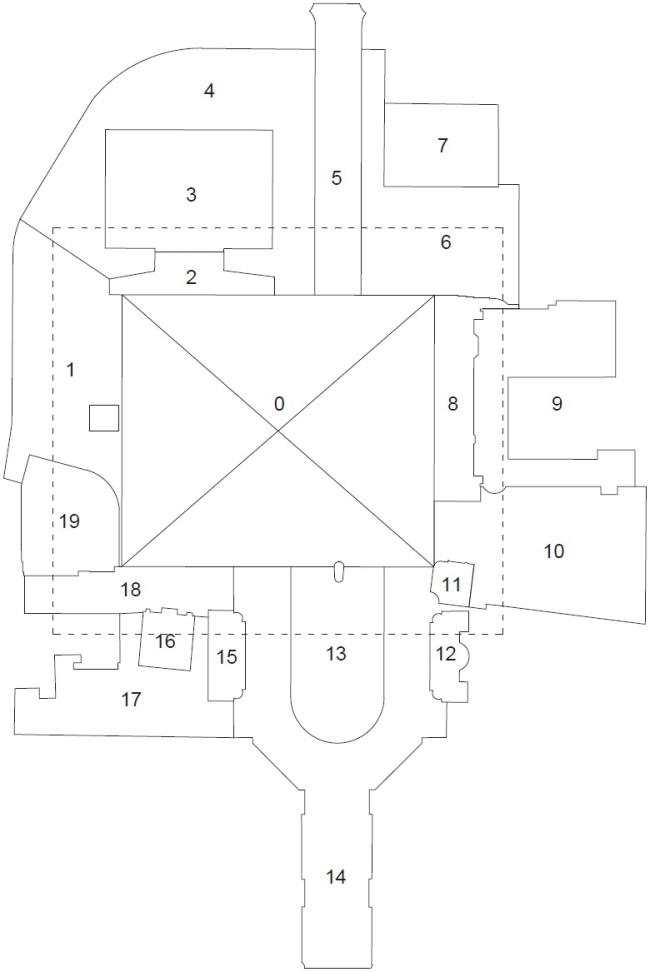
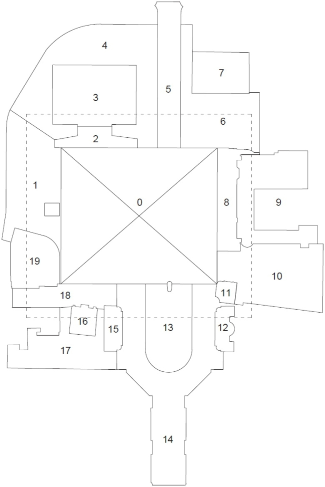
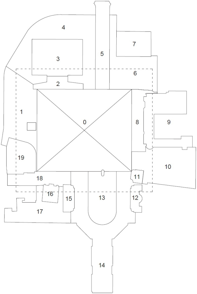
Площадь Скандербега – реконструкция. Схема планировки © 51N4E
Площадь Скандербега – реконструкция. Схема планировки © 51N4E
Площадь Скандербега – реконструкция © 51N4E
Площадь Скандербега – реконструкция © 51N4E
Площадь Скандербега – реконструкция © 51N4E
Площадь Скандербега – реконструкция © 51N4E
Площадь Скандербега – реконструкция © 51N4E
Площадь Скандербега – реконструкция © 51N4E
Площадь Скандербега – реконструкция © 51N4E
Площадь Скандербега – реконструкция © 51N4E
Площадь Скандербега – реконструкция. Схема фонтанов © 51N4E
Площадь Скандербега – реконструкция. Схема фонтанов © 51N4E
Площадь Скандербега – реконструкция. Схема фонтанов © 51N4E
Площадь Скандербега – реконструкция. Схема фонтанов © 51N4E
Площадь Скандербега – реконструкция. Схема мощения © 51N4E
Площадь Скандербега – реконструкция. Схема мощения © 51N4E