Размещено на портале Архи.ру (www.archi.ru)

01.08.2018

Полосатая керамика

Нина Фролова
Объект:
Башня Forma Itaim
Адрес:
Бразилия, None, Сан-Паулу.
Мастерская:
b720 Fermín Vázquez Arquitectos

Жилая башня Forma Itaim в Сан-Паулу по проекту бюро b720 Fermín Vázquez Arquitectos.

Башня Forma Itaim. Фото © Nelson Kon
Башня Forma Itaim. Фото © Nelson Kon

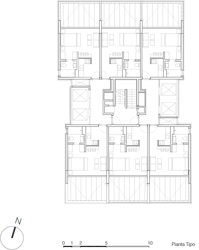
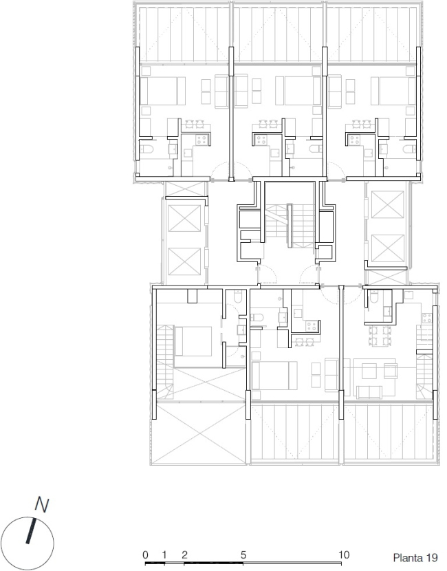
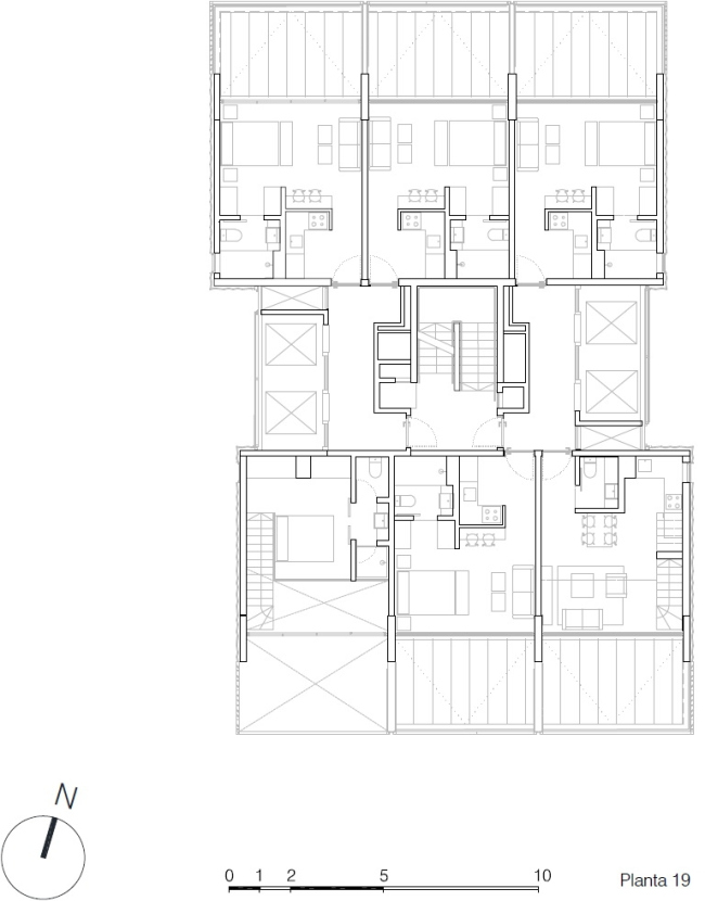
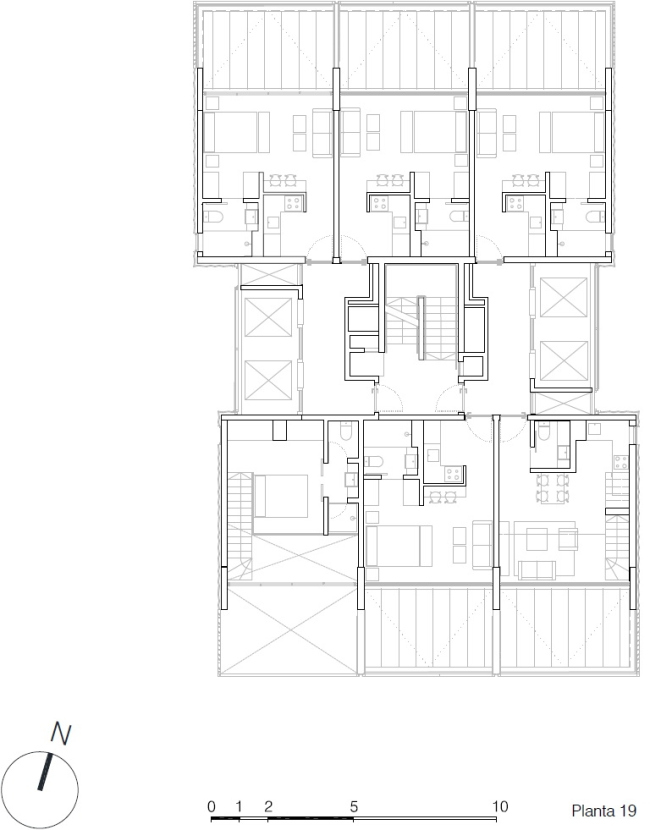
Дом на 123 квартиры Forma Itaim расположен в районе Итайм-Биби в Сан-Паулу – самом большом городе как южного, так и западного полушария Земли. Кроме того, этот мегаполис – экономическая столица Бразилии, и там постоянно растет спрос на жилье для верхней прослойки среднего класса. Под влиянием этой тенденции Итайм-Биби постепенно меняет свою одноэтажную застройку на безликие, чаще всего белые, жилые башни. Поэтому заказчик сразу поставил перед барселонскими архитекторами b720 условие: его 25-этажное здание должно быть цветным. Для фасадов выбрали глазурованные керамические панели, где разные сочетания полос отличают один ярус от другого.
 
Башня Forma Itaim. Фото © Nelson Kon
Башня Forma Itaim. Фото © Nelson Kon

Наиболее опасные с точки зрения солнечного излучения стороны, восточная и западная, сделаны почти глухими, туда выходят лишь шахты панорамных лифтов. С юга и севера помещены глубокие лоджии-террасы, защищающие квартиры за ними. Керамическая облицовка там превращается в подобие решетчатых экранов, которые спасают жильцов и от солнца, и от чужих взглядов.
 
Башня Forma Itaim. Фото © Nelson Kon
Башня Forma Itaim. Фото © Nelson Kon

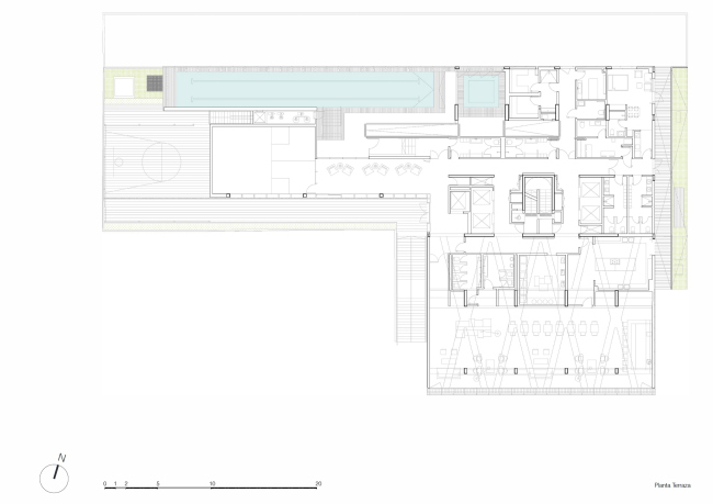
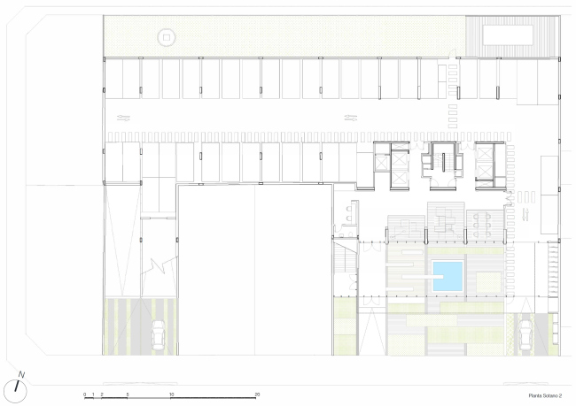
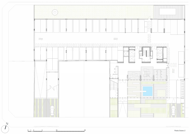
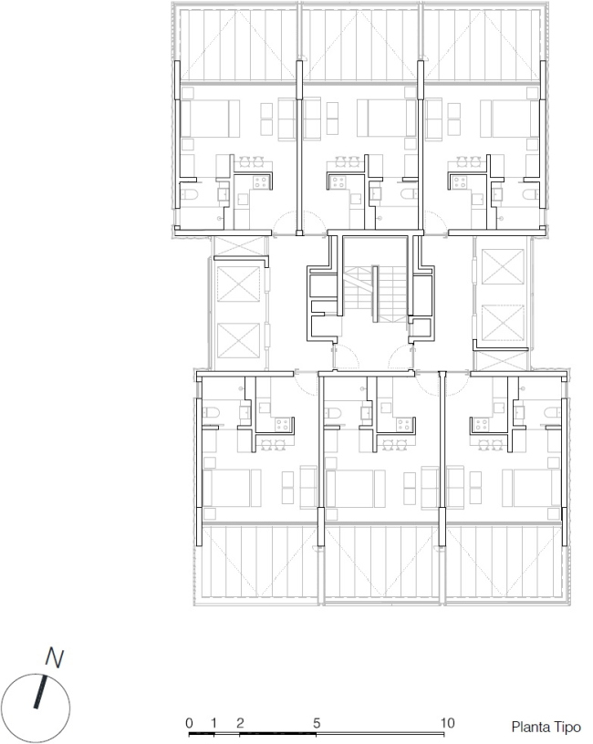
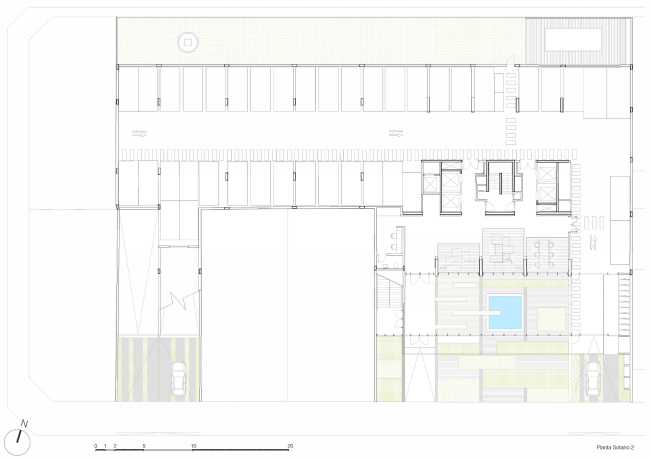
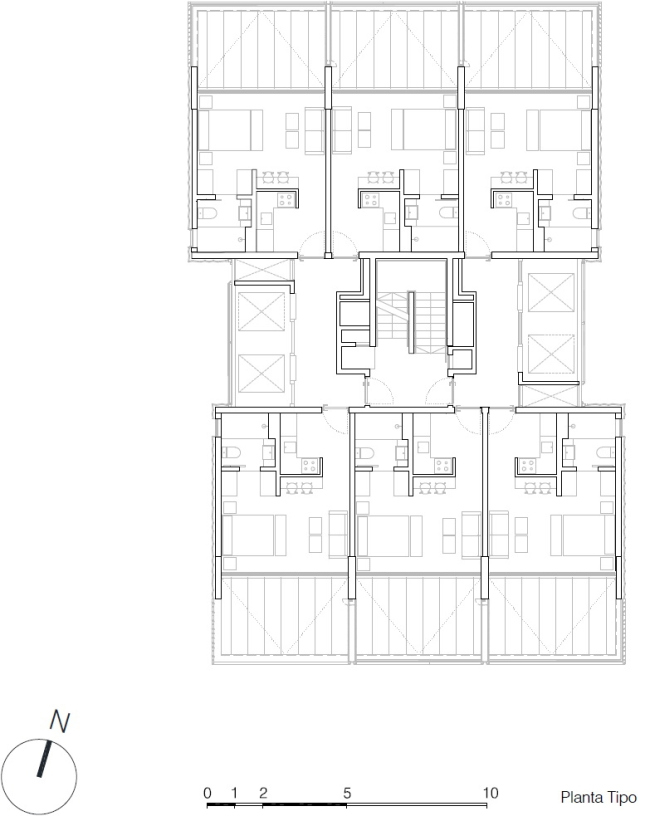
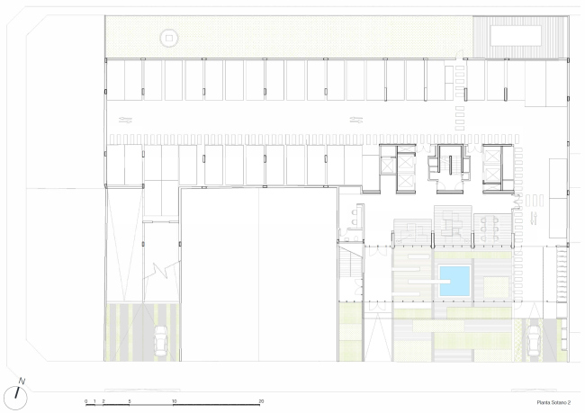
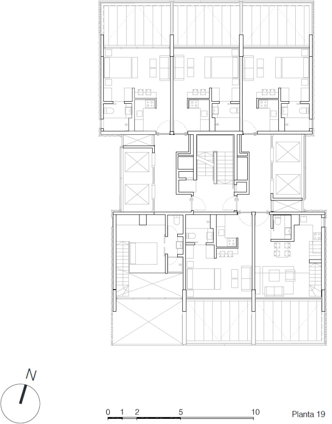
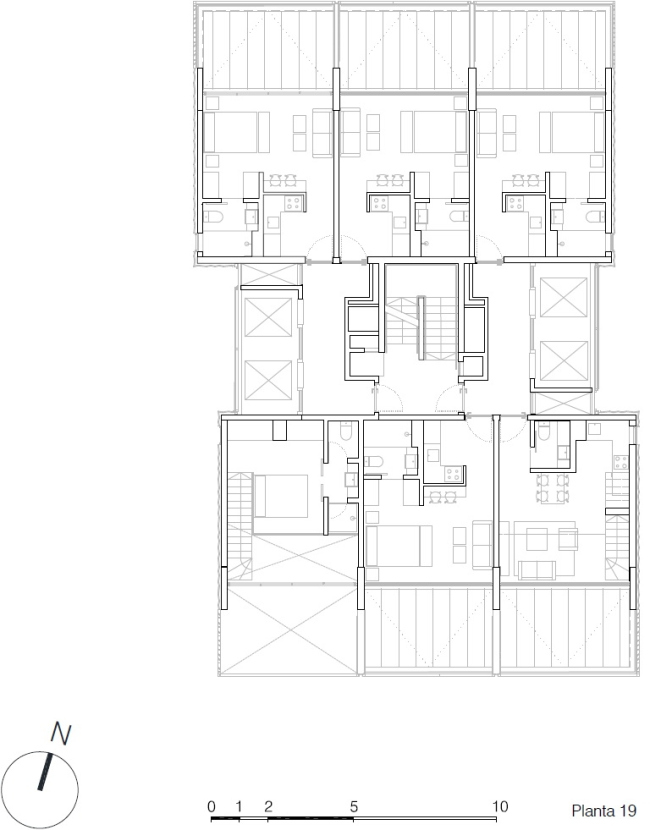
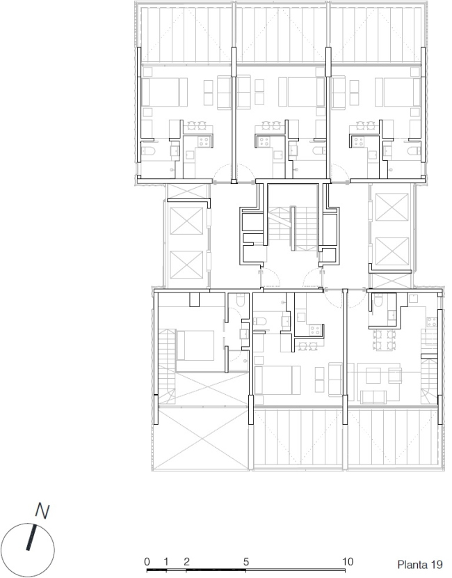
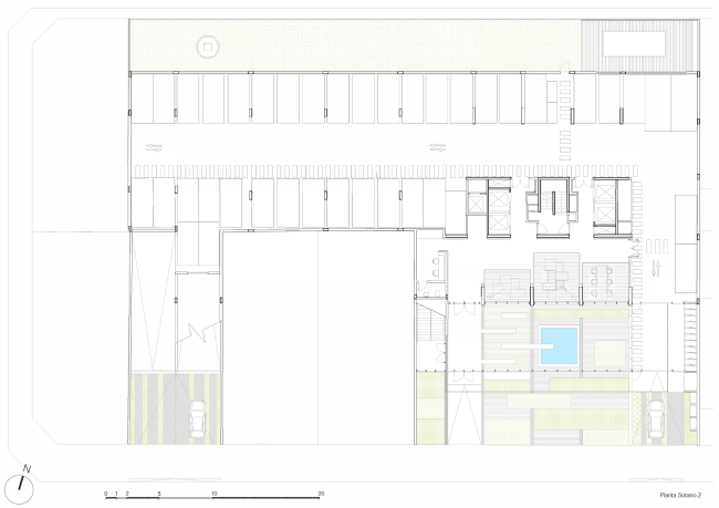
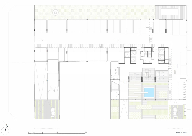
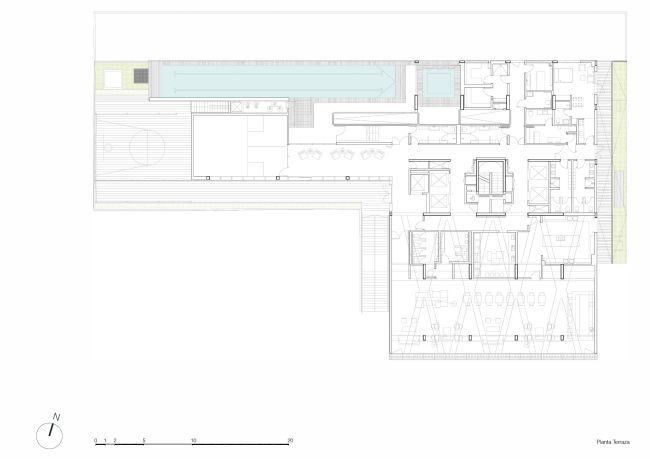
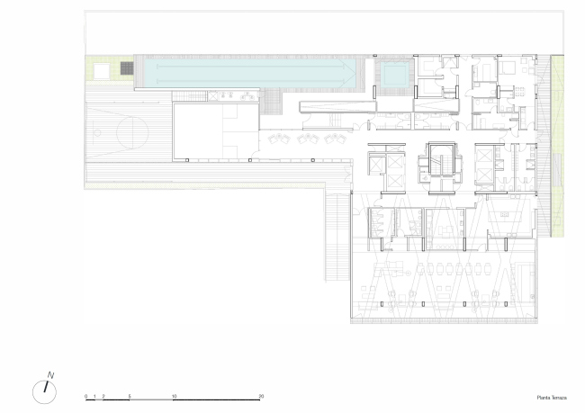
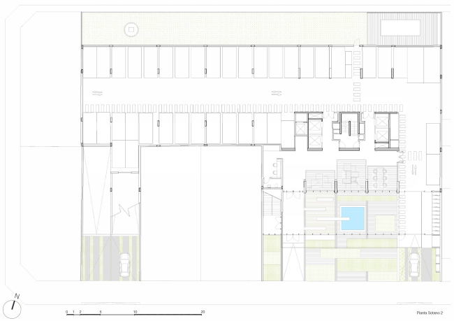
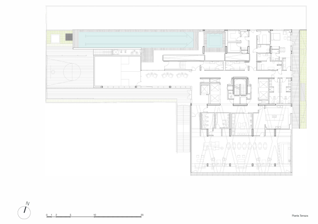
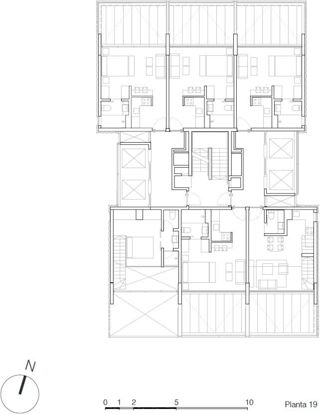
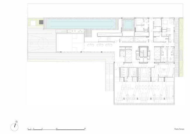
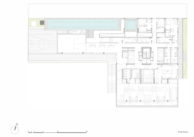
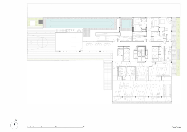
Вытянутый план башни – результат местных ограничений и правил, а также стремления авторов проекта к функциональности. Ниже помещены квартиры меньшей площади, выше они становятся просторнее. В базе башни, где широко использованы перфорированные панели, устроены наземный трехъярусный гараж, площадка для игры в сквош, крытый бассейн, ресторан, салон и т.д. Эксплуатируемая кровля озеленена, там есть открытый бассейн.
 
Башня Forma Itaim. Фото © Nelson Kon
Башня Forma Itaim. Фото © Nelson Kon
Башня Forma Itaim. Фото © Nelson Kon
Башня Forma Itaim. Фото © Nelson Kon
Башня Forma Itaim. Фото © Nelson Kon
Башня Forma Itaim. Фото © Nelson Kon
Башня Forma Itaim. Фото © Nelson Kon
Башня Forma Itaim. Фото © Nelson Kon
Башня Forma Itaim. Фото © Nelson Kon
Башня Forma Itaim. Фото © Nelson Kon
Башня Forma Itaim. Фото © Nelson Kon
Башня Forma Itaim. Фото © Nelson Kon
Башня Forma Itaim. Фото © Nelson Kon
Башня Forma Itaim. Фото © Nelson Kon
Башня Forma Itaim. Фото © Nelson Kon
Башня Forma Itaim. Фото © Nelson Kon
Башня Forma Itaim © b720 Fermín Vázquez Arquitectos
Башня Forma Itaim © b720 Fermín Vázquez Arquitectos
Башня Forma Itaim © b720 Fermín Vázquez Arquitectos
Башня Forma Itaim © b720 Fermín Vázquez Arquitectos
Башня Forma Itaim © b720 Fermín Vázquez Arquitectos
Башня Forma Itaim © b720 Fermín Vázquez Arquitectos
Башня Forma Itaim © b720 Fermín Vázquez Arquitectos
Башня Forma Itaim © b720 Fermín Vázquez Arquitectos
Башня Forma Itaim © b720 Fermín Vázquez Arquitectos
Башня Forma Itaim © b720 Fermín Vázquez Arquitectos
Башня Forma Itaim © b720 Fermín Vázquez Arquitectos
Башня Forma Itaim © b720 Fermín Vázquez Arquitectos
Башня Forma Itaim © b720 Fermín Vázquez Arquitectos
Башня Forma Itaim © b720 Fermín Vázquez Arquitectos
Башня Forma Itaim © b720 Fermín Vázquez Arquitectos
Башня Forma Itaim © b720 Fermín Vázquez Arquitectos
Башня Forma Itaim © b720 Fermín Vázquez Arquitectos
Башня Forma Itaim © b720 Fermín Vázquez Arquitectos
Башня Forma Itaim © b720 Fermín Vázquez Arquitectos
Башня Forma Itaim © b720 Fermín Vázquez Arquitectos
Башня Forma Itaim © b720 Fermín Vázquez Arquitectos
Башня Forma Itaim © b720 Fermín Vázquez Arquitectos
Башня Forma Itaim © b720 Fermín Vázquez Arquitectos
Башня Forma Itaim © b720 Fermín Vázquez Arquitectos