Размещено на портале Архи.ру (www.archi.ru)

26.07.2018

Красный динозавр

Василий Бабуров, Нина Фролова

Миланский комплекс на 444 квартиры «Монте Амиата» по проекту Карло Аймонино и Альдо Росси, задуманный в конце 1960-х как прогрессивное социальное жилье, но ставший домом для среднего класса – в фотографиях Василия Бабурова.

Комплекс «Монте Амиата». Корпуса Карло Аймонино. Фото © Василий Бабуров
Комплекс «Монте Амиата». Корпуса Карло Аймонино. Фото © Василий Бабуров

Усилившаяся после Второй мировой войны урбанизация сильней всего ощущалась на индустриально развитом севере Италии: в Милан и другие крупные города массово переезжали как жители окрестных деревень, так и мигранты с юга страны. Чтобы расселять не обладавших особыми накоплениями «новых горожан», на бывших сельскохозяйственных угодьях вдали от центра создавалась жилая застройка по принципу городов-спутников. Так, в середине 1950-х Пьеро Боттони разработал планировку района Галларатезе примерно в семи километрах от исторического ядра Милана. План реализовали в два этапа, и «Галларатезе II» занялись в 1964. В отведенных ему границах располагался частный участок в 12 гектаров, приобретенный еще в 1944 как аграрный ресурс компанией «Монте Амиата». В ходе переговоров с городскими властями было решено, что компания выступит на своей земле как застройщик социального жилья, которое планировалось в Галларатезе муниципалитетом.
 
Комплекс «Монте Амиата». Изображения © TerraMetrics, 2018. Картографические данные © Google, 2018
Комплекс «Монте Амиата». Изображения © TerraMetrics, 2018. Картографические данные © Google, 2018

В 1967 «Монте Амиата» поручила разработку проекта бюро AYDE во главе с Карло Аймонино, который в 1969 пригласил к сотрудничеству Альдо Росси, своего коллегу по венецианскому архитектурному институту IUAV. Задачей было создать комплекс на две с половиной тысячи человек. К тому моменту вокруг по разреженному модернистскому плану были построены или строились жилые башни и пластины. Архитекторы выбрали кардинально другой подход: их здания и пространства между ними были сложны и многообразны. Точнее, такой подход выбрал Аймонино, а Росси сравнил свой корпус с клинком, прорезающим чащу. Ему принадлежит и более причудливое сравнение: «Этот красный динозавр с жестким и длинным белым хвостом теперь ужасно возвышается над равниной». Динозавр – это постройки Аймонино, его хвост – дом Росси.
 
Комплекс «Монте Амиата». Изображение с сайта www.urbanistica.unipr.it
Комплекс «Монте Амиата». Изображение с сайта www.urbanistica.unipr.it
Комплекс «Монте Амиата». Изображение с сайта www.urbanistica.unipr.it
Комплекс «Монте Амиата». Изображение с сайта www.urbanistica.unipr.it
Комплекс «Монте Амиата». Изображение с сайта www.urbanistica.unipr.it
Комплекс «Монте Амиата». Изображение с сайта www.urbanistica.unipr.it
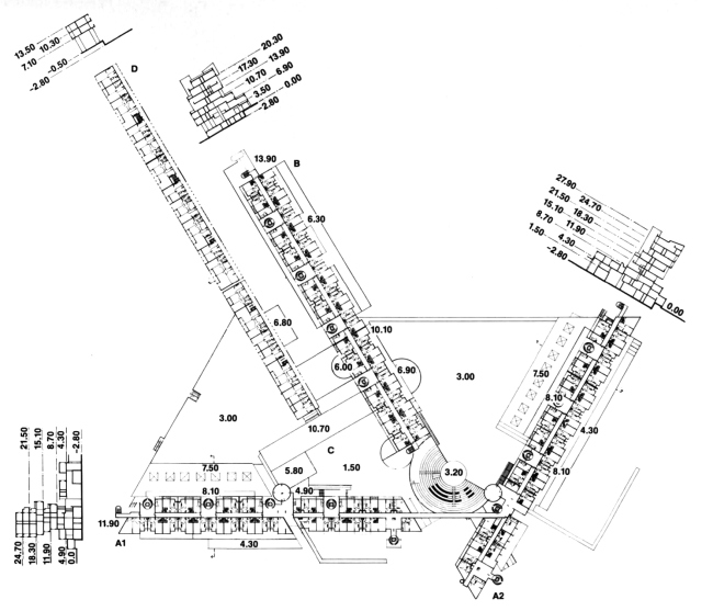
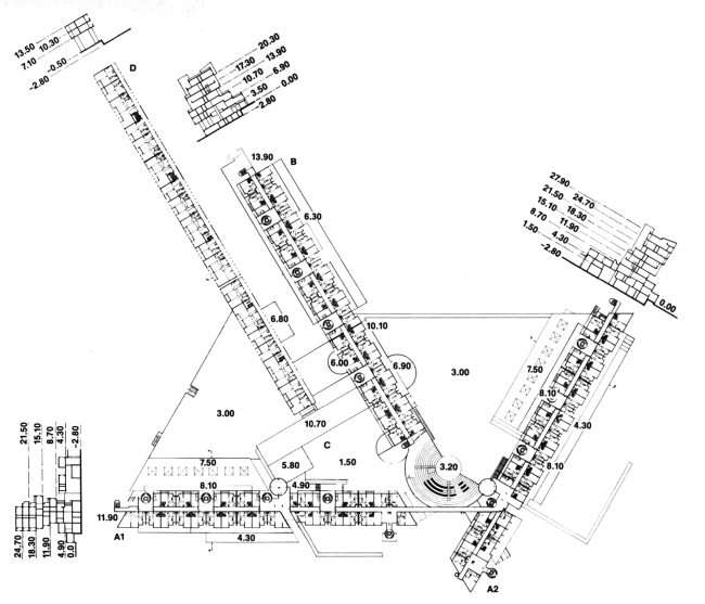
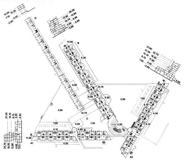
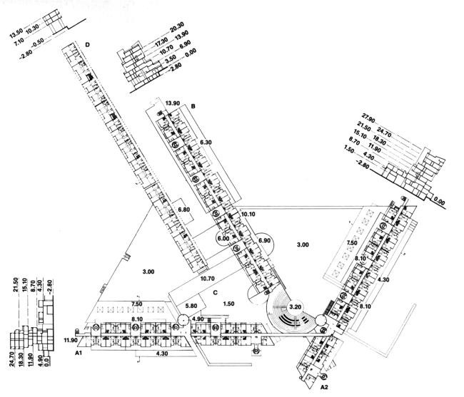
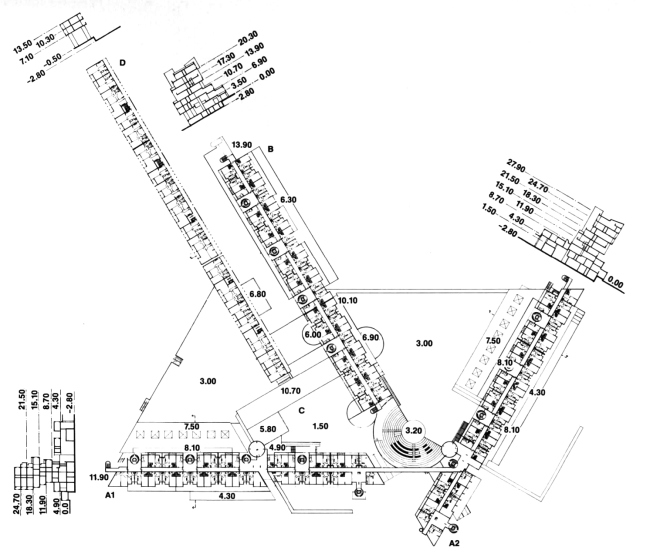
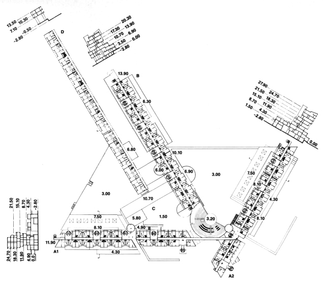
Комплекс «Монте Амиата». План нижних уровней. Изображение с сайта www.urbanistica.unipr.it
Комплекс «Монте Амиата». План нижних уровней. Изображение с сайта www.urbanistica.unipr.it
Комплекс «Монте Амиата». План верхних уровней. Изображение с сайта www.urbanistica.unipr.it
Комплекс «Монте Амиата». План верхних уровней. Изображение с сайта www.urbanistica.unipr.it

Карло Аймонино возвел в «Монте Амиато» (комплекс получил название по своему застройщику) четыре корпуса, он же отвечал за их расположение и за структуру общественных пространств. Три 150-метровых в длину жилых здания расходятся от открытого амфитеатра, также играющего роль «вестибюля»: они как будто подцеплены к нему по принципу шарнира. Между ними образованы две треугольные площади. Еще один корпус, всего на 13 квартир, отходит от центрального как мост. Все эти сооружения и общественные пространства окрашены в сдержанный красный тон, отсылающий в том числе к кирпичу рынка Траяна в Риме, одного из источников вдохновения для архитекторов. Немалое влияние оказала и марсельская жилая единица» Ле Корбюзье, от нее Аймонино взял, к примеру, схему расположения двухъярусных квартир. Его корпуса отличает очень большое разнообразие размеров и планировок жилья – от совсем маленьких квартир для одиноких до упомянутых дуплексов и квартир с патио, от однокомнатных до пятикомнатных жилищ. Также здания разнообразны формально: объемы из стеклоблоков сочетаются с цилиндрами узлов вертикальной циркуляции, галереями, ажурными оградами балконов. Цвет фасадов дополняют ярко-красные оконные рамы, желтые «транзитные» компоненты, использована керамическая плитка – и так далее.
 
Комплекс «Монте Амиата». Корпуса Карло Аймонино. Фото © Василий Бабуров
Комплекс «Монте Амиата». Корпуса Карло Аймонино. Фото © Василий Бабуров
Комплекс «Монте Амиата». Корпуса Карло Аймонино. Фото © Василий Бабуров
Комплекс «Монте Амиата». Корпуса Карло Аймонино. Фото © Василий Бабуров
Комплекс «Монте Амиата». Корпуса Карло Аймонино. Фото © Василий Бабуров
Комплекс «Монте Амиата». Корпуса Карло Аймонино. Фото © Василий Бабуров
Комплекс «Монте Амиата». Корпус Альдо Росси. Фото © Василий Бабуров
Комплекс «Монте Амиата». Корпус Альдо Росси. Фото © Василий Бабуров

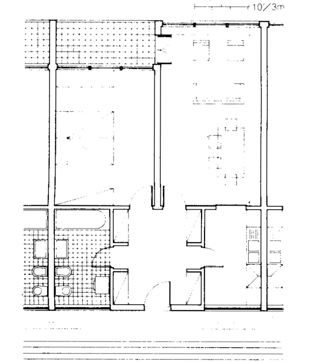
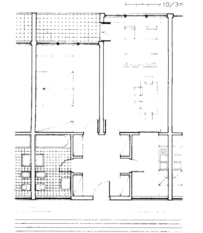
Альдо Росси, напротив, спроектировал формально редуцированное сооружение: его белый корпус длиной более 180 метров поднят над землей с помощью галереи из опор-пластин, отсылающей и к миланским доходным домам, включая постройки межвоенного периода, и к монастырю Ла-Туретт. Здесь гораздо меньше разнообразия и в планировках квартир, что позволило некоторым исследователям предполагать, что архитектор вытесняет обитателей из неудобных жилищ в общественные пространства «Монте Амиата». Критика вырастает также из сравнения дома для живых с домом для мертвых – некрополем, которое на разных уровнях справедливо для творчества Росси.
 
Комплекс «Монте Амиата». Корпуса Карло Аймонино. Фото © Василий Бабуров
Комплекс «Монте Амиата». Корпуса Карло Аймонино. Фото © Василий Бабуров
Комплекс «Монте Амиата». Корпуса Карло Аймонино. Фото © Василий Бабуров
Комплекс «Монте Амиата». Корпуса Карло Аймонино. Фото © Василий Бабуров
Комплекс «Монте Амиата». Корпуса Карло Аймонино. Фото © Василий Бабуров
Комплекс «Монте Амиата». Корпуса Карло Аймонино. Фото © Василий Бабуров
Комплекс «Монте Амиата». Корпуса Карло Аймонино. Фото © Василий Бабуров
Комплекс «Монте Амиата». Корпуса Карло Аймонино. Фото © Василий Бабуров

Обширные и разнообразные общественные пространства должны были сочетаться, как в настоящем городе, с коммерческой активностью: на первых этажах жилых корпусов были запланированы магазины и офисы, но большинство этих помещений так и осталось пустым, в том числе из-за перемен в судьбе «Монте Амиата».
 
Комплекс «Монте Амиата». Корпуса Карло Аймонино. Фото © Василий Бабуров
Комплекс «Монте Амиата». Корпуса Карло Аймонино. Фото © Василий Бабуров
Комплекс «Монте Амиата». Корпуса Карло Аймонино. Фото © Василий Бабуров
Комплекс «Монте Амиата». Корпуса Карло Аймонино. Фото © Василий Бабуров
Комплекс «Монте Амиата». Корпуса Карло Аймонино. Фото © Василий Бабуров
Комплекс «Монте Амиата». Корпуса Карло Аймонино. Фото © Василий Бабуров
Комплекс «Монте Амиата». Корпуса Карло Аймонино. Фото © Василий Бабуров
Комплекс «Монте Амиата». Корпуса Карло Аймонино. Фото © Василий Бабуров
Комплекс «Монте Амиата». Корпуса Карло Аймонино. Фото © Василий Бабуров
Комплекс «Монте Амиата». Корпуса Карло Аймонино. Фото © Василий Бабуров

Аймонино и Росси придерживались «левых» убеждений, поэтому в их представлении жилье для народа должно было стать насыщенной, разнообразной, качественной городской средой. Проект комплекса резко отличается от окружающей типовой застройки, так как содержит в себе критику «бюджетного» подхода миланских властей и фонда жилищного строительства Gescal (наследника INA-Casa), а также модернизма в версии CIAM. Однако намерения архитекторов, как часто бывает, вошли в противоречие с социально-экономической реальностью. После завершения строительства в 1972 компания «Монте Амиата» попыталась продать комплекс муниципалитету, переговоры о конкретной форме реализации квартир затянулись, а в 1974 к обычным проблемам новых районов – неразвитой инфраструктуре, слабой транспортной системе при удаленности от центра и т.д. – добавился получивший широкую огласку эпизод «оккупации» пустующих корпусов студентами и рабочими коммунистических взглядов. Их удалили с помощью полиции, и в том же году «Монте Амиата» все же стали заселять (не без труда: спрос оставался невелик), однако он превратился из социального в обычное жилье, был обнесен оградой и стал, по сути, противоположностью замыслу своих создателей.
 
Комплекс «Монте Амиата». Корпуса Карло Аймонино. Фото © Василий Бабуров
Комплекс «Монте Амиата». Корпуса Карло Аймонино. Фото © Василий Бабуров
Комплекс «Монте Амиата». Корпуса Карло Аймонино. Фото © Василий Бабуров
Комплекс «Монте Амиата». Корпуса Карло Аймонино. Фото © Василий Бабуров
Комплекс «Монте Амиата». Корпуса Карло Аймонино. Фото © Василий Бабуров
Комплекс «Монте Амиата». Корпуса Карло Аймонино. Фото © Василий Бабуров
Комплекс «Монте Амиата». Корпуса Карло Аймонино. Фото © Василий Бабуров
Комплекс «Монте Амиата». Корпуса Карло Аймонино. Фото © Василий Бабуров

С течением десятилетий в Галларатезе появились необходимые торговые и общественные учреждения, туда провели метро, новый толчок развития может дать близость территории Экспо-2015. «Монте Амиата» сейчас более чем благополучен и ухожен, там живет порядка 1500 человек; в городской газете, к примеру, сообщается об открытии там силами домкома библиотеки «для своих», а повышенный интерес к его зданиям любителей архитектуры со всего мира сдерживается ради удобства жильцов разного рода ограничительными мерами.
Комплекс «Монте Амиата». Корпуса Карло Аймонино. Фото © Василий Бабуров
Комплекс «Монте Амиата». Корпуса Карло Аймонино. Фото © Василий Бабуров
Комплекс «Монте Амиата». Корпуса Карло Аймонино. Фото © Василий Бабуров
Комплекс «Монте Амиата». Корпуса Карло Аймонино. Фото © Василий Бабуров
Комплекс «Монте Амиата». Корпуса Карло Аймонино. Фото © Василий Бабуров
Комплекс «Монте Амиата». Корпуса Карло Аймонино. Фото © Василий Бабуров
Комплекс «Монте Амиата». Корпуса Карло Аймонино. Фото © Василий Бабуров
Комплекс «Монте Амиата». Корпуса Карло Аймонино. Фото © Василий Бабуров
Комплекс «Монте Амиата». Корпуса Карло Аймонино. Фото © Василий Бабуров
Комплекс «Монте Амиата». Корпуса Карло Аймонино. Фото © Василий Бабуров
Комплекс «Монте Амиата». Корпуса Карло Аймонино. Фото © Василий Бабуров
Комплекс «Монте Амиата». Корпуса Карло Аймонино. Фото © Василий Бабуров
Комплекс «Монте Амиата». Корпуса Карло Аймонино. Фото © Василий Бабуров
Комплекс «Монте Амиата». Корпуса Карло Аймонино. Фото © Василий Бабуров
Комплекс «Монте Амиата». Корпуса Карло Аймонино. Фото © Василий Бабуров
Комплекс «Монте Амиата». Корпуса Карло Аймонино. Фото © Василий Бабуров
Комплекс «Монте Амиата». Корпуса Карло Аймонино. Фото © Василий Бабуров
Комплекс «Монте Амиата». Корпуса Карло Аймонино. Фото © Василий Бабуров
Комплекс «Монте Амиата». Корпуса Карло Аймонино. Фото © Василий Бабуров
Комплекс «Монте Амиата». Корпуса Карло Аймонино. Фото © Василий Бабуров
Комплекс «Монте Амиата». Корпуса Карло Аймонино. Фото © Василий Бабуров
Комплекс «Монте Амиата». Корпуса Карло Аймонино. Фото © Василий Бабуров
Комплекс «Монте Амиата». Корпуса Карло Аймонино. Фото © Василий Бабуров
Комплекс «Монте Амиата». Корпуса Карло Аймонино. Фото © Василий Бабуров
Комплекс «Монте Амиата». Корпуса Карло Аймонино. Фото © Василий Бабуров
Комплекс «Монте Амиата». Корпуса Карло Аймонино. Фото © Василий Бабуров
Комплекс «Монте Амиата». Корпуса Карло Аймонино. Фото © Василий Бабуров
Комплекс «Монте Амиата». Корпуса Карло Аймонино. Фото © Василий Бабуров
Комплекс «Монте Амиата». Корпуса Карло Аймонино. Фото © Василий Бабуров
Комплекс «Монте Амиата». Корпуса Карло Аймонино. Фото © Василий Бабуров
Комплекс «Монте Амиата». Корпуса Карло Аймонино. Фото © Василий Бабуров
Комплекс «Монте Амиата». Корпуса Карло Аймонино. Фото © Василий Бабуров
Комплекс «Монте Амиата». Корпуса Карло Аймонино. Фото © Василий Бабуров
Комплекс «Монте Амиата». Корпуса Карло Аймонино. Фото © Василий Бабуров
Комплекс «Монте Амиата». Корпуса Карло Аймонино. Фото © Василий Бабуров
Комплекс «Монте Амиата». Корпуса Карло Аймонино. Фото © Василий Бабуров
Комплекс «Монте Амиата». Корпуса Карло Аймонино. Фото © Василий Бабуров
Комплекс «Монте Амиата». Корпуса Карло Аймонино. Фото © Василий Бабуров
Комплекс «Монте Амиата». Корпуса Карло Аймонино. Фото © Василий Бабуров
Комплекс «Монте Амиата». Корпуса Карло Аймонино. Фото © Василий Бабуров
Комплекс «Монте Амиата». Корпус Альдо Росси. Фото © Василий Бабуров
Комплекс «Монте Амиата». Корпус Альдо Росси. Фото © Василий Бабуров
Комплекс «Монте Амиата». Корпус Альдо Росси. Фото © Василий Бабуров
Комплекс «Монте Амиата». Корпус Альдо Росси. Фото © Василий Бабуров
Комплекс «Монте Амиата». Корпус Альдо Росси. Фото © Василий Бабуров
Комплекс «Монте Амиата». Корпус Альдо Росси. Фото © Василий Бабуров
Комплекс «Монте Амиата». Корпус Альдо Росси. Фото © Василий Бабуров
Комплекс «Монте Амиата». Корпус Альдо Росси. Фото © Василий Бабуров
Комплекс «Монте Амиата». Корпус Альдо Росси. Фото © Василий Бабуров
Комплекс «Монте Амиата». Корпус Альдо Росси. Фото © Василий Бабуров
Комплекс «Монте Амиата». Корпус Альдо Росси. Фото © Василий Бабуров
Комплекс «Монте Амиата». Корпус Альдо Росси. Фото © Василий Бабуров
Комплекс «Монте Амиата». Корпус Альдо Росси. Фото © Василий Бабуров
Комплекс «Монте Амиата». Корпус Альдо Росси. Фото © Василий Бабуров
Комплекс «Монте Амиата». Корпус Альдо Росси. Фото © Василий Бабуров
Комплекс «Монте Амиата». Корпус Альдо Росси. Фото © Василий Бабуров
Комплекс «Монте Амиата». Корпус Альдо Росси. Фото © Василий Бабуров
Комплекс «Монте Амиата». Корпус Альдо Росси. Фото © Василий Бабуров
Комплекс «Монте Амиата». Корпус Альдо Росси. Фото © Василий Бабуров
Комплекс «Монте Амиата». Корпус Альдо Росси. Фото © Василий Бабуров
Комплекс «Монте Амиата». Корпус Альдо Росси. Фото © Василий Бабуров
Комплекс «Монте Амиата». Корпус Альдо Росси. Фото © Василий Бабуров
Комплекс «Монте Амиата». Корпус Альдо Росси. Фото © Василий Бабуров
Комплекс «Монте Амиата». Корпус Альдо Росси. Фото © Василий Бабуров
Комплекс «Монте Амиата». Корпус Альдо Росси. Фото © Василий Бабуров
Комплекс «Монте Амиата». Корпус Альдо Росси. Фото © Василий Бабуров
Комплекс «Монте Амиата». Корпус Альдо Росси. Фото © Василий Бабуров
Комплекс «Монте Амиата». Корпус Альдо Росси. Фото © Василий Бабуров
Комплекс «Монте Амиата». Корпус Альдо Росси. Фото © Василий Бабуров
Комплекс «Монте Амиата». Корпус Альдо Росси. Фото © Василий Бабуров
Комплекс «Монте Амиата». Корпус Альдо Росси. Фото © Василий Бабуров
Комплекс «Монте Амиата». Корпус Альдо Росси. Фото © Василий Бабуров
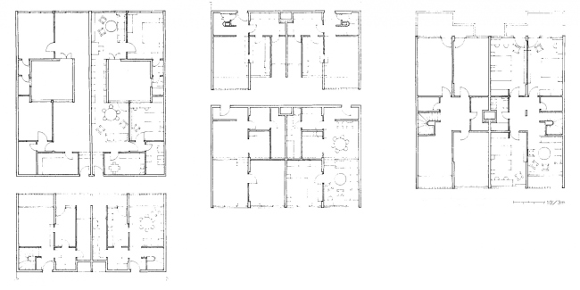
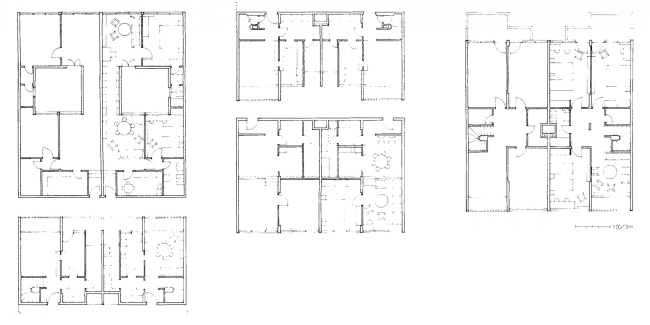
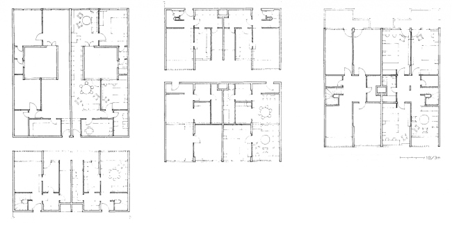
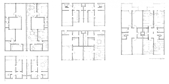
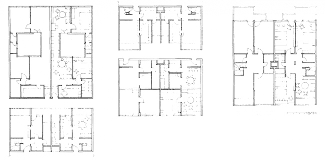
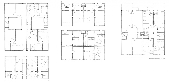
Комплекс «Монте Амиата». Планы квартир в 
корпусах Карло Аймонино. Изображение с сайта www.urbanistica.unipr.it
Комплекс «Монте Амиата». Планы квартир в корпусах Карло Аймонино. Изображение с сайта www.urbanistica.unipr.it
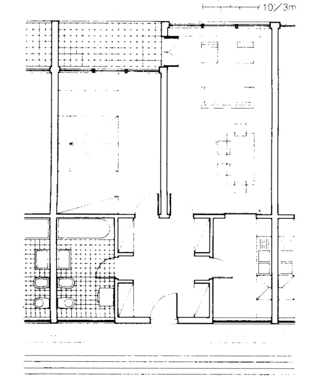
Комплекс «Монте Амиата». План квартиры в корпусе Альдо Росси. Изображение с сайта www.urbanistica.unipr.it
Комплекс «Монте Амиата». План квартиры в корпусе Альдо Росси. Изображение с сайта www.urbanistica.unipr.it
Комплекс «Монте Амиата». Изображение с сайта www.urbanistica.unipr.it
Комплекс «Монте Амиата». Изображение с сайта www.urbanistica.unipr.it
Комплекс «Монте Амиата». Изображение с сайта www.urbanistica.unipr.it
Комплекс «Монте Амиата». Изображение с сайта www.urbanistica.unipr.it