Размещено на портале Архи.ру (www.archi.ru)

17.07.2018

Непостоянство памяти

Нина Фролова
Объект:
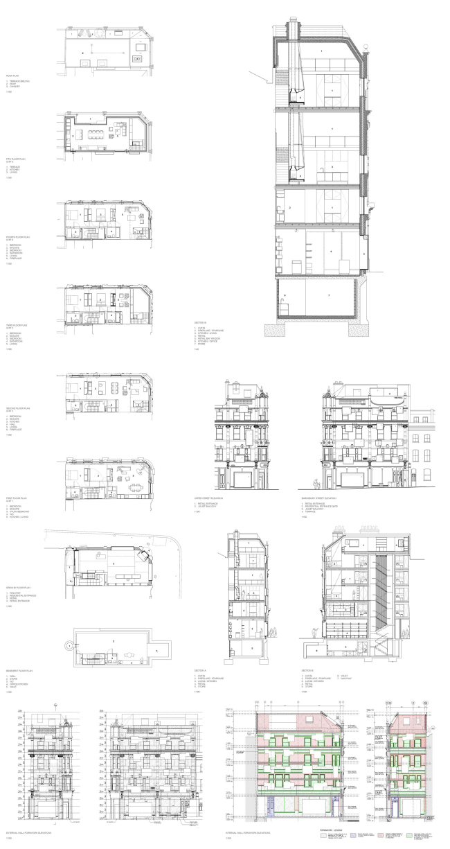
Многоквартирный дом с магазином 168 Upper Street
Адрес:
Великобритания, None, Лондон.

Архитекторы Amin Taha + Groupwork возвели в центре Лондона на месте разрушенной в войну постройки XIX века ее «слепок» – жилой дом.

Многоквартирный дом с магазином 168 Upper Street. Фото: Tim Soar. Предоставлено Amin Taha + Groupwork
Многоквартирный дом с магазином 168 Upper Street. Фото: Tim Soar. Предоставлено Amin Taha + Groupwork

Дом по адресу Аппер-стрит, 168 – это угловой «павильон» большого комплекса в формах английского барокко, который был построен в конце XIX века. Несмотря на то, что комплекс состоял из серии таунхаусов, предназначенных для жилья и устройства лавок на первом этаже, он получил ясную симметричную композицию. Поэтому, когда при бомбардировке в ходе Второй мировой войны его угол был сильно разрушен, а позже – снесен, его отсутствие было очень заметным.
 
Многоквартирный дом с магазином 168 Upper Street. Фото: Tim Soar. Предоставлено Amin Taha + Groupwork
Многоквартирный дом с магазином 168 Upper Street. Фото: Tim Soar. Предоставлено Amin Taha + Groupwork
Многоквартирный дом с магазином 168 Upper Street © Amin Taha + Groupwork
Многоквартирный дом с магазином 168 Upper Street © Amin Taha + Groupwork
Многоквартирный дом с магазином 168 Upper Street. Фото: Tim Soar. Предоставлено Amin Taha + Groupwork
Многоквартирный дом с магазином 168 Upper Street. Фото: Tim Soar. Предоставлено Amin Taha + Groupwork

Восстановить симметрию собрались лишь в наши дни: заказчик, розничный продавец мебели и объектов дизайна Aria, купил участок в 2012 году и провел конкурс на оптимальный вариант проекта. В результате, жилой дом на три квартиры с магазином Aria на первом этаже был построен согласно замыслу бюро Амина Тахи.
 
Многоквартирный дом с магазином 168 Upper Street. Фото: Tim Soar. Предоставлено Amin Taha + Groupwork
Многоквартирный дом с магазином 168 Upper Street. Фото: Tim Soar. Предоставлено Amin Taha + Groupwork
Многоквартирный дом с магазином 168 Upper Street. Фото: Tim Soar. Предоставлено Amin Taha + Groupwork
Многоквартирный дом с магазином 168 Upper Street. Фото: Tim Soar. Предоставлено Amin Taha + Groupwork
Многоквартирный дом с магазином 168 Upper Street. Фото: Tim Soar. Предоставлено Amin Taha + Groupwork
Многоквартирный дом с магазином 168 Upper Street. Фото: Tim Soar. Предоставлено Amin Taha + Groupwork

Архитекторы не хотели ни дословно копировать прошлое, ни развивать язык «неоклассики». Однако, учитывая положение участка, никак не откликнуться на его роль в квартале было невозможно. Выход подсказали опыты Эдуара Франсуа в Париже и Diener & Diener в Берлине, а также ряд произведений современного искусства, построенные на сочетании объемной копии утраченного сооружения с современным материалом, иным расположением оконных проемов и т.д.
 
Многоквартирный дом с магазином 168 Upper Street. Фото: Tim Soar. Предоставлено Amin Taha + Groupwork
Многоквартирный дом с магазином 168 Upper Street. Фото: Tim Soar. Предоставлено Amin Taha + Groupwork
Многоквартирный дом с магазином 168 Upper Street. Фото: Tim Soar. Предоставлено Amin Taha + Groupwork
Многоквартирный дом с магазином 168 Upper Street. Фото: Tim Soar. Предоставлено Amin Taha + Groupwork
Многоквартирный дом с магазином 168 Upper Street © Amin Taha + Groupwork
Многоквартирный дом с магазином 168 Upper Street © Amin Taha + Groupwork

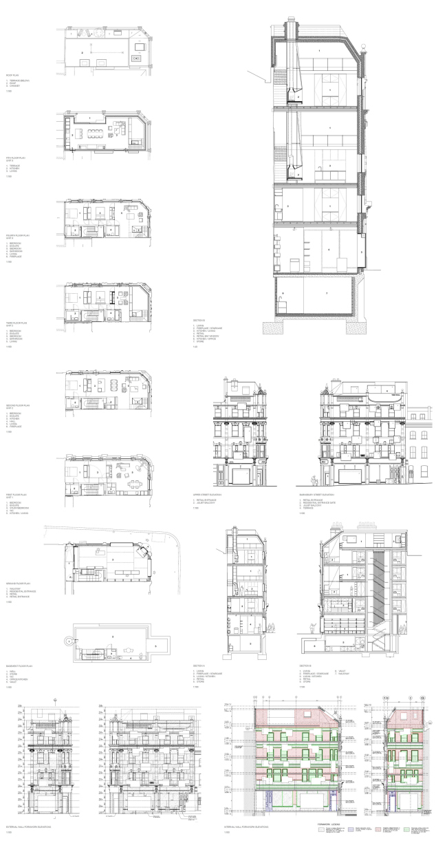
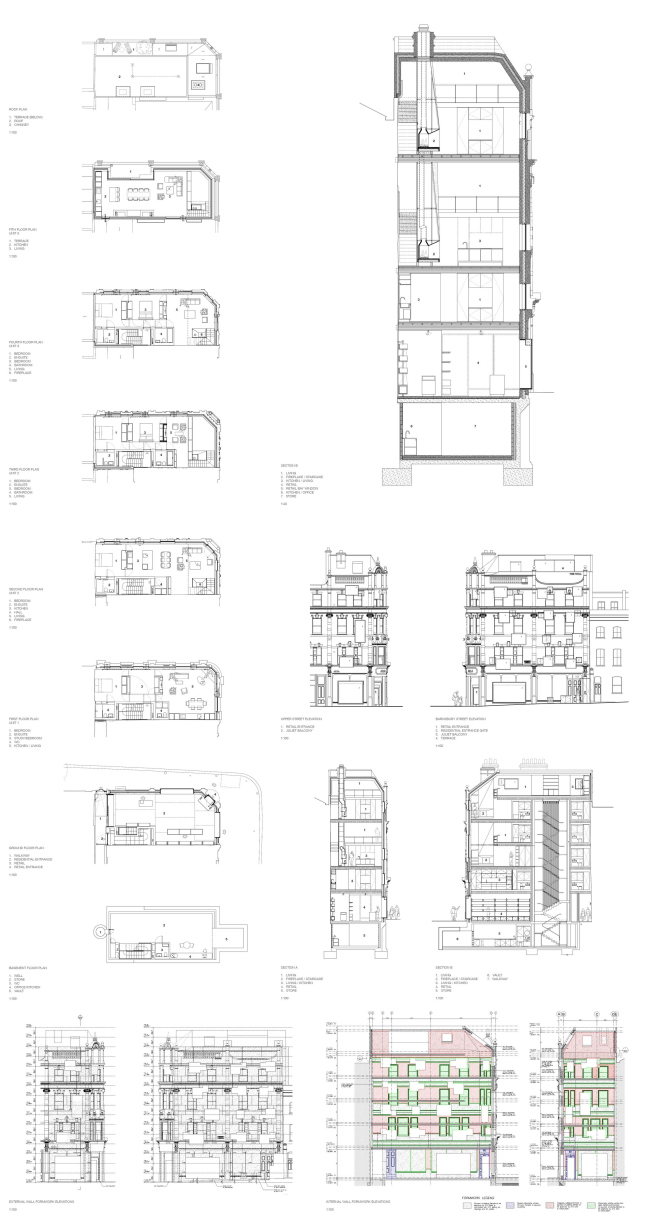
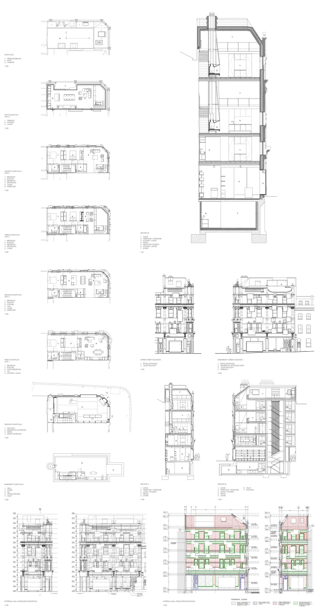
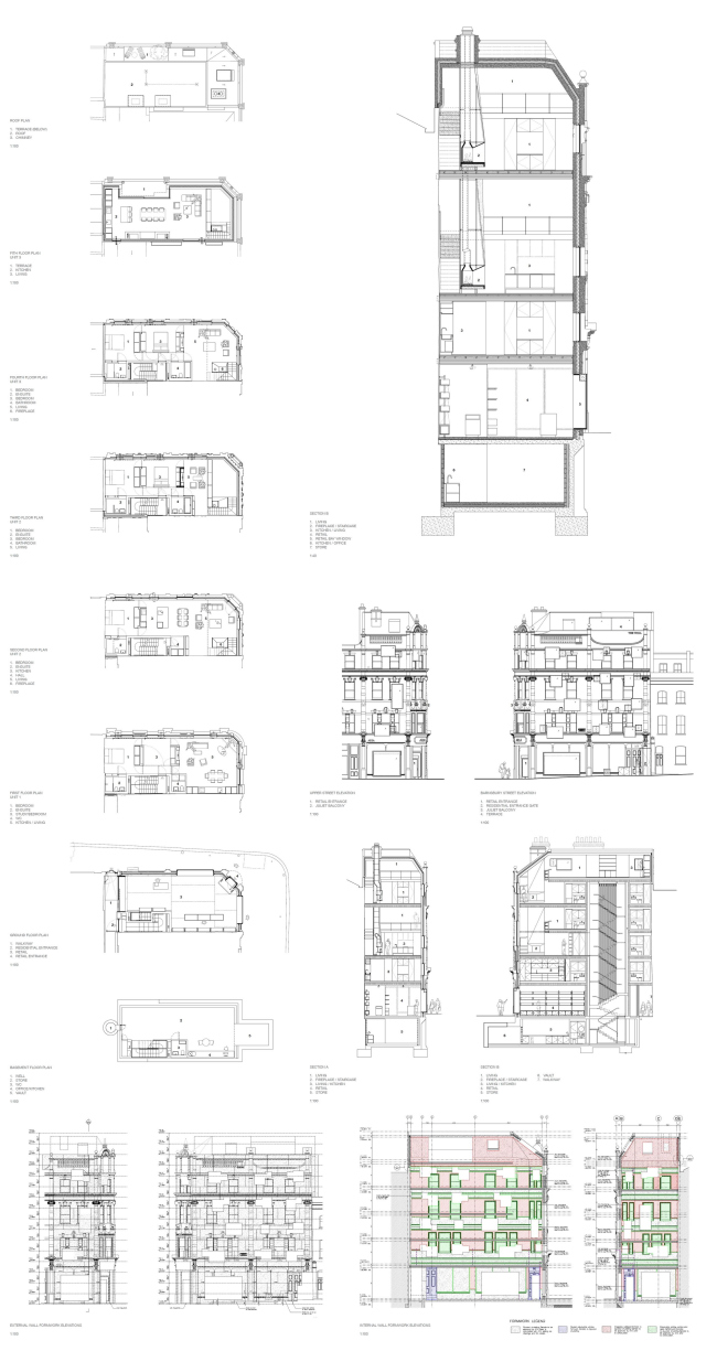
Дом номер 168 был воссоздан по историческим фотографиям и по его зеркальному двойнику – «павильону» с противоположного угла. Его трехмерная модель стала основой для 450 м2 полистирольной опалубки. Материалом стал бетон, цветом сочетающийся с кирпичными фасадами сохранившейся части комплекса, но не сливающийся с ними. Однако авторов проекта интересовало не точное техническое копирование, а понятие исторической памяти, с ее ошибками и лакунами. Поэтому они не только не исправляли возникающие проблемы, но даже приветствовали их. Источником неточностей выступили как роботы, зависавшие при изготовлении опалубки, так и рабочие, путавшие расположение ее панелей.
 
Многоквартирный дом с магазином 168 Upper Street. Фото: Tim Soar. Предоставлено Amin Taha + Groupwork
Многоквартирный дом с магазином 168 Upper Street. Фото: Tim Soar. Предоставлено Amin Taha + Groupwork
Многоквартирный дом с магазином 168 Upper Street. Фото: Tim Soar. Предоставлено Amin Taha + Groupwork
Многоквартирный дом с магазином 168 Upper Street. Фото: Tim Soar. Предоставлено Amin Taha + Groupwork
Многоквартирный дом с магазином 168 Upper Street. Фото: Tim Soar. Предоставлено Amin Taha + Groupwork
Многоквартирный дом с магазином 168 Upper Street. Фото: Tim Soar. Предоставлено Amin Taha + Groupwork

Получившаяся бетонная оболочка толщиной полметра также включает и интерьерную поверхность стен: изнутри на нее нанесен напоминающий исторические обои орнамент. Межэтажные перекрытия выполнены из перекрестно-клееной древесины. Расположение окон отвечает новой, а не исторической, планировке, поэтому они сразу отмечают дом в городском пространстве как произведение современной архитектуры. Общая площадь постройки – 545 м2, бюджет – 1,8 млн фунтов.
Многоквартирный дом с магазином 168 Upper Street. Фото: Tim Soar. Предоставлено Amin Taha + Groupwork
Многоквартирный дом с магазином 168 Upper Street. Фото: Tim Soar. Предоставлено Amin Taha + Groupwork
Многоквартирный дом с магазином 168 Upper Street. Фото: Tim Soar. Предоставлено Amin Taha + Groupwork
Многоквартирный дом с магазином 168 Upper Street. Фото: Tim Soar. Предоставлено Amin Taha + Groupwork
Многоквартирный дом с магазином 168 Upper Street. Фото: Tim Soar. Предоставлено Amin Taha + Groupwork
Многоквартирный дом с магазином 168 Upper Street. Фото: Tim Soar. Предоставлено Amin Taha + Groupwork
Многоквартирный дом с магазином 168 Upper Street. Фото: Tim Soar. Предоставлено Amin Taha + Groupwork
Многоквартирный дом с магазином 168 Upper Street. Фото: Tim Soar. Предоставлено Amin Taha + Groupwork
Многоквартирный дом с магазином 168 Upper Street. Фото: Tim Soar. Предоставлено Amin Taha + Groupwork
Многоквартирный дом с магазином 168 Upper Street. Фото: Tim Soar. Предоставлено Amin Taha + Groupwork
Многоквартирный дом с магазином 168 Upper Street. Фото: Tim Soar. Предоставлено Amin Taha + Groupwork
Многоквартирный дом с магазином 168 Upper Street. Фото: Tim Soar. Предоставлено Amin Taha + Groupwork
Многоквартирный дом с магазином 168 Upper Street. Фото: Tim Soar. Предоставлено Amin Taha + Groupwork
Многоквартирный дом с магазином 168 Upper Street. Фото: Tim Soar. Предоставлено Amin Taha + Groupwork
Многоквартирный дом с магазином 168 Upper Street. Фото: Tim Soar. Предоставлено Amin Taha + Groupwork
Многоквартирный дом с магазином 168 Upper Street. Фото: Tim Soar. Предоставлено Amin Taha + Groupwork
Многоквартирный дом с магазином 168 Upper Street. Фото: Tim Soar. Предоставлено Amin Taha + Groupwork
Многоквартирный дом с магазином 168 Upper Street. Фото: Tim Soar. Предоставлено Amin Taha + Groupwork
Многоквартирный дом с магазином 168 Upper Street. Фото: Tim Soar. Предоставлено Amin Taha + Groupwork
Многоквартирный дом с магазином 168 Upper Street. Фото: Tim Soar. Предоставлено Amin Taha + Groupwork
Многоквартирный дом с магазином 168 Upper Street. Фото: Tim Soar. Предоставлено Amin Taha + Groupwork
Многоквартирный дом с магазином 168 Upper Street. Фото: Tim Soar. Предоставлено Amin Taha + Groupwork
Многоквартирный дом с магазином 168 Upper Street. Фото: Tim Soar. Предоставлено Amin Taha + Groupwork
Многоквартирный дом с магазином 168 Upper Street. Фото: Tim Soar. Предоставлено Amin Taha + Groupwork
Многоквартирный дом с магазином 168 Upper Street. Фото: Tim Soar. Предоставлено Amin Taha + Groupwork
Многоквартирный дом с магазином 168 Upper Street. Фото: Tim Soar. Предоставлено Amin Taha + Groupwork
Многоквартирный дом с магазином 168 Upper Street. Фото: Tim Soar. Предоставлено Amin Taha + Groupwork
Многоквартирный дом с магазином 168 Upper Street. Фото: Tim Soar. Предоставлено Amin Taha + Groupwork
Многоквартирный дом с магазином 168 Upper Street. Фото: Tim Soar. Предоставлено Amin Taha + Groupwork
Многоквартирный дом с магазином 168 Upper Street. Фото: Tim Soar. Предоставлено Amin Taha + Groupwork
Многоквартирный дом с магазином 168 Upper Street. Фото: Tim Soar. Предоставлено Amin Taha + Groupwork
Многоквартирный дом с магазином 168 Upper Street. Фото: Tim Soar. Предоставлено Amin Taha + Groupwork
Многоквартирный дом с магазином 168 Upper Street © Amin Taha + Groupwork
Многоквартирный дом с магазином 168 Upper Street © Amin Taha + Groupwork
Многоквартирный дом с магазином 168 Upper Street © Amin Taha + Groupwork
Многоквартирный дом с магазином 168 Upper Street © Amin Taha + Groupwork
Многоквартирный дом с магазином 168 Upper Street © Amin Taha + Groupwork
Многоквартирный дом с магазином 168 Upper Street © Amin Taha + Groupwork
Многоквартирный дом с магазином 168 Upper Street © Amin Taha + Groupwork
Многоквартирный дом с магазином 168 Upper Street © Amin Taha + Groupwork
Многоквартирный дом с магазином 168 Upper Street © Amin Taha + Groupwork
Многоквартирный дом с магазином 168 Upper Street © Amin Taha + Groupwork