Размещено на портале Архи.ру (www.archi.ru)

13.07.2018

В горном лесу

Нина Фролова
Объект:
Апарт-отель Szuflandia
Адрес:
Польша, None, Висла.
Мастерская:
Brand’ys Design
Modern House

Апарт-отель Szuflandia на горнолыжном курорте на юге Польши по проекту бюро Brand’ys Design и Modern House.

Апарт-отель Szuflandia © Tomasz Zakrzewski
Апарт-отель Szuflandia © Tomasz Zakrzewski

Гостиница из двух корпусов в общей сложности на шесть апартаментов кажется как будто сложенной из деревянных кубиков: такое решение придало планировкам большее разнообразие, кроме того, в консольных выступах эффективней «работают» большие панорамные окна.
 
Апарт-отель Szuflandia © Tomasz Zakrzewski
Апарт-отель Szuflandia © Tomasz Zakrzewski

«Шуфландия» находится в горном массиве Силезские Бескиды, на склоне горы Кичера. Отель входит в черту городка Висла – известного горнолыжного курорта. До его центральной, Рыночной, площади можно дойти пешком, но вокруг гостиницы – лес и реки.
 
Апарт-отель Szuflandia © Tomasz Zakrzewski
Апарт-отель Szuflandia © Tomasz Zakrzewski

С деревом, основным строительным материалом, контрастирует природный камень мощения дорожек и лестниц на территории.
Апарт-отель Szuflandia © Tomasz Zakrzewski
Апарт-отель Szuflandia © Tomasz Zakrzewski
Апарт-отель Szuflandia © Tomasz Zakrzewski
Апарт-отель Szuflandia © Tomasz Zakrzewski
Апарт-отель Szuflandia © Tomasz Zakrzewski
Апарт-отель Szuflandia © Tomasz Zakrzewski
Апарт-отель Szuflandia © Tomasz Zakrzewski
Апарт-отель Szuflandia © Tomasz Zakrzewski
Апарт-отель Szuflandia © Tomasz Zakrzewski
Апарт-отель Szuflandia © Tomasz Zakrzewski
Апарт-отель Szuflandia © Tomasz Zakrzewski
Апарт-отель Szuflandia © Tomasz Zakrzewski
Апарт-отель Szuflandia © Tomasz Zakrzewski
Апарт-отель Szuflandia © Tomasz Zakrzewski
Апарт-отель Szuflandia © Tomasz Zakrzewski
Апарт-отель Szuflandia © Tomasz Zakrzewski
Апарт-отель Szuflandia © Tomasz Zakrzewski
Апарт-отель Szuflandia © Tomasz Zakrzewski
Апарт-отель Szuflandia © Tomasz Zakrzewski
Апарт-отель Szuflandia © Tomasz Zakrzewski
Апарт-отель Szuflandia © Tomasz Zakrzewski
Апарт-отель Szuflandia © Tomasz Zakrzewski
Апарт-отель Szuflandia © Tomasz Zakrzewski
Апарт-отель Szuflandia © Tomasz Zakrzewski
Апарт-отель Szuflandia © Tomasz Zakrzewski
Апарт-отель Szuflandia © Tomasz Zakrzewski
Апарт-отель Szuflandia © Tomasz Zakrzewski
Апарт-отель Szuflandia © Tomasz Zakrzewski
Апарт-отель Szuflandia © Tomasz Zakrzewski
Апарт-отель Szuflandia © Tomasz Zakrzewski
Апарт-отель Szuflandia © Tomasz Zakrzewski
Апарт-отель Szuflandia © Tomasz Zakrzewski
Апарт-отель Szuflandia © Tomasz Zakrzewski
Апарт-отель Szuflandia © Tomasz Zakrzewski
Апарт-отель Szuflandia © Tomasz Zakrzewski
Апарт-отель Szuflandia © Tomasz Zakrzewski
Апарт-отель Szuflandia © Tomasz Zakrzewski
Апарт-отель Szuflandia © Tomasz Zakrzewski
Апарт-отель Szuflandia © Tomasz Zakrzewski
Апарт-отель Szuflandia © Tomasz Zakrzewski
Апарт-отель Szuflandia © Tomasz Zakrzewski
Апарт-отель Szuflandia © Tomasz Zakrzewski
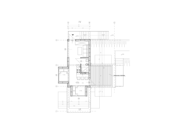
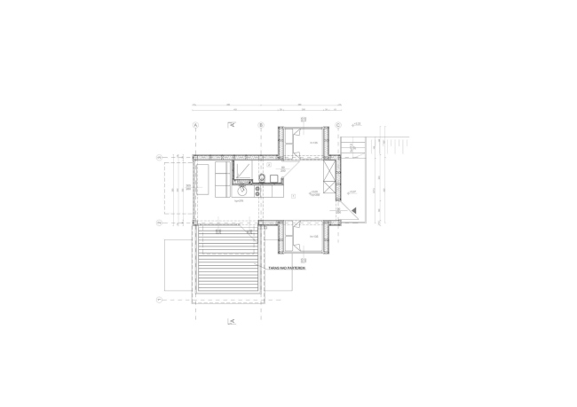
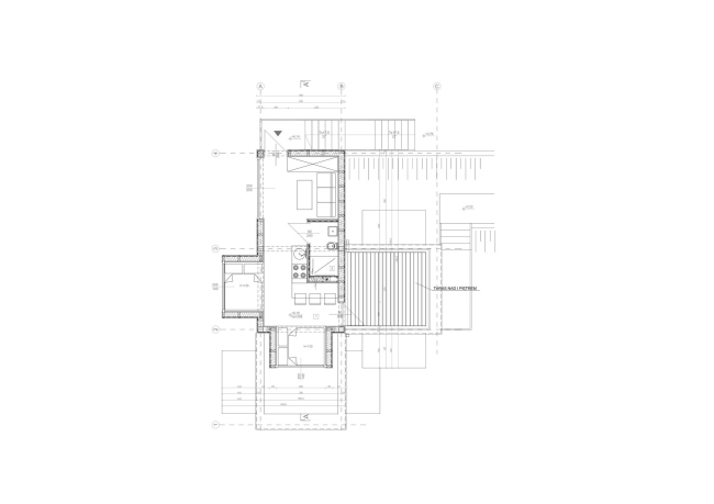
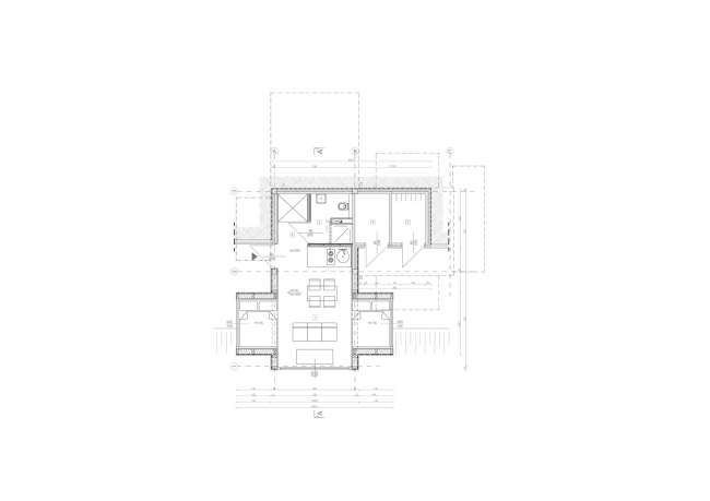
Апарт-отель Szuflandia © Brand’ys Design &
Modern House
Апарт-отель Szuflandia © Brand’ys Design & Modern House
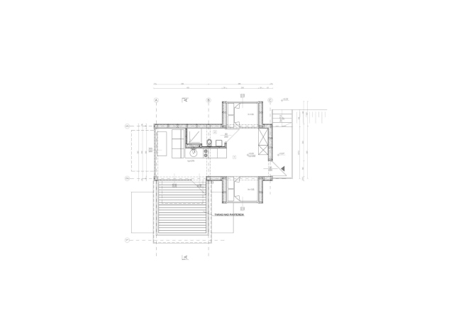
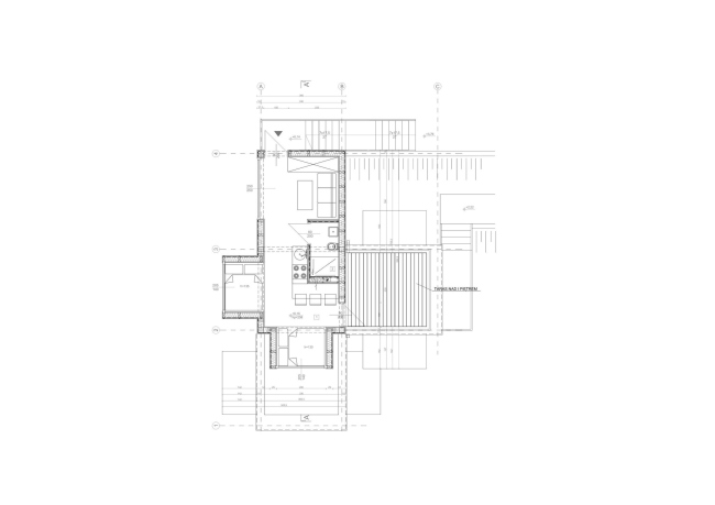
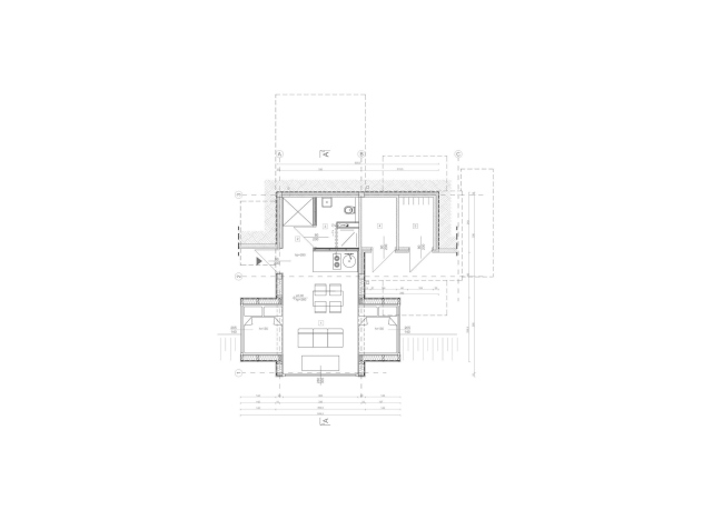
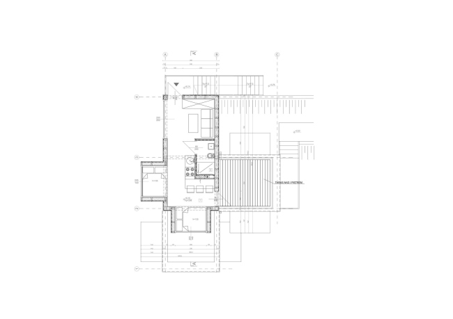
Апарт-отель Szuflandia © Brand’ys Design &
Modern House
Апарт-отель Szuflandia © Brand’ys Design & Modern House
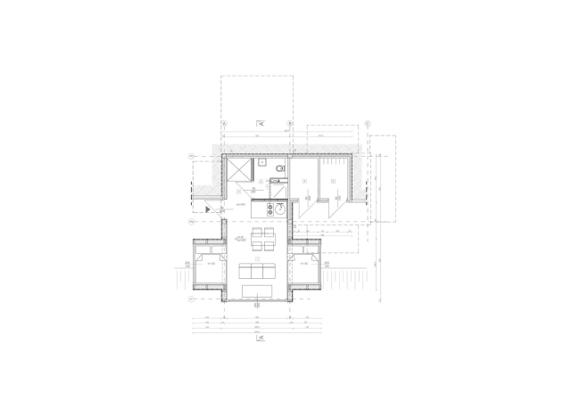
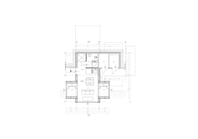
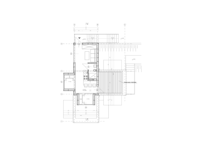
Апарт-отель Szuflandia © Brand’ys Design &
Modern House
Апарт-отель Szuflandia © Brand’ys Design & Modern House
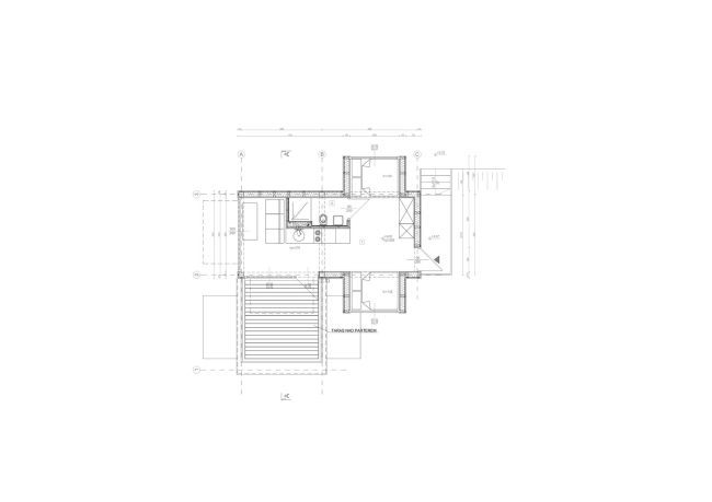
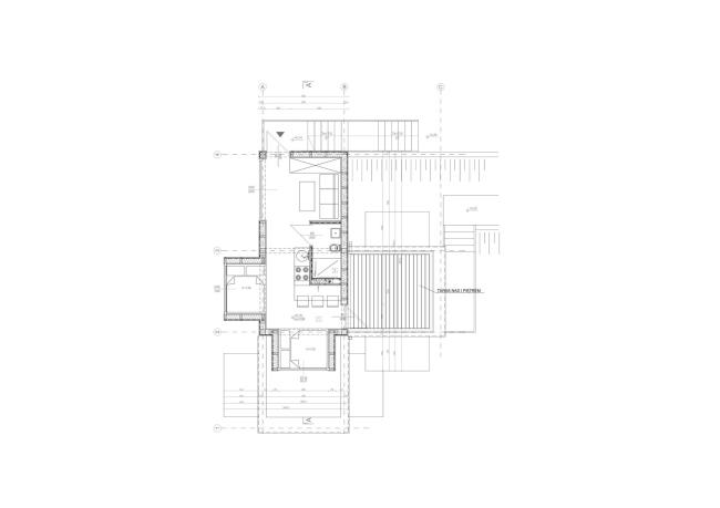
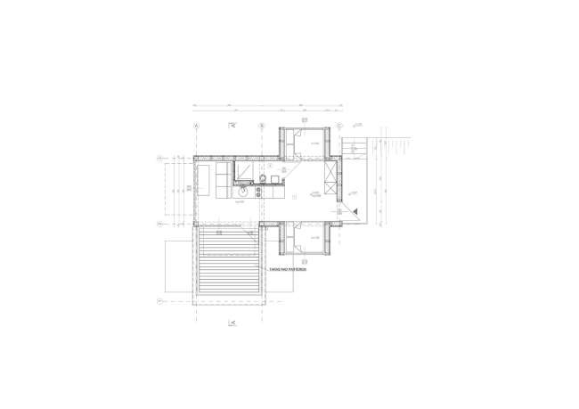
Апарт-отель Szuflandia © Brand’ys Design &
Modern House
Апарт-отель Szuflandia © Brand’ys Design & Modern House
Апарт-отель Szuflandia © Brand’ys Design &
Modern House
Апарт-отель Szuflandia © Brand’ys Design & Modern House
Апарт-отель Szuflandia © Brand’ys Design &
Modern House
Апарт-отель Szuflandia © Brand’ys Design & Modern House
Апарт-отель Szuflandia © Brand’ys Design &
Modern House
Апарт-отель Szuflandia © Brand’ys Design & Modern House
Апарт-отель Szuflandia © Brand’ys Design &
Modern House
Апарт-отель Szuflandia © Brand’ys Design & Modern House
Апарт-отель Szuflandia © Brand’ys Design &
Modern House
Апарт-отель Szuflandia © Brand’ys Design & Modern House