Размещено на портале Архи.ру (www.archi.ru)

06.07.2018

«Танцующая» лестница и подводный форум

Нина Фролова
Объект:
Комплекс искусств Льюиса Принстонского университета
Адрес:
США, None, Принстон.

Комплекс искусств Льюиса в Принстонском университете по проекту Стивена Холла.

Комплекс искусств Льюиса Принстонского университета © Paul Warchol
Комплекс искусств Льюиса Принстонского университета © Paul Warchol

Новый комплекс площадью в более 13 тыс. м2 обеспечивает «творческие» факультеты Принстона необходимыми им для оптимальной работы и новаторских проектов пространствами. В первую очередь он предназначен для студентов сфер танца, музыки, музыкального театра, также там расположены помещения «ателье» – междисциплинарного художественного проекта, объединяющего учащихся с профессиональными деятелями искусств и специалистами других сфер, скажем, с композитором и живописцем или сценографом и экологом.
 
Комплекс искусств Льюиса Принстонского университета © Paul Warchol
Комплекс искусств Льюиса Принстонского университета © Paul Warchol

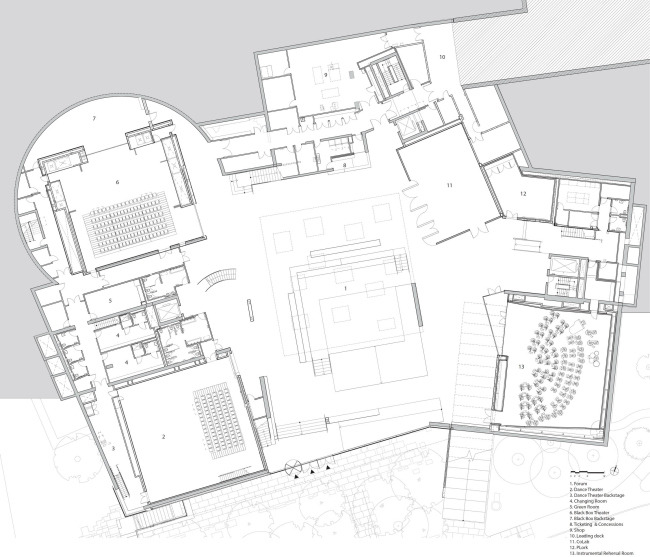
Три корпуса объединены «форумом», устроенным под двором. Большую часть двора занимает водоем, в дне которого – перекрытии «форума» – оконные проемы, обеспечивающие подземное помещение солнечным светом. Однако из-за перепада высот у «форума» есть и наземный остекленный фасад. Так как двор – Арт-плаза – также озеленен, он играет роль зеленой кровли; зеленые крыши есть и у наземных корпусов.
 
Комплекс искусств Льюиса Принстонского университета © Paul Warchol
Комплекс искусств Льюиса Принстонского университета © Paul Warchol

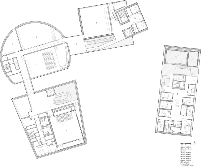
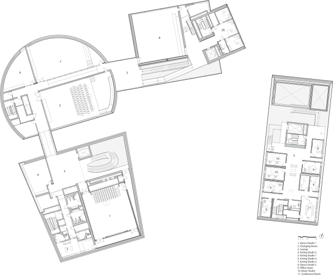
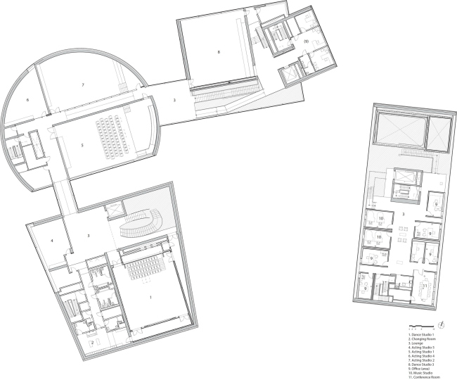
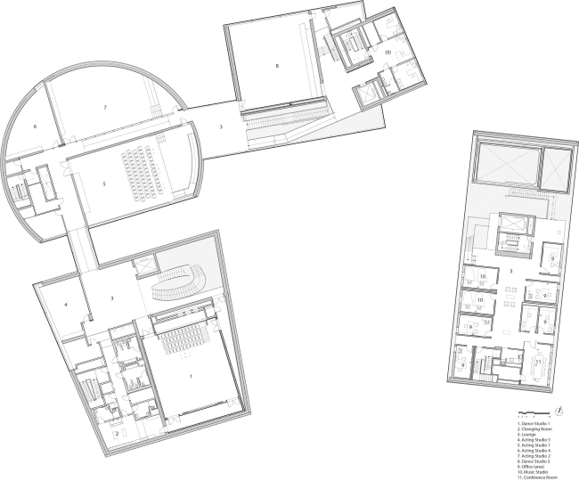
Единство комплексу Льюиса придает облицовка всех его частей золотистым известняком из Лечче. В корпусе Уолласа размещены два театральных зала и две балетных студии, каждый из которых получил внутреннюю обшивку из того или иного материала – перфорированной черной стали, светлого дерева, пеноалюминия или бетона с «дощатой» фактурой. Они связаны между собой белой «танцующей» лестницей. Музыкальный корпус заполнен подвешенными над репетиционным залом для оркестра деревянными объемами студий: его устройство хорошо видно сквозь стеклянный фасад. «Башня искусств» повторяет пропорции неотюдоровской Арки Блэра, одного из символов кампуса; в башне помещены различные студии, выставочная галерея Херли, административные помещения, кабинеты преподавателей. В комплексе также есть мастерские по производству декораций, реквизита, костюмов и т.д.
 
Комплекс искусств Льюиса Принстонского университета © Paul Warchol
Комплекс искусств Льюиса Принстонского университета © Paul Warchol

Среди экологических составляющих проекта, кроме зеленых крыш – геотермальная система отопления и охлаждения помещений, высокоэффективная изоляция фасадов, использование естественного освещения и вентиляции (так, в корпусах можно открывать окна), затенение интерьера, регулирующие потребление энергии датчики движения, освещенности и т.д., экономичные смесители, светодиодные общие и театральные системы освещения.
Комплекс искусств Льюиса Принстонского университета © Paul Warchol
Комплекс искусств Льюиса Принстонского университета © Paul Warchol
Комплекс искусств Льюиса Принстонского университета © Paul Warchol
Комплекс искусств Льюиса Принстонского университета © Paul Warchol
Комплекс искусств Льюиса Принстонского университета © Paul Warchol
Комплекс искусств Льюиса Принстонского университета © Paul Warchol
Комплекс искусств Льюиса Принстонского университета © Paul Warchol
Комплекс искусств Льюиса Принстонского университета © Paul Warchol
Комплекс искусств Льюиса Принстонского университета © Paul Warchol
Комплекс искусств Льюиса Принстонского университета © Paul Warchol
Комплекс искусств Льюиса Принстонского университета © Paul Warchol
Комплекс искусств Льюиса Принстонского университета © Paul Warchol
Комплекс искусств Льюиса Принстонского университета © Paul Warchol
Комплекс искусств Льюиса Принстонского университета © Paul Warchol
Комплекс искусств Льюиса Принстонского университета © Paul Warchol
Комплекс искусств Льюиса Принстонского университета © Paul Warchol
Комплекс искусств Льюиса Принстонского университета © Paul Warchol
Комплекс искусств Льюиса Принстонского университета © Paul Warchol
Комплекс искусств Льюиса Принстонского университета © Paul Warchol
Комплекс искусств Льюиса Принстонского университета © Paul Warchol
Комплекс искусств Льюиса Принстонского университета © Paul Warchol
Комплекс искусств Льюиса Принстонского университета © Paul Warchol
Комплекс искусств Льюиса Принстонского университета © Paul Warchol
Комплекс искусств Льюиса Принстонского университета © Paul Warchol
Комплекс искусств Льюиса Принстонского университета © Paul Warchol
Комплекс искусств Льюиса Принстонского университета © Paul Warchol
Комплекс искусств Льюиса Принстонского университета © Paul Warchol
Комплекс искусств Льюиса Принстонского университета © Paul Warchol
Комплекс искусств Льюиса Принстонского университета © Paul Warchol
Комплекс искусств Льюиса Принстонского университета © Paul Warchol
Комплекс искусств Льюиса Принстонского университета © Paul Warchol
Комплекс искусств Льюиса Принстонского университета © Paul Warchol
Комплекс искусств Льюиса Принстонского университета © Paul Warchol
Комплекс искусств Льюиса Принстонского университета © Paul Warchol
Комплекс искусств Льюиса Принстонского университета © Paul Warchol
Комплекс искусств Льюиса Принстонского университета © Paul Warchol
Комплекс искусств Льюиса Принстонского университета © Paul Warchol
Комплекс искусств Льюиса Принстонского университета © Paul Warchol
Комплекс искусств Льюиса Принстонского университета © Paul Warchol
Комплекс искусств Льюиса Принстонского университета © Paul Warchol
Комплекс искусств Льюиса Принстонского университета © Paul Warchol
Комплекс искусств Льюиса Принстонского университета © Paul Warchol
Комплекс искусств Льюиса Принстонского университета © Paul Warchol
Комплекс искусств Льюиса Принстонского университета © Paul Warchol
Комплекс искусств Льюиса Принстонского университета © Paul Warchol
Комплекс искусств Льюиса Принстонского университета © Paul Warchol
Комплекс искусств Льюиса Принстонского университета © Paul Warchol
Комплекс искусств Льюиса Принстонского университета © Paul Warchol
Комплекс искусств Льюиса Принстонского университета © Steven Holl Architects
Комплекс искусств Льюиса Принстонского университета © Steven Holl Architects
Комплекс искусств Льюиса Принстонского университета © Steven Holl Architects
Комплекс искусств Льюиса Принстонского университета © Steven Holl Architects
Комплекс искусств Льюиса Принстонского университета © Steven Holl Architects
Комплекс искусств Льюиса Принстонского университета © Steven Holl Architects
Комплекс искусств Льюиса Принстонского университета © Steven Holl Architects
Комплекс искусств Льюиса Принстонского университета © Steven Holl Architects
Комплекс искусств Льюиса Принстонского университета © Steven Holl Architects
Комплекс искусств Льюиса Принстонского университета © Steven Holl Architects
Комплекс искусств Льюиса Принстонского университета © Steven Holl Architects
Комплекс искусств Льюиса Принстонского университета © Steven Holl Architects
Комплекс искусств Льюиса Принстонского университета © Steven Holl Architects
Комплекс искусств Льюиса Принстонского университета © Steven Holl Architects
Комплекс искусств Льюиса Принстонского университета © Steven Holl Architects
Комплекс искусств Льюиса Принстонского университета © Steven Holl Architects