Размещено на портале Архи.ру (www.archi.ru)

28.06.2018

Польза фрагментации

Нина Фролова
Объект:
Жилой комплекс в Роменвиле
Адрес:
Франция, None, Роменвиль.
Мастерская:
Brenac & Gonzalez

Жилой комплекс в Роменвиле в Большом Париже по проекту Brenac & Gonzalez.

Жилой комплекс в Роменвиле. Фото © Sergio Grazia
Жилой комплекс в Роменвиле. Фото © Sergio Grazia

Комплекс на 161 квартиру построен в квартале «Марсель Кашен», который в 2010-е переживает полную реконструкцию. В отличие от жилья 1960-х, часто проводившего в городе мало проницаемые границы, проект Brenac & Gonzalez – вариант «открытого квартала», где крупная форма, напротив, фрагментирована, и корпуса «кадрируют» эффектные перспективные виды как для самого комплекса, так и для пешеходов и жителей соседних домов. Кроме того, такая планировка защищает квартиры от взглядов соседей. Продуманная квартирография позволила открыть многие квартиры даже не на две, а на три фасада.
 
Жилой комплекс в Роменвиле. Фото © Sergio Grazia
Жилой комплекс в Роменвиле. Фото © Sergio Grazia

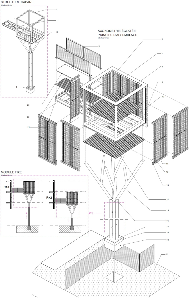
Балконы уличных фасадов закрыты металлическими жалюзи, которые, помимо прочего, призваны скрыть домашний скарб, который могут там хранить жильцы, и сохранить в неприкосновенности «визуальное качество при взгляде из общественного пространства». В зеленый внутренний двор выходят квартиры разных типов, включая таунхаузы с собственным садом, квартиры в корпусе со ступенями-террассами или же с доступом на крышу с деревьями и пространством для отдыха (создать там его позволило эффективное расположение инженерного оборудования). Но самое интересное – обшитые деревом балконы на фасадах и «дома на деревьях», террасы на уровне второго этажа, куда из квартир ведут частные мостики. Они придают живой облик всему комплексу.
Жилой комплекс в Роменвиле. Фото © Sergio Grazia
Жилой комплекс в Роменвиле. Фото © Sergio Grazia
Жилой комплекс в Роменвиле. Фото © Sergio Grazia
Жилой комплекс в Роменвиле. Фото © Sergio Grazia
Жилой комплекс в Роменвиле. Фото © Sergio Grazia
Жилой комплекс в Роменвиле. Фото © Sergio Grazia
Жилой комплекс в Роменвиле. Фото © Sergio Grazia
Жилой комплекс в Роменвиле. Фото © Sergio Grazia
Жилой комплекс в Роменвиле. Фото © Sergio Grazia
Жилой комплекс в Роменвиле. Фото © Sergio Grazia
Жилой комплекс в Роменвиле. Фото © Sergio Grazia
Жилой комплекс в Роменвиле. Фото © Sergio Grazia
Жилой комплекс в Роменвиле. Фото © Sergio Grazia
Жилой комплекс в Роменвиле. Фото © Sergio Grazia
Жилой комплекс в Роменвиле. Фото © Sergio Grazia
Жилой комплекс в Роменвиле. Фото © Sergio Grazia
Жилой комплекс в Роменвиле. Фото © Sergio Grazia
Жилой комплекс в Роменвиле. Фото © Sergio Grazia
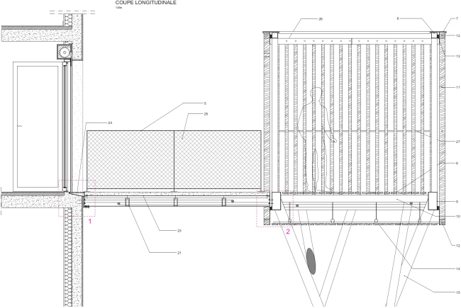
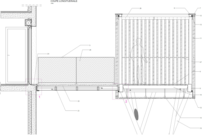
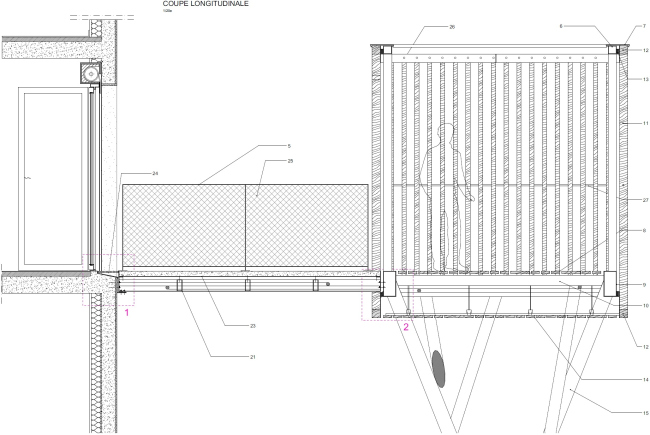
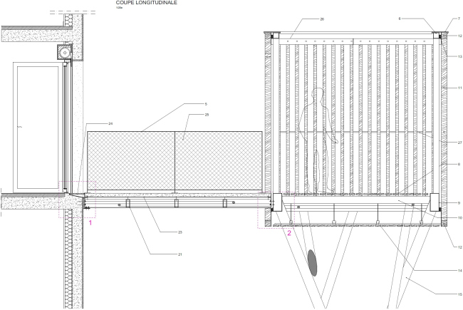
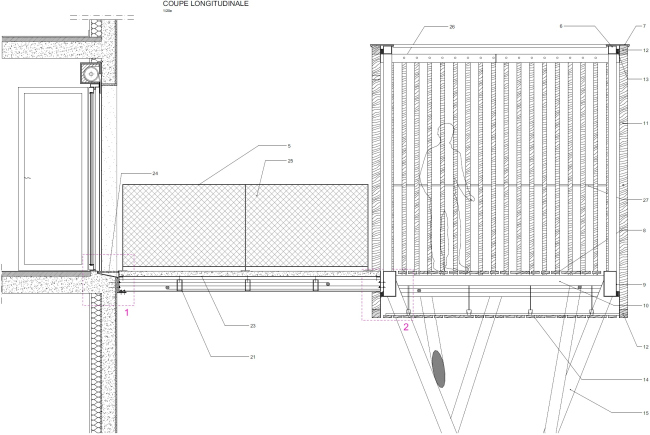
Жилой комплекс в Роменвиле © Brenac & Gonzalez & Associés
Жилой комплекс в Роменвиле © Brenac & Gonzalez & Associés
Жилой комплекс в Роменвиле © Brenac & Gonzalez & Associés
Жилой комплекс в Роменвиле © Brenac & Gonzalez & Associés
Жилой комплекс в Роменвиле © Brenac & Gonzalez & Associés
Жилой комплекс в Роменвиле © Brenac & Gonzalez & Associés
Жилой комплекс в Роменвиле © Brenac & Gonzalez & Associés
Жилой комплекс в Роменвиле © Brenac & Gonzalez & Associés
Жилой комплекс в Роменвиле © Brenac & Gonzalez & Associés
Жилой комплекс в Роменвиле © Brenac & Gonzalez & Associés
Жилой комплекс в Роменвиле © Brenac & Gonzalez & Associés
Жилой комплекс в Роменвиле © Brenac & Gonzalez & Associés
Жилой комплекс в Роменвиле © Brenac & Gonzalez & Associés
Жилой комплекс в Роменвиле © Brenac & Gonzalez & Associés
Жилой комплекс в Роменвиле © Brenac & Gonzalez & Associés
Жилой комплекс в Роменвиле © Brenac & Gonzalez & Associés
Жилой комплекс в Роменвиле © Brenac & Gonzalez & Associés
Жилой комплекс в Роменвиле © Brenac & Gonzalez & Associés
Жилой комплекс в Роменвиле © Brenac & Gonzalez & Associés
Жилой комплекс в Роменвиле © Brenac & Gonzalez & Associés
Жилой комплекс в Роменвиле © Brenac & Gonzalez & Associés
Жилой комплекс в Роменвиле © Brenac & Gonzalez & Associés