Размещено на портале Архи.ру (www.archi.ru)

27.06.2018

МАРХИ: железнодорожные ветки Москвы

Восемь магистерских работ группы Дмитрия Величкина и Николая Голованова основаны на идее вывода железных дорог и вокзалов из центра Москвы и замены их легким метро за МКАДом. Студенты планировали, как застройка бывших ж/д территорий могла бы заменить реновацию районов пятиэтажек.

Смотр работ студентов магистратуры МАРХИ в группе под руководством профессора Д. Величкина и профессора Н. Голованова © МАРХИ
Смотр работ студентов магистратуры МАРХИ в группе под руководством профессора Д. Величкина и профессора Н. Голованова © МАРХИ

Магистрантам группы МАРХИ под руководством Дмитрия Величкина и Николая Голованова был предложен комплексный экспериментальный проект – застройка железных дорог и прилегающих территорий в пределах от центра до МКАД. Тема стала откликом профессоров на московскую программу реновации, в рамках которой планируется обеспечить жильем около 1 млн человек. Задачей студентов было предложить альтернативные решения.

Дмитрий Величкин и Николай Голованов,
руководители группы:
«В предложении нашей группы рассмотрены все девять веток железных дорог Москвы. Площадь, занимаемая железными дорогами и прилегающими территориями, составляет порядка 12 000 га: это железнодорожные пути, пакгаузы, складские здания, промышленные сооружения и прочие. Нетрудно посчитать, что при средней плотности 100-150 человек на гектар, на высвобождаемых территориях можно расселить от 1, 2 млн до 1,8 млн человек. Суть предложения – вывод железных дорог и строительство легкого метро за пределами МКАД, опоясывающего Москву. На пересечении существующих железных дорог и нового метро возникают новые вокзалы одноименных направлений – ТПУ, транспортно-пересадочные узлы. Такое решение позволит разгрузить центр города от огромного потока приезжих, а это около 1 млн человек в день, и создать перспективу развития города в направлении Московской области.
Смотр работ студентов магистратуры МАРХИ в группе под руководством профессора Д. Величкина и профессора Н. Голованова © МАРХИ
Смотр работ студентов магистратуры МАРХИ в группе под руководством профессора Д. Величкина и профессора Н. Голованова © МАРХИ

Современный житель Москвы, добираясь до вокзала, затрачивает в среднем около 40 минут. Причем те, кто едет из периферийных районов, тратят на дорогу около 1 часа, живущие в центре – около 20 минут. Вдоль МКАДа сложилась цепочка большого количества торговых центров, магазинов, складов, центров развлечений и прочего. Попасть в них можно в основном на автомобиле. Строительство метро вокруг Москвы сделает торговое кольцо более доступным. Интересное наблюдение – на момент открытия первого вокзала Николаевской железной дороги 1 ноября 1851 года Каланчевская площадь была самой окраиной Москвы, то есть первоначально вокзалы располагались на краю города. Население Москвы в этот период времени примерно 400 тысяч человек, то есть за 167 лет количество жителей города увеличилось более чем в 30 раз. Развитие современных технологий, компьютеризация производства и науки, создание логистических центров изменили качественный состав Москвы, что, безусловно, требует переосмысления генерального плана, новых стратегий развития города. Вывод железных дорог из города, предоставляет возможность объединения разделенных территорий. Кроме того, проектирование новых транспортных артерий на месте железных дорог дает возможность развития инфраструктуры города, нового взгляда на транспортную сеть. Развитие Москвы к периферии при отсутствии полицентрической системы расселения сильно перегружает центральную часть города, что особенно заметно в праздничные дни. Такая тенденция сохранится, если стратегия развития генерального плана будет осуществляться на прежнем уровне.

В комплексной работе группы проанализированы конкурсные предложения развития «Московской агломерации 2012 года». Выявлен ряд интересных предложений по созданию единой транспортной сети, которая объединяет аэропорты, а также направления развития застройки. Изучена экологическая обстановка в городе, предложены методика развития парков, скверов, садов. Проведен анализ высотной застройки Москвы, выделены зоны доминантного строительства. Выявлены участки с памятниками истории и культуры, что позволяет спрогнозировать будущие полицентры городской активности».

Гибридные системы
как способ реновации промышленных зон на высвобождаемой территории вдоль Ярославской железной дороги в пределах МКАД
Мария Финагина

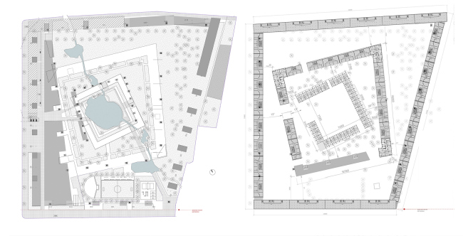
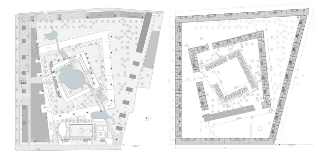
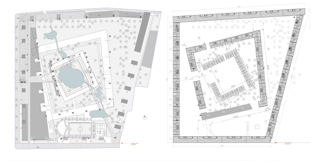
Принципы застройки, в основе которых лежат гибридные принципы функционального развития, выявление взаимосвязи существующей застройки с новыми образованиями.
Гибридные системы как способ реновации промышленных зон на высвобождаемой территории вдоль Ярославской железной дороги в пределах МКАД. Работа студентки Марии Финагиной © МАРХИ
Гибридные системы как способ реновации промышленных зон на высвобождаемой территории вдоль Ярославской железной дороги в пределах МКАД. Работа студентки Марии Финагиной © МАРХИ
Гибридные системы как способ реновации промышленных зон на высвобождаемой территории вдоль Ярославской железной дороги в пределах МКАД. Работа студентки Марии Финагиной © МАРХИ
Гибридные системы как способ реновации промышленных зон на высвобождаемой территории вдоль Ярославской железной дороги в пределах МКАД. Работа студентки Марии Финагиной © МАРХИ
Гибридные системы как способ реновации промышленных зон на высвобождаемой территории вдоль Ярославской железной дороги в пределах МКАД. Работа студентки Марии Финагиной © МАРХИ
Гибридные системы как способ реновации промышленных зон на высвобождаемой территории вдоль Ярославской железной дороги в пределах МКАД. Работа студентки Марии Финагиной © МАРХИ
Гибридные системы как способ реновации промышленных зон на высвобождаемой территории вдоль Ярославской железной дороги в пределах МКАД. Теоретический базис. Работа студентки Марии Финагиной © МАРХИ
Гибридные системы как способ реновации промышленных зон на высвобождаемой территории вдоль Ярославской железной дороги в пределах МКАД. Теоретический базис. Работа студентки Марии Финагиной © МАРХИ
Гибридные системы как способ реновации промышленных зон на высвобождаемой территории вдоль Ярославской железной дороги в пределах МКАД. Экспериментальный проект. Работа студентки Марии Финагиной © МАРХИ
Гибридные системы как способ реновации промышленных зон на высвобождаемой территории вдоль Ярославской железной дороги в пределах МКАД. Экспериментальный проект. Работа студентки Марии Финагиной © МАРХИ
Гибридные системы как способ реновации промышленных зон на высвобождаемой территории вдоль Ярославской железной дороги в пределах МКАД. Экспериментальный проект. Работа студентки Марии Финагиной © МАРХИ
Гибридные системы как способ реновации промышленных зон на высвобождаемой территории вдоль Ярославской железной дороги в пределах МКАД. Экспериментальный проект. Работа студентки Марии Финагиной © МАРХИ
Гибридные системы как способ реновации промышленных зон на высвобождаемой территории вдоль Ярославской железной дороги в пределах МКАД. Экспериментальный проект. Работа студентки Марии Финагиной © МАРХИ
Гибридные системы как способ реновации промышленных зон на высвобождаемой территории вдоль Ярославской железной дороги в пределах МКАД. Экспериментальный проект. Работа студентки Марии Финагиной © МАРХИ
***

Полицентризм
как метод развития города на примере высвобождаемой территории Ленинградской железной дороги
Сергей Чекмарев

Принципы формирования полицентров в новых микрорайонах как элементов дифференцированного развития территорий, при сохранении исторически ценной застройки.
Полицентризм как метод развития города на примере высвобождаемой территории Ленинградской железной дороги. Работа студента Сергея Чекмарева © МАРХИ
Полицентризм как метод развития города на примере высвобождаемой территории Ленинградской железной дороги. Работа студента Сергея Чекмарева © МАРХИ
Полицентризм как метод развития города на примере высвобождаемой территории Ленинградской железной дороги. Работа студента Сергея Чекмарева © МАРХИ
Полицентризм как метод развития города на примере высвобождаемой территории Ленинградской железной дороги. Работа студента Сергея Чекмарева © МАРХИ
Полицентризм как метод развития города на примере высвобождаемой территории Ленинградской железной дороги. Работа студента Сергея Чекмарева © МАРХИ
Полицентризм как метод развития города на примере высвобождаемой территории Ленинградской железной дороги. Работа студента Сергея Чекмарева © МАРХИ
Полицентризм как метод развития города на примере высвобождаемой территории Ленинградской железной дороги. Теоретический базис. Работа студента Сергея Чекмарева © МАРХИ
Полицентризм как метод развития города на примере высвобождаемой территории Ленинградской железной дороги. Теоретический базис. Работа студента Сергея Чекмарева © МАРХИ
Полицентризм как метод развития города на примере высвобождаемой территории Ленинградской железной дороги. Экспериментальный проект. Работа студента Сергея Чекмарева © МАРХИ
Полицентризм как метод развития города на примере высвобождаемой территории Ленинградской железной дороги. Экспериментальный проект. Работа студента Сергея Чекмарева © МАРХИ
Полицентризм как метод развития города на примере высвобождаемой территории Ленинградской железной дороги. Экспериментальный проект. Работа студента Сергея Чекмарева © МАРХИ
Полицентризм как метод развития города на примере высвобождаемой территории Ленинградской железной дороги. Экспериментальный проект. Работа студента Сергея Чекмарева © МАРХИ
***

Линейный каркас
как метод реконструкции и реабилитации высвобождаемых пространств на примере Курской железной дороги
Сергей Лукиянчук

Линейные принципы застройки территорий, насыщенной различным функциональными смыслами, от парковых зон до многофункциональных жилых комплексов.
Линейный каркас как метод реконструкции и реабилитации высвобождаемых пространств на примере Курской железной дороги. Работа студента Сергея Лукиянчука © МАРХИ
Линейный каркас как метод реконструкции и реабилитации высвобождаемых пространств на примере Курской железной дороги. Работа студента Сергея Лукиянчука © МАРХИ
Линейный каркас как метод реконструкции и реабилитации высвобождаемых пространств на примере Курской железной дороги. Работа студента Сергея Лукиянчука © МАРХИ
Линейный каркас как метод реконструкции и реабилитации высвобождаемых пространств на примере Курской железной дороги. Работа студента Сергея Лукиянчука © МАРХИ
Линейный каркас как метод реконструкции и реабилитации высвобождаемых пространств на примере Курской железной дороги. Работа студента Сергея Лукиянчука © МАРХИ
Линейный каркас как метод реконструкции и реабилитации высвобождаемых пространств на примере Курской железной дороги. Работа студента Сергея Лукиянчука © МАРХИ
Линейный каркас как метод реконструкции и реабилитации высвобождаемых пространств на примере Курской железной дороги. Работа студента Сергея Лукиянчука © МАРХИ
Линейный каркас как метод реконструкции и реабилитации высвобождаемых пространств на примере Курской железной дороги. Работа студента Сергея Лукиянчука © МАРХИ
Линейный каркас как метод реконструкции и реабилитации высвобождаемых пространств на примере Курской железной дороги. Работа студента Сергея Лукиянчука © МАРХИ
Линейный каркас как метод реконструкции и реабилитации высвобождаемых пространств на примере Курской железной дороги. Работа студента Сергея Лукиянчука © МАРХИ
Линейный каркас как метод реконструкции и реабилитации высвобождаемых пространств на примере Курской железной дороги. Работа студента Сергея Лукиянчука © МАРХИ
Линейный каркас как метод реконструкции и реабилитации высвобождаемых пространств на примере Курской железной дороги. Работа студента Сергея Лукиянчука © МАРХИ
***

Историко-ассоциативный принцип
как метод реабилитации промышленных зон на высвобождаемых территориях вдоль Казанской железной дороги в пределах МКАД
Виктория Пепанян

Сохранение исторически ценных объектов при условии развития различных форм реконструкции зданий, кварталов, восстановление утраченных масштабов городской застройки.
Историко-ассоциативный принцип как метод реабилитации промышленных зон на высвобождаемых территориях вдоль Казанской железной дороги в пределах МКАД. Работа студентки Виктории Пепанян © МАРХИ
Историко-ассоциативный принцип как метод реабилитации промышленных зон на высвобождаемых территориях вдоль Казанской железной дороги в пределах МКАД. Работа студентки Виктории Пепанян © МАРХИ
Историко-ассоциативный принцип как метод реабилитации промышленных зон на высвобождаемых территориях вдоль Казанской железной дороги в пределах МКАД. Работа студентки Виктории Пепанян © МАРХИ
Историко-ассоциативный принцип как метод реабилитации промышленных зон на высвобождаемых территориях вдоль Казанской железной дороги в пределах МКАД. Работа студентки Виктории Пепанян © МАРХИ
Историко-ассоциативный принцип как метод реабилитации промышленных зон на высвобождаемых территориях вдоль Казанской железной дороги в пределах МКАД. Работа студентки Виктории Пепанян © МАРХИ
Историко-ассоциативный принцип как метод реабилитации промышленных зон на высвобождаемых территориях вдоль Казанской железной дороги в пределах МКАД. Работа студентки Виктории Пепанян © МАРХИ
Историко-ассоциативный принцип как метод реабилитации промышленных зон на высвобождаемых территориях вдоль Казанской железной дороги в пределах МКАД. Теоретический базис. Работа студентки Виктории Пепанян © МАРХИ
Историко-ассоциативный принцип как метод реабилитации промышленных зон на высвобождаемых территориях вдоль Казанской железной дороги в пределах МКАД. Теоретический базис. Работа студентки Виктории Пепанян © МАРХИ
Историко-ассоциативный принцип как метод реабилитации промышленных зон на высвобождаемых территориях вдоль Казанской железной дороги в пределах МКАД. Экспериментальный проект. Работа студентки Виктории Пепанян © МАРХИ
Историко-ассоциативный принцип как метод реабилитации промышленных зон на высвобождаемых территориях вдоль Казанской железной дороги в пределах МКАД. Экспериментальный проект. Работа студентки Виктории Пепанян © МАРХИ
Историко-ассоциативный принцип как метод реабилитации промышленных зон на высвобождаемых территориях вдоль Казанской железной дороги в пределах МКАД. Экспериментальный проект. Работа студентки Виктории Пепанян © МАРХИ
Историко-ассоциативный принцип как метод реабилитации промышленных зон на высвобождаемых территориях вдоль Казанской железной дороги в пределах МКАД. Экспериментальный проект. Работа студентки Виктории Пепанян © МАРХИ
***

Квартал
как принцип формирования территории на периферии на высвобождаемой территории Рижской железной дороги
Иван Потапенко

Различные формы квартальной застройки, в зависимости от их функционального насыщения, и масштаба градостроительной ситуации.
Квартал как принцип формирования территории на периферии на высвобождаемой территории рижской железной дороги. Работа студента Ивана Потапенко © МАРХИ
Квартал как принцип формирования территории на периферии на высвобождаемой территории рижской железной дороги. Работа студента Ивана Потапенко © МАРХИ
Квартал как принцип формирования территории на периферии на высвобождаемой территории рижской железной дороги. Работа студента Ивана Потапенко © МАРХИ
Квартал как принцип формирования территории на периферии на высвобождаемой территории рижской железной дороги. Работа студента Ивана Потапенко © МАРХИ
Квартал как принцип формирования территории на периферии на высвобождаемой территории рижской железной дороги. Работа студента Ивана Потапенко © МАРХИ
Квартал как принцип формирования территории на периферии на высвобождаемой территории рижской железной дороги. Работа студента Ивана Потапенко © МАРХИ
Квартал как принцип формирования территории на периферии на высвобождаемой территории рижской железной дороги. Экспериментальный проект. Работа студента Ивана Потапенко © МАРХИ
Квартал как принцип формирования территории на периферии на высвобождаемой территории рижской железной дороги. Экспериментальный проект. Работа студента Ивана Потапенко © МАРХИ
Квартал как принцип формирования территории на периферии на высвобождаемой территории рижской железной дороги. Экспериментальный проект. Работа студента Ивана Потапенко © МАРХИ
Квартал как принцип формирования территории на периферии на высвобождаемой территории рижской железной дороги. Экспериментальный проект. Работа студента Ивана Потапенко © МАРХИ
Квартал как принцип формирования территории на периферии на высвобождаемой территории рижской железной дороги. Теоретический базис. Работа студента Ивана Потапенко © МАРХИ
Квартал как принцип формирования территории на периферии на высвобождаемой территории рижской железной дороги. Теоретический базис. Работа студента Ивана Потапенко © МАРХИ

***

Социальное жилье
для отдельных категорий населения на промышленных территориях Савеловский железной дороги
Александра Чекмарева

Методика освоения территорий для различных социальных категорий граждан. Это и студенческий кампус, и полифункциональное жилье для пожилых, и смешанные типы застройки для молодых семей.
Социальное жилье для отдельных категорий населения на промышленных территориях Савеловский железной дороги. Работа студентки Александры Чекмаревой © МАРХИ
Социальное жилье для отдельных категорий населения на промышленных территориях Савеловский железной дороги. Работа студентки Александры Чекмаревой © МАРХИ
Социальное жилье для отдельных категорий населения на промышленных территориях Савеловский железной дороги. Работа студентки Александры Чекмаревой © МАРХИ
Социальное жилье для отдельных категорий населения на промышленных территориях Савеловский железной дороги. Работа студентки Александры Чекмаревой © МАРХИ
Социальное жилье для отдельных категорий населения на промышленных территориях Савеловский железной дороги. Работа студентки Александры Чекмаревой © МАРХИ
Социальное жилье для отдельных категорий населения на промышленных территориях Савеловский железной дороги. Работа студентки Александры Чекмаревой © МАРХИ
Социальное жилье для отдельных категорий населения на промышленных территориях Савеловский железной дороги. Теоретическая база. Работа студентки Александры Чекманевой © МАРХИ
Социальное жилье для отдельных категорий населения на промышленных территориях Савеловский железной дороги. Теоретическая база. Работа студентки Александры Чекманевой © МАРХИ
Социальное жилье для отдельных категорий населения на промышленных территориях Савеловский железной дороги. Экспериментальный проект. Работа студентки Александры Чекманевой © МАРХИ
Социальное жилье для отдельных категорий населения на промышленных территориях Савеловский железной дороги. Экспериментальный проект. Работа студентки Александры Чекманевой © МАРХИ
Социальное жилье для отдельных категорий населения на промышленных территориях Савеловский железной дороги. Экспериментальный проект. Работа студентки Александры Чекманевой © МАРХИ
Социальное жилье для отдельных категорий населения на промышленных территориях Савеловский железной дороги. Экспериментальный проект. Работа студентки Александры Чекманевой © МАРХИ
***

Реновация
Белорусской ЖД и прилегающих промышленных зон в пределах МКАД. Палимпсест как метод работы с бывшими промышленными территориями
Игорь Филиппов

Предложенный принцип сохранения архитектуры промышленных зданий предполагает различные формы реконструкции территорий от достраивания среды новыми зданиями до использования принципов инверсионной застройки. В методике используется понятие палимпсеста как определяющего принципа реновации.
Реновация Белорусской ЖД и прилегающих промышленных зон в пределах МКАД. Палимпсест как метод работы с бывшими промышленными территориями. Игорь Филиппов © МАРХИ
Реновация Белорусской ЖД и прилегающих промышленных зон в пределах МКАД. Палимпсест как метод работы с бывшими промышленными территориями. Игорь Филиппов © МАРХИ
Реновация Белорусской ЖД и прилегающих промышленных зон в пределах МКАД. Палимпсест как метод работы с бывшими промышленными территориями. Игорь Филиппов © МАРХИ
Реновация Белорусской ЖД и прилегающих промышленных зон в пределах МКАД. Палимпсест как метод работы с бывшими промышленными территориями. Игорь Филиппов © МАРХИ
Реновация Белорусской ЖД и прилегающих промышленных зон в пределах МКАД. Палимпсест как метод работы с бывшими промышленными территориями. Игорь Филиппов © МАРХИ
Реновация Белорусской ЖД и прилегающих промышленных зон в пределах МКАД. Палимпсест как метод работы с бывшими промышленными территориями. Игорь Филиппов © МАРХИ
Реновация Белорусской ЖД и прилегающих промышленных зон в пределах МКАД. Палимпсест как метод работы с бывшими промышленными территориями. Теоретический базис. Работа студента Игоря Филиппова © МАРХИ
Реновация Белорусской ЖД и прилегающих промышленных зон в пределах МКАД. Палимпсест как метод работы с бывшими промышленными территориями. Теоретический базис. Работа студента Игоря Филиппова © МАРХИ
Реновация Белорусской ЖД и прилегающих промышленных зон в пределах МКАД. Палимпсест как метод работы с бывшими промышленными территориями. Реновация промзоны Грузинский Вал © МАРХИ
Реновация Белорусской ЖД и прилегающих промышленных зон в пределах МКАД. Палимпсест как метод работы с бывшими промышленными территориями. Реновация промзоны Грузинский Вал © МАРХИ
Реновация Белорусской ЖД и прилегающих промышленных зон в пределах МКАД. Палимпсест как метод работы с бывшими промышленными территориями. Реновация промзоны Красная Пресня. Работа студента Игоря Филиппова © МАРХИ
Реновация Белорусской ЖД и прилегающих промышленных зон в пределах МКАД. Палимпсест как метод работы с бывшими промышленными территориями. Реновация промзоны Красная Пресня. Работа студента Игоря Филиппова © МАРХИ
***

Принципы формирования высотной застройки
на промышленных территориях вдоль Павелецкой железной дороги
Артем Шахмаев

Принципы формирования высотной застройки Москвы. Построенные диаграммы формируют возрастание высотности от центра к периферии.
Принципы формирования высотной застройки на промышленных территориях вдоль Павелецкой железной дороги
Принципы формирования высотной застройки на промышленных территориях вдоль Павелецкой железной дороги
Принципы формирования высотной застройки на промышленных территориях вдоль Павелецкой железной дороги. Работа студента Артема Шахмаева
Принципы формирования высотной застройки на промышленных территориях вдоль Павелецкой железной дороги. Работа студента Артема Шахмаева
Принципы формирования высотной застройки на промышленных территориях вдоль Павелецкой железной дороги. Работа студента Артема Шахмаева
Принципы формирования высотной застройки на промышленных территориях вдоль Павелецкой железной дороги. Работа студента Артема Шахмаева
Принципы формирования высотной застройки на промышленных территориях вдоль Павелецкой железной дороги. Работа студента Артема Шахмаева
Принципы формирования высотной застройки на промышленных территориях вдоль Павелецкой железной дороги. Работа студента Артема Шахмаева
Принципы формирования высотной застройки на промышленных территориях вдоль Павелецкой железной дороги. Работа студента Артема Шахмаева
Принципы формирования высотной застройки на промышленных территориях вдоль Павелецкой железной дороги. Работа студента Артема Шахмаева
Принципы формирования высотной застройки на промышленных территориях вдоль Павелецкой железной дороги
Принципы формирования высотной застройки на промышленных территориях вдоль Павелецкой железной дороги
***