Размещено на портале Архи.ру (www.archi.ru)

18.06.2018

Детальность и материальность

Нина Фролова
Объект:
Западный двор колледжа Иисуса
Адрес:
Великобритания, None, Кембридж.
Мастерская:
Níall McLaughlin Architects

Реконструкция Западного двора колледжа Иисуса в Кембридже по проекту Níall McLaughlin Architects.

Западный двор колледжа Иисуса. Дворовый фасад реконструированного корпуса 1973 года © Nick Kane
Западный двор колледжа Иисуса. Дворовый фасад реконструированного корпуса 1973 года © Nick Kane

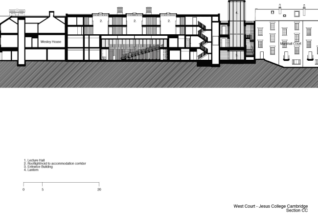
Часть Западного двора колледжа Иисуса в 1922 была продана методистской церкви, и там были построены два корпуса семинарии – во второй половине 1920-х и в 1973 году. В 2014 колледж выкупил обратно эту землю – вместе со зданиями. Для приспособления построек под новые нужды и общей реконструкции двора по результатам архитектурного конкурса было приглашено бюро Níall McLaughlin Architects.
 
Западный двор колледжа Иисуса. Уличный фасад реконструированного корпуса 1973 года © Nick Kane
Западный двор колледжа Иисуса. Уличный фасад реконструированного корпуса 1973 года © Nick Kane

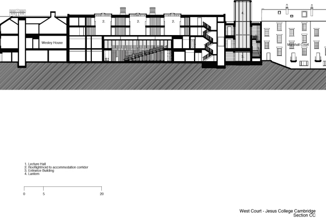
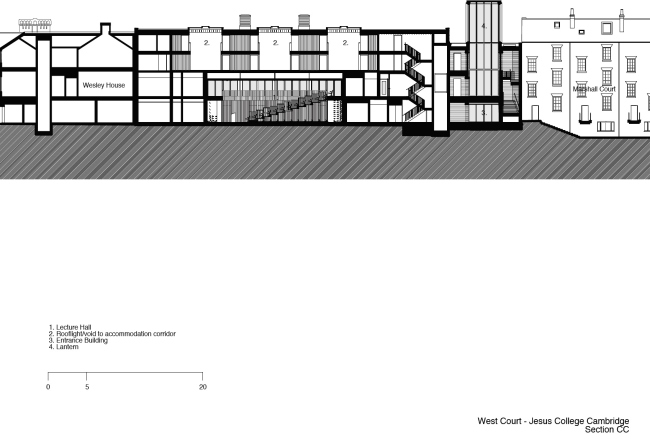
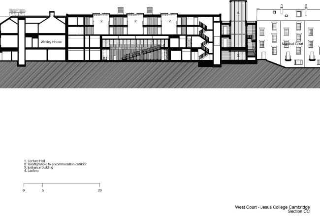
Сейчас завершена первая очередь проекта (бюджет 15 млн фунтов), охватывающая бывшие семинарские корпуса и новое «привратное» здание между ними. Второй этап предполагает строительство в Западном дворе новой лекционной аудитории, третий – спортивного павильона.
 
Западный двор колледжа Иисуса. Новый «привратный корпус» © Nick Kane
Западный двор колледжа Иисуса. Новый «привратный корпус» © Nick Kane
Корпус 1973 года до реконструкции. Уличный фасад. Предоставлено Niall McLaughlin Architects
Корпус 1973 года до реконструкции. Уличный фасад. Предоставлено Niall McLaughlin Architects
Корпус 1973 года до реконструкции. Уличный фасад. Дворовый фасад. Предоставлено Niall McLaughlin Architects
Корпус 1973 года до реконструкции. Уличный фасад. Дворовый фасад. Предоставлено Niall McLaughlin Architects
Уэбб-билдинг до реконструкции. Предоставлено Niall McLaughlin Architects
Уэбб-билдинг до реконструкции. Предоставлено Niall McLaughlin Architects
Вторая очередь проекта. Лекционная аудитория © Niall McLaughlin Architects
Вторая очередь проекта. Лекционная аудитория © Niall McLaughlin Architects

Проект воплощали на территории с охранным статусом, а корпус 1920-х, названный по имени своего архитектора, Мориса Уэбба, Уэбб-билдинг – объект культурного наследия. Поэтому особенно актуальным был характерный для Níall McLaughlin Architects подход: при работе в исторической среде они никогда не имитируют формы прошлых веков, однако проводят линии пересечения между старым и новым в материалах, пропорциях, «детальности».
 
Западный двор колледжа Иисуса © Nick Kane
Западный двор колледжа Иисуса © Nick Kane

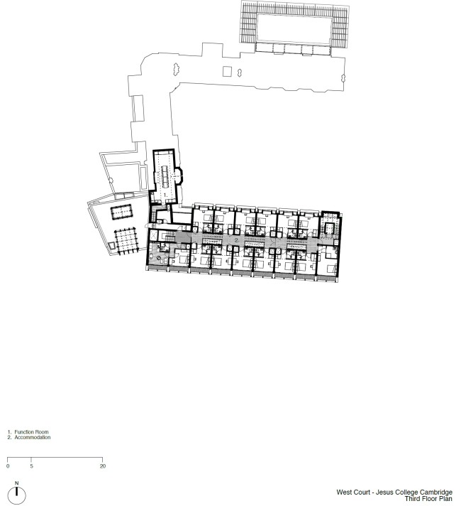
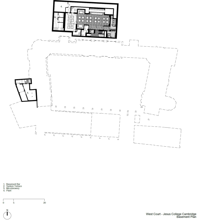
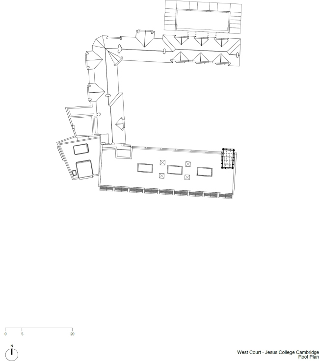
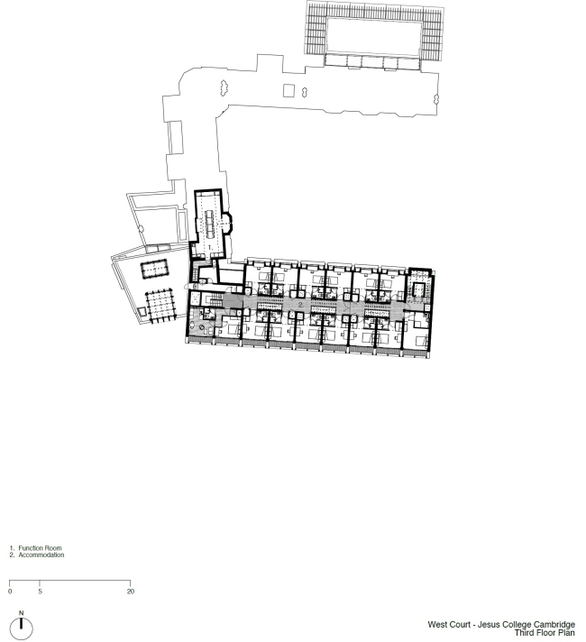
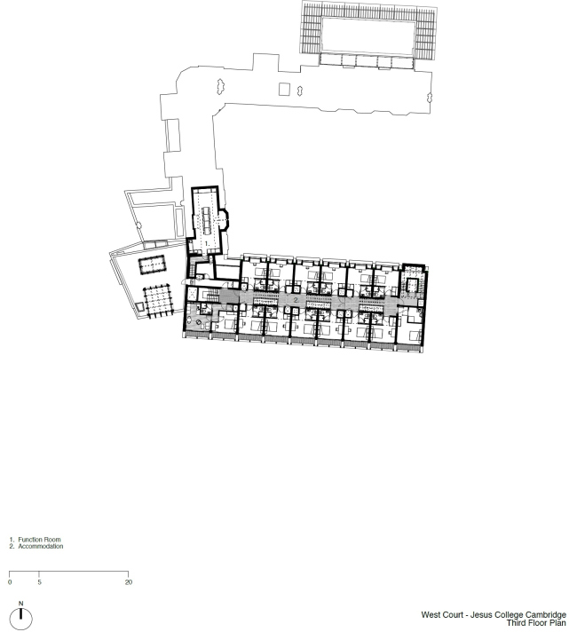
Формальная неоднородность исторической застройки находит в проекте отклик на основе разнообразия программы и задач: массивное Уэбб-билдинг вместило в ходе реконструкции административные помещения, общественные пространства и общежитие, а пристроенный к нему павильон кафе с баром и микро-пивоварней в подвале и террасой из дерева и стекла – полностью новая, легкая постройка. В то же время, новый «привратный корпус» с башней-фонарем – солидный и «материальный». Там находятся стойка администрации, выставочные и конференц- залы.
 
Западный двор колледжа Иисуса © Peter Cook
Западный двор колледжа Иисуса © Peter Cook

Здание 1973 года вмещает обновленную поточную аудиторию на 180 человек, исследовательские и учебные помещения, жилье для гостей колледжа, научный центр «Интеллектуальный форум». Оно получило характерные «профили» из камня и балконы, которые определили уличный фасад проекта.
 
Западный двор колледжа Иисуса © Peter Cook
Западный двор колледжа Иисуса © Peter Cook

Единство образу новых и обновленных зданий придает палитра материалов – дуб, ясень, камень, кирпич, керамическая плитка. В ходе реконструкции у существующих зданий повысили энергоэффективность – была значительно улучшена изоляция, в том числе исторические окна получили дополнительный слой остекления. В проекте заложено затенение фасадов, защищающее их от летнего солнца, но не от зимнего. Вся использованная древесина сертифицирована FSC.
Западный двор колледжа Иисуса © Nick Kane
Западный двор колледжа Иисуса © Nick Kane
Западный двор колледжа Иисуса © Peter Cook
Западный двор колледжа Иисуса © Peter Cook
Западный двор колледжа Иисуса © Nick Kane
Западный двор колледжа Иисуса © Nick Kane
Западный двор колледжа Иисуса © Nick Kane
Западный двор колледжа Иисуса © Nick Kane
Западный двор колледжа Иисуса © Nick Kane
Западный двор колледжа Иисуса © Nick Kane
Западный двор колледжа Иисуса © Nick Kane
Западный двор колледжа Иисуса © Nick Kane
Западный двор колледжа Иисуса © Nick Kane
Западный двор колледжа Иисуса © Nick Kane
Западный двор колледжа Иисуса © Nick Kane
Западный двор колледжа Иисуса © Nick Kane
Западный двор колледжа Иисуса © Nick Kane
Западный двор колледжа Иисуса © Nick Kane
Западный двор колледжа Иисуса © Nick Kane
Западный двор колледжа Иисуса © Nick Kane
Западный двор колледжа Иисуса © Nick Kane
Западный двор колледжа Иисуса © Nick Kane
Западный двор колледжа Иисуса © Nick Kane
Западный двор колледжа Иисуса © Nick Kane
Западный двор колледжа Иисуса © Nick Kane
Западный двор колледжа Иисуса © Nick Kane
Западный двор колледжа Иисуса © Nick Kane
Западный двор колледжа Иисуса © Nick Kane
Западный двор колледжа Иисуса © Nick Kane
Западный двор колледжа Иисуса © Nick Kane
Западный двор колледжа Иисуса © Nick Kane
Западный двор колледжа Иисуса © Nick Kane
Западный двор колледжа Иисуса © Nick Kane
Западный двор колледжа Иисуса © Nick Kane
Западный двор колледжа Иисуса © Nick Kane
Западный двор колледжа Иисуса © Nick Kane
Западный двор колледжа Иисуса © Niall McLaughlin Architects
Западный двор колледжа Иисуса © Niall McLaughlin Architects
Западный двор колледжа Иисуса © Niall McLaughlin Architects
Западный двор колледжа Иисуса © Niall McLaughlin Architects
Западный двор колледжа Иисуса © Niall McLaughlin Architects
Западный двор колледжа Иисуса © Niall McLaughlin Architects
Западный двор колледжа Иисуса © Niall McLaughlin Architects
Западный двор колледжа Иисуса © Niall McLaughlin Architects
Западный двор колледжа Иисуса © Niall McLaughlin Architects
Западный двор колледжа Иисуса © Niall McLaughlin Architects
Западный двор колледжа Иисуса © Niall McLaughlin Architects
Западный двор колледжа Иисуса © Niall McLaughlin Architects
Западный двор колледжа Иисуса © Niall McLaughlin Architects
Западный двор колледжа Иисуса © Niall McLaughlin Architects
Западный двор колледжа Иисуса © Niall McLaughlin Architects
Западный двор колледжа Иисуса © Niall McLaughlin Architects
Западный двор колледжа Иисуса © Niall McLaughlin Architects
Западный двор колледжа Иисуса © Niall McLaughlin Architects