Размещено на портале Архи.ру (www.archi.ru)

15.06.2018

Неоготика и современность

Нина Фролова
Объект:
Концертный зал «Рурский музыкальный форум Аннелизе Брост»
Адрес:
Германия, None, Бохум.
Мастерская:
Bez+Kock

Архитекторы Bez+Kock включили бывшую католическую церковь в состав своего концертного зала «Рурский музыкальный форум Аннелизе Брост» в Бохуме.

Концертный зал «Рурский музыкальный форум Аннелизе Брост». Фото © Brigida González
Концертный зал «Рурский музыкальный форум Аннелизе Брост». Фото © Brigida González

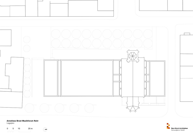
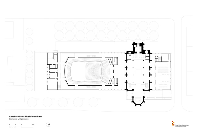
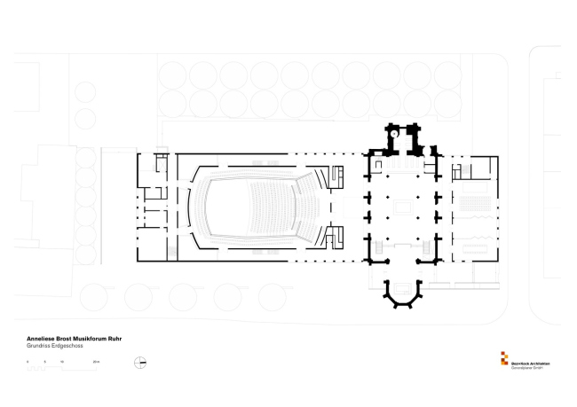
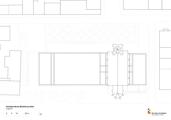
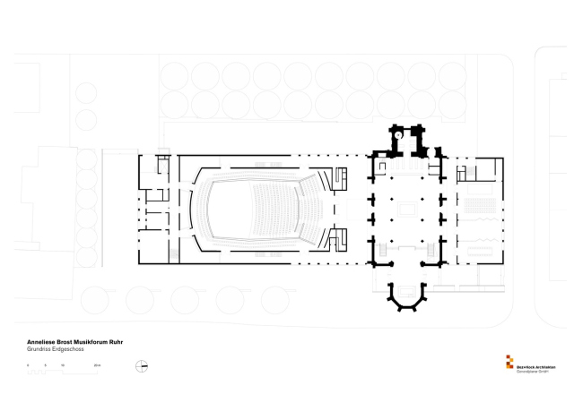
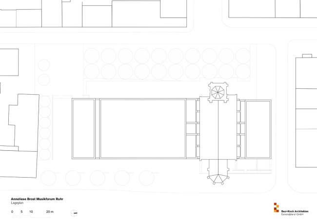
«Рурский музыкальный форум Аннелизе Брост» предназначен в первую очередь для Бохумского симфонического оркестра, долгое время не имевшего собственной «резиденции»; также новым зданием пользуется местная музыкальная школа. Он появился в формируемом сейчас в центре города, недалеко от вокзала, Виктория-квартале, который должен стать местом сосредоточения культуры и креативных индустрий. В состав нового здания как ключевая, центральная часть композиции вошла католическая церковь Мариенкирхе в стиле неоготики. Ее построили в 1868–1872 по проекту Герхарда Аугуста Фишера; в 1943 она сильно пострадала при бомбардировке, восстановили ее к 1953. Из-за недостаточного числа верующих в приходе в 2002 ее «десакрализовали», то есть лишили статуса освященного пространства (обычная практика в католицизме: «десакрализованные» в начале XX века и ранее церкви есть и в Риме). После этого Мариенкирхе пустовала.
 
Концертный зал «Рурский музыкальный форум Аннелизе Брост». Фото © Brigida González
Концертный зал «Рурский музыкальный форум Аннелизе Брост». Фото © Brigida González
Концертный зал «Рурский музыкальный форум Аннелизе Брост». Фото © Brigida González
Концертный зал «Рурский музыкальный форум Аннелизе Брост». Фото © Brigida González

Тем временем разрабатывались планы по созданию в городе необходимого оркестру концертного зала, которые в итоге включили в себя пустующую церковь. В 2012 был проведен общеевропейский архитектурный конкурс, который выиграло штутгартское бюро Bez+Kock. Согласно их замыслу, к Мариенкирхе по бокам, с севера и юга, были пристроены два новых объема. Она сохранила свою роль городской достопримечательности, приобретя при этом функцию фойе «музыкального форума», где также можно проводить концерты. Для современной части здания был также выбран красный кирпич, из которого построена и церковь, однако он побелен, и его насыщенный цвет лишь угадывается. В результате, новое и старое одновременно отделены друг от друга и имеют общее «материальное» качество.
 
Концертный зал «Рурский музыкальный форум Аннелизе Брост». Фото © Brigida González
Концертный зал «Рурский музыкальный форум Аннелизе Брост». Фото © Brigida González
Концертный зал «Рурский музыкальный форум Аннелизе Брост». Фото © Brigida González
Концертный зал «Рурский музыкальный форум Аннелизе Брост». Фото © Brigida González

В большем, южном объеме заключен главный зал – на 962 зрителя, с местами, расположенными террасами и окружающими сцену со всех сторон, так, что возникает много «первых рядов», а слушатель максимально приближен к исполнителям. С юга находятся и административные помещения. С севера возведен многофункциональный зал на 300 человек для музыкальной школы. В качестве основного материала для главного зала выбрали древесину вишни, также в интерьере «форума» были использованы тераццо и медь. Общая площадь постройки – 8 250 м2, бюджет составил около 35,7 млн евро. Заказчиком выступила администрация Бохума.
Концертный зал «Рурский музыкальный форум Аннелизе Брост». Фото © Brigida González
Концертный зал «Рурский музыкальный форум Аннелизе Брост». Фото © Brigida González
Концертный зал «Рурский музыкальный форум Аннелизе Брост». Фото © Brigida González
Концертный зал «Рурский музыкальный форум Аннелизе Брост». Фото © Brigida González
Концертный зал «Рурский музыкальный форум Аннелизе Брост». Фото © Brigida González
Концертный зал «Рурский музыкальный форум Аннелизе Брост». Фото © Brigida González
Концертный зал «Рурский музыкальный форум Аннелизе Брост» © Bez+Kock Architekten
Концертный зал «Рурский музыкальный форум Аннелизе Брост» © Bez+Kock Architekten
Концертный зал «Рурский музыкальный форум Аннелизе Брост» © Bez+Kock Architekten
Концертный зал «Рурский музыкальный форум Аннелизе Брост» © Bez+Kock Architekten
Концертный зал «Рурский музыкальный форум Аннелизе Брост» © Bez+Kock Architekten
Концертный зал «Рурский музыкальный форум Аннелизе Брост» © Bez+Kock Architekten