Размещено на портале Архи.ру (www.archi.ru)

14.06.2018

Резной нефрит и экзоскелет

Нина Фролова
Объект:
Гостиница Morpheus
Адрес:
Китай, None, Макао.
Мастерская:
Zaha Hadid Architects

В Макао готов отель Morpheus по проекту Zaha Hadid Architects: он рассчитан на катастрофические ураганы и наводнения, а также, как заявляют его авторы, получил первый в мире экзоскелет «свободной» формы.

Гостиница Morpheus
Гостиница Morpheus
© Virgile Simon Bertrand

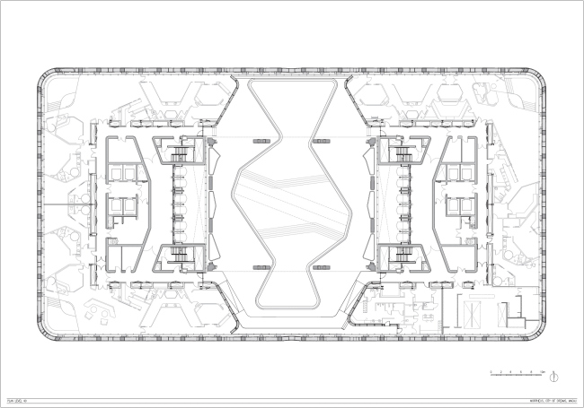
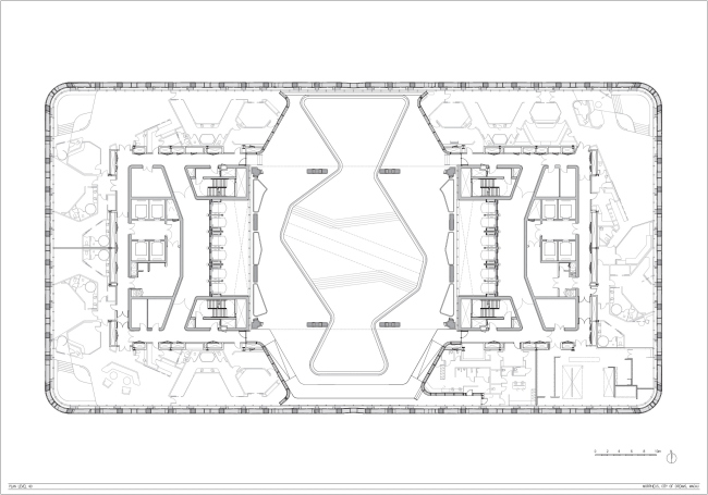
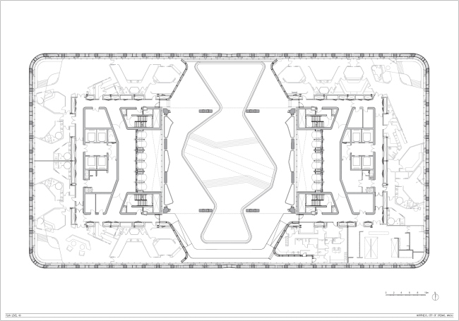
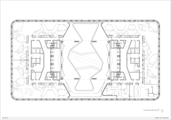
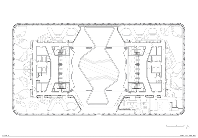
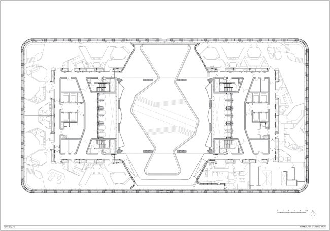
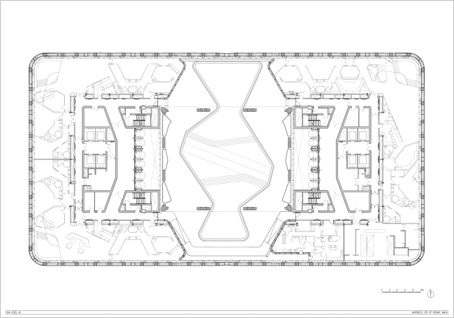
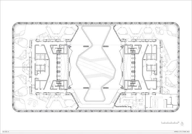
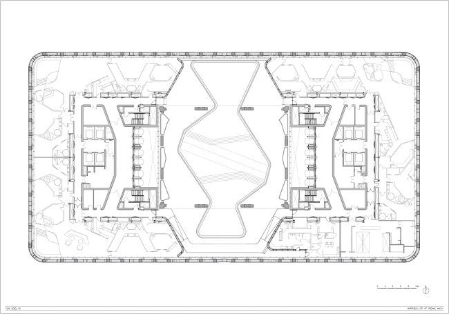
Отель построен в границах большого курортного комплекса City of Dreams: там есть и другие гостиницы (всего 1400 номеров), рестораны, две сотни магазинов, два театральных зала, но главное, как и в Макао (точнее, Аомыне) в целом – это казино, которое здесь включает почти 200 игровых столов. В самом Morpheus функций не меньше: 780 номеров разного размера и уровня комфорта (но самый маленький – 55 м2), казино, торговый центр и конференц-залы в трехъярусном подиуме, панорамный ресторан, а в верхней части – VIP-игорные помещения, салоны, «виллы», люксовые пункты питания и бассейн на крыше. Высота постройки – 160 м, максимум по местным нормам, определенным нуждами авиации, а общая площадь – чуть меньше 150 тыс. м2. Здание почти полностью занимает свой участок размером 52 м на 99 м.
 
Гостиница Morpheus
Гостиница Morpheus
© Ivan Dupont
Гостиница Morpheus
Гостиница Morpheus
© Virgile Simon Bertrand
Гостиница Morpheus
Гостиница Morpheus
© Ivan Dupont
Гостиница Morpheus
Гостиница Morpheus
© Virgile Simon Bertrand

Когда Zaha Hadid Architects пригласили к сотрудничеству в 2012, архитекторам было предложено построить гостиницу на фундаменте так и оставшегося на бумаге жилого дома. С трех сторон участок окружали здания курорта, с четвертой – оживленная автомагистраль. Все это создало большие проблемы при строительстве, так как почти негде было разместить материалы, строительную технику и т.д., кроме того, при требуемой площади и программе единственным вариантом была высотная постройка, что еще больше усложняло задачу. Конструктивным выходом стала структура из двух «протобашен» со своим стержнем каждая; эти башни соединены функциональными уровнями на уровне земли и кровли, менее нагруженные пространства созданы и между: там находятся 40-метровый венчающий вестибюль атриум, переходы, рестораны. Но важнее – делающее конструкцию гибридом сочетание двух стержней со стальным экзоскелетом, охватывающим не только плоские части фасадов, но и участки двойной кривизны и т.д. В нем насчитывается 1200 узлов повышенной сложности весом до 18 тонн каждый, а всего там порядка 2500 узлов. Экзоскелетом вместе с ZHA занимались специалисты Buro Happold. Несмотря на вынужденность большинства конструктивных мер, общая форма, по словам авторов, вдохновлена традиционным китайским искусством резьбы по нефриту.
 
Гостиница Morpheus
Гостиница Morpheus
© Virgile Simon Bertrand
Гостиница Morpheus
Гостиница Morpheus
© Virgile Simon Bertrand
Гостиница Morpheus
Гостиница Morpheus
© Virgile Simon Bertrand
Гостиница Morpheus
Гостиница Morpheus
© Virgile Simon Bertrand

Конструкция вместе с остеклением повышенной эффективности защищает здание от катастрофических ураганов (мощность – как раз в 200 лет) и наводнений (как раз в столетие), сейсмической активности: таковы местные СНиПы. Также учтены крайне жаркий и влажный субтропический климат с высоким объемом солнечного жара и необходимость часто чистить фасад (там предусмотрены детали, облегчающие перемещение рабочих). Кондиционерами обеспечены только пространства, где находятся гости и сотрудники, в то время как значительная часть атриума, к примеру, обходится без них. Воду подогревают с помощью теплового насоса, использованы эффективные системы охлаждения воздуха. Здание в целом управляется интеллектуальной системой, «гармонизирующей» потребление энергии с условиями внешней среды.
Гостиница Morpheus
Гостиница Morpheus
© Ivan Dupont
Гостиница Morpheus
Гостиница Morpheus
© Virgile Simon Bertrand
Гостиница Morpheus
Гостиница Morpheus
© Virgile Simon Bertrand
Гостиница Morpheus
Гостиница Morpheus
© Ivan Dupont
Гостиница Morpheus
Гостиница Morpheus
© Ivan Dupont
Гостиница Morpheus
Гостиница Morpheus
© Ivan Dupont
Гостиница Morpheus
Гостиница Morpheus
© Ivan Dupont
Гостиница Morpheus
Гостиница Morpheus
© Ivan Dupont
Гостиница Morpheus
Гостиница Morpheus
© Virgile Simon Bertrand
Гостиница Morpheus
Гостиница Morpheus
© Virgile Simon Bertrand
Гостиница Morpheus
Гостиница Morpheus
© Virgile Simon Bertrand
Гостиница Morpheus
Гостиница Morpheus
© Virgile Simon Bertrand
Гостиница Morpheus
Гостиница Morpheus
© Virgile Simon Bertrand
Гостиница Morpheus
Гостиница Morpheus
© Virgile Simon Bertrand
Гостиница Morpheus
Гостиница Morpheus
© Virgile Simon Bertrand
Гостиница Morpheus
Гостиница Morpheus
© Virgile Simon Bertrand
Гостиница Morpheus
Гостиница Morpheus
© Virgile Simon Bertrand
Гостиница Morpheus
Гостиница Morpheus
© Zaha Hadid Architects
Гостиница Morpheus
Гостиница Morpheus
© Zaha Hadid Architects
Гостиница Morpheus
Гостиница Morpheus
© Zaha Hadid Architects
Гостиница Morpheus
Гостиница Morpheus
© Zaha Hadid Architects
Гостиница Morpheus
Гостиница Morpheus
© Zaha Hadid Architects
Гостиница Morpheus
Гостиница Morpheus
© Zaha Hadid Architects
Гостиница Morpheus
Гостиница Morpheus
© Zaha Hadid Architects
Гостиница Morpheus
Гостиница Morpheus
© Zaha Hadid Architects
Гостиница Morpheus
Гостиница Morpheus
© Zaha Hadid Architects
Гостиница Morpheus
Гостиница Morpheus
© Zaha Hadid Architects
Гостиница Morpheus
Гостиница Morpheus
© Zaha Hadid Architects
Гостиница Morpheus
Гостиница Morpheus
© Zaha Hadid Architects
Гостиница Morpheus
Гостиница Morpheus
© Zaha Hadid Architects
Гостиница Morpheus
Гостиница Morpheus
© Zaha Hadid Architects
Гостиница Morpheus
Гостиница Morpheus
© Zaha Hadid Architects
Гостиница Morpheus
Гостиница Morpheus
© Zaha Hadid Architects
Гостиница Morpheus
Гостиница Morpheus
© Zaha Hadid Architects
Гостиница Morpheus
Гостиница Morpheus
© Zaha Hadid Architects
Гостиница Morpheus
Гостиница Morpheus
© Zaha Hadid Architects
Гостиница Morpheus
Гостиница Morpheus
© Zaha Hadid Architects
Гостиница Morpheus
Гостиница Morpheus
© Zaha Hadid Architects
Гостиница Morpheus
Гостиница Morpheus
© Zaha Hadid Architects